Ordinary Meeting

 

 

Meeting Date:     Tuesday, 16 December, 2025

Location:            Council Chambers, City Administrative Building, Bridge Road, Nowra

 

 

Attachments (Under Separate Cover)

 

 

Index

 

15.  Reports

CL25.419   Outcomes of Public Exhibition - Draft Code of Meeting Practice and Draft Public Forum Policy

Attachment 1.... Draft Code of Meeting Practice.............................................. 3

Attachment 2.... Draft Public Forum Policy..................................................... 45

CL25.422.. Investment Report - November 2025

Attachment 1.... Monthly Investment Review - November 2025.................... 54

Attachment 2.... Statement of Investments - November 2025........................ 77

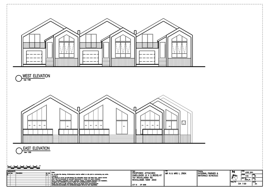
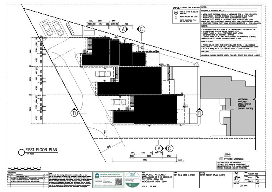
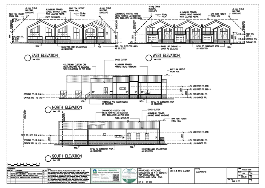
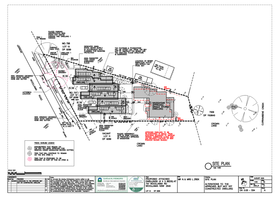
CL25.413   Development Application DA2024/1589 - 737 Woollamia Road WOOLLAMIA - Lot 12 DP 9289

Attachment 1.... Architectural Plan Set........................................................... 83

Attachment 2.... Draft Notice of  Determination - Refusal.............................. 94

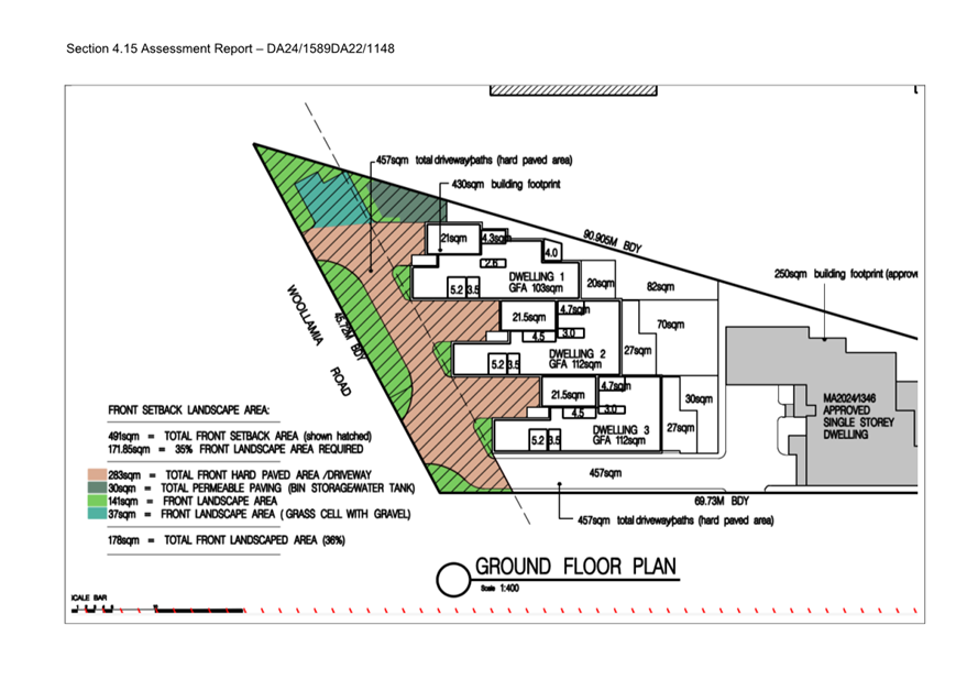
Attachment 3.... S4.15 Assessment Report.................................................... 98

Attachment 4.... Covering Letter RFI Response........................................... 174

Attachment 5.... Response to SCC............................................................... 177

Attachment 6.... Suitability of Material or Construction Methods Report...... 189

Attachment 7.... Flood Risk Management Peer Review............................... 192

Attachment 8.... Flood Affectation Report..................................................... 204

Attachment 9.... Emergency and Evacuation Plan....................................... 207

Attachment 10.. Flood Evacuation Map........................................................ 211

Attachment 11.. Hydraulic Model Results..................................................... 213

Attachment 12.. Acid Sulphate Soils Management Plan.............................. 248

Attachment 13.. Adaptable Housing Assessment Report............................ 300

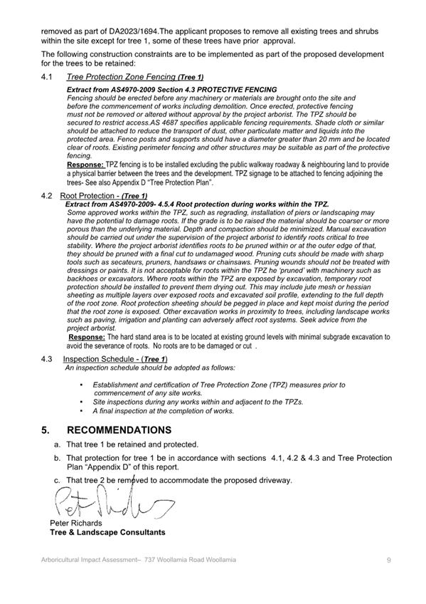
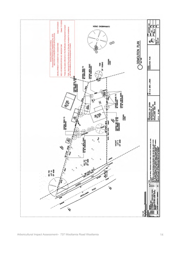
Attachment 14.. Arborist Impact Assessment............................................... 309

Attachment 15.. Bushfire Assessment Report.............................................. 328

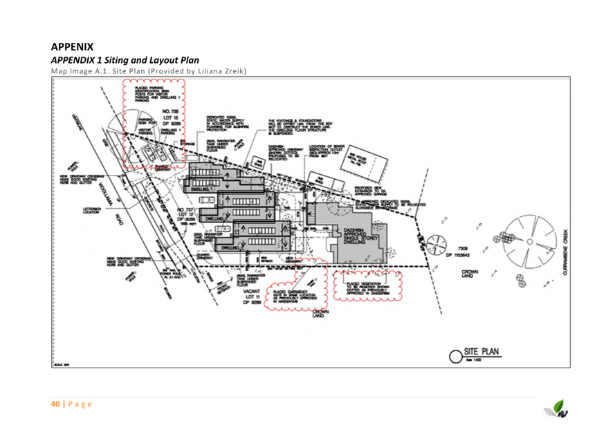
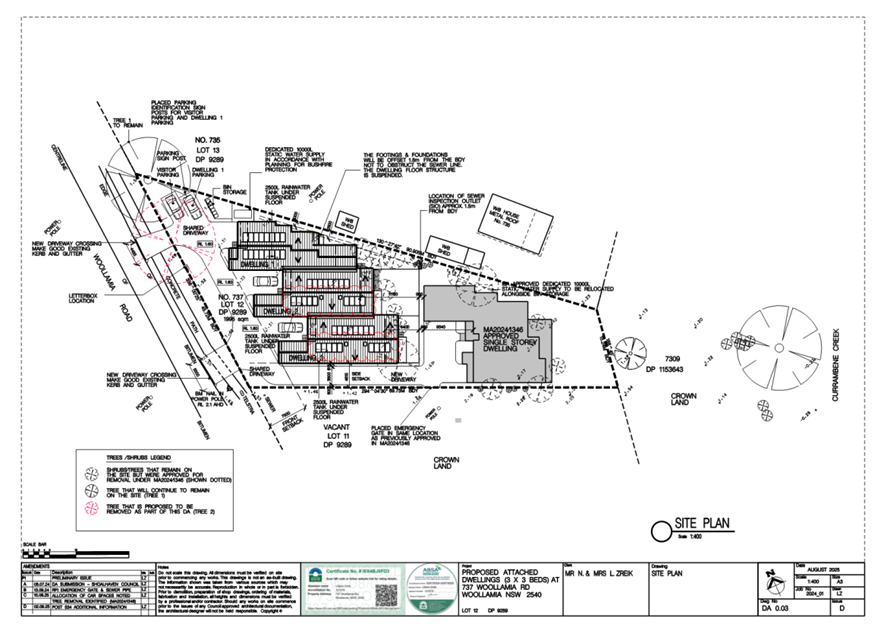
Attachment 16.. Site Plan Rev. D................................................................. 371

Attachment 17.. DA3.00 Section Plans......................................................... 372

Attachment 18.. Landscape Plan.................................................................. 373

Attachment 19.. First Referral Response - Crown Lands............................. 374

Attachment 20.. Second Referral Response - Crown Lands........................ 375

Attachment 21.. Draft Notice of Determination - Approval including draft conditions of consent (Not Recommended)............................................. 376

Attachment 22.. Letter from Northrop Engineers.......................................... 412

Attachment 23.. Covering Letter from Applicant dated 4 December 2025... 415

CL25.430   Review of Waste Services Policies

Attachment 1.... Waste Services Fee Waivers and Subsidies Policy........... 417

Attachment 2.... Waste Management - Disaster Recovery Policy................ 427

Attachment 3.... Waste Disposal - No Charge Tipping Vouchers................ 431

Attachment 4.... Garden Waste Mulch - Community Assistance Policy....... 432                        

 


Logo, company name

Description automatically generated

 

Ordinary Meeting – Tuesday 16 December 2025

Page 0

 

A close-up of a document

AI-generated content may be incorrect.

A paper with text on it

AI-generated content may be incorrect.

A document with text on it

AI-generated content may be incorrect.

A paper with text on it

AI-generated content may be incorrect.

A paper with text on it

AI-generated content may be incorrect.

A paper with text on it

AI-generated content may be incorrect.

A paper with text on it

AI-generated content may be incorrect.

A paper with text on it

AI-generated content may be incorrect.

A paper with text on it

AI-generated content may be incorrect.

A close-up of a paper

AI-generated content may be incorrect.

A paper with text on it

AI-generated content may be incorrect.

A paper with text on it

AI-generated content may be incorrect.

A paper with text on it

AI-generated content may be incorrect.

A paper with text on it

AI-generated content may be incorrect.

A paper with text on it

AI-generated content may be incorrect.

A close-up of a document

AI-generated content may be incorrect.

A paper with text on it

AI-generated content may be incorrect.

A paper with text and blue text

AI-generated content may be incorrect.

A paper with text on it

AI-generated content may be incorrect.

A paper with text on it

AI-generated content may be incorrect.

A paper with text on it

AI-generated content may be incorrect.

A document with text on it

AI-generated content may be incorrect.

A red and white paper with text

AI-generated content may be incorrect.

A paper with text on it

AI-generated content may be incorrect.

A paper with text on it

AI-generated content may be incorrect.

A document with text on it

AI-generated content may be incorrect.

A paper with text and images

AI-generated content may be incorrect.

A paper with text on it

AI-generated content may be incorrect.

A paper with text on it

AI-generated content may be incorrect.

A close-up of a document

AI-generated content may be incorrect.

A paper with text and a list of information

AI-generated content may be incorrect.

A paper with text on it

AI-generated content may be incorrect.

A paper with text on it

AI-generated content may be incorrect.

A paper with text on it

AI-generated content may be incorrect.

A paper with text on it

AI-generated content may be incorrect.

A paper with text on it

AI-generated content may be incorrect.

A paper with text on it

AI-generated content may be incorrect.

A paper with text on it

AI-generated content may be incorrect.

A paper with text on it

AI-generated content may be incorrect.

A close-up of a paper

AI-generated content may be incorrect.

A close-up of a document

AI-generated content may be incorrect.

A screenshot of a document

AI-generated content may be incorrect.

 



Logo, company name

Description automatically generated

 

Ordinary Meeting – Tuesday 16 December 2025

Page 0

 


A screenshot of a document

AI-generated content may be incorrect.

A screenshot of a document

AI-generated content may be incorrect.






A screenshot of a computer

AI-generated content may be incorrect.

 



Logo, company name

Description automatically generated

 

Ordinary Meeting – Tuesday 16 December 2025

Page 0

 



A screenshot of a document

AI-generated content may be incorrect.

A screenshot of a document

AI-generated content may be incorrect.


A screenshot of a document

AI-generated content may be incorrect.


A document with text on it

AI-generated content may be incorrect.



A close-up of a document

AI-generated content may be incorrect.

A graph on a paper

AI-generated content may be incorrect.

A paper with a graph and text

AI-generated content may be incorrect.

A screenshot of a document

AI-generated content may be incorrect.









 



Logo, company name

Description automatically generated

 

Ordinary Meeting – Tuesday 16 December 2025

Page 0

 






 

 


Logo, company name

Description automatically generated

 

Ordinary Meeting – Tuesday 16 December 2025

Page 0

 











 



Logo, company name

Description automatically generated

 

Ordinary Meeting – Tuesday 16 December 2025

Page 0

 




 



Logo, company name

Description automatically generated

 

Ordinary Meeting – Tuesday 16 December 2025

Page 0

 












































































 



Logo, company name

Description automatically generated

 

Ordinary Meeting – Tuesday 16 December 2025

Page 0

 

A letter of a business report

AI-generated content may be incorrect.

A close-up of a document

AI-generated content may be incorrect.

A close-up of a letter

AI-generated content may be incorrect.

 



Logo, company name

Description automatically generated

 

Ordinary Meeting – Tuesday 16 December 2025

Page 0

 

A document with text on it

AI-generated content may be incorrect.

A paper with text and diagrams

AI-generated content may be incorrect.

A paper with text and a diagram

AI-generated content may be incorrect.

A paper with text on it

AI-generated content may be incorrect.

A paper with text on it

AI-generated content may be incorrect.

A document with text on it

AI-generated content may be incorrect.

A document with text on it

AI-generated content may be incorrect.

A paper with text on it

AI-generated content may be incorrect.

A paper with text on it

AI-generated content may be incorrect.

A paper with text and images

AI-generated content may be incorrect.

A document with text on it

AI-generated content may be incorrect.

A close-up of a letter

AI-generated content may be incorrect.

 



Logo, company name

Description automatically generated

 

Ordinary Meeting – Tuesday 16 December 2025

Page 0

 

A close-up of a list of hazard

AI-generated content may be incorrect.

A close-up of a chart

AI-generated content may be incorrect.

A close-up of a chart

AI-generated content may be incorrect.

 



Logo, company name

Description automatically generated

 

Ordinary Meeting – Tuesday 16 December 2025

Page 0

 

A document with text on it

AI-generated content may be incorrect.

A screenshot of a document

AI-generated content may be incorrect.

A screenshot of a document

AI-generated content may be incorrect.

A close-up of a document

AI-generated content may be incorrect.

A document with text on it

AI-generated content may be incorrect.

A screenshot of a computer

AI-generated content may be incorrect.

A blueprint of a plane

AI-generated content may be incorrect.

A black square with white text

AI-generated content may be incorrect.

A document with text on it

AI-generated content may be incorrect.

A document with text on it

AI-generated content may be incorrect.

A document with text on it

AI-generated content may be incorrect.

A screenshot of a computer

AI-generated content may be incorrect.

 



Logo, company name

Description automatically generated

 

Ordinary Meeting – Tuesday 16 December 2025

Page 0

 

A document with text on it

AI-generated content may be incorrect.

A document with text on it

AI-generated content may be incorrect.

A document with text on it

AI-generated content may be incorrect.

 



Logo, company name

Description automatically generated

 

Ordinary Meeting – Tuesday 16 December 2025

Page 0

 

A document with text on it

AI-generated content may be incorrect.

A paper with text on it

AI-generated content may be incorrect.

A screenshot of a document

AI-generated content may be incorrect.

A document with text and images

AI-generated content may be incorrect.

 



Logo, company name

Description automatically generated

 

Ordinary Meeting – Tuesday 16 December 2025

Page 0

 

A map of a river

AI-generated content may be incorrect.

A map of a flood evacuating site

AI-generated content may be incorrect.

 



Logo, company name

Description automatically generated

 

Ordinary Meeting – Tuesday 16 December 2025

Page 0

 

A document with text on it

AI-generated content may be incorrect.

A close-up of a document

AI-generated content may be incorrect.

A document with text on it

AI-generated content may be incorrect.

A document with text and a list of information

AI-generated content may be incorrect.

A close-up of a map

AI-generated content may be incorrect.

A close-up of a document

AI-generated content may be incorrect.

A close-up of a document

AI-generated content may be incorrect.

A white background with black text

AI-generated content may be incorrect.

A white background with black text

AI-generated content may be incorrect.


A map of a neighborhood

AI-generated content may be incorrect.

A map of the world

AI-generated content may be incorrect.

A map of a neighborhood

AI-generated content may be incorrect.




A map of a city

AI-generated content may be incorrect.




A map of a city

AI-generated content may be incorrect.




A map of a city

AI-generated content may be incorrect.



A aerial view of a neighborhood

AI-generated content may be incorrect.


A white background with black text

AI-generated content may be incorrect.

A person in a suit and tie

AI-generated content may be incorrect.

A close-up of a document

AI-generated content may be incorrect.

A document with text on it

AI-generated content may be incorrect.

A document with text on it

AI-generated content may be incorrect.

A document with text on it

AI-generated content may be incorrect.

A close-up of a document

AI-generated content may be incorrect.

A close-up of a document

AI-generated content may be incorrect.

A close-up of a document

AI-generated content may be incorrect.


A close-up of a document

AI-generated content may be incorrect.

 



Logo, company name

Description automatically generated

 

Ordinary Meeting – Tuesday 16 December 2025

Page 0

 




















































 



Logo, company name

Description automatically generated

 

Ordinary Meeting – Tuesday 16 December 2025

Page 0

 









 



Logo, company name

Description automatically generated

 

Ordinary Meeting – Tuesday 16 December 2025

Page 0

 



















 



Logo, company name

Description automatically generated

 

Ordinary Meeting – Tuesday 16 December 2025

Page 0

 

A screen shot of a phone

AI-generated content may be incorrect.

A close-up of a document

AI-generated content may be incorrect.

A document with text on it

AI-generated content may be incorrect.

A document with text on it

AI-generated content may be incorrect.


A document with text on it

AI-generated content may be incorrect.

A close-up of a document

AI-generated content may be incorrect.

A close-up of a document

AI-generated content may be incorrect.

A screenshot of a map

AI-generated content may be incorrect.

A close-up of a document

AI-generated content may be incorrect.


A close-up of a document

AI-generated content may be incorrect.

A document with text on it

AI-generated content may be incorrect.




A collage of a park

AI-generated content may be incorrect.


























 



Logo, company name

Description automatically generated

 

Ordinary Meeting – Tuesday 16 December 2025

Page 0

 

A blueprint of a house

AI-generated content may be incorrect.

 



Logo, company name

Description automatically generated

 

Ordinary Meeting – Tuesday 16 December 2025

Page 0

 

 



Logo, company name

Description automatically generated

 

Ordinary Meeting – Tuesday 16 December 2025

Page 0

 

 



Logo, company name

Description automatically generated

 

Ordinary Meeting – Tuesday 16 December 2025

Page 0

 

 



Logo, company name

Description automatically generated

 

Ordinary Meeting – Tuesday 16 December 2025

Page 0

 

A letter of a company

AI-generated content may be incorrect.

 



Logo, company name

Description automatically generated

 

Ordinary Meeting – Tuesday 16 December 2025

Page 0

 




































 



Logo, company name

Description automatically generated

 

Ordinary Meeting – Tuesday 16 December 2025

Page 0

 



 



Logo, company name

Description automatically generated

 

Ordinary Meeting – Tuesday 16 December 2025

Page 0

 


 

 


Logo, company name

Description automatically generated

 

Ordinary Meeting – Tuesday 16 December 2025

Page 0

 










 



Logo, company name

Description automatically generated

 

Ordinary Meeting – Tuesday 16 December 2025

Page 0

 




 



Logo, company name

Description automatically generated

 

Ordinary Meeting – Tuesday 16 December 2025

Page 0

 

A paper with text on it

AI-generated content may be incorrect.

 



Logo, company name

Description automatically generated

 

Ordinary Meeting – Tuesday 16 December 2025

Page 0