Ordinary Meeting

 

 

Meeting Date:     Monday, 29 July, 2024

Location:            Council Chambers, City Administrative Building, Bridge Road, Nowra

 

 

Attachments (Under Separate Cover)

 

 

Index

 

13.  Reports

CL24.216   Policy - Fee Waivers Subsidies and Support

Attachment 1.... Fee Waivers and Subsidies Policy......................................... 4

CL24.217.. Investment Report - June 2024

Attachment 1.... Shoalhaven Monthly Investment Report - June 2024.......... 18

CL24.218   Berry Planning and Heritage Considerations: Proposed Amendments to Shoalhaven Local Environmental Plan 2014 and Shoalhaven Development Control Plan 2014

Attachment 1.... Princess Street HCA Assessment Report............................ 41

Attachment 2.... List of Properties Proposed for Heritage Listing and/or Inclusion in HCA.............................................................................................. 71

Attachment 3.... Heritage Inventory Sheets - Items within the Proposed Princess Street HCA....................................................................................... 75

Attachment 4.... Heritage Inventory Sheets - Proposed Items Outside the Proposed Princess Street HCA........................................................... 180

Attachment 5.... Berry DCP Engagement Outcomes Report....................... 254

CL24.220.. Proposed Public Exhibition - Moss Vale Road North Urban Release Area - Draft Development Controls and Local Infrastructure Contributions Framework

Attachment 1.... Draft DCP Chapter NB4 MVRN URA................................. 301

Attachment 2.... Proposed Local Infrastructure Contributions Framework.. 383

Attachment 3.... Previous Council Resolutions............................................. 393

Attachment 4.... Summary of Adjusted Development Controls.................... 395

Attachment 5.... Indicative Infrastructure Map.............................................. 396

 

CL24.223   Narrawallee Beach Dog Access - Review of Environmental Factors and Proposed Permanent Dog Access Arrangements - Outcome of Engagement Activity

Attachment 1.... Report - Narrawallee Beach Dog Access - Review of Environmental Factors and Proposed Permanent Dog Access Arrangements - Outcome of Engagement Activity (06/11/2023)................. 397

Attachment 2.... Access Areas for Dogs Policy............................................ 409

Attachment 3.... Description of Study Area................................................... 420

Attachment 4.... Review of Environmental Factors....................................... 432

Attachment 5.... Map - Interim Dog Access Arrangements (in effect from 7 November 2023)................................................................................... 528

Attachment 6.... Map - Proposed Permanent Dog Access Arrangements (for community consultation: May 2024)...................................................... 529

Attachment 7.... Map - Proposed Dog Access Arrangements (if adopted, in effect from: 1 September 2024)............................................................. 530

Attachment 8.... Overview of External Engagement..................................... 531

Attachment 9.... Summary - Live Community Information Event.................. 532

Attachment 10.. Community Engagement Summary Report....................... 533

Attachment 11.. Overview of Staff Responses to Community Feedback.... 539

Attachment 12.. Policy Implications & Strategic Alignment.......................... 549

Attachment 13.. Risk Assessment................................................................ 551

CL24.224.. Bay and Basin Boxing Club - Summary of Engagement Activities

Attachment 1.... Report - Ordinary Council Meeting - 30 October 2023...... 554

Attachment 2.... Tables Referenced in this Report....................................... 562

CL24.225.. Sanctuary Point Library - Project Update #1

Attachment 1.... Sanctuary Point Library - Detailed Project Timeline.......... 567

Attachment 2.... Sanctuary Point Library - Outcomes of Engagement to Date 574

Attachment 3.... Sanctuary Point Library - Library Act 1939 (NSW) and NSW State Library Guidelines Implications........................................... 576

CL24.226.. Kangaroo Valley Men's Shed - Confirmation of Endorsed Site Following Completion of Resident Engagement

Attachment 1.... Report - CL23.464 - Kangaroo Valley Men's Shed - In-Principle Endorsement of Proposed Site - 11 December 2023........ 579

Attachment 2.... Resilient Building Council - Letter of Support - REDACTED 590

Attachment 3.... Tables Referenced in this Report....................................... 591

 

CL24.230.. Shoalhaven Arts Foundation Limited - Formation as a Not-for-Profit Public Company in Accordance With Section 358 of the NSW Local Government Act 1993

Attachment 1.... Shoalhaven Arts Foundation Limited - Constitution........... 597

Attachment 2.... Shoalhaven Arts Foundation Limited - Key changes to Constitution............................................................................................ 627

Attachment 3.... Shoalhaven City Council - S358 Application - July 2024... 630

Attachment 4.... Shoalhaven Arts Foundation Limited - Business Implementation Plan............................................................................................ 659                        


Logo, company name

Description automatically generated

 

Ordinary Meeting – Monday 29 July 2024

Page 0

 


A blue and white document with text

Description automatically generated

A screenshot of a computer

Description automatically generated

A document with text on it

Description automatically generated

A document with text and a black text

Description automatically generated with medium confidence

A document with text on it

Description automatically generated

A document with text on it

Description automatically generated

A document with text and images

Description automatically generated

A screenshot of a document

Description automatically generated

A document with text and numbers

Description automatically generated

A document with text and numbers

Description automatically generated with medium confidence

A questionnaire with text and images

Description automatically generated with medium confidence

A paper with text and a questionnaire

Description automatically generated with medium confidence

A close-up of a form

Description automatically generated

A close-up of a document

Description automatically generated


Logo, company name

Description automatically generated

 

Ordinary Meeting – Monday 29 July 2024

Page 0

 


A white cover with black text

Description automatically generated

A close-up of a graph

Description automatically generated

A screenshot of a document

Description automatically generated

A screenshot of a document

Description automatically generated

A document with numbers and a checklist

Description automatically generated

A screenshot of a document

Description automatically generated

A close-up of a report

Description automatically generated

A document with text and numbers

Description automatically generated

A document with numbers and text

Description automatically generated

A close-up of a document

Description automatically generated

A screenshot of a document

Description automatically generated

A graph on a paper

Description automatically generated with medium confidence

A paper with a graph and numbers

Description automatically generated

A document with a graph

Description automatically generated

A graph on a paper

Description automatically generated

A screenshot of a document

Description automatically generated

A screenshot of a document

Description automatically generated

A document with text and numbers

Description automatically generated

A document with text and numbers

Description automatically generated

A screenshot of a report

Description automatically generated

A graph on a paper

Description automatically generated

A graph on a paper

Description automatically generated

A paper with a graph and text

Description automatically generated

 


Logo, company name

Description automatically generated

 

Ordinary Meeting – Monday 29 July 2024

Page 0

 


A collage of a city

Description automatically generated

A screenshot of a computer

Description automatically generated

A document with text on it

Description automatically generated

A red and white text on a white background

Description automatically generated

A document with text on it

Description automatically generated

A screenshot of a map

Description automatically generated

A document with text and images

Description automatically generated

A close-up of a document

Description automatically generated

A close-up of a map

Description automatically generated

A document with text on it

Description automatically generated

A close-up of a document

Description automatically generated

A screenshot of a phone

Description automatically generated

A screenshot of a phone

Description automatically generated

A page of a document with text

Description automatically generated

A screenshot of a phone

Description automatically generated

A collage of a garden

Description automatically generated

A screenshot of a document

Description automatically generated

A collage of cars and trees

Description automatically generated

A screenshot of a website

Description automatically generated

A close-up of a document

Description automatically generated

A collage of trees and a road

Description automatically generated


A map of a neighborhood

Description automatically generated

A map of a neighborhood

Description automatically generated


A document with text on it

Description automatically generated

A document with text and numbers

Description automatically generated

A document with text and numbers

Description automatically generated

A document with text on it

Description automatically generated

A document with text on it

Description automatically generated

A close-up of a document

Description automatically generated

A close-up of a document

Description automatically generated


Logo, company name

Description automatically generated

 

Ordinary Meeting – Monday 29 July 2024

Page 0

 


A screenshot of a document

Description automatically generated

A document with text and images

Description automatically generated with medium confidence

A close-up of a document

Description automatically generated

A screenshot of a document

Description automatically generated


Logo, company name

Description automatically generated

 

Ordinary Meeting – Monday 29 July 2024

Page 0

 


A document with text and images

Description automatically generated with medium confidence

A screenshot of a computer

Description automatically generated

A text in a document

Description automatically generated

A close-up of a document

Description automatically generated

A black and white document with yellow text

Description automatically generated

A map of a neighborhood

Description automatically generated

A screenshot of a phone

Description automatically generated

A screenshot of a computer screen

Description automatically generated

A screenshot of a computer screen

Description automatically generated

A screenshot of a phone

Description automatically generated

A screenshot of a computer screen

Description automatically generated

A screenshot of a car parking lot

Description automatically generated

A house with a driveway and hedges

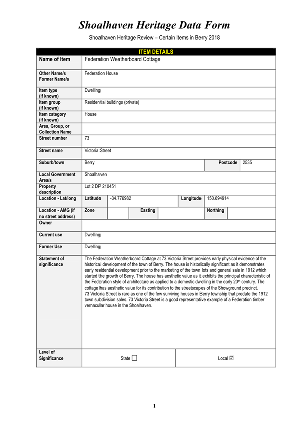
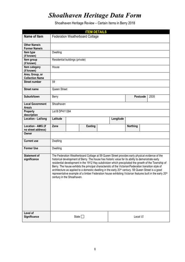
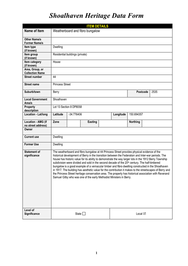
Description automatically generated with medium confidence

A white house with a fence and trees

Description automatically generated

A house with a white fence

Description automatically generated

A screenshot of a computer screen

Description automatically generated

A screenshot of a map

Description automatically generated

A close-up of a document

Description automatically generated

A screenshot of a document

Description automatically generated

A screenshot of a document

Description automatically generated

A document with text on it

Description automatically generated

A black and white document with yellow text

Description automatically generated

A screenshot of a phone

Description automatically generated

A screenshot of a screenshot of a car parking lot

Description automatically generated

A screenshot of a screenshot of a car parking lot

Description automatically generated

A screenshot of a computer screen

Description automatically generated

A brick walkway with ducks

Description automatically generated with medium confidence

A screenshot of a church

Description automatically generated

A screenshot of a computer

Description automatically generated

A car parked on the street

Description automatically generated

A close-up of a document

Description automatically generated

A document with text on it

Description automatically generated

A screenshot of a document

Description automatically generated

A close-up of a document

Description automatically generated

A black and white document with yellow text

Description automatically generated

A house with bushes and a blue sky

Description automatically generated

A screenshot of a house

Description automatically generated

A screenshot of a home

Description automatically generated

A car parked in a driveway

Description automatically generated

A screenshot of a blueprint

Description automatically generated

A close-up of a document

Description automatically generated

A screenshot of a document

Description automatically generated

A document with text on it

Description automatically generated

A black and white application form

Description automatically generated

A black and white document with yellow text

Description automatically generated

A screenshot of a home

Description automatically generated

A house with a path and trees

Description automatically generated with medium confidence

A screenshot of a home

Description automatically generated

A screenshot of a house

Description automatically generated

A close-up of a blueprint

Description automatically generated

A house with a white picket fence

Description automatically generated

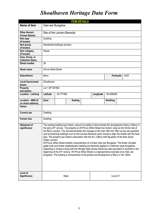
A page of a book with pictures of soldiers on horses

Description automatically generated

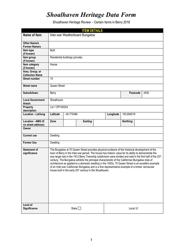
A close-up of a form

Description automatically generated

A screenshot of a document

Description automatically generated

A document with text and a box

Description automatically generated with medium confidence

A white sheet of paper with black text

Description automatically generated

A black and white document with yellow text

Description automatically generated

A house surrounded by bushes

Description automatically generated

A screenshot of a house

Description automatically generated

A house with a porch

Description automatically generated


A screenshot of a document

Description automatically generated

A close-up of a form

Description automatically generated

A screenshot of a document

Description automatically generated

A document with text and a box

Description automatically generated with medium confidence


A close-up of a form

Description automatically generated

A house with a fence and bushes

Description automatically generated



A screenshot of a document

Description automatically generated

A close-up of a form

Description automatically generated

A screenshot of a document

Description automatically generated

A document with text and a black text

Description automatically generated with medium confidence



A screenshot of a computer screen

Description automatically generated

A screenshot of a computer

Description automatically generated



A white picket fence and a house

Description automatically generated

A close-up of a form

Description automatically generated


A close-up of a document

Description automatically generated


A black and white document with yellow text

Description automatically generated


A screenshot of a home

Description automatically generated

A document with text and images

Description automatically generated




A close-up of a document

Description automatically generated


A screenshot of a home

Description automatically generated


A close-up of a form

Description automatically generated


A document with text and a black text

Description automatically generated with medium confidence







Logo, company name

Description automatically generated

 

Ordinary Meeting – Monday 29 July 2024

Page 0

 












































































Logo, company name

Description automatically generated

 

Ordinary Meeting – Monday 29 July 2024

Page 0

 

















































Logo, company name

Description automatically generated

 

Ordinary Meeting – Monday 29 July 2024

Page 0

 















































A paper with text and a box

Description automatically generated with medium confidence

A close-up of a document

Description automatically generated

A map with arrows pointing to the area

Description automatically generated

A map of a city

Description automatically generated

A screenshot of a document

Description automatically generated

A map of a neighborhood

Description automatically generated

A close-up of a document

Description automatically generated

A map of a city

Description automatically generated

A paper with text and images

Description automatically generated

A close-up of a document

Description automatically generated

A close-up of a paper

Description automatically generated

A paper with text and a box

Description automatically generated with medium confidence

A close-up of a document

Description automatically generated

A close-up of a paper

Description automatically generated

A document with text on it

Description automatically generated

A screenshot of a map

Description automatically generated

A close-up of a document

Description automatically generated

A close-up of a document

Description automatically generated

A document with text on it

Description automatically generated

A house with a blueprint

Description automatically generated with medium confidence

A paper with text on it

Description automatically generated

A close-up of a diagram

Description automatically generated

A screenshot of a computer

Description automatically generated

A close-up of a document

Description automatically generatedA close-up of a document

Description automatically generated

A close-up of a document

Description automatically generated

A close-up of a document

Description automatically generated

A close-up of a document

Description automatically generated

A close-up of a document

Description automatically generated

A close-up of a document

Description automatically generated

A close-up of a house

Description automatically generated

A diagram of a house

Description automatically generated

A document with text on it

Description automatically generated

A document with text on it

Description automatically generated

 

 


Logo, company name

Description automatically generated

 

Ordinary Meeting – Monday 29 July 2024

Page 0

 












Logo, company name

Description automatically generated

 

Ordinary Meeting – Monday 29 July 2024

Page 0

 




Logo, company name

Description automatically generated

 

Ordinary Meeting – Monday 29 July 2024

Page 0

 



Logo, company name

Description automatically generated

 

Ordinary Meeting – Monday 29 July 2024

Page 0

 


 


Logo, company name

Description automatically generated

 

Ordinary Meeting – Monday 29 July 2024

Page 0

 














Logo, company name

Description automatically generated

 

Ordinary Meeting – Monday 29 July 2024

Page 0

 













Logo, company name

Description automatically generated

 

Ordinary Meeting – Monday 29 July 2024

Page 0

 














Logo, company name

Description automatically generated

 

Ordinary Meeting – Monday 29 July 2024

Page 0

 


































































































Logo, company name

Description automatically generated

 

Ordinary Meeting – Monday 29 July 2024

Page 0

 



Logo, company name

Description automatically generated

 

Ordinary Meeting – Monday 29 July 2024

Page 0

 



Logo, company name

Description automatically generated

 

Ordinary Meeting – Monday 29 July 2024

Page 0

 



Logo, company name

Description automatically generated

 

Ordinary Meeting – Monday 29 July 2024

Page 0

 



Logo, company name

Description automatically generated

 

Ordinary Meeting – Monday 29 July 2024

Page 0

 



Logo, company name

Description automatically generated

 

Ordinary Meeting – Monday 29 July 2024

Page 0

 








Logo, company name

Description automatically generated

 

Ordinary Meeting – Monday 29 July 2024

Page 0

 












Logo, company name

Description automatically generated

 

Ordinary Meeting – Monday 29 July 2024

Page 0

 




Logo, company name

Description automatically generated

 

Ordinary Meeting – Monday 29 July 2024

Page 0

 





Logo, company name

Description automatically generated

 

Ordinary Meeting – Monday 29 July 2024

Page 0

 








A document with black text

Description automatically generated

A close-up of a document

Description automatically generated


Logo, company name

Description automatically generated

 

Ordinary Meeting – Monday 29 July 2024

Page 0

 


A document with text and images

Description automatically generated with medium confidence

A close-up of a document

Description automatically generated

A close-up of a document

Description automatically generated

A close-up of a document

Description automatically generated

A document with text on it

Description automatically generated


Logo, company name

Description automatically generated

 

Ordinary Meeting – Monday 29 July 2024

Page 0

 


A document with text on it

Description automatically generated

A document with text on it

Description automatically generated

A document with text on it

Description automatically generated

A document with text on it

Description automatically generated

A document with text on it

Description automatically generated

A document with text on it

Description automatically generated

A close-up of a document

Description automatically generated


Logo, company name

Description automatically generated

 

Ordinary Meeting – Monday 29 July 2024

Page 0

 


A document with text and numbers

Description automatically generated

A close-up of a document

Description automatically generated


Logo, company name

Description automatically generated

 

Ordinary Meeting – Monday 29 July 2024

Page 0

 


A document with text on it

Description automatically generated

A document with text and numbers

Description automatically generated

A screenshot of a document

Description automatically generated


Logo, company name

Description automatically generated

 

Ordinary Meeting – Monday 29 July 2024

Page 0

 


A close-up of a document

Description automatically generated

A close-up of a document

Description automatically generated

A document with text on it

Description automatically generated

A map of a river

Description automatically generated

A document with text on it

Description automatically generated

A map of land with green and blue areas

Description automatically generated

A close-up of a document

Description automatically generated

A document with text and numbers

Description automatically generated

A close-up of a document

Description automatically generated

A close-up of a document

Description automatically generated

A document with text on it

Description automatically generated


Logo, company name

Description automatically generated

 

Ordinary Meeting – Monday 29 July 2024

Page 0

 


A close-up of a letter

Description automatically generated


Logo, company name

Description automatically generated

 

Ordinary Meeting – Monday 29 July 2024

Page 0

 


A close-up of a document

Description automatically generated

A close-up of a survey

Description automatically generated

A close-up of a survey

Description automatically generated

A close-up of a document

Description automatically generated

A close-up of a document

Description automatically generated

A close-up of a document

Description automatically generated


Logo, company name

Description automatically generated

 

Ordinary Meeting – Monday 29 July 2024

Page 0

 


A document with text on it

Description automatically generated

A close-up of a list

Description automatically generated

A close-up of a document

Description automatically generated

A close-up of a document

Description automatically generated

A paper with text on it

Description automatically generated

A document with text on it

Description automatically generated

A document with text and images

Description automatically generated with medium confidence

A document with text on it

Description automatically generated

A paper with text on it

Description automatically generated

A document with text on it

Description automatically generated

A close-up of a paper

Description automatically generated

A paper with text on it

Description automatically generated


A paper with text on it

Description automatically generated

A document with text on it

Description automatically generated

A document with text on it

Description automatically generated

A document with text on it

Description automatically generated

A document with text on it

Description automatically generated

A paper with text on it

Description automatically generated

A paper with text on it

Description automatically generated


A paper with text on it

Description automatically generated

A document with text on it

Description automatically generated

A document with text on it

Description automatically generated


A paper with text on it

Description automatically generated

A close-up of a document

Description automatically generated


A paper with text on it

Description automatically generated

A white paper with black text

Description automatically generated


Logo, company name

Description automatically generated

 

Ordinary Meeting – Monday 29 July 2024

Page 0

 





Logo, company name

Description automatically generated

 

Ordinary Meeting – Monday 29 July 2024

Page 0

 































Logo, company name

Description automatically generated

 

Ordinary Meeting – Monday 29 July 2024

Page 0