Development & Environment Committee
Meeting Date: Tuesday, 13 July, 2021
Location: Council Chambers, City Administrative Building, Bridge Road, Nowra
Time: 5.00pm
Membership (Quorum - 5)
Clr Mitchell Pakes - Chairperson
Clr Bob Proudfoot
All Councillors
Chief Executive Officer or nominee
Please note: The proceedings of this meeting (including presentations, deputations and debate) will be webcast and may be recorded and broadcast under the provisions of the Code of Meeting Practice. Your attendance at this meeting is taken as consent to the possibility that your image and/or voice may be recorded and broadcast to the public.
Agenda
1. Apologies / Leave of Absence
2. Confirmation of Minutes
· Development & Environment Committee - 1 June 2021............................................. 1
3. Declarations of Interest
4. Mayoral Minute
5. Deputations and Presentations
6. Notices of Motion / Questions on Notice
Notices of Motion / Questions on Notice
DE21.62...... Notice of Motion - Companion Animals Act - Cats......................................... 7
DE21.63...... Notice of Motion - Nowra CBD - Parks Audit............................................... 10
7. Reports
City Futures
DE21.64...... Draft Amendment No. 45 - Shoalhaven Development Control Plan 2014 Chapter S8: Ulladulla Town Centre.................................................................................. 10
DE21.65...... Progressing the Planning - Moss Vale Road North Urban Release Area... 14
DE21.66...... Proposed Planning Agreement - Stage 1 Moss Vale Road South Urban Release Area - Lot 1 DP 949932 - SF10632...................................................................... 35
DE21.67...... Proposed Planning Agreement - Construction of Kent Lane, Huskisson.... 47
DE21.68...... Proposed Finalisation - Voluntary Planning Agreement (VPA15): Landscape Screen, South of Hitchcocks Lane, Berry.................................................................. 53
DE21.69...... Exhibition Outcomes and Finalisation - Planning Proposal - Huntingdale Park Estate Large Lot Residential Areas, Berry (PP060)................................................ 58
DE21.70...... Post Exhibition & Finalisation Report - Planning Proposal (PP040) - Housekeeping Amendment 2018 (Mapping) - Shoalhaven LEP 2014................................ 65
DE21.71...... Post Exhibition and Finalisation - Planning Proposal - Berry Heritage (PP056) 74
DE21.72...... Funding Offer & Commencement - Shoalhaven Local Heritage Assistance Fund 2021-2023..................................................................................................... 85
DE21.73...... Strategic Planning Works Program - Proposed 2021-2022 Version........... 88
DE21.74...... Proposed Submission - NSW Planning Reforms - Employment Zones Framework.................................................................................................................... 100
DE21.75...... Proposed Submission - Review of NSW Heritage Legislation.................. 113
DE21.76...... Community Participation Plan - Review..................................................... 124
City Development
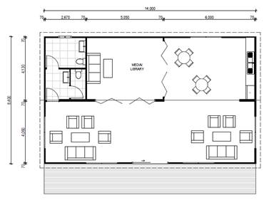
DE21.77...... DA20/2172 - 8 Homestead Lane Berry - Lot 101 DP 1057897................. 126
DE21.78...... DA20/1621 – 260 Mount Hay Road (Private), Broughton Vale – Lot 2 DP 4498 177
DE21.79...... DA21/1333 – 23 Parker Crescent Berry – Lot 331 DP 1226462............... 202
DE21.80...... DA21/1370 – 3 Cumberland Ave South Nowra – Lot 2 DP 260264.......... 232
DE21.81...... DA20/2322 – 12-16 The Wool Road & 5 Burton Street, Vincentia – Lots 1779 & 1780 DP 26434, Lot 5 DP 539867 & Lot 1 DP 615796...................................... 256
DE21.82...... DA19/1102 & DA21/1304 - 252 Princes Highway Ulladulla – Lot 1 DP 784732 281
DE21.83...... DA20/2061 – 60 Macleay Street Narrawallee – Lot 145 DP718994......... 305
Nil
|
|
Development & Environment Committee – Tuesday 13 July 2021 Page |
Development & Environment Committee
Delegation:
Pursuant to s377(1) of the Local Government Act 1993 (LG Act) the Committee is delegated the functions conferred on Council by the Environmental Planning & Assessment Act 1979 (EPA Act), LG Act or any other Act or delegated to Council, as are specified in the attached Schedule, subject to the following limitations:
i. The Committee cannot make a decision to make a local environmental plan to classify or reclassify public land under Division 1 of Part 2 of Chapter 6 of the LG Act;
ii. The Committee cannot review a section 8.11 or section 8.9 EPA Act determination made by the Council or by the Committee itself;
iii. The Committee cannot exercise any function delegated to the Council which by the terms of that delegation cannot be sub-delegated;
iv. The Committee cannot exercise any function which s377(1) of the LG Act provides cannot be delegated by Council; and
v. The Committee cannot exercise a function which is expressly required by the LG Act or any other Act to be exercised by resolution of the Council.
SCHEDULE
a. All functions relating to the preparation, making, and review of local environmental plans (LEPs) and development control plans (DCPs) under Part 3 of the EPA Act.
b. All functions relating to the preparation, making, and review of contributions plans and the preparation, entry into, and review of voluntary planning agreements under Part 7 of the EPA Act, as well as the preparation, entry into, and review of works in kind agreements that provide a material public benefit in part or full satisfaction of a condition imposed under Part 7 of the EPA Act.
c. The preparation, adoption, and review of policies and strategies of the Council in respect of town planning and environmental matters and the variation of such policies.
d. Determination of variations to development standards related to development applications under the EPA Act where the development application involves a development which seeks to vary a development standard by more than 10% and the application is accompanied by a request to vary the development standard under clause 4.6 of Shoalhaven Local Environmental Plan 2014 or an objection to the application of the development standard under State Environmental Planning Policy No. 1 – Development Standards.
e. Determination of variations from the acceptable solutions and/or other numerical standards contained within the DCP or a Council Policy that the Chief Executive Officer requires to be determined by the Committee
f. Determination of development applications that Council requires to be determined by the Committee on a case by case basis.
g. Review of determinations of development applications under sections 8.11 and 8.9 of the EP&A Act that the Chief Executive Officer requires to be determined by the Committee.
h. Preparation, review, and adoption of policies and guidelines in respect of the determination of development applications by other delegates of the Council.
i. The preparation, adoption and review of policies and strategies of the Council in respect to sustainability matters related to climate change, biodiversity, waste, water, energy, transport, and sustainable purchasing.
j. The preparation, adoption and review of policies and strategies of the Council in respect to management of natural resources / assets, floodplain, estuary and coastal management.
Minutes of the Development & Environment Committee
Meeting Date: Tuesday, 1 June 2021
Location: Council Chambers, City Administrative Building, Bridge Road, Nowra
Time: 5.00pm
The following members were present:
Clr Patricia White – Acting Chairperson
Clr Bob Proudfoot
Clr Amanda Findley
Clr Joanna Gash
Clr John Wells
Clr Kaye Gartner
Clr Nina Digiglio
Clr Annette Alldrick
Clr John Levett
Clr Andrew Guile - joined 6:35pm (remotely)
Clr Greg Watson
Clr Mark Kitchener
Mr Stephen Dunshea - Chief Executive Officer
|
Election of Chairperson |
|
RESOLVED (Clr Proudfoot / Clr Wells) MIN21.350 That Clr White be appointed as the Acting Chairperson for the meeting. CARRIED
|
|
Apologies / Leave of Absence |
A leave of absence was received from Clr Pakes.
|
Confirmation of the Minutes |
|
RESOLVED (Clr Findley / Clr Alldrick) MIN21.351 That the Minutes of the Development & Environment Committee held on Tuesday 11 May 2021 be confirmed. CARRIED
|
|
Declarations of Interest |
Nil
Deputations and Presentations
Mr Dan Thompson representing Cambewarra Ventures addressed the meeting and spoke in favour of the recommendation.
DE21.59 - DS20/1397 – 408 Bunkers Hill Road, Barrengarry – Lot 144 DP 751262 (page 50)
Arwen Apps and Sam Quick addressed the meeting and spoke against the recommendation.
Mr Matt Philpott of Allen Price & Scarratts addressed the meeting and spoke in favour of the recommendation.
DE21.61 - Section 138 Application - SF10632 –
Approved Subdivision, Moss Vale South URA – Lot 1 DP 949932 and Lot 3 DP
851823, Taylors Lane, Cambewarra
(page 83)
Mr Dan Thompson representing Cambewarra Ventures addressed the meeting and spoke in favour of the recommendation.
Reports
|
DE21.57 Proponent Initiated Planning Proposal - Taylors Lane, Cambewarra (Moss Vale Road South URA) - Exhibition Outcomes and Proposed Finalisation |
HPERM Ref: D21/188736 |
|
Recommendation (Item to be determined under delegated authority) That Council: 1. Adopt and finalise the Planning Proposal (PP054): Rezoning of Riparian Land at Lot 1 DP 949932, Taylors Lane, Cambewarra, as exhibited. 2. Forward PP054 to NSW Parliamentary Counsel’s Office to draft the required amendment to Shoalhaven Local Environmental Plan 2014. 3. Make the resulting amendment to the Shoalhaven Local Environmental Plan 2014 using Council’s delegation. 4. Adopt and finalise the amendment to Shoalhaven DCP 2014 Chapter NB3 - Moss Vale Road South URA as exhibited and give the required public notice advising of its commencement date. 5. Adopt and finalise the amendment to Shoalhaven CP 2019 as exhibited and give the required public notice advising of its commencement date. 6. Amend the exhibited IWCA Addendum Report to identify the subject land as “medium density / integrated housing”, consistent with the exhibited DCP amendment, then proceed to finalise it. 7. Advise key stakeholders, including the Proponent, adjoining landowners, the Cambewarra Residents and Ratepayers Association, development industry representatives and those who made a submission, of this decision and when the LEP, DCP and CP amendments will be made effective.
|
|
|
RESOLVED (Clr Findley / Clr Wells) MIN21.352 That Council: 1. Adopt and finalise the Planning Proposal (PP054): Rezoning of Riparian Land at Lot 1 DP 949932, Taylors Lane, Cambewarra, as exhibited. 2. Forward PP054 to NSW Parliamentary Counsel’s Office to draft the required amendment to Shoalhaven Local Environmental Plan 2014. 3. Make the resulting amendment to the Shoalhaven Local Environmental Plan 2014 using Council’s delegation. 4. Adopt and finalise the amendment to Shoalhaven DCP 2014 Chapter NB3 - Moss Vale Road South URA as exhibited and give the required public notice advising of its commencement date. 5. Adopt and finalise the amendment to Shoalhaven CP 2019 as exhibited and give the required public notice advising of its commencement date. 6. Amend the exhibited IWCA Addendum Report to identify the subject land as “medium density / integrated housing”, consistent with the exhibited DCP amendment, then proceed to finalise it. 7. Advise key stakeholders, including the Proponent, adjoining landowners, the Cambewarra Residents and Ratepayers Association, development industry representatives and those who made a submission, of this decision and when the LEP, DCP and CP amendments will be made effective. For: Clr Findley, Clr Gash, Clr Wells, Clr White, Clr Gartner, Clr Digiglio, Clr Alldrick, Clr Levett, Clr Watson, Clr Kitchener, Clr Proudfoot and Stephen Dunshea Against: Nil CARRIED |
|
|
Procedural Motion - Bring Item Forward |
|
RESOLVED (Clr Wells / Clr Gartner) MIN21.353 That the matter of item DE21.61- Section 138 Application - SF10632 – Approved Subdivision, Moss Vale South URA – Lot 1 DP 949932 and Lot 3 DP 851823, Taylors Lane, Cambewarra - be brought forward for consideration. CARRIED |
|
DE21.61 Section 138 Application - SF10632 – Approved Subdivision, Moss Vale South URA – Lot 1 DP 949932 and Lot 3 DP 851823, Taylors Lane, Cambewarra |
HPERM Ref: D21/210854 |
|
Recommendation (Item to be determined under delegated authority) That this report be received for information, noting, and endorsing the intention of staff to approve the subject S138 application for roadworks within the Taylors Lane road reserve which will also require tree removal from Taylors Lane. |
|
|
RESOLVED (Clr Findley / Clr Wells) MIN21.354 That this report be received for information, noting, and endorsing the intention of staff to approve the subject S138 application for roadworks within the Taylors Lane road reserve which will also require tree removal from Taylors Lane. For: Clr Findley, Clr Gash, Clr Wells, Clr White, Clr Gartner, Clr Digiglio, Clr Alldrick, Clr Levett, Clr Watson, Clr Kitchener, Clr Proudfoot and Stephen Dunshea Against: Nil CARRIED |
|
|
DE21.59 DS20/1397 – 408 Bunkers Hill Road, Barrengarry – Lot 144 DP 751262 |
HPERM Ref: D21/131520 |
|
Recommendation (Item to be determined under delegated authority) That modification application DS20/1397 to modify the design of the approved animal boarding and training establishment (equine education centre) at Lot 144 DP 751262, 408 Bunkers Hill Road, Barrengarry be approved subject to the recommended conditions of consent contained in Attachment 2 of this report.
|
|
|
Motion (Clr Gash / Clr Watson) That 1. Modification application DS20/1397 to modify the design of the approved animal boarding and training establishment (equine education centre) at Lot 144 DP 751262, 408 Bunkers Hill Road, Barrengarry be approved subject to the recommended conditions of consent contained in Attachment 2 of this report. 2. A draft condition be included in the consolidated determination notice, in Part G being Condition 52 b) (with Condition 52 renumbered to condition 52 a), as follows: a. Passing bays (a minimum of 2) must be provided within the Bunkers Hill Road reserve. The bays are to be positioned in a location selected in consultation with Council’s City Services and constructed to the relevant standards required by Council. The bays are to be constructed and completed prior to issue of an Occupation Certificate. b. Works in the Road Reserve require Council’s approval under section 138 of the Roads Act 1993. Note: A section 138 application should be made in well in advance of project completion (i.e. Occupation Certificate) and will require but not be limited to detailed drawings, traffic management details, insurance details, etc). Further information can be obtained from Council’s Development Services (Subdivision & Development Engineers). For: Clr Gash, Clr Watson and Clr Kitchener Against: Clr Findley, Clr Wells, Clr White, Clr Gartner, Clr Digiglio, Clr Alldrick, Clr Levett, Clr Guile, Clr Proudfoot and Stephen Dunshea lost |
|
|
Foreshadowed Motion (Clr Levett / Clr Digiglio) That Modification application DS20/1397 to modify the design of the approved animal boarding and training establishment (equine education centre) at Lot 144 DP 751262, 408 Bunkers Hill Road, Barrengarry be refused as it is contrary to public interest specifically with respect to traffic and safety issues.
|
|
|
RESOLVED (Clr Levett / Clr Digiglio) MIN21.355 That Modification application DS20/1397 to modify the design of the approved animal boarding and training establishment (equine education centre) at Lot 144 DP 751262, 408 Bunkers Hill Road, Barrengarry be refused as it is contrary to public interest specifically with respect to traffic and safety issues. For: Clr Findley, Clr Wells, Clr White, Clr Gartner, Clr Digiglio, Clr Alldrick, Clr Levett, Clr Guile, Clr Proudfoot and Stephen Dunshea Against: Clr Gash, Clr Watson and Clr Kitchener CARRIED |
|
Items marked with an * were resolved ‘en bloc’.
|
DE21.58 Natural Areas Volunteers - Parkcare Action Plans - Carrington Park / George Street Park / Greenwell Point |
HPERM Ref: D21/167911 |
|
RESOLVED* (Clr Proudfoot / Clr Gartner) MIN21.356 That Council 1. Endorse the updated and new “Parkcare” plans for a. Carrington Park – Worrigee (UPDATED) b. George Street Park / Berry & District Garden Club – Berry (NEW) c. Greenwell Point – (UPDATED) 2. Continue to allocate ongoing annual operating funding of $400 (GST exclusive and CPI adjusted) for each Parkcare Group, totalling $1,200 to cover safety PPE, miscellaneous materials, waste disposal and purchase minor tools. For: Clr Findley, Clr Gash, Clr Wells, Clr White, Clr Gartner, Clr Digiglio, Clr Alldrick, Clr Levett, Clr Guile, Clr Watson, Clr Kitchener, Clr Proudfoot and Stephen Dunshea Against: Nil CARRIED
|
|
|
DE21.60 DA16/1465 - 173 Kinghorne St and 2 & 4 Albatross Rd Nowra - Lot 1, 29 and 30 DP 25114 |
HPERM Ref: D21/203656 |
|
RESOLVED* (Clr Proudfoot / Clr Gartner) MIN21.357 That Council receive this report as an update on the progress of the assessment of DA16/1465 and in satisfaction of the 11 May 2021 resolution of the Development & Environment Committee (DE21.50). For: Clr Findley, Clr Gash, Clr Wells, Clr White, Clr Gartner, Clr Digiglio, Clr Alldrick, Clr Levett, Clr Guile, Clr Watson, Clr Kitchener, Clr Proudfoot and Stephen Dunshea Against: Nil CARRIED
|
|
|
DE21.56 Proposed Amendments to Chapter G21: Car Parking and Traffic of Shoalhaven DCP 2014 |
HPERM Ref: D21/179024 |
|
Recommendation (Item to be determined under delegated authority) That Council: 1. Endorse and proceed to publicly exhibit the proposed amendments to Chapter 21: Car Parking and Traffic of Shoalhaven Development Control Plan 2014 as outlined in Attachment 1, for a period of at least 28 days as per legislative requirements. 2. Receive a further report following the conclusion of the public exhibition period to consider feedback received and enable finalisation of the amendment.
3. Notify key stakeholders (including CCBs and Development Industry Representatives) of the exhibition arrangements, in due course. |
|
|
RESOLVED (Clr Findley / Clr Wells) MIN21.358 That the item be deferred to the Ordinary Meeting on Tuesday 29 June 2021. For: Clr Findley, Clr Gash, Clr Wells, Clr White, Clr Gartner, Clr Digiglio, Clr Alldrick, Clr Levett, Clr Guile, Clr Watson, Clr Kitchener, Clr Proudfoot and Stephen Dunshea Against: Nil CARRIED
|
|
|
DE21.57 Proponent Initiated Planning Proposal - Taylors Lane, Cambewarra (Moss Vale Road South URA) - Exhibition Outcomes and Proposed Finalisation |
HPERM Ref: D21/188736 |
|
Item dealt with earlier in the meeting see MIN21.352
|
|
|
DE21.58 Natural Areas Volunteers - Parkcare Action Plans - Carrington Park / George Street Park/ Greenwell Point |
HPERM Ref: D21/167911 |
|
Item dealt with earlier in the meeting see MIN21.356
|
|
|
DE21.59 DS20/1397 – 408 Bunkers Hill Road, Barrengarry – Lot 144 DP 751262 |
HPERM Ref: D21/131520 |
|
Item dealt with earlier in the meeting see MIN21.355
|
|
|
DE21.60 DA16/1465 - 173 Kinghorne St And 2 & 4 Albatross Rd Nowra - Lot 1, 29 and 30 DP 25114 |
HPERM Ref: D21/203656 |
|
Item dealt with earlier in the meeting see MIN21.357
|
|
|
DE21.61 Section 138 Application - SF10632 – Approved Subdivision, Moss Vale South URA – Lot 1 DP 949932 and Lot 3 DP 851823, Taylors Lane, Cambewarra |
HPERM Ref: D21/210854 |
|
Item dealt with earlier in the meeting see MIN21.354
|
|
There being no further business, the meeting concluded, the time being 7:32pm.
Clr White
ACTING CHAIRPERSON
|
|
Development & Environment Committee – Tuesday 13 July 2021 Page 0 |
DE21.62 Notice of Motion - Companion Animals Act - Cats
HPERM Ref: D21/280734
Submitted by: Clr John Levett
Purpose / Summary
The following Notice of Motion, of which due notice has been given, is submitted for Council’s consideration.
Background
The Companion Animals Act
Regulation of domestic cats by Councils is guided in NSW by the Companion Animals Act 1998, which essentially permits cats to roam freely beyond the perimeter of the owners property as long as they are microchipped, registered and wearing a collar. This is out of step with the regulations relating to dogs and prevents the impounding of a cat on the loose unless an order has been issued nominating the animal as a “nuisance cat” (Section 31). There are a number of reasons why a cat can be declared a “nuisance” but it’s a process that is cumbersome, slow and impractical and effectively puts the onus on the “complainant” to make the case when the control of the cat should be the responsibility of the owner. Under the Act, cats are prohibited in any public place set apart by the local authority for the protection of wildlife and where signs are conspicuously displayed to that effect. They are also restricted in areas where food is prepared or consumed. Any person may seize a cat that is in a prohibited place “for the cat’s own protection”.
Cat Populations in Australia
More than a quarter of Australian households have pet cats and the population of domestic cats is somewhere around 3.8 million… about 70 percent of these are permitted to roam and hunt. More difficult to determine is the population of feral cats but estimates are between two and six million. (The Conversation, 14 May 2020)
The Impact of Cats on Native Animals
Native animals don’t generally have high reproductive rates so they are susceptible to species decline because of the efficiency of the cat as a predator. Feral cats have been implicated in at least 25 mammal extinctions in Australia, they kill around 2 billion birds, reptiles and mammals a year, and domestic cats eliminate about 230 million animals each year. (The Guardian, 6 January 2021)
The Australian Government is developing a new threatened species strategy which is expected to be released in late 2021. About 844,000 cats were culled between July 2015 and June 2018. Cats hunt instinctively and not necessarily for food, their presence alone puts native animals under stress, effecting their capacity to reproduce and raise young.
Cats Carry Diseases
Toxoplasmosis is a serious disease resulting from infection with a common parasite found in cat faeces. There is no vaccination against the disease and it can live in the environment for many months, contaminating soil, sandboxes, water, fruits, vegetables, paddock grass or any place an infected cat may have defecated. Toxoplasmosis can cause severe illness in infants infected in utero or in people with a weakened immune system and can cause abortion, stillbirth or neonatal death among livestock, especially sheep. Native animals particularly susceptible are those that forage at ground level such as: wallabies, bettongs, potoroos and bandicoots. Treatment of infected animals is invariably unsuccessful.
Summary
New South Wales is behind the ACT and other states in cat control. Most are pushing ahead with regulations to confine cats to the dwelling of the owner or a race in the yard. After 1 July 2022 all newly acquired cats in the ACT must be confined to the owner’s property as is the case in Queensland. The Victorian and South Australian governments have given the responsibility for regulation over to individual councils which are generally introducing curfews.
Knox City Council for example, south east of Melbourne and bordering the Dandenong Ranges National Park, trialled a sunset to sunrise curfew in 2020 and consulted with residents through the process. Of the 720 respondents, 86 percent supported the night time curfew and in fact indicated a greater preference for a full 24 hour curfew which will be introduced on 1st October this year.
Tasmania and WA regulations are slightly different and somewhat vague. Cats are technically still free to roam but any “unowned cat” can be captured by any “authorised person” on public property or any person on private property. As in other jurisdictions, the process that follows leads to the cat being returned to the owner, rehomed or euthanised.
The Companion Animals Act in NSW needs reform:
· To keep it in step with other states.
· To make cat owners responsible for the control of their pets in the same way dog owners are.
· To reduce the rate of extinction and species decline in native animals.
· To prevent the spread of cat borne diseases.
· To protect domestic cats, which are an important companion animal, from death and injury when they stray into the foreign environment outside the safety of the owner’s home.
|
|
Development & Environment Committee – Tuesday 13 July 2021 Page 0 |
DE21.63 Notice of Motion - Nowra CBD - Parks Audit
HPERM Ref: D21/281411
Submitted by: Clr John Levett
Purpose / Summary
The following Notice of Motion, of which due notice has been given, is submitted for Council’s consideration.
|
|
Development & Environment Committee – Tuesday 13 July 2021 Page 0 |
DE21.64 Draft Amendment No. 45 - Shoalhaven Development Control Plan 2014 Chapter S8: Ulladulla Town Centre
HPERM Ref: D21/165066
Department: Strategic Planning
Approver: Robert Domm, Director - City Futures
Attachments: 1. Draft DCP Chapter S8: Ulladulla Town Centre (under separate cover) ⇨
Reason for Report
· Present Draft Amendment No. 45 to Shoalhaven Development Control Plan (DCP) 2014 Chapter S8: Ulladulla Town Centre - the amendments reflect building height and zoning changes made over the southern part of Ulladulla town centre in Shoalhaven LEP 2014 via Amendment No. 33 which took effect on 26 June 2020, as well as other minor updates of a more ‘housekeeping’ nature;
· Obtain endorsement to place the Draft Amendment on public exhibition; and
· Obtain a resolution to prepare a further housekeeping amendment to Chapter S8 to review and update other matters relevant to the broader Ulladulla town centre area including general context, built form and desired character, maps and figures and other minor matters.
Options
1. As recommended.
Implications: This is the preferred option as it will enable Chapter S8 to be updated to address the changes to building heights and zones in the southern part of the Ulladulla Town Centre, which took effect in June 2020 with Shoalhaven LEP 2014 (Amendment No. 33). It will also enable other minor changes of a ‘housekeeping’ nature to be made to resolve inconsistencies with the LEP, update references to external policy / guidelines and to enhance the overall readability of the Chapter. Staff will commence the preparation of a more holistic housekeeping amendment to Chapter S8 to review and update provisions that are relevant to the broader Ulladulla town centre area.
2. Adopt an alternative recommendation.
Implications: This will depend on the extent of any changes and could delay the implementation of updated DCP provisions that will address recent changes to building heights and zones in the southern part of the Ulladulla Town Centre and improve the overall readability of the Chapter.
3. Not adopt the recommendation.
Implications: The current DCP chapter would remain as is and be inconsistent with the current LEP building heights and zones that came into effect with Shoalhaven LEP 2014 (Amendment No. 33). This may create uncertainty for developers and the community and lead to undesirable development outcomes. Other necessary updates and changes to improve the overall readability of the Chapter would not be made.
Background
On 5 May 2020, Council resolved (MIN20.307) to adopt and finalise the Planning Proposal (PP030) relating to increased LEP building heights and zoning changes in the southern part of the Ulladulla Town Centre (the land shown in Figure 1). The resulting LEP Amendment (No.33) took effect on 26 June 2020.
The general increase to LEP building heights implemented the recommendations of the Ulladulla Building Height Review Report (Atlas Urban) commissioned by Council in June 2017. This report identified the changes necessary to encourage the continued development of the town centre as a vibrant, mixed-use centre with a diversity of shops and businesses and quality residential and holiday apartments.
The land on the corner of Deering Street and St Vincent Street was also rezoned from B5 Business Development to B4 Mixed Use at the request of the owners of those sites to enable them to be possibly redeveloped for a mixed-use development of shops and businesses on the ground floor with apartments above.

Figure 1: PP030 Subject land
Arising from the zoning and building height amendments, Council also resolved, in part, to:
“5. Commence the preparation of a Draft Amendment to Chapter S8: Ulladulla Town Centre of Shoalhaven DCP 2014 to reflect the building height and zoning changes and address resulting matters such as general context, built form and character, views and vistas, setbacks and height references in the subject area, with the amendment to be reported to Council prior to placing it on public exhibition.” (MIN20.307)
As a result, an amendment to DCP 2014 Chapter S8: Ulladulla Town Centre has been prepared to reflect the building height and zoning changes in the southern part of the Town Centre and update controls addressing views and vistas, setbacks and height references. The amendment includes a number of other more minor ‘housekeeping’ changes to controls applicable to the broader Ulladulla Town Centre area to resolve inconsistencies with the LEP, update references to external policy/guidelines and to enhance the overall readability of the Chapter.
The draft DCP Chapter S8 is provided as Attachment 1. The Table of Changes on pages 1 to 3 of the attachment describes the proposed amendments in detail and a summary of them is also provided below:
· Maps 1 – 5: Update to reflect the current LEP building heights and zoning in the southern part of Ulladulla Town Centre arising from the PP.
· View Sharing: Insert an updated acceptable solution for view sharing which reflects current Land & Environment Court planning principles and is consistent with other DCP Chapters (G12: Dwelling Houses and Other Low Density Residential Development, Chapter G13: Medium Density and Other Residential Development and V3: Miscellaneous Site Specific Provisions – Ulladulla-Mollymook Gateway Precinct).
· Map 3 Setbacks: Extend the ‘5m average setback’ control to the entire block north of Deering Street between St. Vincent Street and Jubilee Avenue, to reflect existing setbacks specified in the supporting Table 1 Setbacks and to reflect the increases to building height along Deering Street resulting from the PP.
· Delete certain text / requirements that are now separately addressed in SEPP 65, the Apartment Design Guide (ADG) and Building Code of Australia (BCA).
· Correction / Deletion of typographical errors, grammatical errors and out of date references, policy, guidelines and legislation throughout the chapter.
Proposed Future Housekeeping Amendment
The Ulladulla Building Heights Review Report prepared for the PP included recommendations to review and further update DCP provisions including general context, built form and desired character, to support the proposed increases in building height. These provisions are relevant to the broader Ulladulla Town Centre area (not just the southern part). During the initial review of Chapter S8 Council staff identified other provisions applicable to the broader Town Centre area which require minor updates and corrections.
As such, it is intended that a future housekeeping amendment will also be prepared to review and update these provisions, to be undertaken following the review of the Milton-Ulladulla Structure Plan (expected to be completed in mid-2022). At this stage, the following potential amendments have been identified for this future housekeeping amendment:
1. Review and update the context / built form / character statements for each Town Centre precinct in section 3. In particular:
a. Consider whether the maritime theme / identity should be retained and, if so, include criteria / guidance for built form, building appearance, materials and finishes (the maritime theme can be widely interpreted at present);
b. Include imagery to illustrate best practice examples, desired building forms etc.
2. Include a context / built form / character statement for Precinct 7 Medium Density Residential Precinct in section 3 (Precinct 7 does not currently have one).
3. Make consequential updates to built form and character controls throughout the chapter to reflect items 1 and 2.
4. Review and update maps, figures and provisions where needed, for example:
a. Map 6 Infrastructure Improvements Concept Plan (update where works have been completed, have changed or are no longer required);
b. 5.4.4 Soil and Stormwater Management – given the recent update of DCP Chapter G2 Sustainable Stormwater Management and Erosion/Sediment Control, the provisions in 5.4.4 are possibly redundant or may need revision.
5. 5.2.4 Building roofscapes: Consider limiting the height of building parapets and other roof features that exceed the LEP building height limit. Under LEP clause 5.6 architectural roof features are permitted to exceed the maximum building height but there is no limit on how far they may exceed it by.
6. 5.2.2 Building form / orientation: review the controls to be more flexible and encourage creative design solutions.
There may also be a need to respond to any outcomes from the broader Structure Plan review.
This amendment would also include other minor changes to update provisions, correct errors and clarify provisions identified during the review.
The detail of any future housekeeping amendment would be reported to Council for consideration and endorsement prior to it proceeding further and being placed on public exhibition.
Community Engagement
If accepted by Council, the Draft Amendment to DCP Chapter S8 in Attachment 1 will be publicly exhibited for at least 28 days in accordance with legislative requirements. Key stakeholders, including affected and adjoining landowners, the Ulladulla & Districts Community Forum and development industry representatives, will be directly notified of the exhibition arrangements. The outcomes of the exhibition will then be reported back to Council for further consideration.
Policy Implications
The Draft Amendment to DCP Chapter S8 is required to reflect the changes to building heights and zones in the southern part of the Ulladulla Town Centre, which took effect in June 2020 with Shoalhaven LEP 2014 (Amendment No. 33). It will also enable other minor changes of a ‘housekeeping’ nature to be made to resolve inconsistencies with the LEP, update references to external policy / guidelines and improve the operation of Shoalhaven DCP 2014.
Financial Implications
The Draft Amendment will be resourced within the existing Strategic Planning budget.
|
|
Development & Environment Committee – Tuesday 13 July 2021 Page 0 |
DE21.65 Progressing the Planning - Moss Vale Road North Urban Release Area
HPERM Ref: D21/221014
Department: Strategic Planning
Approver: Robert Domm, Director - City Futures
Attachments: 1. Indicative Layout Plan ⇩
2. Summary of Agency Submissions ⇩
3. Additional Areas of Biodiversity Value (E Zoned Areas) ⇩
Reason for Report
· Provide an update on the detailed planning of the Moss Vale Road North Urban Release Area (URA).
· Obtain endorsement to continue the work required to “release” the subject land for subdivision and housing delivery.
This involves the continued preparation and public exhibition of the package of planning documents required to guide the actual development of the URA and delivery of the infrastructure required to support the future community. This consists of a Planning Proposal (PP) recommending amendments to the current planning controls, a set of development controls (as a chapter in the City-wide Development Control Plan), and a development contributions framework to secure the required infrastructure.
· Obtain endorsement to organise the naming of a new suburb encompassing the release area and adjoining Moss Vale Road South URA.
This requires the public exhibition of short-listed suburb names, before settling the suburb arrangements (name and boundary) through the NSW Geographical Names Board’s formal processes.
· Provide an update on the delivery of infrastructure to support the two URAs.
Options
1. Adopt the recommendation.
Implications: This is the preferred option as it will enable the required planning documents required to “release” the site, guide future development, and coordinate the delivery of required infrastructure to keep moving to finalisation. It also allows new suburb arrangements to be settled to distinguish the new urban area from surrounding communities and provide efficiencies for the emergency services, and postal and delivery services.
The timely delivery of the URA and new residential land to the market is a high priority project confirmed by Council in the Strategic Planning Works Program and previous resolutions.
2. An alternative resolution.
Implications: Any implications are subject to the nature of the resolution, but decisions requiring further analysis, studies, or setting an alternative outcome for the URA, will require time, and potentially delay the delivery of the URA. The requirement to complete the PP by December 2021 would most likely not be met as a result.
3. Not support a recommendation.
Implications: This would cease current work and the planning controls currently applying to the URA would be maintained. These include the requirement for a development control plan to be prepared and arrangements for infrastructure to be settled before any subdivision or development could occur (applications for Council’s development consent could not be determined).
Background
The URA was originally identified as a ‘New Living Area’ in the Nowra-Bomaderry Structure Plan (2006), to provide a potential 1,300 dwellings. The proposed area of residential land was changed/increased through the Shoalhaven Local Environmental Plan (LEP) 2014 process that confirmed its land use zones and related provisions guiding its release.
In 2019, the Moss Vale North Owners Group, comprising major landowners within the release area, submitted an alternative outcome for the URA for Council’s consideration. This sought to bring the release of the area forward to deliver about 2,500 dwellings (an increase on previous/existing indications), adjust the size and function of the retail centre, and refine the zoning of environmentally sensitive areas. The proposal was supported by several technical studies. On considering the proposal, Council resolved to work with the Owners Group, giving “in principle” support to use their submission as the basis for the preparation of planning documents for the release area.
In October 2020, Council considered a progress report on the delivery of this significant URA including the outcomes of additional technical studies (commissioned for Council) to build on the studies provided by the Owners Group or refine the outcomes. These studies included transport infrastructure and road design, retail demand analysis, a safety management study for the high-pressure gas pipeline (traversing part of the release area), identification of community infrastructure and a landscape assessment. Council endorsed the continued planning for the site enabling:
· Submission of a PP to the NSW Government’s Gateway process,
· Preparation of draft development controls,
· Work to commence on identifying required infrastructure, and
· Settling of indicative suburb naming arrangements.
Council received a favourable Gateway determination for the PP in December 2020 setting several conditions requiring extra justification for the recommended changes to the current planning controls and setting out consultation requirements for NSW Government Agencies and the community. The current Determination expires in December 2021, a copy of which is available on the NSW Planning Portal (link to website). The required consultation with NSW Government Agencies (a priority task in the Determination) is well progressed and continuing, with results summarised later in this report and the relevant attachment. Final consultation with the NSW Rural Fire Service (RFS) and the NSW Natural Resources Access Regulator (NRAR) is still to occur and may identify further matters to be addressed/resolved.
In response to the Gateway determination, additional technical studies have been commissioned to build on earlier work. These respond to contemporary requirements (such as updated bushfire planning guidance), resolve feedback from NSW Government Agencies, and respond to matters raised by the Owners Group (e.g. the location of the retail centre and selection of water management infrastructure). Completed studies include:
· Independent reports – design and optimal location of the proposed retail centre.
· Contemporary bushfire report identifying asset protection zones for future development (from future riparian corridors and open space).
· Riparian restoration plans for future riparian corridors.
· Funding models for the ongoing management of public land dedicated through the subdivision of the release area.
In late June 2021, Council’s Strategic Planning Working Party was briefed on the outcomes of the above studies and the refinements to indicative development outcome outlined in this report.
Other studies underway, but not yet finally completed, include:
· Water management study – inform the selection and design of infrastructure to manage stormwater flows and water quality.
· Flood modelling – inform the management of residual flood risk and possible earth works.
· Ecological analysis – support proposed adjustments to the planning controls for riparian corridors.
· Concept design and costing of road, drainage and community infrastructure and other related tasks to inform the contributions framework (legal advice, land valuations, staging considerations etc.).
Once completed this work will provide a significant, comprehensive evidence base informing and justifying the development outcome and associated package of planning documents.
The remaining work set out above focusses on matters managed by development controls and will inform the development contributions framework. Significant changes to the currently proposed outcome and the PP are not anticipated. The formal position of the remaining NSW Government Agencies (RFS and NRAR) is unknown at this point.
Proposed Development Outcome
The current indicative layout plan for the URA is provided as Attachment 1. This indicative outcome has been informed by the recommendations of necessary technical studies and NSW Government Agencies’ feedback to date on the PP. Current work and additional feedback from NSW Government Agencies may result in further changes. Notable highlighted adjustments/revisions include:
· To implement the recommendations of independent reports on the retail centre:
o Locating the centre close to the intersection of Bells and Abernethys Lane (two collector roads) and a unique setting close to a retained natural area and waterbody.
o The proposed structure of the centre to include a retail core and surrounding activation precincts to deliver flexibility for a range of residential and business uses, provide opportunities for early activation of the centre and strengthen its trading once delivered.
· Locating the area allowing small lots (a measure to increase housing diversity) to complement the revised centre location. Approximately 27 hectares of the URA is provided with the ability to deliver smaller lots (subject to demand etc), principally within the walking catchment of the retail centre and areas with high amenity (open space and riparian corridors).
· The identification of active and passive open space in a variety of locations, including close to the retail centre (co-locating community and retail uses), connected to riparian corridors and containing remnant stands of significant vegetation.
· In response to the feedback received from the Environment, Energy and Science Division of the NSW Department of Planning, Industry and Environment (DPIE), the adjustment of two park locations and an additional large lot residential area (previously general residential) to help secure three remnant stands of significant vegetation. This will promote the retention of this vegetation, its biodiversity values, and its contribution to urban vegetation in the release area by providing space for its retention in public open space and the gardens of large lots.
Planning Proposal
The PP has continued to be refined in response to the recommendations of technical studies as they are completed and as the feedback from NSW Government Agencies is received. The Gateway determination set several conditions, including consultation and public exhibition requirements, and the need for DPIE approval of the PP prior to public consultation. DPIE’s Regional Team have been provided with progress updates and copies of technical studies to facilitate its accelerated consideration of the PP when required. It also confirmed that a public hearing is not required, and the plan making authority has been delegated to Council, which will assist with the faster finalisation of the new planning controls.
Consultation with NSW Government Agencies commenced in January 2021. NRAR and NSW Fisheries are still to provide feedback. RFS have been involved in discussions and formal feedback is still required. The delay is understood to be in part due to resourcing constraints and the following measures have been pursued to help secure/facilitate feedback:
· Examination of the Agencies’ published requirements and additional information to justify/confirm the proposed changes to planning controls applying to riparian corridors.
· Assistance requested from the DPIE’s Planning Delivery Unit – a team set up to facilitate agency feedback.
Consultation with RFS has recently commenced following recent receipt of a contemporary bushfire study. It is anticipated this may result in adjustments to asset protection zones adjacent to existing and proposed natural areas and riparian corridors to manage the risk associated with these areas as they are revegetated (naturally and planned) and the fuel load increases. Options are being investigated to provide appropriate asset protection zones in the design of the roads and adjacent verges (public and private property). This may have an impact on where and how development can occur. The ultimate outcome will be outlined in the documents proposed for public exhibition.
All other Government agencies have responded, with a summary of their submissions provided as Attachment 2. Full copies of submissions are included in the PP. Significant feedback and resultant adjustments to the PP include:
1. NSW Heritage - require an Aboriginal Cultural Heritage Assessment to support the PP.
The PP has been updated to confirm the recommendation of the Aboriginal Archaeological Study (prepared by NSW Archaeology Pty Ltd in 2018) which noted that the URA is already zoned and that assessments be carried out to support future development applications.
This approach has also been confirmed with DPIE’s Regional Team.
2. Environment, Energy and Science Division (part of DPIE) – requested that environmental conservation zones be applied to three areas of moderate-high condition vegetation currently proposed to be zoned residential (identified in Attachment 3).
Several options were examined in response, from applying the requested zone to the identified areas through to the application of a “sensitive vegetation overlay” in the LEP requiring additional development considerations.
An environmental zone would potentially provide the best protection for the vegetation; however, it would reduce the potential development area. It also does not reflect the fragmented nature of the vegetation (e.g. it is not connected to riparian corridors). Conversely, the use of an overlay in other new subdivision areas has not necessarily resulted in the retention of vegetation.
The adjustment of two park locations and an additional large lot residential area and a supporting sensitive vegetation overlay however provides a potentially balanced approach to manage this request. It promotes the retention of the vegetation in open space and gardens and allows development, albeit on larger lots resulting in the loss of about 17 lots. It also “switches off” the alternative development approval pathway provided by the NSW Government’s Complying Development Code from these areas. The PP has been updated accordingly and now identifies necessary changes to the land use zones, minimum lot size, and vegetation overlay maps.
Other required and recommended amendments include:
· Additional “permitted uses” to provide for extra commercial uses in the Activation Precincts proposed to surround the retail centre and medium density residential areas adjacent to the centre to encourage the delivery of units and apartments (up to 3 storeys) over detached dwellings. These outcomes aim to provide density to support the centre and respond to the recommendations of the retail related studies.
· Consequential rezoning of approximately 6,500m2 of an area previously proposed to be zoned environmental conservation to residential as it does not contain biodiversity resources.
· Minor adjustment to the width of the scenic buffer along Moss Vale Road to reflect the recommendations (road network layout) of the technical studies.
The draft set of development controls provided by the Owners Group has been continually refined in response to the recommendations of the technical studies and, more recently, through a comprehensive collaborative review with relevant Council Departments (asset custodians, transport, drainage and subdivision, recreation and development planners) to enable a good balanced development outcome.
This work has resulted in the preparation of a draft Development Control Plan (DCP) Chapter to guide the future development of the URA. This document focuses on:
· Subdivision and staging.
· Residential development, including the promotion of a variety of housing types to provide housing diversity and help meet the needs of the future community.
· The street network and road design to provide a connected, safe, and efficient movement network integrating with shared user pathways and public transport.
· The design, function, and activation of the village centre.
· The design of open space and natural areas, active and passive recreation, and the protection and enhancement of riparian corridors and other vegetation.
· A landscaping strategy.
· Management of environmental risks (flooding and bush fire).
· Crossings of and development in the vicinity of the high-pressure gas pipeline.
Remaining work underway will confirm final controls for staging of subdivision and management of environmental risks. It is intended to publicly exhibit the draft DCP chapter in support of the PP.
Both the updated PP document and draft DCP document (and the Council commissioned studies that have informed them) are available at this link
Development Contributions Framework
The purpose of the proposed development contributions framework is to identify the full range and cost of physical road, drainage, and community infrastructure (parks, playgrounds, and other community facilities) needed to support the future community in this location. The framework will also examine potential mechanisms to secure the funding for the infrastructure.
The selection of infrastructure is informed by the technical studies, for example the transport study, community infrastructure report and yet to be completed water management study. However, the NSW Government’s current infrastructure contribution reform (foreshadowed but not yet finalised) and current “cap” on development contributions ($20,000 per lot) will heavily influence the final list of infrastructure and selection of mechanisms (funding and otherwise) to help its delivery. Negotiations are currently underway to increase the cap for the release area to $30,000 per lot.
This uncertainty means it is not yet possible to settle a potential development contributions framework for the URA at this point. As such it is proposed to bring a further report back to Council once the detailed results of the reform and negotiations are known. This will set out and seek the public exhibition of a proposed framework providing a list of infrastructure, indicative costings, and a range of funding mechanisms. It is however intended to exhibit as much of the proposed framework as possible alongside the PP and draft DCP Chapter and aim to ultimately finalise all three documents at the same time.
Current work focuses on the final selection of infrastructure, as well as concept designs and costings. It is also examining:
· Potential contribution mechanisms, such as a new development contributions plan, Voluntary Planning Agreement(s), and satisfactory arrangement development controls.
· Other funding sources such as special rate variations and future rounds of the NSW Government’s Housing Acceleration Fund and Low-Cost Loan initiatives.
· Monetary contributions towards the expansion and/or upgrade of existing district or regional facilities and services.
· Necessary land acquisitions.
· Mechanisms, including funding, for the ongoing management of natural areas and bushfire asset protection zones, and
· Indicative triggers or timing for the delivery of infrastructure and payment of contributions.
Suburb Naming
Consultation with the NSW Geographical Names Board (GNB) confirmed its preference for new suburb arrangements for the two Moss Vale Road URAs to:
· Distinguish between the new URAs and adjacent rural areas, helping to contribute to the identity of the new community.
· Capture the URAs, noting the size, both area and number of proposed homes, and range of other uses (retail and open space).
· Provide clear and consistent addressing for future residents, emergency services and postal and delivery services.
The GNB has a policy preference for the use of indigenous naming options and through research and collaboration with the Nowra Local Aboriginal Land Council and Council’s Aboriginal Advisory Committee the following options have been identified:
· Badagarang (Bad-a-garang) meaning Eastern Grey Kangaroo – a Dharawal Totem.
· Gumbeengang (Goom-been-gang) a traditional name for Cambewarra Mountain.
To enable the new suburb naming to be settled, the two options now need to be publicly exhibited for community feedback (28 days) and a future report presented for Council’s consideration on the outcome of this.
Once a preferred name has been selected, it will be progressed through the GNB’s process, which includes a separate and independent community engagement exercise. An indicative boundary for the new suburb will also be settled with the GNB.
Infrastructure Delivery
Work is well advanced on the planning and delivery of road, water and wastewater infrastructure to service the two URAs. Council is delivering the infrastructure with grant funding from the NSW Government’s Housing Acceleration Fund (HAF). This includes:
· Water: Delivery of new mains, upgrades and extensions to existing mains, new pumping stations, and a new reservoir. Work will be delivered in stages from 2022-2029 in response to demand. Construction of lead-in mains along Moss Vale Road and Main Road has commenced and will provide interim connections.
· Wastewater: Delivery of new mains, three new pumping stations, and connections to existing wastewater treatment plant is scheduled for delivery between 2022-24.
· Release area roundabout: Delivery of the first major road intersection providing access for the URA’s from Moss Vale Road. The developer of Moss Vale Road South - Stage 1 DA will construct the roundabout with Transport for NSW and Council oversight. Construction is expected to be completed by the end of 2021.
Next steps
On completion of the remaining technical studies and consultation with NSW Government Agencies, the PP and Draft DCP Chapter will be finalised for public exhibition. Prior to the exhibition occurring the PP will be submitted to DPIE for review and approval (a requirement of the Gateway determination). To allow amendments to these documents in response to the technical studies, agency responses, and any further direction from DPIE, it is recommended that delegation be given to the CEO (Director – City Futures) to make any necessary changes. This will enable this priority project to keep moving by avoiding the need for a further Council decision until the public exhibition is complete, helping to progress the delivery of the release area within the remaining timeframe set by the current Gateway determination (December 2021).
The proposed reports to future Council meetings include:
· Details of the proposed development contributions framework, including proposed public exhibition arrangements.
· Results of the public exhibition of the PP and draft DCP.
· Results of the public exhibition of the suburb naming options.
· Results of the public exhibition of the proposed development contributions framework.
Interim updates on the PP, draft DCP and suburb naming will be issued as key milestones are reached, such as on the exhibition process and notification arrangements at the start of exhibition periods.
Community Engagement
Monthly updates are issued to the Moss Vale Road North Owners Group and other landowners within the release area. On 9 July 2021, a meeting was held with landowners (all were invited) to provide an update ahead of this meeting and outline the changes to the indicative development outcome.
The Gateway determination requires the formal public exhibition of the PP for a minimum period of 28 days. It is proposed to publicly exhibit the draft DCP chapter and as much of the proposed development contributions framework as possible at the same time. The complete proposed development contributions framework will be the subject of a separate exhibition when all the detail is known.
The exhibition of suburb naming options will occur separate from the planning documents to ensure suburb arrangements are settled prior to the delivery of a substantial number of homes in the two release areas.
This project has a dedicated page on Council’s “Get Involved” engagement website:
www.getinvolved.shoalhaven.nsw.gov.au/planning-for-growth-nowra-and-bomaderry.
This will be the focus of ongoing community engagement and will provide copies of the planning documents, exhibition information and advice on how to make a submission and seek more information. Notification of affected and adjacent landowners will also occur, and relevant updates will be issued to relevant Community Consultative Bodies.
Policy Implications
The adjusted indicative development outcome outlined in this report builds on the Owner Group’s proposal to facilitate the delivery of a high-quality urban development outcome and much needed new living area in Nowra-Bomaderry. The finalisation of the planning documents for the URA is a high priority project, confirmed by Council’s earlier decisions and the adopted Strategic Planning Works Program. The documents, when finalised, will facilitate subdivision activity and the release of lots, helping to meet identified housing demand.
Financial Implications
In response to the high priority placed on the project, a dedicated project team has been working on it within Councils Strategic Planning Team. Significant funds have also been spent on necessary technical studies to ensure the investigation and preparation of a well-founded and responsible development outcome. There is likely to be a range of longer-term financial and resourcing considerations for Council associated with the delivery of the release area which will be addressed in future reports.
Delay in the delivery of the planning documents also has implications for the current landowners who continue to pay “holding costs” and other associated ownership costs.
Risk Implications
This report, the work leading to it, and the recommendation contributes to the completion of the suite of planning documents managing the future development and infrastructure delivery for the release area. Any delays to the project ultimately delay the delivery of new homes in the URA. Current risks include:
· The requirements of the RFS (to be confirmed through ongoing consultation).
· Feedback from NRAR.
· DPIE’s consideration of Heritage NSW’s request for an Aboriginal Cultural Heritage Assessment (estimated to take 12-18 months and a cost of $200,000).
· Any DPIE requirements stemming from its review of the final PP prior to public exhibition.
· The outcomes of the NSW Government’s contribution review and new limitations on the delivery of the infrastructure necessary to support the future community.
The public exhibition of the PP and draft DCP may also trigger the lodgement of subdivision or development applications to deliver the future release areas. However, further amendments to the planning documents is highly likely in response to technical studies, NSW Government Agency feedback, community consultation etc. As such the lodgement of development applications prior to the substantial completion of the planning documents should be strongly avoided/discouraged as it will lead to a delay in assessment timeframes and potential refusal of development consent or substantial modification of applications and associated costs.
|
|
Development & Environment Committee – Tuesday 13 July 2021 Page 0 |
DE21.66 Proposed Planning Agreement - Stage 1 Moss Vale Road South Urban Release Area - Lot 1 DP 949932 - SF10632
HPERM Ref: D21/252061
Department: Strategic Planning
Approver: Robert Domm, Director - City Futures
Attachments: 1. VPA Letter of Offer and Associated Plan ⇩
Reason for Report
Obtain ‘in principle’ support to commence the process of entering into a Voluntary Planning Agreement (VPA) with the Owner/Developer (Cambewarra Ventures Pty Ltd) of Lot 1 DP 949932, Taylors Lane, Cambewarra relating to the construction of road and drainage infrastructure and acquisition of a drainage reserve.
Options
1. As recommended.
Implications: The proposed VPA will result in a positive public benefit through the construction of essential road and drainage infrastructure to support the first stage of the Moss Vale Road South Urban Release Area (URA). The delivery of this URA is a priority of Council and funds have specifically been obtained (Low Cost Loans and deleted funds - contributions “recoupment fund”) to facilitate the early delivery of this infrastructure.
SF10632 will bring 46 residential lots to the market and the subdivision also establishes the lead in road infrastructure to the initial stages of the URA and the roundabout at Moss Vale Road which will enable subsequent subdivision throughout the URA to occur.
2. Adopt an alternative recommendation.
Implications: An alternative recommendation may affect the timely delivery of the lead in infrastructure for Stage 1 and the wider URA which may delay the release of much needed land to the market in the Nowra-Bomaderry area.
Background
Development consent (SF10632, subsequently modified) was granted on 5 June 2020 for a staged residential subdivision to create 46 residential lots, three open space lots and one residue lot (plus associated road, drainage and utility infrastructure and landscaping) at Lot 1 DP 949932, Taylors Lane Cambewarra. This subdivision is the first stage in the release of the Moss Vale Road South URA and construction has now commenced on site.

Figure 1: Aerial of subject land
The Letter of Offer
Following initial negotiations, Council received a letter of offer for a VPA from the developer in June 2021. The letter of offer and associated plan can are provided as Attachment 1. An excerpt of the plan at Attachment 1 is provided as Figure 2 below for convenience. The other attachments can be provided to Councillors upon request if required.

Figure 2: Indicative subdivision layout (Source: Maker Engineering, June 2021)
The VPA letter of offer proposes:
· Acquisition of a drainage reserve (Lot 29) for detention and water quality treatment and construction of a wetland within Lot 29.
· Drainage basin construction (Lot 54).
· Construction of the roundabout at the intersection of Road01 and Road02.
· Construction of part of Road01, including:
- Pathway.
- Access road from Moss Vale Road to the Road01 and Road02 roundabout.
- Kerb returns and pavement construction at the intersection of Road01 and Taylors Lane, adjacent to Lots 37 and 51.
· Payment of conditioned monetary contributions and reimbursement for all construction works undertaken (excluding wetland at Lot 54). The developer has since advised that offsetting contributions is preferable to paying conditioned monetary contributions up front.
· Waiver of 01DRAI0006 contributions relating to 15 lots.
Each of the above matters are discussed in more detail below.
Drainage Reserves
The VPA letter of offer proposes the:
· Acquisition of a drainage reserve (Lot 29) and wetland construction.
· Drainage basin construction (Lot 54).
The Shoalhaven Contributions Plan CP) 2019 identifies two drainage infrastructure locations in the Contributions Project 01DRAI0006 Moss Vale Road South URA Drainage relating to Lot 1, as shown in Figure 3 below. These are known as discharge points B1 and C1 which relate to biofiltration devices with associated swales. Whilst identified for acquisition, the acquisition was planned to occur via Contributions Plan project 01OREC5015 Moss Vale Road South URA Passive Recreation as drainage infrastructure was intended to be co-located with the passive recreation spaces to rationalise the land required and resulting acquisition costs.


Figure 3: Contributions Project 01DRAI0006 drainage infrastructure locations
Through the assessment of SF10632, an alternative drainage infrastructure design and location was approved. Instead of two bioretention devices, a larger wetland (Lot 29) and a separate smaller bioretention device (Lot 54) were approved. The wetland is not co-located with the passive recreation networks (proposed lots 26, 27 and 52) and the ultimate design and location of the drainage reserve and wetland have been accepted by Council. The approved bioretention device at Lot 54 exceeds the requirements of the CP and is to be constructed and dedicated to Council by the developer.
As a result of the above approved changes, an additional area of 20,088m2 is required to be acquired for the Lot 29 drainage reserve. The agreed acquisition value is 17.50m2 which results in a total acquisition cost of $351,540.
The estimated construction cost (2017 values) of the drainage devices in Lot 1 as per the CP was in the vicinity of $252,000+. The wetland at Lot 29 is a much larger device and is expected to cost $799,869.61 ($1,119,817.45 including survey/design, geotechnical, project management and contingency). The difference can be managed and is expected to be recovered in the following ways:
· A future modification to contributions project 01DRAI0006 to reflect updated costs will recover significant proportion of this difference for any future consents issued within the URA after the modification would come into effect.
· The CP anticipates that the URA will deliver 840 equivalent tenements. It is likely that this number will be higher, however, especially considering the increase in popularity of secondary dwellings and dual occupancy development.
· It is noted that the increased construction costs will be offset to an extent by the reduced maintenance required for the wetland into the future, compared to the bioretention device.
Council has been successful in obtaining Low Cost Loan funding from the NSW Government for the 01DRAI0006 contributions project and deleted funds have also been allocated to the project, which means the full value of construction costs eligible are available and can be reimbursed at the appropriate point and acquisition costs can be covered up front.
The construction of the drainage device at Lot 54 should not form part of the VPA as this infrastructure is to be provided by the developer and does not form part of the CP requirements for the site.
Road and Roundabout
The VPA letter of offer proposes the:
· Construction of the roundabout at the intersection of Road01 and Road02.
· Construction of Road01, including:
- Pathway.
- Access road from Moss Vale Road to the Road01 and Road02 roundabout.
- Kerb returns and pavement construction at the intersection of Road01 and Taylors Lane, adjacent to Lots 37 and 51.
The CP identifies the need for road, roundabout and shared path/threshold crossing construction in the Contributions Project 01ROAD0154 Moss Vale Road South URA Roads relating to Lot 1, as shown in Figure 4 below. The annotations in Figure 4 relate to:
1. Road construction, including kerb & gutter, passing lane, drainage, lighting, landscape median and acquisition. It is noted that the acquisition is being considered separately by Council.
2. Shared pathways and crossing thresholds.
3. Roundabouts.

Figure 4: Contributions Project 01ROAD0154 road infrastructure locations
The ultimate design and location of the road infrastructure has been accepted by Council through the Subdivision Works Certificate process.
It is noted that a roundabout is required at the intersection of Taylors Lane and Road01 as per the CP; however, the roundabout will not be constructed at this point in time as the Taylors Lane Corridor Review that is being separately undertaken by Council has not yet been finalised. At the appropriate point, the roundabout will be constructed by Council with funds collected from s7.11 contributions. As such, the VPA letter of offer proposes partial pavement construction and the kerb returns adjacent to approved Lots 37 and 51. Whilst this is not ideal and the preference is that no construction occurs along Taylors Lane until the Taylors Lane Corridor Review has been completed, it is noted that the developer does have consent to undertake this work, and this is therefore considered an acceptable compromise.
The estimated construction cost of the road works is $1,678,831.80. Council has been successful in also obtaining Low Cost Loan funding from the NSW Government for the 01ROAD0154 contributions project and deleted funds have also been allocated to the project, which means the full value of construction costs eligible for reimbursement are available and can be reimbursed at that appropriate point. No further funds need to be secured.
Delegation Opportunities
In accordance with Council’s Planning Agreement Policy, Council may resolve to delegate authority to Council’s Chief Executive Officer, or his delegate, to negotiate, publicly notify, enter into and register the VPA.
The proposal is supported ‘in principle’, noting that detailed costings submitted by the developer will need to be peer reviewed. The extent to which s7.11 contributions are considered in the VPA also needs to be resolved (see further discussion point below). However, it is considered that these matters can be addressed relatively easily and quickly. As such, it is recommended that Council extend delegation for the above functions, unless:
· The peer review determines that the costs are substantially different to those outlined in the report, in which case Council will receive a further report prior to finalisation.
· There are objections or substantial issues raised as a result of public notification, in which case Council will receive a further report prior to finalisation.
Conclusion
Due to the public benefit realised from the upfront delivery of the road and drainage infrastructure relating to Stage 1 of the Moss Vale Road South Urban Release Area, it is in Council’s interest to support the proposal, finalise negotiations and proceed to prepare and publicly exhibit the draft VPA for review and comment.
Community Engagement
The Environmental Planning and Assessment Regulation 2000 requires that the draft VPA be publicly exhibited for a minimum period of 28 days. Community engagement will be encouraged through the public exhibition period.
Policy Implications
Following the construction of the road works relating to Stage 1 envisaged in the proposed VPA, changes to the current contributions plan project 01ROAD0154 would be required in due course. Changes would reflect the partial completion status of the project, updated cost estimates, and subsequent changes to the contribution rate.
Following acquisition of the drainage reserve at Lot 29 and construction of the wetland as envisaged in the proposed VPA, 01DRAI0006 will need to be amended. Changes would reflect the partial completion status of the project, additional acquisition costs, updated cost estimates and device locations, reduction in equivalent tenements benefiting from the infrastructure and subsequent changes to the contribution rate.
The changes to 01ROAD0154 and 01DRAI0006 can be undertaken as part of a future amendment/s to the Shoalhaven CP 2019 and would be reported separately at the appropriate point in time.
Risk and Financial Implications
Detailed Costings
As part of the VPA letter of offer package, the developer has submitted detailed costings for the construction elements. As per standard procedure, these costings will need to be peer reviewed for probity purposes.
In addition to the standard construction costs, the peer review will also need to consider the percentage set aside for survey/design, geotechnical, project management and contingency. The developer has set aside the percentage based on the 01DRAI0006 contributions project estimates (based on concepts) which may need to be refined through the detailed costing process.
It is recommended that the peer review be undertaken following Council’s ‘in-principle’ endorsement of the proposed VPA. Council will receive a further report prior to finalisation should the costs be substantially different to those outlined in this report.
Development Contributions Consent Conditions, Reimbursement for Construction & COVID Subsidy
The developer initially proposed to pay s7.11 contributions up front; however, now seeks that the levied SF10632 s7.11 contributions be offset against the construction costs. The developer also seeks reimbursement for all construction works (excluding the wetland at Lot 54), minus the s7.11 contributions offset. This is satisfactory as this is common practice and funds are available for the reimbursement (combination of Low Cost Loan funding and deleted funds). The s7.11 contributions offset will only apply to 01DRAI0006 and 01ROAD0154 and monetary contributions for all other relevant contributions projects will still be required.
As part of the final negotiations, the extent that s7.11 contributions are considered in the VPA will need to be considered. Essentially, will the VPA relate to 01DRAI0006 and 01ROAD0154 contributions only (the consent retains the balance), or are all conditioned contributions covered by the VPA.
The developer has requested that Council waive contributions for 01DRAI0006 for Lots 38-51 and 53 (15 lots, total $50,652.75, 2020-21FY) to recognise that these lots benefit from the smaller bioretention basin to the south (Lot 54) and they do not result in any demand on the broader drainage infrastructure specified in the CP. The developer is proposing to undertake all construction works and land dedication relating to this device as per consent conditions. It is agreed that the 15 lots benefit from the device at Lot 54 only and it is considered reasonable that 01DRAI0006 contributions are not levied for these lots as they are not placing any demand on the drainage infrastructure specified in the 01DRAI0006 project.
Should Council endorse the progression of the proposed VPA, the development consent for SF10632 will need to be modified to:
· Reflect the s7.11 contributions offset for 01DRAI0006 and 01ROAD0154 in the VPA, as well as the waiver of contributions relating to Lots 38-51 and 53 for 01DRAI0006.
· Relocate s7.11 contributions required for the remaining projects to the VPA (need depends on final negotiations with Developer).
· Reference the VPA where relevant.
Depending on when the SF10632 s7.11 contributions are paid (or works undertaken in kind), the development may be eligible for the COVID-19 Contributions Discount Subsidy (refer to the COVID-19 Contributions Discount Subsidy Policy), noting the eligibility criteria and exclusions within. The Subsidy should be considered separately to the VPA, however the VPA mechanism should not be considered a reason for ineligibility as the monetary contributions are essentially being paid by works in kind.
Costs associated with the drafting, exhibition and entering into the VPA
In accordance with Council’s Planning Agreement Policy, the Developer will cover Council’s costs (direct and incidental) relating to the negotiation, preparation and entering into the agreement (including associated legal costs) and enforcing the agreement. This has been recognised in the letter of offer.
It is noted that the letter of offer package included a draft VPA based on Council’s template. The draft VPA will need to be peer reviewed by a legal professional at the Developer’s cost. The letter of offer is also based on costings prepared for the developer. For probity reasons, these costings will also need to be peer reviewed prior to acceptance.
|
Development & Environment Committee – Tuesday 13 July 2021 Page 0 |
DE21.67 Proposed Planning Agreement - Construction of Kent Lane, Huskisson
HPERM Ref: D21/235221
Department: Strategic Planning
Approver: Robert Domm, Director - City Futures
Attachments: 1. Letter of Offer for Proposed Agreement ⇩
Reason for Report
Obtain ‘in principle’ support to commence the process of entering into a Planning Agreement (PA) with the owner and developers (Binah Developments Pty Ltd & SK Group Manufacturing Australia Pty Ltd) Lots A and B DP 390332, 15-17 Fegen Street, Huskisson for the construction of Kent Lane, Huskisson.
Options
1. As recommended.
Implications: The proposed VPA will result in a positive public benefit through the construction of Kent Lane, Huskisson; and will also assist in satisfying consent conditions relating to the approved adjoining residential apartment development (DA17/2574) enabling this development to proceed.
2. Adopt an alternative recommendation.
Implications: An alternative recommendation may affect the timely delivery of Kent Lane and the ability of the Developer to satisfy consent conditions that require the construction of Kent Lane to be completed prior to the occupation of the development.
Background
On 4 January 2019, development consent (DA17/2574) was granted for two residential flat buildings at 15-17 Fegen Street, Huskisson (Figure 1 below), containing 25 dwelling units and basement parking.

Figure 1: 15-17 Fegen Street, Huskisson (the Site)
Vehicular access to the site is via Kent Lane only, and the developer is required to upgrade and reconstruct Kent Lane prior to the development being occupied.
The construction of Kent Lane is a road project identified in the current Shoalhaven Contributions Plan 2019 as 03ROAD5060 Kent Lane – Huskisson (formerly 03ROAD2060) and is also a requirement of Shoalhaven Development Control Plan 2014, Chapter N19: Huskisson Mixed Use Zones. Contributions project 03ROAD5060 seeks to provide improved, efficient and safe public road networks through the construction of Kent Lane between Bowen and Nowra Streets.
Construction of Kent Lane is expected to cost $324,317.14 to construct, based on the recently obtained independent costings. These costings are based on the design drawings specified in the Amended Engineer Design Approval issued by Council on 4 May 2021. It is noted that DA17/2574 was modified on 8 June 2021 (DS21/1093), however this modification did not make any changes to the Kent Lane construction obligations or designs.
Letter of Offer
The Letter of Offer submitted by the developer (Attachment 1) proposes:
· To construct Kent Lane on behalf of Council.
· To contribute $162,967.80 towards the construction, which is the value of the s7.11 development contributions levied for DA17/2574 (as indexed, 2020-21 FY).
· That Council cover the shortfall of $161,349.34 (2020-21 FY).
A VPA is considered to be an appropriate way to deliver this infrastructure as the cost of the works exceeds the Developer’s contribution for the project (i.e., it is not purely works-in-kind) and the shortfall needs to be addressed in some way.
Options to Address the Funding Shortfall
The contributions payable for 03ROAD2060 for DA17/2574 represents approximately 50% of the cost of the construction of Kent Lane. This means that a funding source needs to be identified for the remaining 50% ($161,349.34 (20-21 FY)).
To date approximately $52,777 in s7.11 contributions has been collected (and is available to spend) for the 03ROAD5060 project, which should be used in the first instance.
It is preferable that the balance of $108,572.34 be covered by recently received deleted funds. On 2 April 2019, Council resolved (MIN19.212(4)) to:
Endorse the position that all funds from deleted projects are to remain within each relevant planning area and be transferred to a “recoupment fund”, with those funds used as Council's apportionment towards projects and to provide seed funding for community infrastructure projects identified in the revised contributions plan.
This project is an excellent candidate for the use of deleted funds and this option is preferred.
Alternatively, the balance of $108,572.34 could possibly be covered by the developer upfront. The VPA could be drafted so that regular claims can be made for any contributions received overtime for 03ROAD5060 to the value of the difference (i.e. a reimbursement mechanism). Whilst this is a viable option, it is not preferred as deleted funds have been set aside by Council specifically to ‘seed fund’ infrastructure delivery in circumstances like Kent Lane.
Delegation Opportunities
In accordance with Council’s Planning Agreement Policy, Council may resolve to delegate authority to Council’s Chief Executive Officer, or his delegate, to negotiate, publicly notify, enter into and register the Planning Agreement. As the proposed VPA is relatively straightforward, it is recommended that Council extend delegation for the above functions, unless there are objections or substantial issues raised as a result of public notification, in which case Council will receive a further report prior to finalisation.
Conclusion
Due to the public benefit realised from the ultimate construction of Kent Lane, it is in Council’s interest to support the proposal and proceed to prepare and publicly exhibit the draft VPA for review and comment.
Community Engagement
The Environmental Planning and Assessment Regulation 2000 requires that draft VPA be publicly exhibited for a minimum period of 28 days. Community engagement will be encouraged through the public exhibition period.
Financial Implications
Council Contribution for road design and construction
The Developer has requested that Council cover the shortfall between the contributions payable for 03ROAD5060 for DA17/2574 and the construction value of Kent Lane. As discussed above, it is considered appropriate that the shortfall be managed through the use of the s7.11 contributions collected for the 03ROAD5060 project to date ($52,777) and recently received deleted funds. This is consistent with Council’s resolution (MIN19.212(4)) to support the provision of seed funding for community infrastructure projects.
Development Contributions Consent Conditions
Should Council endorse the progression of the VPA proposal, the development consent for DA17/2574 will need to be modified to remove the application of s7.11 contributions for 03ROAD5060, and insert a suitable condition relating to the VPA to reflect the offset.
Costs associated with the drafting, exhibition and entering into the VPA
In accordance with Council’s Planning Agreement Policy, the Developer will cover Council’s costs (direct and incidental) relating to the negotiation, preparation and entering into the agreement (including associated legal costs) and enforcing the agreement.
Policy Implications
Following the construction of Kent Lane as envisaged in the draft VPA, changes to the current contributions plan project 03ROAD5060 will be required. Changes should reflect the completed status of the project, the actual costings, and subsequent changes to the contribution rate. This will be undertaken as part of a future amendment to the Shoalhaven Contributions Plan 2019 and would be reported separately at the appropriate point in time.
|
|
Development & Environment Committee – Tuesday 13 July 2021 Page 0 |
DE21.68 Proposed Finalisation - Voluntary Planning Agreement (VPA15): Landscape Screen, South of Hitchcocks Lane, Berry
HPERM Ref: D21/237140
Department: Strategic Planning
Approver: Robert Domm, Director - City Futures
Reason for Report
· Present the outcomes of the public exhibition of Voluntary Planning Agreement (VPA15) relating to the establishment and maintenance of a proposed landscape screen for visual impact mitigation associated with the rezoning and future development of Lots 762 and 763 DP 1224932 (land south of Hitchcocks Lane at Berry).
· Seek Council endorsement to enter into VPA15 with the owners of the subject lots.
|
Recommendation (Item to be determined under delegated authority) That Council: 2. Advise relevant stakeholders when VPA15 is registered on title and the land has been rezoned.
|
Options
1. Endorse and enter into VPA15, as exhibited, for a landscape screen south of Hitchcocks Lane, as exhibited – Recommended.
Implications: This is consistent with Council’s previous resolution (of 11 May 2021 – MIN21.242) and will enable the Planning Proposal (PP029) to rezone land for housing to be finalised.
2. Make changes to VPA15 - Not recommended.
Implications: VPA15 results from more than a year-long negotiation between landowners and Council and is linked to the finalisation of PP029. Changes may require re-exhibition and would delay the rezoning of land for housing.
3. Not endorse and finalise Planning Agreement VPA 15 – Not recommended.
Implications: The VPA is needed to ensure that the landscape screen will be established as shown in the adopted Planning Proposal, prior to development occurring on the land. Council adopted PP029 on the basis that the VPA would be signed and registered on title before the Local Environmental Plan (LEP) is amended to rezone the land. Not proceeding to enter into the VPA would jeopardise the visual outcome and also delay the LEP amendment.
Background
Council resolved on 11 May 2021, to adopt Planning Proposal PP029 to rezone 11 ha of land south of Hitchcocks Lane at Berry to R2 Low density residential to permit residential subdivision (MIN21.242). The resolution included a requirement to finalise a Voluntary Planning Agreement (VPA) with the landowners to provide a landscape screen adjacent to the southern boundary of the development land.
Planning Agreements, also known as VPAs, are a planning tool used to negotiate development outcomes for a variety of public purposes. Establishing the intended landscape screen was a key recommendation of the Visual Impact Assessment and Urban Design Guidelines (May 2019), prepared by Peter Andrews and Associates to support PP029.
Council first resolved to secure the proponents’ commitment to implement the landscape screen through a VPA on 7 April 2020 (MIN20.257) and reaffirmed this position on 1 September 2020 (MIN20.610) and 11 May 2021 (MIN21.242).
Resolution MIN21.242 included the following parts:
2. Prepare and exhibit a draft Planning Agreement for a Landscape Screen (to mitigate visual impacts of development) based on the draft Planning Agreement Terms (negotiated terms of agreement between Council and the proponents) for a minimum of 28 days.
3. Liaise with the NSW Parliamentary Counsel’s Office (PCO) to amend the Shoalhaven Local Environmental Plan (LEP) 2014 under Council’s delegation, with finalisation of the LEP amendment to occur only when the Planning Agreement for the Landscape Screen is signed and registered.
As such, PP029 will be finalised once VPA15 is signed and registered on the land. Thus, this report presents the outcomes of the required public exhibition of the draft agreement (no submissions received) and seeks Council endorsement to proceed to enter into VPA15 to facilitate establishment and maintenance of the landscape Screen.
Proposal
Draft VPA15 was prepared in discussion with the landowners (the proponents of PP029) throughout 2020 and 2021. It will facilitate the establishment and maintenance of a landscape screen, adjacent to the southern boundary of land to be rezoned as part of PP029 – Part Lots 762 and 763 DP 1224932, south of Hitchcocks Lane, Berry (See Figure 1 below).

Figure 1 – Excerpt from exhibited VPA15 showing location of proposed landscape screen
The proposed landscape screen is intended to minimise visual impacts associated with the future development enabled by PP029, and assist with the scenic amenity of the area.
The landscape screen will be situated within a 12m wide strip of land adjacent to the southern boundary of the development land (rezoned as part of PP029), and will be planted densely with native trees, shrubs, and groundcovers.
The 12m wide strip of land will consist of 8m of planted area and a 2m wide grassed area either side for maintenance. The screen will extend approximately 300m along the southern boundary of the development land. At maturity, the area is intended to present as a strip of native bushland, largely obscuring views of development beyond. A stock exclusion fence will be located along the southern boundary of the landscape screen area to protect the plants from any livestock impacts associated with neighbouring rural land uses. This fence will be the responsibility of the rural landowner to maintain.
More detail is available in the exhibition package - see below.
Excluded land – flood-prone land and future noise barrier area.
No trees or shrubs are proposed to be planted within the area affected by the 1% AEP flood extent, to ensure drainage patterns and flood behaviour are not adversely impacted.
In addition, the Noise Impact Assessment Update (February 2021) by Harwood Acoustics, submitted to support PP029, identified a noise barrier(s) is/are likely to be required along the south-eastern boundary of Lot 763 – see Figure 1 above.
Design of the noise barrier(s) will depend on future proposed subdivision details. Noise mitigation requirements are included in the new Chapter N3 Berry – West of the Princes Highway in Shoalhaven DCP2014. Landscaping and maintenance requirements for the noise barrier area will be worked out in more detail at subdivision development application stage and therefore the affected area is excluded from VPA15.
More information on the landscape screen specifications can be found within the Landscaping Plan included in VPA15 that was part of the exhibition package – see below.
Establishment and Maintenance of Landscape Screen
The full landscape screen subject to VPA15 will need to be established before the first subdivision certificate is issued for the land. This means no housing development will occur before the screen is planted.
The landscape screen will be maintained in the short term (for a minimum of 3 years) by the landowners/developers. After 3 years and upon meeting the terms of the VPA, the landscape screen will be maintained by Council in perpetuity. The landscape screen will be located on private land and accessed from the future perimeter road(s). The VPA includes an interim provision, for Council to access the screen via an easement, if required.
Importantly, the landscaping has been designed to be low-maintenance and relatively self-sufficient over time as the plants establish. Ultimately, the screen will appear and function as a strip of bushland with very low ongoing maintenance obligations. As part of the VPA, the landowners will fund the ongoing maintenance after handover (more information is provided in the Financial Implications section of this report).
Community Engagement
VPA15 was publicly exhibited between 2 June and 2 July 2021 (31 days), complying with the minimum 28 day exhibition requirement of the Environmental Planning and Assessment Regulation 2000 and Council’s Planning Agreements Policy.
The following documents were placed on Council’s ‘Documents on Exhibition’ webpage and are currently still available to view (note: links will expire in August 2021):
The VPA was publicly notified on Council’s webpage; notification letters were sent to neighbouring property owners (11) and email notification was sent to the Berry Forum CCB and the Huntingdale Park Resident Action Group for distribution amongst their networks.
The VPA is associated with the Planning Proposal PP029 to rezone land south of Hitchcocks Lane at Berry, and PP029 was publicly exhibited for 73 days between October 2020 and January 2021. Therefore, it is considered that there is broad awareness of the proposal in the local community.
No (0) submissions were received during the public exhibition period for VPA15.
Internal Stakeholder Engagement
Input from many sections across Council has informed the preparation of the VPA and design and maintenance requirements of the landscape screen.
Policy Implications
VPA15 has been prepared in accordance with the Environmental Planning and Assessment Regulation 2000 (the EP&A Regulation) and is consistent with DPIE’s Practice Note for Planning Agreements (February 2021). In addition, VPA15 conforms with Council’s Planning Agreements Policy (recently updated in January 2021).
Financial Implications
The costs associated with preparation of VPA15 will be met by the landowners (proponents of PP029) in accordance with Council’s Planning Agreements Policy.
The entire costs of establishing the landscape screen and initial maintenance (minimum 3 year maintenance period) will also be met by the landowners/developers of the land.
The VPA contains provisions that require payment of a monetary contribution to Council upon satisfactory completion of the establishment and initial maintenance of the landscape screen. This contribution will be paid as a lump sum and invested by Council to fund ongoing future maintenance.
The total contribution to be paid to Council is $149,053 (indexed from the date of the agreement to the date of payment in accordance with CPI). For information about how these costs were calculated please refer to the FAQs and Monetary Contributions Calculations Factsheet links in the Community Engagement Section of this report.
VPA15 also contains provisions for security payments to comply with Council’s Planning Agreement Policy. In this case, the security payment amount seeks to cover the costs related to any future enforcement of the agreement and any unrequired security funds will be refunded to the landowners upon satisfactory completion of the VPA obligations.
The VPA provides a mechanism to secure ongoing funded maintenance of the landscape screen, with the developers of the land funding the establishment phase and providing funding to Council to pay for ongoing maintenance.
Risk Implications
VPA15 seeks to provide community benefits and reduce risks of adverse visual impacts associated with future development. Risks to Council and the broader community have been considered and mitigated throughout the negotiation and legal drafting process.
Conclusion
VPA15 will provide public benefits by way of visual impact mitigation, protection of scenic amenity and enhancement of the natural environment. In addition, finalisation of VPA15 will allow land to be rezoned for future housing delivery south of Hitchcocks Lane at Berry. It is therefore recommended that Council endorse VPA15.
|
|
Development & Environment Committee – Tuesday 13 July 2021 Page 0 |
DE21.69 Exhibition Outcomes and Finalisation - Planning Proposal - Huntingdale Park Estate Large Lot Residential Areas, Berry (PP060)
HPERM Ref: D21/228774
Department: Strategic Planning
Approver: Robert Domm, Director - City Futures
Attachments: 1. Summary of Submissions - PP060 (under separate cover) ⇨
2. Final Planning Proposal (PP060) Huntingdale Park Estate Large Lot Residential Areas (under separate cover) ⇨
Reason for Report
· Consider the outcomes of the public exhibition of Planning Proposal (PP060).
· Obtain Council endorsement to finalise PP060 and amend the Shoalhaven Local Environmental Plan (LEP) 2014 to rezone the large lot areas of Huntingdale Park Estate in Berry to R5 Large Lot Residential and amend the minimum subdivision lot size to 2000m2 to ensure the envisaged outcome is reflected.
Options
1. As recommended.
Implications: This is the preferred option. The resulting LEP amendment will ensure planning controls remain consistent with established strategic planning objectives for the Huntingdale Park Estate.
2. Adopt an alternative recommendation/change the PP.
Implications: This would depend on the nature of any proposed change, and may require an alteration to the NSW State Government-issued Gateway determination and re-exhibition of the PP.
3. Do not adopt the PP.
Implications: This would result in the large lot areas on the periphery of the Estate retaining the R1 General Residential zone. The R1 zone allows (with consent) the additional subdivision of large lot areas associated with higher density housing types and the Low Rise Housing Diversity Code applies to the R1 zone, allowing for certain forms of higher density development as Complying Development. Additional residential subdivision and development in the area, beyond that which was originally intended, planned and approved, could have character, environmental and infrastructure implications. This option is not recommended.
Planning Proposal
In January 2021, Council resolved to rezone the large lot areas of Huntingdale Park Estate (the Estate) in Berry to better align planning controls with the desired character of the area that was originally established through strategic planning processes and community engagement going back to at least the Development Control Plan (DCP) No.70 that was first prepared for the area in 1998. The January 2021 resolution (MIN21.5) reads:
That Council:
1. Endorse the preparation of a Planning Proposal with the following scope, and proceed to submit it to the NSW Government for a Gateway determination, and if this is favourable, proceed to exhibition as per the legislative and any determination requirements:
a. Huntingdale Park Estate Precinct (Berry):
i. Rezone the subject land to R5 Large Lot Residential.
ii. Set a 2,000m2 minimum lot size for the entirety of the subject land.
2. Receive a further report following the conclusion of the public exhibition period or if the Gateway determination is not favourable.
3. Advise key stakeholders of this decision and the resultant exhibition arrangements, including affected landowners, relevant Community Consultative Bodies and Development Industry representatives.
The resolved Planning Proposal (PP) was subsequently prepared (PP060) and a Gateway determination was issued by the NSW Department of Planning, Industry and Environment (DPIE) on 16 April 2021.
The PP relates to the large lot areas of the Estate (i.e. where property lot sizes are 2000m2 or larger). There are forty-three (43) properties affected by the PP as shown on the subject land map on the following page – the approved large lot areas located on the western periphery, along Parker Crescent and Connors View. These areas are generally consistent with the provisions of the DCP No.70 that were originally established in 1998 and identified that the desired outcome for subdivision on the western and northern edges was ‘larger lots – minimum 2000m’. It is also noted that the remainder of Huntingdale Park was identified in the DCP as ‘low density lots’.
The PP proposes the following amendments to Shoalhaven Local Environmental Plan 2014:
· Rezone forty-two (42) existing large lots along the western and northern boundary of the Estate from R1 General Residential to R5 Large Lot Residential.
· Increase the minimum lot size to 2000m2 across the entire area proposed to be zoned R5 Large Lot Residential.
· Apply a minimum lot size of 500m2 across Lot 712 DP 1247531 (60 Parker Crescent). This lot is currently 784m2 and is not a large lot. The current R1 General Residential zone will be retained over this property. This change rectifies a minimum lot size mapping anomaly over this lot as it is currently mapped as having two different minimum lot size restrictions.
The proposed R5 Large Lot Residential Zone complements the established strategic planning aims for the large lot areas of the Estate (established through the DCP and original approvals) and allows for compatible low-density housing types on the lots that have been created, orderly development, and efficient infrastructure planning and delivery. Extending a 2,000m2 minimum lot size to all areas within the precinct (currently part 500m2 and part 2,000m2) will prevent future fragmentation of the approved large lots and help mitigate any associated character, amenity and design concerns.

Figure 1: Subject Land Map PP060
Community Engagement
The PP was exhibited for thirty-one (31) days between 26 May to 25 June 2021 (inclusive). The Gateway determination required a public exhibition period of a minimum of 28 days.
The exhibition was publicly notified via Council’s website. Affected and adjoining landowners (74 households) were notified in writing. Key stakeholders were also notified in writing, including Berry Forum (Community Consultative Body); Huntingdale Park Resident Action Group; Berry Chamber of Commerce and Tourism; Nowra Local Aboriginal Land Council and development Industry representatives.
The PP package was available on Council’s webpage and electronically at the Nowra Administration Building as well as on the NSW Planning Portal (PP2021-2380). The exhibition package comprised the following (Note: links will expire in August 2021):
|
6. PP060 - Referral - Planning Industry & Environment - (45kb) |
|
8. PP060 - Subject Land Map & Affected Properties List - (364kb) |
Community Feedback/Submissions Overview
Eighty-seven (87) submissions were received during the exhibition period.
Eighty-five (85) submissions expressed support for the proposal. The submissions of support included twelve (12) form letters. One (1) submission was neutral on the proposal and related to growth concerns in Berry generally. One (1) objection was received.
The submissions of support were made by seventy-nine (79) households (representing 117 people) and of these households, sixty-three (63) live in Huntingdale Park Estate (representing 85 people).
The submissions of support agreed the proposal would align the planning controls in the LEP with the original strategic planning intent and desired future character of the large lot areas. The submissions reiterated that many people bought in the area because of the approved large lot characteristics. Many submissions expressed concern about permissibility of medium density development, additional further subdivision of large lots and the risk of overdevelopment. The submissions in support noted the following additional benefits of the PP:
· Protection of existing vegetation and wildlife habitat;
· Estate will have a less built-up appearance and a positive interface with surrounding rural landscapes and bushland (more in keeping with the character of Berry); and
· Fewer traffic and amenity impacts.
One (1) submission (PDC Lawyers & Planners on behalf of an affected property owner) objected to the proposal on the following grounds (summary):
· Will devalue land - purchased it knowing multi-dwelling development was permitted.
· Will limit housing supply in Berry which has little land available for in-demand multi-dwelling development. Will limit affordability.
· Argue that multi-dwelling housing was permissible under previous planning controls as area was zoned 2(c) under pervious Shoalhaven LEP1985.
· Disagree that permitted development (under R1 zoning) will have adverse visual impacts – Estate established and largely screened by current and proposed future landscaping.
· Disagree that significant portion of community object to multi-dwelling development in area (argue that the proportion of objections to the overall population size is low).
· Disagree that land is too far from public transport – it is a short drive to train station.
· Disagree need to protect rural land in this area, state neighbouring land unlikely to be used for agriculture, mapped as severely limited in soil capability.
· Unsustainable as large houses will be built on large lots and this is an underutilisation of scarce land.
· Economic impacts - will limit construction activity and Council will not meet housing targets.
Overall, the proposal is supported by strategic plans for, and relating to, the area generally. These plans emphasise the importance of protecting rural land and scenic landscapes around towns such as Berry. The PP seeks to preserve the approved large lot character of the western edge of the Huntingdale Park Estate.
The PP has attracted strong support from residents in the Estate with these residents commonly stating they value these blocks because of the low-density character, rural and bushland outlook and amenity, as well as their rarity, with some describing paying a premium for these characteristics.
Berry, including Huntingdale Park Estate, is a high value area, with a median house price of $1,365,000 and a median rental of $730 per week (June 2021, www.realestate.com.au).
Affordability is a concern, and as a result of the PP if adopted/finalised, future multi-dwelling housing will be prohibited on the 42 affected properties. However, housing affordability is complex, with one housing type not necessarily always more affordable than another, as affordability depends on size, specification, tenure and local market and economic conditions.
Attached dual occupancy and secondary dwellings (granny flats) will remain permissible in the R5 zone, providing for some housing diversity and relative affordability. In particular, secondary dwellings (granny flats) are size-restricted and most likely to provide affordable housing options. Attached dual occupancy and secondary dwellings are considered a compatible housing type with the low-density character of the subject land.
Huntingdale Park Estate, and the new release area south of Hitchcocks Lane, have been planned to provide a new housing supply for Berry with a variety of housing types. The PP reflects a place-based planning approach, recognising land constraints and opportunities to protect and enhance local character whilst providing new housing.
The PP is also consistent with Council’s approach to larger subdivision areas that were initially zoned Residential 2(c) under Shoalhaven LEP1985 (now zoned R1 General Residential under LEP2014) that saw the zoning of the area change when appropriate to reflect the nature/character of the subdivision once approved. The initial 2(c)/R1 zoning provided some initial flexibility until the final subdivision pattern is known or established and then areas rezoned accordingly. This has occurred in various areas throughout the city and as such is not an unusual approach.
The future development of the adjacent Hitchcocks Lane subdivision, south-east of the subject land, as outlined in Shoalhaven Growth Management Strategy 2014, will also provide additional greenfield housing supply and construction for the Berry area, including efficient use of land through provision of some smaller lot sizes. By contrast, the steep, elevated ridgelines of the periphery of Huntingdale Park Estate that are proposed to be rezoned were always intended to be developed for large lot housing, as a physical and visual transition between rural land, bushland and suburban development and the PP upholds this policy position.
The submissions are summarised and commented on in detail in Attachment 1: Summary of Submissions. The actual submission can be made available to Councillors if needed.
Minor changes to the PP document have been made (see Attachment 2: Final Planning Proposal), to add commentary regarding the PP’s consistency with the following strategic plans: the recently adopted Illawarra-Shoalhaven Regional Plan 2014, Shoalhaven Character Statements by Roberts Day (2019) and the Berry Community Strategic Plan (2016). These changes have been made in response to concerns raised within the objection regarding consistency with strategic plans. Importantly, these changes add context to the proposal but do not affect the proposed planning control amendments, and the proposal therefore remains the same as exhibited.
State Agency Consultation
The Gateway determination required consultation with the NSW Rural Fire Service (RFS) and DPIE’s Biodiversity and Conservation Division (BCD).
These agencies were consulted prior to the public exhibition.
On 7 May 2021, the RFS issued advice stating they had considered the information and raised no concerns or issues in relation to bushfire.
Comments from BCD were received on 6 May 2021 and they did not object to the PP, recognising the proposed rezoning will (in principle) reduce pressure to remove trees and vegetation given the lower density and intensity of permitted uses.
BCD noted the riparian (creek) corridors in the area contain significant vegetation and provide a link to remnant vegetation west of the Estate. The BCD requested that the riparian areas within the upper reaches of the Estate be rezoned from their current R1 General Residential Zone to E3 Environmental Management or similar to better reflect their environmental character and function. The riparian corridor will remain unchanged as part of this PP, and the corridor has been dedicated to Council so is not under any development pressure. This suggested zoning change to the riparian corridor is not within the scope of the current PP, but will be considered as part of a future housekeeping amendment to the LEP.
Policy Implications
Consistency with strategic plans and policies
This PP seeks to ensure planning controls align with the established strategic planning intent for the large lot residential areas of the Estate. The PP is consistent with relevant State and Council strategies and policies, including (but not necessarily limited to): the Illawarra Shoalhaven Regional Plan 2041; Shoalhaven Local Strategic Planning Statement (Shoalhaven 2040) and the Shoalhaven Growth Management Strategy 2014. Further detailed discussion on consistency with strategic planning and development assessment decisions for the area is provided in the PP document.
Dwelling Entitlements
The PP will maintain the dwelling entitlements on all existing and approved lots. Lots within the R5 zone trigger clause 4.2D(3)(a) of Shoalhaven LEP 2014, which requires a lot to have a dwelling entitlement prior to the erection of a dwelling house or dual occupancy. As a result of this, all lots would be required to be greater than 2000m2 (the minimum lot size for the land) to meet the requirements of clause 4.2D(3) or the lots would need to meet the requirements of another part of clause 4.2D(3).
All lots proposed to be rezoned from R1 General Residential to R5 Large Lot Residential contain an area greater than 2000m², exceeding the minimum lot size for the land, and will therefore continue to benefit from a dwelling entitlement.
Low Rise Housing Diversity Code (Complying Development)
The Low Rise Housing Diversity Code (part of the State Environmental Planning Policy (Exempt and Complying Development Codes) 2008) does not apply to the R5 zone and medium density opportunities are therefore limited. The Estate was planned to provide a variety of lot sizes and housing types and medium density was not intended within the areas designated for larger lots. Medium density development and low-density housing opportunities are provided in the central, less constrained areas within the Estate.
Conclusion
This PP will ensure planning controls for large lots in Huntingdale Park Estate in Berry align with the current and future desired character of the area that was first established through detailed community engagement in 1998. In addition, this PP responds to community concerns about recent planning changes that impact the area and community support for the proposed change was expressed during the public exhibition period. All requirements of the Gateway determination have been met and it is recommended that the PP be adopted and the associated amendments to Shoalhaven LEP 2014 be made.
Financial Implications
There are no financial implications resulting from this PP. As described above, this PP is aligned with strategic plans. The PP is being resourced within the Strategic Planning budget.
Risk Implications
The proposal aligns with strategic plans and development decisions for the area. Should the PP not proceed, medium density housing types and further subdivision will remain permissible (including as complying development) and development of this type could impact on the area’s desired large lot character and scenic quality.
|
|
Development & Environment Committee – Tuesday 13 July 2021 Page 0 |
DE21.70 Post
Exhibition & Finalisation Report - Planning Proposal (PP040) - Housekeeping
Amendment 2018 (Mapping) - Shoalhaven LEP 2014
HPERM Ref: D21/236166
Department: Strategic Planning
Approver: Robert Domm, Director - City Futures
Attachments: 1. Attachment 1 - Submission Summary - PP040 - 2018 Housekeeping - Mapping - External Version ⇩
Reason for Report
Options
1. Adopt the recommendation.
Implications: This is the preferred option as it will ensure that the relevant housekeeping matters in the LEP are addressed and progressed in a timely manner so that the plan operates correctly.
2. Adopt an alternative recommendation.
Implications: Depending on its nature, this could delay the progress of the Planning Proposal (PP) and the resulting amendments to the LEP.
3. Not adopt the recommendation.
Implications: This is not the preferred option as the identified housekeeping matters will not be resolved.
Background
The Shoalhaven LEP 2014 is continuously updated to ensure that it aligns with strategic documents, is improved/corrected where necessary, relevant matters are resolved, and positive planning outcomes are delivered for the community. As a result, Council has an ongoing process of housekeeping amendments to improve the operation and maintain the accuracy of the LEP.
PP040 intends to amend a number of maps within the LEP to:
· Correct identified anomalies or inconsistencies in the LEP mapping.
· Correct administrative errors (e.g. items incorrectly or incompletely identified in mapping).
· Respond to the registration of new land titles, relevant landowner requests and development assessment processes/outcomes.
The PP contains thirty-seven (37) mapping items that were identified during the 2018 calendar year, which cover a variety of more minor mapping issues relating to minimum lot size, zoning, height, terrestrial biodiversity, bushfire, buffer zones, natural resource sensitivity and land reservation acquisition.
Two items are associated with Council’s sewage treatment plants (STP) located at Bomaderry and Nowra and involve rezoning land to SP2, as well as amending the buffer relating to the STP.
The PP also proposes the removal of the mapping associated with the former Clause 5.9 Preservation of Trees or Vegetation as the clause was repealed from the NSW Standard Instrument LEP and LEP in 2017. As such the map layer is no longer required/relevant and needs to be removed.
On 6 October 2020, Council resolved (MIN20.714) to:
· Submit the adjusted PP040 (excluding 2 Crookhaven Parade, Currarong) to the NSW Department of Planning, Industry and Environment for initial Gateway determination and,
· If favourable, proceed to formal public exhibition in accordance with the terms of the determination/legislative requirements.
· Receive a further report following the conclusion of the public exhibition to enable its finalisation.
The PP was submitted to the NSW Department of Planning, Industry and Environment (DPIE) and received a favourable Gateway determination on 12 November 2020. The determination granted delegated authority to Council for this PP which means that Council can liaise directly with the NSW Government to prepare and finalise the LEP amendment following exhibition.
Government Agency Feedback
Prior to the required public exhibition, the PP was referred to the following State authorities:
· NSW Rural Fire Service.
· WaterNSW (prior to Gateway).
· DPIE (Biodiversity and Conservation Division).
· NSW Environmental Protection Authority.
· National Parks and Wildlife Service.
· Transport for NSW.
The comments received on the PP as a result are summarised in Table 1 below.
Table 1: Agency Consultation
|
Agency |
Response Summary |
|
NSW Rural Fire Service |
Supports the draft PP proceeding to exhibition phase following receipt of additional information (Attachment G in PP). Notwithstanding the above, future development within the lots subject to the PP must comply with Planning for Bushfire Protection 2019. |
|
WaterNSW |
Notes that only Item 1 relates to land within the Sydney Drinking Water Catchment. No objection raised to the proposed amendment to this land as the amendment is of minor significance. |
|
DPIE (Biodiversity and Conservation Division) |
Thank you for the referral – no comment. |
|
NSW Environmental Protection Authority |
Thank you for the referral – no comment. |
|
National Parks and Wildlife Service (NPWS) |
Supports Item 28, being the rezoning of Lot 4 DP 1015690 The Wool Road/Naval College Road, Worrowing Heights from RU2 to E1. No further comment provided. Note: land has been in NPWS ownership since 2014. |
|
Transport for NSW |
Supports changes to Items 8, 21, 30 (all Princes Highway, Berry), 33, 34 (both Princes Highway, Burrill Lake). Item 17 (Princes Highway, Termeil) - support changes proposed in relation to lots 3-7 DP 1193476 but note that Lot 2 DP 1193476 is in private ownership and should not be rezoned to SP2 Infrastructure. In response, Lot 2 is in private ownership and no changes are required. Item 17 should only relate to Lots 3-7 DP 1193476 and the PP has been updated to remove reference to Lot 2 DP 1193476. No changes to the associated PP maps are required as reference to Lot 2 was a typographical error and the maps presented to Gateway did not show any proposed changes to Lot 2. Note: This matter has been satisfactorily resolved. |
Public Exhibition
In accordance with the Gateway determination and Council resolution (MIN20.714) the PP was publicly exhibited for a period of more than 28 days, from Wednesday 5 May to Friday 4 June 2021 (inclusive) on Council’s website.
Key industry stakeholders including Community Consultative Bodies (CCBs) and all directly affected landowners were notified in writing.
The exhibition material remains available on Council’s website and includes the:
· Planning Proposal
· Explanatory Statement
· Gateway Determination
· Public Exhibition Notification
As a result of the exhibition, seven (7) formal submissions were received including:
· Four (4) individual submissions from community members relating to the proposed increase to the sewage treatment plant buffer (STP) in Nowra.
· One (1) submission from a community member requesting the removal of a proposed terrestrial biodiversity layer on their property, as it did not match the property vegetation.
· One (1) submission/ enquiry was received relating to clause 5.9 Preservation of Trees and Vegetation.
· One (1) submission from Endeavour Energy outlining that they did not have any issues with the PP.
Attachment 1 provides a summary of the submissions received and comments from Council staff and recommendations. Copies of the actual submissions can be made available to Councillors on request prior to the meeting if necessary.
A summary of key themes raised during the exhibition period and staff comments are provided in Table 2 below:
Table 2: Summary of key themes raised during the exhibition period and staff comments.
|
Summary of issues raised |
Staff comment |
|
Terrestrial Biodiversity Mapping Objection to the application of the terrestrial biodiversity mapping proposed to be applied to Lot 1 DP 1182150, Culburra Road, Wollumboola as it does not reflect vegetation on property. |
Vegetation on the property has been legally cleared under Schedule 5A of the NSW Local Land Services Act 2013. As there is no vegetation present, it is recommended that the proposed terrestrial biodiversity layer not be applied - refer to Table 3 below. |
|
Sewage Treatment Plants Objection to the proposed increase to the buffer zone applying to the Nowra STP, as it affects residents located at Terara. |
The buffer was originally proposed to be extended due to an increase in size of both the Nowra and Bomaderry STPs; however, as a result of a new buffer methodology identified by Shoalhaven Water during the public exhibition period, the existing buffer layer associated with the sewerage treatment plant needs to be decreased to place the buffer 400 metres from the inlet valve/works rather than the lot boundary, as a result of new technology. Additionally, it has also been determined that although Lot 1 DP 1224568 (Terara STP) is used for drainage and playing fields, and includes certain infrastructure for drainage purposes (i.e. the rising main and infrastructure to drain sewage), the land does not actually form part of the STP. As a result, Lot 1 DP 1224568 does not need to be rezoned to SP2 Infrastructure nor does the buffer associated with the STP require increasing. It is therefore recommended that the buffer associated with both Nowra and Bomaderry STP’s be mapped 400m from the inlet valve of each STP (refer to Table 3 below). This will significantly reduce the impact of the buffer on private property and resolve implications for complying development and limit the impact of LEP Clause 7.15 Development in the vicinity of sewerage treatment plants. |
|
Clause 5.9 Preservation of Trees and Vegetation mapping Confusion regarding proposal. |
A number of written and telephone enquiries were received during the exhibition period in relation to the removal of mapping associated with the previous Clause 5.9 Preservation of Trees and Vegetation in the LEP that was repealed by the State Government in 2017. As the PP affects land located at Worrowing Heights and Erowal Bay, which forms part of the Heritage Estate Paper subdivision area, a number of enquiries were received from these landowners. These enquiries were responded to by confirming that the removal of the clause 5.9 mapping is administrative in nature and will have no physical effect on the land. Three submissions were received objecting to the proposed changes, subject to receiving clarification from Council. Whilst staff have provided clarification, as no response has been received confirming that the advice is satisfactory, these will continue to be treated as submissions. No change is required or recommended as a result of these submissions. |
Proposed Changes
Based on the submissions received during the public exhibition, three amendments are proposed to the exhibited PP as outlined in Table 3 below:
Table 3: Recommended Changes to PP
|
Item 19: Bomaderry STP Mapping Change |
||
|
Amend the buffer zone associated with item 19 and the STP, to map the buffer zone as 400m from the inlet works valve, consistent with Shoalhaven Water’s methodology. |
||
|
Current LEP |
Exhibited PP |
Post-Exhibition Change |
|
|
|
|
|
Item 20: Nowra STP Mapping Change |
||
|
Amend item 20 to only rezone Lot 401 DP 1256042, Terara Road, Terara from RU1 Primary Production to SP2 Infrastructure, as well as amend the buffer zone associated with this item and the STP, to map the buffer zone as 400m from the inlet works valve, consistent with Shoalhaven Water’s methodology. |
||
|
Current LEP |
Exhibited PP |
Post-Exhibition Change |
|
|
|
|
|
Item 35: Remove Proposed Terrestrial Biodiversity Mapping |
||
|
Remove item 35 (Lot 1 DP 1182150, Culburra Road, Wollumboola) relating to proposed terrestrial biodiversity mapping from the PP as the subject vegetation has been lawfully cleared. |
||
Conclusion
The PP can now be finalised in accordance with the changes outlined above and the matter proceed to finalisation.
Policy Implications
Finalising these amendments will ensure Shoalhaven LEP 2014 is both accurate and is operating as intended.
Financial Implications
There are no immediate financial implications for Council. This PP will continue to be resourced within the Strategic Planning budget.
|
|
Development & Environment Committee – Tuesday 13 July 2021 Page 0 |
DE21.71 Post Exhibition and Finalisation - Planning Proposal - Berry Heritage (PP056)
HPERM Ref: D21/241446
Department: Strategic Planning
Approver: Robert Domm, Director - City Futures
Attachments: 1. PP056 Submission Summary ⇩
Reason for Report
Present the public exhibition outcomes and enable the finalisation of Planning Proposal (PP056) – Berry Heritage, which seeks to amend Schedule 5 Environmental Heritage of Shoalhaven Local Environmental Plan (LEP) 2014.
Options
1. Adopt the recommendation.
Implications: This is the preferred option as it will enable the Planning Proposal (PP) to be finalised to ensure the proposed twelve (12) heritage items and two (2) Heritage Conservation Areas (HCAs) are appropriately protected.
2. Adopt an alternative recommendation.
Implications: This will depend on the extent of any changes and could delay the finalisation of the PP. Depending on the nature of these changes, this option could have implications for proposed items and HCA’s of heritage significance within Berry.
3. Not adopt the recommendation.
Implications: This is not the preferred option as not implementing appropriate heritage protection for individual items and HCA s within Berry could result in adverse impacts on the heritage and character of Berry through unsympathetic development.
Background
The origins of this PP go back to the feedback received during the preparation of the current Shoalhaven LEP2014. During the preparation of the LEP representations were received regarding the establishment of a Heritage Conservation Area (HCA) over the township of Berry. There were subsequent community representations raising concern that unsympathetic development was eroding the unique heritage character of Berry.
In 2017 Council considered a report that presented two options for consideration:
· Option 1: Additional Heritage Listings (as per MIN17.481)
· Option 2: Urban Conservation Area (as per MIN12.494)
Council resolved to pursue Option 1 and the required heritage review of the town commenced as a result. This thorough review identified that two HCAs and a number of properties possessed heritage significance and were worthy of listing in the LEP.
On 1 September 2020, Council resolved (MIN20.611) to support the preparation of a PP and submit to the NSW Development of Planning, Industry & Environment (DPIE) for a Gateway determination. There was a level of early property owner and community engagement that informed this resolution.
The Berry Heritage PP seeks to amend Schedule 5 Environmental Heritage of the LEP to list the proposed Queen Street and Berry Showground HCAs and the following twelve (12) additional dwellings as heritage items:
· 27 Albany Street – Inter-War Federation Weatherboard Cottage
· 29 Albany Street – Inter-War Californian Bungalow
· 46 Albert Street – Federation Weatherboard Cottage
· 36 Prince Alfred Street – Federation Weatherboard Cottage
· 64 Princess Street – Federation Weatherboard Cottage
· 71 Princess Street – Federation Weatherboard Cottage
· 51 Queen Street – Federation Weatherboard Cottage
· 54 Queen Street – Federation Weatherboard Cottage
· 44 Victoria Street – Federation Weatherboard Cottage
· 63 Victoria Street – Inter-War Weatherboard Cottage
· 69 Victoria Street – Federation Weatherboard Cottage
· 75-77 Victoria Street – Inter-War Californian Bungalow
The PP received a favourable Gateway determination from DPIE on 22 March 2021. The determination granted delegated authority to Council for the PP, which means that Council can liaise directly with the NSW Parliamentary Counsel’s Office to prepare and finalise the resulting LEP amendment.
Government Agency Feedback
Heritage NSW were consulted prior to the public exhibition in accordance with the conditions of the Gateway determination. They raised no objections to the proposal, noting that three (3) heritage items on the State Heritage Register are located within the proposed HCAs. The inclusion of State Heritage Register listed items within the proposed HCAs is supported as it will potentially improve protections on the local setting and facilitate future development that responds to the context of these heritage items.
Community Engagement
In accordance with the Gateway determination, and Council resolution (MIN20.611), the PP was recently publicly exhibited for a minimum of 28 days, from 19 May to 18 June 2021 (inclusive) on Council’s website and DPIE’s Planning Portal. Key stakeholders including affected landowners and relevant community groups were notified in writing.
The exhibition material remains available on Council’s website and includes the following:
· Planning Proposal (PP056)
· Explanatory Statement
· Gateway determination
· Public Exhibition Notification
As a result of the exhibition twenty-eight (28) formal submissions were received including:
· Twenty-five (25) individual submissions in support of the proposed amendments to Schedule 5.
· One (1) individual submission, not from the landowner, raising concerns relating to 64 Princess Street.
· One (1) submission from the Berry and District Historical Society in support of the proposal.
· One (1) submission from Endeavour Energy advising they do not have any objections to the PP.
A number of submissions were received from members of the Berry Forum detailing support for the Berry Heritage PP (PP056) as part of submissions for the Huntingdale Park Large Lot Residential Precinct, Berry PP (PP060). Submissions received after the close of the exhibition period have not been formally considered, however it is noted all these submissions were in support of the proposed amendments.
Attachment 1 provides a summary of the submissions received and comments from Council staff. Copies of the actual submissions can be made available to Councillors on request prior to the meeting if required. Table 1, below, provides a summary of the key submission themes and comment from Council staff.
Table 1: Summary of key themes raised during the exhibition period and staff comments
|
Summary of Issue |
Staff Comment |
|
In support of the listing of 12 dwellings and two HCAs in Schedule 5 of Shoalhaven LEP 2014. Twenty-two (22) submissions were received in support of the proposed amendments. |
Support acknowledged. |
|
Support from landowners. Four (4) submissions were received from landowners expressing further support for the listing of their properties: · 51 Queen Street · 46 Albert Street · 27 Albany Street · 44 Victoria Street |
Support acknowledged. |
|
Concern raised in regard to unsympathetic development. Nine (9) submissions were received requesting that Council ensure future development in Berry considers the existing heritage values of the town. |
Concern noted. The PP is intended to assist in this regard. No change is required or recommended as a result of these submissions. |
|
Pursue the listing of items of heritage significance where the landowners objected to the listing during preliminary consultation. Three (3) submissions were received requesting that Council pursue the listing of items where the owners objected to the possible listing during preliminary consultation. |
Council resolved to not pursue the heritage listing of a number of dwellings with potential heritage significance where the landowner objected to the listing in the initial consultation phase. The Council has consistently maintained this general principle in other similar investigations. Council can in the future consider heritage listing the 15 dwellings in question if they change ownership and the new owners support listing. If in the future the landowners express interest in heritage listing, the inclusion of the items in the Shoalhaven LEP 2014 will be considered in future housekeeping amendments. No change is currently required or recommended as a result of these submissions. |
|
Request for the boundary of the proposed HCAs to be extended. Two (2) submissions were received requesting that the boundary of the proposed Showground HCA to be extended to encompass structures on Alexandra Street. |
The supporting heritage data sheet details that residential properties along Alexandra Street have been excluded from the Showground HCA as the majority make no contribution to the heritage significance of the HCA. The structures are still considered ‘in the vicinity of’ a heritage listed item and/or HCA and will have to consider any impact of future development on the heritage significance. No change is required or recommended as a result of these submissions. |
|
Request Council to investigate the addition of further HCAs to protect Berry’s heritage streetscape. Eight (8) submissions were received in support of an additional HCA. |
This is beyond the scope of the current PP and would delay its finalisation. Council may however wish to investigate the addition of further HCA’s within Berry in the future as part of the annual setting of its Strategic Planning Works Program. No change is currently required or recommended as a result of these submissions. |
|
Request Council prioritise a revised DCP for Berry. Nine (9) submissions indicated interest in Council prioritising a revised Shoalhaven Development Control Plan (DCP) 2014 chapter for Berry, similar to Milton’s, that aligns with the Illawarra-Shoalhaven Regional Plan and integrates local character into planning documents. |
This is beyond the scope of the current PP and would delay its finalisation. There is currently no specific overall DCP Chapter applying to Berry as a whole. Existing chapters do apply to parts of the town, e.g. Chapter N2: Berry Town Centre. It is noted that the preparation of the Milton DCP Chapter involved the engagement of specialist consultants, detailed community engagement and required a dedicated budget from Council. Council may however wish to consider undertaking a review of Shoalhaven DCP 2014 to create a specific chapter applying to the whole town in the future as part of the annual setting of its Strategic Planning Works Program. No change is currently required or recommended as a result of these submissions. |
|
64 Princess Street, Berry One (1) submission raised concern that the dwelling at 64 Princess Street is a new build. |
Dwelling additions were approved by Council in 2006, although the works maintained the integrity of the façade. No change is required or recommended as a result of this submission. |
Conclusion
No changes are recommended to PP as a result of state agency consultation or the public exhibition period. The PP can now be finalised and the resulting LEP amendment proceed to finalisation.
Policy Implications
The PP is considered to be consistent with the Illawarra-Shoalhaven Regional Plan, Shoalhaven Local Strategic Planning Statement, Shoalhaven 2040 and the Berry Community Strategic Plan.
Eight (8) submissions requested additional listings and a specific DCP Chapter for the whole town (similar to Milton) to consider local character. This can be considered in the future when the Council identifies its priorities for inclusion on the Strategic Planning Works Program.
Financial Implications
There are no immediate financial implications for Council. The PP will continue to be resourced from the Strategic Planning budget.
Risk Implications
Not including the twelve (12) dwellings and the two (2) HCAs within Schedule 5 of Shoalhaven LEP 2014 may result in unsympathetic development which could impact on the items or areas in question and broader heritage significance and character of Berry.
|
|
Development & Environment Committee – Tuesday 13 July 2021 Page 0 |
DE21.72 Funding Offer & Commencement - Shoalhaven Local Heritage Assistance Fund 2021-2023
HPERM Ref: D21/208808
Department: Strategic Planning
Approver: Robert Domm, Director - City Futures
Reason for Report
Formally commence the 2021–2022 Shoalhaven Local Heritage Assistance Fund Program and accept grant funding for this grant and the Local Government Heritage Advisors Grant.
Options
1. Adopt the recommendation.
Implications: This will enable the grant funding offers to be accepted which will help ensure the continuation of both the Heritage Advisor Service and Shoalhaven Local Heritage Assistance Fund Program for 2021-22 to 2022-23. This option will also enable the commencement of the 2021-2022 Shoalhaven Local Heritage Assistance Fund grant program.
2. Adopt an alternative recommendation.
Implications: Depending on the nature of any alternative recommendation, this may possibly prevent the opening of the 2021-2022 Shoalhaven Local Heritage Assistance Fund grant program.
Background
Council has continued its commitment to local heritage projects by supporting the NSW Heritage Grants. The grant funding provided by the NSW Government assists Council to potentially provide the services of a Heritage Advisor and to run an annual Local Heritage Assistance Fund to provide grants of up to $5,000 for a wide range of small heritage projects including general maintenance, adaptive reuse and sympathetic alterations / additions to heritage items. The grants program has been ongoing for some time and has been well received.
The conservation of Shoalhaven’s cultural heritage by its owners is clearly beneficial to the broader community and visitors to the area. These grants, although small, show that Council and the NSW State Government are committed to helping owners to conserve and enhance their properties for future generations. These heritage projects contribute to heritage conservation management, promote cultural sustainability and encourage heritage tourism.
NSW Heritage Grants Program 2021-2022 and 2022-2023
An offer for NSW Heritage Grant funding has been extended to Council by Heritage NSW under the following streams:
· Local Heritage Places (Shoalhaven Local Heritage Assistance Fund – Council has been offered a grant of up to $5,500 (ex GST) for the 2021-2022 and 2022-2023 financial years, with a funding formula of $1:$1 (NSW Government: Council).
· Local Government Heritage Advisors – Council has been offered a grant of up to $6,000 (ex GST) for the 2021-2022 and 2022-2023 financial years towards providing a Heritage Advisory Service for Shoalhaven. It is noted that Council was not able to engage the services of a heritage advisor during the 2020-2021 financial year.
It is unclear whether a heritage advisor will be appointed during the 2021-2023 period; however, options in this regard continue to be investigated and the grant funding remains available if required.
2021-2022 Shoalhaven Local Heritage Assistance Fund Grant Theme - Tourism
In accordance with Council’s COVID-19 response and the financial impacts experienced across the Shoalhaven, it is proposed that the 2021-2022 Local Heritage Assistance Fund will focus on tourism within a heritage setting. This will support the owners of heritage items with maintenance and restoration works, but also will increase exposure to the rich heritage of the Shoalhaven region and promote heritage tourism within the Local Government Area.
The 2022-23 theme has not yet been settled, but will likely focus on centres (Berry, Nowra, Milton etc.) to broaden positive heritage exposure within these active and vibrant locations. Council will receive a report in 2022 seeking endorsement to open the 2022–2023 program and a theme will be refined and presented at that point in time.
Community Engagement
The 2021-2022 Shoalhaven Local Heritage Fund Program will be advertised in local newspapers and on Council’s website. Direct advice will also be provided to persons who had previously expressed an interest in the program.
Policy Implications
As part of the funding agreement for the Local Government Heritage Advisors Grant and to enable a claim for reimbursement, Council is required to submit a four-year Heritage Strategy covering 2021-2022. Council amended the Shoalhaven Heritage Strategy on 7 May 2019 (MIN19.920) to cover the 2019-2022 period. The Heritage Strategy will need to be revised to cover the 2021-2024 period and the review date of the Shoalhaven Heritage Strategy should be extended until 31 July 2024 to facilitate this.
The Shoalhaven Heritage Strategy notes that the Heritage Advisor is to inspect all completed projects to ensure compliance with the application details and sound conservation practice. In the current absence of a retained Heritage Advisor, this process will be undertaken by appropriate Council staff, with input from a Heritage Consultant, as required.
Financial Implications
Shoalhaven Local Heritage Assistance Fund (Local Heritage Places Grant)
The funding offer from the NSW Government for the 2021-2022 and 2022-2023 financial years is up to $5,500 (ex GST) per annum, with a funding formula of $1:$1 (NSW Government: Council). Recurrent funding to match the Grant, plus additional funding will need to continue to be provided in Council’s annual budget.
Local Government Heritage Advisors Grant
The funding offer from the NSW Government for the 2021-2022 and 2022-2023 financial years is up to $6,000 (ex GST), with a funding formula of $1:$1 (NSW Government: Council).
The grant funding remains available for the 2021-2023 period should a heritage advisor be appointed during each of those financial years. Recurrent funding to match the Grant, plus additional funding, will need to continue to be provided in Council’s annual budget.
|
|
Development & Environment Committee – Tuesday 13 July 2021 Page 0 |
DE21.73 Strategic Planning Works Program - Proposed 2021-2022 Version
HPERM Ref: D21/171582
Department: Strategic Planning
Approver: Robert Domm, Director - City Futures
Attachments: 1. Adopted 2020-2021 SPWP ⇩
2. Proposed 2021-2022 SPWP ⇩
Reason for Report
Report the proposed 2021-2022 Strategic Planning Works Program (SPWP) to Council for consideration and adoption. This report was considered by Council’s Strategic Planning Working Party at its meeting on 17 June 2021.
Note: At present, Council staff will continue, alongside ongoing work, to focus on the following key priority projects during the remainder of 2021:
· Moss Vale Road North Urban Release Area - package of plans (exhibition and finalisation);
· Nowra CBD Planning Controls Review;
· Nowra Riverfront Masterplan Realisation; and
· Milton-Ulladulla Structure Plan Review.
Options
1. As recommended.
Implications: This option is favoured as it builds on the 2020-2021 SPWP and continues to guide Council’s strategic planning effort, ensuring we are proactively undertaking forward planning.
The SPWP assists in the prioritisation of projects and management of staff workload.
2. Adopt an alternative recommendation.
Implications: The 2021-2022 SPWP has been prepared taking into consideration current and expected strategic planning tasks and known planning challenges/expectations. Modifications to the SPWP at this stage may, depending on the nature of the modification, delay its adoption.
3. Not adopt the 2021-2022 SPWP and react to requests, opportunities etc. as they arise in the future.
Implications: This option would mean that Council reacts to requests, opportunities, requirements etc. for strategic planning work in an ad-hoc or unmanaged manner. This is not desirable as it does not necessarily focus Council’s efforts in areas or on projects that support the broader community or are required by legislation or other drivers.
Background
Strategic Planning Works Program – Recent History
In 2017, following a number of workshops, Council (MIN17.612) adopted and finalised the new iteration of the SPWP (2017-2018) to guide Council’s strategic planning efforts and workload.
Most recently the SPWP for 2020-2021 was adopted in June 2020 (MIN20.385) and is provided as Attachment 1.
As part of the 2018-2019 SPWP adoption, it was resolved that the work program be reported to Council annually in June to coincide with each new financial year. This annual report is provided consistent with this resolution, noting that the report was initially presented to Councils new Strategic Planning Working Party on 17 June 2021.
2021-2022 Strategic Planning Works Program
In preparing the 2021-2022 SPWP (Attachment 2) for consideration by Council, the following matters were considered:
· Current Strategic Planning tasks.
· Expected Strategic Planning tasks (e.g. Arising from the Local Strategic Planning Statement).
· Community involvement and expectations around land use planning (e.g. Community Strategic Plan/Integrated Strategic Plan 2027 exhibition outcomes).
· Ongoing, known and future planning challenges.
· Matters arising from the ongoing and immediate reforms to the NSW planning system.
At this point the 2021-2022 SPWP retains the existing program structure, notably the priority areas and overarching strategies outlined in Table 1 (established through the original 2017 Councillor workshop process).
Table 1: Retained SPWP priority areas and overarching strategies
|
Priority |
Priority Area |
Overarching Strategy |
|
1 |
Managing Future Growth |
· Developing and maintaining a Growth Management Strategy (GMS) to provide continued residential development and infrastructure ‘ahead of the game’. |
|
2 |
Economic Development, Retailing, Town Centres and Tourism |
· Balance commercial development with cultural and recreation opportunities. |
|
3a |
Natural Environment / Agriculture |
· Maintain an ‘unspoilt’ environment, plan for infrastructure to manage high use areas, maintain sustainable agriculture sector focusing on diversity and quality of output. |
|
3b |
Affordable Housing |
· Work to increase affordable housing opportunities in Shoalhaven. |
|
4 |
Population, Ageing and Social Infrastructure |
· Facilitate a healthy, active and accessible community. · Identify and respond to demonstrated need and create best practice liveable communities for all ages and stages. |
|
5 |
Heritage and Events |
· Maintain, investigate and bring forward our Aboriginal and European heritage into the future. |
|
6 |
Legislation and Policy |
· Maintain Shoalhaven Local Environmental Plan (LEP), Development Control Plan (DCP) and Contributions Plan (CP). · Monitor and respond to legislative and policy changes/proposals – consistent with Council’s strategic direction. |
For each existing priority area, current and future (yet to commence or on hold) projects are again identified. The proposed 2021-2022 SPWP contains a total of 85 projects - 51 current projects and 34 projects that are yet to commence or are on hold.
The priority projects in Table 2 (also shown in red at Attachment 2) will be advanced ahead of other projects on the SPWP. A brief update on the identified priority projects is provided for convenience in Table 2.
Table 2: 2021-2022 SPWP priority projects
|
Brief Update |
|
|
Moss Vale Road North URA (PP, DCP and CP) |
The required Planning Proposal recommending LEP adjustments, a new Development Control Plan Chapter, and a Development Contributions Framework are being prepared to guide the future development of this release area. This project is currently a major staff resource commitment. These documents and their status to Council shortly to enable them to proceed to exhibition. |
|
Implement the Local Strategic Planning Statement (LSPS) Actions |
The priority action to undertake a City-wide economic review will commence in the 2021-22 financial year as this is dependent on a budget allocation. Several significant actions listed in the Statement rely on the completion of this work. Work on another priority action for the update of the Milton-Ulladulla Structure Plan has commenced and is ongoing - see update in next row. The consideration of other actions in the document will be examined with the Strategic Planning Working Party on as needs basis. Note: the new Illawarra-Shoalhaven Regional Plan was released in early June 2021, as such and also following the impending Local Government Elections, an update of the LSPS will need to be considered. |
|
Current work includes constraint analysis, updated demographic information and housing demand analysis. A further update and indicative options for managing growth was presented to the Strategic Planning Working Party on 17 June 21. |
|
|
Planning Proposal PP028 - Callala Bay and Kinghorne Point (Halloran) |
Current work includes collating internal feedback on the proponent-managed studies. Subject to feedback, the required studies have been completed. The next phase will involve updating the Planning Proposal for Council’s consideration. The related Federal Environment Protection and Biodiversity Conservation Act decision was issued 1 June 2021. This has implications for the PP and this is currently being considered in detail. |
|
DCP Chapter G11 Subdivision Review |
Preparation of the amendment is well underway. Internal consultation has been undertaken and following incorporation of changes resulting from Council’s Engineering Design Specification Review, the draft package will be presented to Council shortly seeking a resolution to exhibit. |
|
Shoalhaven Riverfront Precinct · Planning Proposal PP041 – Mandalay Avenue Sub Precinct. · Planning Proposal PP042 – Hyam Street, Pleasant Way and Wharf Road Sub Precinct. |
Planning for the Riverfront Precinct is now being progressed through the Nowra Riverfront Advisory Taskforce (NRAT) established by the NSW Government. The NRAT is currently scoping the studies that are required to support the development of the precinct and a future precinct-wide Planning Proposal, as well as potential funding sources for them. Early work has however commenced on the following key pieces of support work to help realise the redevelopment of the precinct: - Flood Impact & Risk Assessment - Integrated Transport Plan |
|
Coastal Hazard Review |
Revised Planning Proposal has recently received a favourable Gateway determination from the NSW Department of Planning, Industry and Environment. The proposal (in part) seeks to update the SLEP 2014 Coastal Risk maps to reflect current data which includes specifying the type of coastal risk associated with the land. |
|
Illawarra-Shoalhaven Regional Plan (ISRP) Review and Action Implementation |
The new Illawarra-Shoalhaven Regional Plan 2041 was released on 2 June 2021. The release was accompanied by a Consultant Outcomes Report which is currently being reviewed to ascertain how Councils comments were considered/resolved and what resulting detailed work involves Council. The implementation of the new Plan will be managed by a Coordinating and Monitoring Committee, on which Council will be represented. The Illawarra-Shoalhaven Special Infrastructure Contribution (SIC) was also finalised and released alongside the Regional Plan. Both the Regional Plan and SIC were discussed at Councils Strategic Planning Working Party on 17 June 2021 and will be the subject of a more detailed information report to Council in due course |
|
Implementation and monitoring of the Shoalhaven Affordable Housing Strategy, with a focus on implementing/realising the affordable housing project on Council land at Coomea Street, Bomaderry |
Council’s subscription to a new demographic resource to assist in the monitoring and future review of this Strategy is being investigated. The need to update and revise the Strategy will also needed in light of Councils resolution of 25 May 2021. The transfer of the Council land at Coomea Street, Bomaderry to Southern Cross Housing (SCH) is currently close to finalisation. SCH are undertaking early works to remove the existing dwellings from the site and will start community engagement shortly on the possible affordable housing development outcome. |
|
Respond to legislative change |
Ongoing and generally reactionary. However, it is noted that this has taken up significant staff time in the 2020-2021 financial year due to the range of detailed and widespread reforms being advanced by the NSW Government and also resulting from the COVID-19 Pandemic. Intended Future Direction – given the workload created in this regard and the often quick comment timeframes it is intended that Council staff will mainly focus on key relevant ones as required. |
Table 3 identifies the projects that have been removed from (completions etc.) or added (Council resolutions etc.) to the SPWP, as well as projects that have been consolidated or reprioritised. Changes have also been made to the descriptions of some of the projects to enhance readability and recognition.
Table 3: Projects added and removed from the 2021-2022 SPWP
|
1. Managing Future Growth |
|
|
Added |
· Priority Project: Milton Ulladulla Structure Plan Review. · PP060 – Huntingdale Park Estate, Berry. · Review of Zoning and Planning Controls – Taylors Lane, Cambewarra (Note: separate project to PP054). · Review of Old Southern Road, South Nowra Contributions Project 01ROAD2038 (+ DCP). |
|
Removed (and why) |
· PP043 - South Nowra – Industrial Zoned Land Dwelling Entitlements. Completed. · PP051 - Wire Lane, Berry. Completed – Received unfavourable Gateway determination. · PP052 –10 Victoria St, Berry - The Arbour Retirement Village. Completed. · PP55 – Clause 4.1H Amendment for small lots in URAs (+ DCP). Completed. · DCP Chapter N20: Jerberra Estate and Chapter S1 Verons Estate. Completed. · DCP Chapter N9: Nebraska Estate. Included in planning proposal LP145.1 Nebraska Estate, St Georges Basin project. · Other outstanding investigations resulting from strategies. Included in the scope of the Growth Management Strategy and Milton Ulladulla Structure Plan Review. · LEP 2014 – additional matters for consideration - future investigations: Milton/Ulladulla deferred 2(a1) areas. Included in the scope of the Milton Ulladulla Structure Plan Review. |
|
Current Projects Placed on Hold |
· Priority Project: Growth Management Strategy version 2 (pending the completion of the City-wide economic review). · PP006 – Culburra Beach (Halloran). · PP007 – Inyadda Drive, Manyana (pending outcome of initial EPBC Act referral) |
|
On Hold Projects Moved to Current |
· Priority Project: DCP - Chapter G11 Subdivision Review. · PP054 - Taylors Lane, Cambewarra (+ DCP and CP). |
|
2. Economic Development, Retailing, Town Centres and Tourism |
|
|
Added |
· Priority Project: Nowra CBD Planning Controls Review. |
|
Removed (and why) |
· Shoalhaven LEP 2014 Clause 2.8 Review. Completed – discontinued by Council. · PP025/PP030 - St Vincent and Deering Streets, Ulladulla (Babington)/ Ulladulla Heights (Southern Part of Ulladulla CBD). Completed. · PP049 - Yalwal/Danjera Dam PP. Completed. · Covid-19 Contributions Discount Subsidy Policy (and subsequent amendment). Completed. · Economic Development Strategy – implement relevant actions (including strategy to activate key waterfront locations). Work to be undertaken by the Economic Development Section of Council. · Employment Lands Audit/Illawarra-Shoalhaven Urban Development Program. Included in ‘Implement Illawarra Shoalhaven Regional Plan Actions’ (priority project). |
|
Current Projects Placed on Hold |
· South Nowra Internal Service Lane (DCP and CP). · South Nowra Industrial Zoned Area (Flinders Estate Expansion) (DCP and CP) – pending resource allocation that is currently being resolved. |
|
On Hold Projects Moved to Current |
· DCP Chapter S8: Ulladulla Town Centre Review. |
|
3a. Natural Environment/ Agriculture |
|
|
Added |
· DCP - Solar Roof Panel Amendment. |
|
Removed (and why) |
· Respond to outcomes of Council’s natural resources plans and strategies. Included in the ‘Implement the Local Strategic Planning Statement Actions’ project, which recognises a number of actions relating to the management of natural resources. |
|
3b. Affordable Housing |
|
|
Added |
· Nil. (Note: work is continuing on range of fronts). |
|
Removed (and why)
|
· Nil. |
|
4. Population, Ageing and Social Infrastructure |
|
|
Added |
· Population Policy (no immediate action required) |
|
Removed (and why) |
· Nil. |
|
5. Heritage and Events |
|
|
Added |
· Nil. |
|
Removed (and why) |
· PP036 – Heritage Housekeeping. Completed. · PP053 – Bushfire Heritage (Yatte Yattah – heritage item removal). Completed. |
|
6. Legislation and Policy |
|
|
Added |
· DCP - Chapter G21 Car Parking and Traffic (housekeeping). · Contributions Plan Amendment 8 – Old Subdivision Properties. · 2021/2022 Local Approvals Policy Review. · Community Participation Plan Review. |
|
Removed (and why) |
· PP027 – Subdivision Review. Completed. · DCP – Chapter G21 Car Parking and Traffic (large scale review). Completed. · Contributions Plan Amendment 1 – Housekeeping. Completed. · Contributions Plan Amendment 5 – Boarding House Amendment (exhibition underway). Completed. |
|
Current with change in project scope |
· Priority Project: Implement the Immediate and Short Term Local Strategic Planning Statement Actions (formally ‘Local Strategic Planning Statement’. The preparation of the LSPS has been completed, however the implementation of the LSPS actions remains ongoing. |
Using and interrogating the SPWP
Councillors and key Council staff have direct access to the Interactive SPWP on Council’s Intranet. The SPWP is generally updated on a regular basis and includes the following detail (where relevant):
· Project name.
· Project type and reference (LEP, DCP etc.).
· Minute reference for the project.
· Envisaged project timeframe.
· Where the project is up to and next steps.
· Project officer and contact details that Councillors can pass onto stakeholders (provisions of Councillor and Staff Interaction Policy applicable).
Councillors can search for specific projects and interrogate the data accordingly.
Process for adding/removing projects from the 2021-2022 SPWP
The 2021-2022 SPWP will assist with Council’s decision making regarding new planning related projects. Ideally, the 2021-2022 SPWP will be proactive and not reactionary. It is inevitable, however, that changes will be required through time and this needs to be done in a considered manner.
Prior to changing the 2021-2022 SPWP (e.g., adding a project), consideration should be given to the likely impact on the current program, priorities, staff workload and resources. Projects should only be included on the 2021-2022 SPWP (or reprioritised) after consideration by Council and following a formal resolution. Ideally, consideration should be given to how they sit against the overarching strategies identified in the SPWP. The exception would be matters that must be resolved operationally (legislative directions, reactive policy submissions etc.).
The Strategic Planning Working Party will now have a role in the SPWP process, specifically through the provision of early input into projects within the SPWP, focusing on ‘priority’ projects and other projects that may require ongoing consideration and direction.
It is expected that projects will be removed from the SPWP upon completion or via a resolution of Council.
Monitoring and reporting
The SPWP will be reported back to the Development and Environment Committee annually in June/July, in line with each new financial year, to enable formal reconsideration and to highlight progress, including what has been achieved or completed in the year. The SPWP will also be monitored for efficiency on an ongoing basis and any required or proposed changes to the structure or projects will be reported as needed.
Community Engagement
The SPWP is an internal tool to manage Council’s strategic planning effort and workload. No formal community consultation is required as it is an internal management resource.
Based on existing knowledge, plans and community engagement processes (especially the Community Strategic Plan/Integrated Strategic Plan 2027 process) the broader expectations of the community have been considered during preparation of the SPWP.
However, approaches continue to be receive requesting specific additional work in regard to issues or areas, for example character controls for villages.
Policy Implications
It is considered important to have a clear work program to focus Council’s current and future strategic planning effort. This will ensure that Council has an appropriate strategic framework in place that is forward thinking and responsive in nature.
Financial/ Resourcing Implications
Generally, projects that are on the SPWP will be undertaken within existing budgets. However, should a project require specific funding allocation, this will be reported to Council for consideration as the need arises.
|
|
Development & Environment Committee – Tuesday 13 July 2021 Page 0 |
DE21.74 Proposed Submission - NSW Planning Reforms - Employment Zones Framework
HPERM Ref: D21/228844
Department: Strategic Planning
Approver: Robert Domm, Director - City Futures
Attachments: 1. Submission - Proposed Employment Zones Framework ⇩
Reason for Report
· Advise of the public exhibition of a Position Paper on proposed amendments / reforms to the NSW planning system relating to employment zones.
· Obtain endorsement to make the submission at Attachment 1.
Options
1. As recommended.
Implications: This is the preferred option and will enable Council to provide a submission highlighting matters that should be considered by the Department in relation to the proposed planning reforms.
2. Make changes to the draft submission (Attachment 1) and submit.
Implications: This will still enable Council to provide a submission; however, the implications of any possible changes are unknown and may require closer consideration and refinement.
3. Not make a submission.
Implications: This is not favoured as it will mean Council will not provide input on the proposed planning reforms which could have a range of implications.
Background
The NSW Government is currently proposing amendments to the NSW planning system, which will replace the existing Business (B) and Industrial (IN) zones with five new employment zones and three supporting zones under the Standard Instrument Principal Local Environmental Plan (2006) (SI LEP).
Whilst the reform responds to various trends that have been exacerbated by the COVID-19 pandemic, including the growth of online retail, reliance on freight and logistics, the importance of local centres, flexible working arrangements and the continued rise of multi-use businesses and the experience economy, the intent of the reform is to:
· Maximise productivity while minimising land use conflicts and ensuring they are fit for purpose;
· Address current barriers within the planning system that limit the ability of businesses to establish, expand or adapt; and
· Better support councils in the delivery of the strategic vision contained in their Local Strategic Planning Statements and background studies.
The proposed amendment package can be viewed at the following link:
https://www.planningportal.nsw.gov.au/employment-zones-reform
The proposed reform intends to introduce the following:
· Five new employment (E) zones are proposed, as follows:
- E1 Local Centre
- E2 Commercial Centre
- E3 Productivity Support
- E4 General Industrial
- E5 Heavy Industrial
· The proposed E1 Local Centre zone will fundamentally replace the current B1 Neighbourhood Centre and most B2 Local Centres, whilst introducing a range of new land uses which will be mandated under the SI LEP.
· The proposed E4 General Industrial zone intends to accommodate light and general industrial uses and warehousing uses and will generally replace the existing IN1 General Industrial and IN2 Light Industrial zones.
· In addition to the introduction of the new E zones, a new Mixed Use (MU) zone is proposed. This is intended to support a mix of residential, retail, light industry and tourist accommodation. This zone will essentially replace the existing B4 Mixed Use zone and also some B2 Local Centres. It is also proposed to mandate a number of additional permitted land uses via the SI LEP in the new MU zone, including:
- Farm stay accommodation
- All light industries (including artisan food and drink industry, creative industries, high technology industries, data centres, home industry, and domestic goods repair and reuse facilities)
- Local distribution premises
· A new SP4 Local Enterprise zone is also proposed. This will not be mandated through the SI LEP, but Councils have the option of including it within their LEP. The zone will provide a place for planned precinct processes, special activation precincts and regional job precincts.
· The W4 Working Foreshore is proposed to be a direct translation of the existing IN4 Working Waterfront zone. The W4 zone has been introduced as land applying to this zone has more in common with the waterways zone grouping than it does to employment zones.
· The following new definitions are proposed:
- Circular economy facilities
- Creative industries
- Data centre
· Numerous updated definitions are proposed, including:
- Business premises
- Industrial retail outlet
- Kiosk
- Neighbourhood shop
- Shop-top housing
- Crematorium
- Local distribution premises
Council staff comments
The proposed reforms have been reviewed by relevant sections of Council and the following comments reflect the feedback received.
The proposed reforms seek to introduce a number of changes that are generally supported, including:
· Proposed updates to definitions to remove reference to components that are outdated and to include reference to new and emerging land uses.
· Consolidation of existing definitions to provide for streamlining of definitions and reduce potential misinterpretation.
· Introduction of the intended mixed-use zone and the range of additional permitted uses is generally supported; however, clarification of the prefix ‘m’ and ‘mu’ is sought, as these are used interchangeably throughout the position paper.
· Introduction of the working foreshore zone.
· Intent that the proposed E4 zone does not permit residential accommodation (Note: managers or caretakers dwellings could still be considered as ancillary development as is currently the case).
The proposed reforms are detailed and whilst parts of the reforms have the potential to have a positive impact, a number of concerns have been identified in relation to the proposed changes and potential impact on both Council and the broader community, including:
· The prefix of the proposed new ‘E’ zones conflicts with the existing and currently accepted SI LEP environment protection zones that currently have an ‘E’ prefix. The related proposal to rename the existing environment protection zones will create significant and unnecessary resourcing issues for Council, as well as cause confusion for users. This naming change is not supported and should be reconsidered as it will cause confusion and an unnecessary workload to adjust.
· The general inclusion of data centres proposed within existing B2 Local Centres zones is not supported. Several of Shoalhaven’s existing B2 zones are embedded within existing residential areas or popular tourism locations, such as Huskisson and Culburra Beach. As such, these localities (and their size/scale) are not necessarily considered appropriate to accommodate data centres.
· Enabling data centres in the proposed W4 zone is also generally not supported.
· There has been no advice that the suggested Online Noise Assessment Tool and air quality studies relating to Data Centres had been completed and made available as yet. In the first instance, confirmation will be sought that these have now been completed. Additionally, further consultation was requested once relevant development standards for data centres had been refined – again this has not occurred as yet.
· Many existing B1 zones in Shoalhaven are small and within existing residential areas. Expanding the range of land uses permissible in the B1 zone, to enable traffic generating development (i.e. medical centres, specialised retail premises) where parking is already limited, will potentially create issues for surrounding residents and the broader community.
Consistent with the submission on the ‘Building Business Back Better’ reforms, it is reiterated that in order for business growth to increase in industrial and commercial zones, the following actions would more practically assist:
· Improved telecommunications services - Metropolitan speeds and pricing.
· Seed funding to open undeveloped industrial zoned land.
· Addressing the impacts that the NSW Biodiversity Conservation Act is having on the viability of subdividing and releasing industrial zoned land.
The proposed submission at Attachment 1 provides more detail on these concerns and other matters of interest to Shoalhaven.
Conclusion
It is appreciated that the recent spate of planning reforms is largely responding to various trends exacerbated by the COVID-19 pandemic. Whilst regional areas like the Shoalhaven are always keen to assist in addressing current barriers within the planning system, there is a need to ensure that any planning reforms in this regard are balanced, justified and things work together and do not create unintended consequences.
This said, the logic behind the Department’s proposal to amend the existing zoning prefixes remains unclear. For this reason, this aspect of the proposed amendments needs to be reconsidered and further dialogue. The proposed prefixes will not only generate confusion amongst community members, Council staff and the development industry, but will also necessitate significant time and staffing resources to implement the proposed name changes to the relevant zones though existing documents, systems etc. The changes proposed to the employment zones can be made, regardless of the proposed prefix used.
Additional consultation and engagement with Council is essential to get the changes right and will be requested as the Department move to further consider and resolve the proposed reforms.
Community Engagement
The Position Paper was on public exhibition between 20 May – 30 June 2021 to provide an opportunity for Council, the community and industry stakeholders to provide comments and feedback.
Due to reporting dates, a draft staff submission based on Attachment 1 was provided to the Department on 30 June 2021 as a ‘placeholder’. The Council endorsed submission will be provided following this meeting.
Policy Implications
In response to the proposed changes, Council would be required to undertake the following changes (possibly significant and time consuming) to its existing policies and procedures:
· Recode and re-map all affected zones within Council’s GIS system.
· Potentially undertake a strategic exercise to assign the new zones in certain locations.
· Make significant amendments to Shoalhaven Development Control Plan (DCP) 2014 to reflect name changes to existing environmental, industrial and business zones.
· Amend relevant Council policies and procedures that reference existing environmental, industrial and business zones.
Financial Implications
There are no immediate financial implications for Council; however, the reforms may result in potential issues with regard to resourcing because of the changes required to GIS mapping and data, as well as Shoalhaven DCP 2014 and other Council policies and procedures as a result of the proposed amendments.
Risk Implications
There are no immediate risks for Council; however, there are concerns that the proposed zone name prefixes will not only generate confusion amongst community members, Council staff and the development industry, but will also necessitate significant time and staffing resources to implement the proposed name changes to the relevant zones.
|
|
Development & Environment Committee – Tuesday 13 July 2021 Page 0 |
DE21.75 Proposed Submission - Review of NSW Heritage Legislation
HPERM Ref: D21/241947
Department: Strategic Planning
Approver: Robert Domm, Director - City Futures
Attachments: 1. Proposed Submission - Review of Heritage Legislation ⇩
Reason for Report
Advise of the public exhibition of a Discussion Paper for the Review of NSW Heritage Legislation and obtain endorsement to make the submission at Attachment 1.
Options
1. As recommended.
Implications: This is the preferred option and will enable Council to provide a submission highlighting matters that should be considered by the Standing Committee on Social Issues and Heritage NSW in relation to the review of NSW Heritage Legislation.
2. Make changes to the draft submission (Attachment 1) and submit it.
Implications: This will still enable Council to provide a submission; however, the implications of any possible changes are unknown and may require closer consideration and refinement.
3. Not make a submission.
Implications: This is not favoured as it will mean Council does not provide input into the review of NSW Heritage Legislation, which could have a range of implications.
Background
In April 2021, the NSW Government asked the NSW Legislative Council’s Standing Committee (Standing Committee) on Social Issues to conduct a review of the NSW Heritage Act 1977 (Heritage Act).
On 13 May 2021, the Standing Committee formally commenced the review and have provided the opportunity for key stakeholders and the broader community to have their say on NSW Government heritage policy.
Heritage NSW have published a discussion paper, encompassing nineteen (19) focus questions, which can be viewed at the following link:
https://www.heritage.nsw.gov.au/assets/A-Review-of-Heritage-Legislation-discussion-paper.pdf
Council staff comments
It is noted that the Review of NSW Heritage Legislation discussion paper is the starting point of the public inquiry, and it is appropriate for Council to be involved in future consultation of related proposed reforms.
The discussion paper highlighted a number of important key issues and policy concepts in order to gain feedback from community members and key stakeholders to inform analysis of the current legislative framework and potential reforms. The proposed reforms and a summary of staff feedback is outlined in the following table.
|
Proposed Reform |
Staff Feedback |
|
NSW adopt a more nuanced set of heritage listing categories, as below: · Heritage of exceptional and iconic value. · State significance heritage landscapes. · State significant heritage. · Local heritage. |
The proposed heritage listing categories are generally supported, as it will allow for more tailored heritage protections to be applied to items to suit their individual circumstances.
|
|
Introduce a community-driven nomination process. Community-based ‘early-round’ nominations would be submitted for Heritage Council consideration. |
A community-driven nomination process is generally supported, noted that it can only be achieved with a streamlined process for the listing of State Heritage Register items. Greater community involvement will potentially assist in delivering a more robust and diverse State Heritage Register, and increase the community’s awareness, interest and connection to heritage items. |
|
Introduce a streamlined process to update heritage listings to allow State Heritage Register listings to be periodically reviewed and amended. |
A streamlined process to update heritage listings will ensure listings remain relevant, and those that have perhaps lost their value are removed. The streamlined process will also assist in addressing site changes and ensuring a site’s full significance is recognised and protected. |
|
The Minister responsible for heritage could be responsible for determining, in consultation with the Heritage Council, the regulatory thresholds for standard exemptions, fast-track applications and standard applications for permits under the Act. |
Listing items on the State Heritage Register should not mean that the item cannot be changed or modified, rather should ensure any work carried out is compatible and complements the heritage significance. Enabling the Minister to determine permits under the Heritage Act and subsequent fast tracking of applications will reduce timeframes and encourage heritage owners to maintain and conserve their properties. |
|
Introduction of a series of intermediate enforcement powers to allow heritage regulators to take a graduated and proportionate response to non-compliance. |
The proposed intermediate enforcement powers are supported, which enable heritage regulators to take a graduated and proportionate response to non-compliance. It is recommended that revenue raised from non-compliance be paid into the Heritage Conservation Fund and utilised for grants or loans for the purpose of reactivation, reuse and conservation of heritage items. |
Additional key suggested considerations raised in the proposed submission include:
· The NSW Government was previously proposing standalone Aboriginal cultural heritage legislation – the status of this reform is currently unknown. Thus it is important for Aboriginal Cultural Heritage to be acknowledged and considered within the reviewed Heritage Act if it is to remain the main piece of relevant legislative. It is however, acknowledging that it should be addressed by those who understand Aboriginal Cultural Heritage and ultimately determined subsequent to consultation with peak Aboriginal bodies.
· As heritage is intrinsically valued, it is crucial for community members to understand and appreciate the importance of heritage in order for it to remain meaningful. There is a need for heritage legislation to promote the ownership and interaction with heritage items, through incentives and increasing awareness.
· Heritage legislation needs to be clear and must preference heritage preservation through the provision of unambiguous regulatory controls, heritage advisors and awareness of opportunities to access grants and loans for maintenance and conservation purposes.
· The need to ensure regulatory mechanisms for residential properties that are heritage listed are not overly onerous, while still protecting the significance of the item. Current provisions are considered to be onerous and complicated, creating barriers to potential purchases. Easy to understand regulatory mechanisms will assist in encouraging and promoting heritage conservation of privately owned items.
· Heritage consideration can be improved within the land use planning system through the provision of standardised heritage controls for Development Control Plans, greater incentives for heritage advisors (particularly in regional areas) and strengthening Clause 5.10 in the Standard Instrument Local Environmental Plan.
· Heritage legislation should provide financial assistance for local councils to maintain public heritage facilities to a high standard, as well as to provide enhancements for greater public use potential.
The draft submission (Attachment 1) provides a response to each of the consultation questions that are posed.
Conclusion
Since the Heritage Act 1977 was first introduced, a more complex understanding of heritage has been developed and a number of changes have fundamentally altered the operating context of the Act. Subsequently, a significant need has arisen for the review of NSW Heritage Legislation, to ensure it adequately protects the State’s diverse heritage and is reflective of contemporary NSW. The proposed reforms are generally supported.
Additional consultation and engagement with Council is essential to ensure any changes to NSW Heritage Legislation are appropriate and will be requested as the review progresses.
Community Engagement
The Discussion Paper was on public exhibition between 18 May and 27 June 2021 to provide the opportunity for key stakeholders and the broader community to provide comments and feedback.
Due to reporting deadlines, an extension was granted to Council to submit an endorsed submission following this meeting.
Policy Implications
No immediate policy implications for Council.
Financial Implications
No immediate financial implications for Council.
|
|
Development & Environment Committee – Tuesday 13 July 2021 Page 0 |
DE21.76 Community Participation Plan - Review
HPERM Ref: D21/247506
Department: Strategic Planning
Approver: Robert Domm, Director - City Futures
Reason for Report
Obtain endorsement to:
· Review the 2019 Community Participation Plan (CPP) to ensure it is up to date and is consistent with legislative requirements, reflects Council’s policies, and considers feedback and issues identified since its adoption.
· Prepare a revised version for consideration and exhibition purposes.
Options
1. As recommended.
Implications: This is the preferred option as the proposed review will ensure that the CPP, which is a legislative requirement, is up to date and responsive to any issues identified since its adoption.
2. Not adopt the recommendation.
Implications: The current CPP will remain in place but any issues or will remain unaddressed until such time it is reviewed.
Background
The requirement for councils to have a Community Participation Plan (CPP) emerged from the ongoing NSW planning reforms in 2018/19.
Shoalhaven’s CPP was endorsed by Council on 26 November 2019 (MIN19.904) and is currently available to view via Council’s website (www.shoalhaven.nsw.gov.au/Projects-Engagement/Community-Participation) and the NSW Planning Portal.
The CPP is required under the NSW Environmental Planning and Assessment Act 1979 (EP&A Act) to be reviewed periodically. At the time of its adoption, it was intended that the CPP would be subject to an early review as a number of minor inconsistencies or items requiring clarification had been identified through its preparation and exhibition process. Therefore, it is considered appropriate to commence a review of the CPP to ensure it remains consistent with legislative requirements, reflects Council’s policies, responds to feedback and issues identified since its adoption, and is generally fit for purpose.
The CPP review should also factor in other separate but related work that Council is undertaking or committed to undertake, including the review of the following:
· Development Application Tracking tool.
· Community Engagement Policy.
· Overarching community engagement framework.
The relationships and any implications arising from this other work will be determined as the CPP review progresses.
Community Engagement
Consultation with key stakeholders will be undertaken as appropriate.
Following the review process, if adopted, the draft CPP will be required to be publicly exhibited for a period of 28 days.
Policy Implications
Other related policies including the Community Engagement Policy and Community Consultation Policy for Development Applications (Including Subdivision) and the Formulation of Development Guidelines and Policies will also need to be reviewed as separate items of work in order to inform and ensure consistency with the CPP.
Consideration will be given to the most appropriate arrangement or relationship between each of these documents going forward, for instance whether they should remain separate or be incorporated to some extent into the CPP.
Financial Implications
There are no immediate financial implications for Council and the review of the CPP will be resourced within the existing Strategic Planning budget.
Risk Implications
The CPP is intended to be a single source for explaining how and when Council engages the community across its planning functions.
If the CPP is not kept up to date, there is a risk that it will not convey accurate information to the community nor meet its statutory requirements under the EP&A Act.
|
|
Development & Environment Committee – Tuesday 13 July 2021 Page 0 |
DE21.77 DA20/2172 - 8 Homestead Lane Berry - Lot 101 DP 1057897
DA. No: DA20/2172/4
HPERM Ref: D21/72971
Department: Development Services
Approver: Phil Costello, Director - City Development
Attachments: 1. Section 4.15 Planning Report - 8 Homestead Lane Berry - Lot 101 DP 1057897 (under separate cover) ⇨
2. Draft Determination - Refusal - 8 Homestead Lane Berry - Lot 101 DP 1057897 ⇩
3. Heritage Review - Dr Peter Kabaila - 8 Homestead Lane, BERRY - Lot 101 DP 1057897 ⇩
4. Email - Stephen Gauld - Day Design - Acoustic Advice - 8 Homestead Lane, Berry- Lot 101 DP 1057897 ⇩
5. Legal Advice - CONFIDENTIAL - 8 Homestead Lane, BERRY - Lot 101 DP 1057897 (Confidential)
Description of Development: Alterations and additions to an existing building and use as a function centre
Owner: Matthew and Julie Quinn
Applicant: Cowman Stoddart Pty Ltd
Notification Dates: The application was notified on three (3) occasions throughout the assessment period, the relevant notification periods were:
· 24 November – 10 December 2020
· 9 February – 25 February 2021
· 12 May – 26 May 2021
No. of Submissions: 552 public submissions were received in relation to Council’s notification of the development. The majority of the submissions were in objection to the development.
· First notification – 142 submissions;
· Second notification – 152 submissions; and
· Third notification – 258 submissions.
A total of 53 submissions received in support of the Development Application and 499 submissions objecting to the development application.
Purpose / Reason for consideration by Council
On 8 December 2020, the Strategy & Assets Committee resolved in relation to item SA20.257:
“That DA20/2172 – 8 Homestead Lane Berry - Lot 101 DP 1057897 - Commercial Additions - Alterations & Additions & Use of Existing 'Mananga Homestead' for Functions & Events be called to Council for determination due to significant public interest.” (MIN20.918)”
This report is prepared in response to the Strategy & Assets Committee resolution to call in DA20/2172.
Options
1. Refuse the Development Application in accordance with the recommendation.
Implications: The proposal would not proceed. The applicant can however apply for a section 8.2 review of Council’s decision and/or could lodge an appeal with the NSW Land and Environment Court (LEC) against Council’s decision.
2. Obtain legal advice regarding the potential for the approval of the application.
Implications: Staff will pursue obtaining legal advice to explore mechanisms for the approval of such a development, noting that in the opinion of staff the development is not capable of a positive recommendation.
3. Alternative recommendation.
Implications: Council will need to specify an alternative recommendation and advise staff accordingly.
Location Map

Figure 1 - Aerial image of the subject site in the local context.
![]()
![]()
![]()
![]()
![]()
![]()
![]()
![]()
![]()
![]()

Figure 2 - Aerial image of the subject site with the building nominated for use as a function centre and tourist cabins approved by Council pursuant to Development Consent No. DA19/2134.
Background
Proposed Development
The Statement of Environmental Effects (SEE) prepared by Cowman & Stoddart dated 4 May 2021 (D20/184961), describes the proposed development as follows:
“The proposal involves the use of the subject land for functions or events for up to 120 guests and comprises:
· Alterations and additions to the former cowshed building as follows: -
o Addition to the western end of the cowshed measuring approximately 9.5 m x 3 m to provide suitable amenities.
o Installation of commercial kitchen.
o Provision of exit doors to the eastern and northern elevations of the cowshed.
· The use of an existing building that will be able to accommodate functions or events for up to 120 guests.
· Construction of a timber pergola over part of an existing paved area.
· The use of the property is restricted to the cowshed building itself, plus the brick paved area to the north of this building
· On-site parking for 10 staff adjacent an existing internal accessway, plus capacity for 10 guests as emergency overflow.
· Conservation works as outlined in the Conservation Management Plan prepared by Navin Officer including:
o Replacement of plastic roof sheeting for Mananga Homestead dwelling with high quality translucent panels;
o Repoint brickwork in chimney stacks;
o Repairs to existing decking on Mananga Homestead dwelling involving punching exposed fittings, sanding back and staining timber decking to match existing;
o Damp-proofing of Mananga Homestead dwelling;
o Draught proof existing external timber doors to Mananga Homestead dwelling using sympathetic materials;
o Provision of interpretative signage to outline the history and function of the subject site;
o Provision of a sculpture/artwork which reflects the history of the site;
o Contouring of existing earth embankment adjacent the eastern boundary of the site;
o Establishment of an Heirloom garden, including pathways;
o Retaining wall and contouring of embankment to the eastern boundary of the site
o Planting of an avenue of trees adjacent the eastern boundary of the site.
· Site Landscaping and its management, as outlined in the Landscaping Plan and Management Schedule prepared by Savile & Will (Annexure 1), and which includes the retention of all significant vegetation and that having heritage significance, including a Norfolk Island Pine and grove of Eucalypt trees; and
· Ongoing maintenance works as outlined in the schedule prepared by Mitchell Brandtman.
The functions are to be undertaken between the hours of 10:00 am and 11:00 pm, and only one function is to occur on any day. Functions are typically likely to involve the use of the site for approximately 5 to 6 hours, and the hours proposed provide opportunity for both daytime or evening functions. For those functions undertaken of an evening, all music is to cease by 10:30 pm in order that all guests vacate the site by 11:00 pm.
The proposal is for up to 40 commercial functions in any one year, and a maximum of 1 in any week. In addition to the commercial component, it is proposed that the building be available to local charity groups for fund raising purposes, at no cost, on up to 10 occasions in any year.
Parking is proposed for 10 vehicles for staff associated with the functions. Formal parking is not proposed for guests, apart from those temporarily residing in the on-site accommodation units. Other guests will be transported to and from the site in mini-buses. As outlined above however, 10 spaces will be available as emergency overflow if required and these are located immediately adjacent an existing internal accessway and are not proposed to be formalised given their very infrequent use.”
Functions will cater for a maximum of 120 guests with amplified music. Receptions will be held within the shed building and music will be played within the shed building only; however, guests may access the paved courtyard and lawn area to the north and east of the building during functions.
Minibuses will be used to transport guests to and from the site and there is on-site accommodation (five (5) tourist cabins – approved according to Development Consent No. DA19/2134), that will be used by function centre attendees.
An overall site plan and floor plan of the shed for use as a function centre are provided in Figures 3 and 4 below.

Figure 3 – Extract of the overall site plan (D21/1849737).

Figure 4 - Extract of the proposed floor plan associated with the function centre, including works for additional bathrooms and timber pergola to the northern elevation (D21/45180).
Subject Land
The subject site is located on the eastern side of Homestead Lane and Queen Street, 600m north-east of the township of Berry. The property is an irregular-shaped allotment of approximately 1.98ha. The site is legally identified as Lot 101 DP 1057897 and is described as 8 Homestead Place, Berry. The site is also referred to as Mananga Homestead.
The land slopes gradually from the northwest to the southeast corner of the site. A recently approved dam is located in the south-eastern corner of the site and receives a portion of the runoff from the site. There are presently four (4) formalised access points to the site.
There is limited native vegetation across the site, with significant ornate European landscaped gardens around the curtilage of the dwelling and detached garage. The ornate landscaping forms a significant component of the heritage significance of the site. The property is locally listed under Schedule 5 of the Shoalhaven Local Environmental Plan 2014 (SLEP 2014) as an Item of environmental heritage (Item I63 - Mananga - Berry Estate Managers Farm Complex).
The existing development on the site consists of a Federation Queen Anne style homestead, associated outbuildings, earth dam and jetty, recently renovated associated shed for use as a home business (home industry and arts) and inground swimming pool. The site is listed, as mentioned above, and is identified as locally significant in the SLEP 2014 (Item No. I63).
Council has previously approved the renovation and use of the shed located to the south of the dwelling for use as a home industry/business (DA19/2060). The detached habitable rooms and a portion of the breezeway connecting the structure to the dwelling house, located to the north of the dwelling-house were destroyed by fire and are currently in the process of being rebuilt in accordance with Development Consent No. DA20/1266.
On 2 June 2020, Council granted Development Consent No. DA19/2134 for development described as
“Tourist and visitor accommodation and associated works, consisting of a total of five (5) individual tourist and visitor accommodation rooms, as follows:
· Demolition and rebuild of existing structure ‘Old Bails’ building for use as tourist and visitor accommodation (tourist cabin); and
· construction of two (2) detached single storey buildings each with two (2) rooms for use as tourist and visitor accommodation (tourist cabins)”
A Construction Certificate (CC20/1814) has been issued in relation to DA19/2134 and the tourist cabins are substantially commenced (refer to the aerial image of the subject site at Figure 2).
Site & Context
The site immediately adjoins the Bangalee Motel located to the south at 180 Queen Street. The Bangalee Motel features a single storey masonry motel building comprising 10 motel units, attached reception and manager’s residence, swimming pool and parking. Council has recently granted development consent to substantial additions to the available motel accommodation on this site through the construction of two x 2-storey buildings that will contain an additional 16 accommodation units, bringing the total to 26 (Development Consent DA17/1357). Development on the western side of Queen Street consists of detached dwelling houses and their associated uses. Development to the north and east largely consists of rural and residential land uses. Located further to the south of the site is the Pulman Heritage Conservation Area Scheduled under the SLEP 2014.
History
The property is locally listed under Schedule 5 of SLEP 2014, as an Item of environmental heritage (Item I63 - Mananga - Berry Estate Managers Farm Complex). The property was identified in the Shoalhaven Council Heritage Study 2003 and identified as reference number B087 " Mananga Federation, Queen Anne Style Farmhouse". The building is described as having regional significance.
The statement of significance provided by Heritage NSW indicates that
“Mananga”—Berry Estate manager’s farm complex is “an excellent Federation Queen Anne style farmhouse in weatherboard designed by noted Sydney architect Howard Joseland. Historical interest as a leasehold property, originally, on the Berry Estate. Closely associated with the early private town of Broughton Creek.”
The physical description of “Mananga” provided on the Heritage NSW State Heritage Inventory is as follows:
“The homestead and attached land is situated on the crest and eastern fall of a low but locally prominent spurline shoulder which forms the watershed between the Broughton Creek to the east, and Broughton Mill Creek to the west. The homestead is situated 80 metres to the east of Broughton Mill Creek and is elevated approximately eight metres above the surrounding valley floor.
A Federation Queen Anne style weatherboard homestead featuring a complex corrugated iron roof with decorative timberwork to gables (with Art Nouveau character), hipped skillion verandah returning to sides, timber posts and brackets. Verandas appear to have originally surrounded an original core building. An additional wing has been added to the north eastern corner of the building, sometime prior to 1949. A conservatory has been relatively recently added to the eastern side of the building. The building is surrounded by a mature garden. The homestead building is thought to be designed by noted Sydney architect Howard Joseland (1860-1930) (Peter Freeman Pty Ltd 1998).
The current property holding includes five outbuildings to the south of the current homestead, including a concrete silo, associated large iron sheds and disused milking bails. Eight outbuilding structures are visible on the 1958 aerial photo (Figures 6.91). Images appear to show interior rendered walls (and/or ceilings) within an outbuilding (buttery) constructed using sawn timber studs filled in using multiple timber slats with applied plaster or render.
At the southern end of the property there are landform traces of the excavated trench through the spurline (now filled in for the Princes Highway platform) which formed part of the infrastructure for the waterrace for the Berry Estate saw mill which dates from the 1830s.
Immediately north of the race alignment is the location of the original Mananga homestead or cottage. This site is associated with some exotic plantings and mature trees. This site, together with the infilled mill race should be considered and managed as archaeological deposits.
Original building had approximate dimensions 24 x 18 metres. The additional wing on NE corner has approximate dimensions: 15 x 11metre.
The current property attached with the homestead is approximately 250 x 118 metres in cross dimensions.”
Chronology of Development
On 27 April 1994, Council granted Development Consent No. DA93/3283, for development described as “Alteration & Additions to Existing Dwelling & Change of Use to Bed & Breakfast Accommodation” relating to the subject site. However, on 2 June 2020, this approval was surrendered by the owner.
On 20 October 2004, Council refused a Development Application (DA03/2381) for a brick fence on the subject site.
On 9 September 2019, Council granted Development Consent No. DA19/1519 for the continued use of an earth dam sited to the south of the building the subject of this current application.
On 9 December 2019, Council granted Development Consent No. DA19/2101 for a jetty to be constructed on the western bank of the approved earth dam.
On 30 January 2020, Council granted Development Consent No. DA19/2060 (as modified by DS20/1307) for “alterations and additions to an existing shed and silo and part use for the purpose of a home business, including the following activities: repair and restoration of furniture, flower arranging, holding of classes for furniture restoration, flower arranging, painting and other craft related activities, and knitting, sewing and craft”. The alterations and additions related to the building are the subjects of the current application.
On 21 March 2020, Council granted Development Consent No. DA20/1266 for the “partial demolition of structures (detached habitable rooms, carport and connecting breezeway). The structures were destroyed by a building fire.
On 26 March 2020, Council granted Development Consent No. DA20/1231 for development described as “additions to existing dwelling house consisting of detached habitable rooms, carport and breezeway. The approval enabled the elements destroyed by the building fire which were demolished via DA20/1266 to be rebuilt.
On 2 June 2020, Council granted Development Consent No. DA19/2134 for development described as
“tourist and visitor accommodation and associated works, consisting of a total of five (5) individual tourist and visitor accommodation rooms, as follows:
• Demolition and rebuild of existing structure ‘Old Bails’ building for use as tourist and visitor accommodation (tourist cabin); and
• construction of two (2) detached single storey buildings each with two (2) rooms for use as tourist and visitor accommodation (tourist cabins)
A Construction Certificate (CC20/1814) has been issued in relation to DA19/2134 and the tourist cabins are substantially commenced (refer to the aerial image of the subject site).
On 1 February 2021, Council granted Development Consent No. DA20/2353 for an inground swimming pool to be located to the east of the residence.
On 17 February 2021, Council granted Development Consent No. DA21/1044 for business identification signage relating to the approved tourist cabins. A Construction Certificate (CC21/1173) was issued for the swimming pool and deck on 3 March 2021.
Issues
Heritage
The site is zoned RU1 Primary Production under the provisions of SLEP 2014. Development for a ‘function centre’ is prohibited in the RU1 zone in accordance with the Land Use Table for the zone.
The development application (DA) has been made with regard to cl. 5.10(10) of the SLEP 2014.
Clause 5.10(10) of SLEP 2014 is extracted below as follows:
“(10) Conservation incentives
The consent authority may grant consent to development for any purpose of a building that is a heritage item or of the land on which such a building is erected, or for any purpose on an Aboriginal place of heritage significance, even though development for that purpose would otherwise not be allowed by this Plan, if the consent authority is satisfied that—
(a) the conservation of the heritage item or Aboriginal place of heritage significance is facilitated by the granting of consent, and
(b) the proposed development is in accordance with a heritage management document that has been approved by the consent authority, and
(c) the consent to the proposed development would require that all necessary conservation work identified in the heritage management document is carried out, and
(d) the proposed development would not adversely affect the heritage significance of the heritage item, including its setting, or the heritage significance of the Aboriginal place of heritage significance, and
(e) the proposed development would not have any significant adverse effect on the amenity of the surrounding area.”
The application is supported by the following heritage and planning documents that have been prepared in support of the Development Application:
· Mananga Homestead-Function Centre (Former Cowsheds and Silo) Statement of Heritage Impact (SoHI) prepared by Navin Officer dated April 2021, Project No. 210048 (D21/184997);
· Capital Works & Maintenance Cost Report prepared by Mitchell Brandtman dated 25 January 2021 (Project Ref No. 28644) (D21/184959);
· Mananga, Berry Estate Manager’s Farm Complex (Mananga Homestead) Conservation Management Plan (CMP) prepared by Navin Officer dated April 2021 (Project no. 210049) (D21/185437)
· Letter prepared by Beatty Legal dated 4 February 2021 (D21/45147);
· Memorandum of Advice – Mananga Homestead DA for Function Centre and Heritage Conservation Works (Memorandum of Advice) prepared by Tim Robertson SC dated 5 May 2021 (D21/185981);
· Statement of Environmental Effects prepared by Cowman Stoddart Pty Ltd dated 4 May 2021 (Ref No. 18/19) (D21/184961);
The heritage impacts of the development and use of clause 5.10(10) of SLEP 2014, have been reviewed by an external consultant - Dr Peter Kabaila of Black Mountain Designs as part of the assessment of the application (Refer to Heritage Review (D21/222540) - Attachment 3).
Applicant’s Submission
Effect of the proposed development on heritage significance – clause 5.10(4)
Based on the assessment of Navin Officer provided in the SoHI, the proposal does not adversely impact the heritage significance of the “Mananga”—Berry Estate manager’s farm complex (Item 63 – Schedule 5 – SLEP 2014).
Furthermore, it is not considered that the proposed works and use will have a significant impact on any listed heritage items and conservation areas in the vicinity of the subject site, which have local heritage significance, including:
· Pulman Street Conservation Area – Shown by red hatching and labelled “C1” – Schedule 5 – SLEP 2014
· “Constables Cottage”—Victorian Georgian style weatherboard cottage and garden - 185 Queen Street, Berry - Lot 1, DP 558065; Lot 5, DP 600374 – Item – 62 - Schedule 5 – SLEP 2014
It is considered by the applicant that the proposal provides an opportunity to formalise heritage management measures through the implementation of the CMP to ensure the ongoing conservation of the property to maintain its significance.
Conservation Incentives – Clause 5.10(10)
The SEE prepared by Cowman Stoddart summarises the applicant’s response to the five requirements of the clause in Table 4 of the SEE and is extracted in Table 1 below. Furthermore, the Memorandum of Advice prepared by T Robertson SC has reviewed the relevant application of clause 5.10(10) in light of current case law from paragraph [17]-[31] of the advice and concludes at [31] that:
“it is open to Council to be satisfied (now) that the application complies with the preconditions to the conservation incentives clause and therefore that the development of a function centre is permissible with consent.”
Table 1 - Applicant's assessment of clause 5.10(10) as extracted from the submitted SEE (D21/184961) pg 49-50
|
Clause 5.10(10) – Conservation Incentives |
Applicant’s Response |
|
(a) the conservation of the heritage item or Aboriginal place of heritage significance is facilitated by the granting of consent, and |
Accompanying this SEE are the following separate assessments and documents: · A Statement of Heritage Impact and Conservation Management Plan prepared by Navin Officer; · Capital Works and Maintenance Costs Report prepared by Mitchell Brandtman Quantity Surveyors (MBQS). MBQS have expertise in quantifying costs associated with the ongoing maintenance and conservation of heritage buildings. The use of the property as a function centre will facilitate the conservation of the heritage significance of Mananga Homestead in a number of ways. Firstly, the proposal will ensure the ongoing retention and conservation of the cowshed building and silo, both features identified by Navin Officer as contributing to the heritage significance of the place, and which contribute to the landscape qualities of the Berry District Landscape Conservation Area. This is in addition to the conservation of other elements of the site including the Mananga Homestead, significant heritage trees, surrounding gardens and water race. Secondly, the proposal will involve interpretative signage concerning the old Broughton Post Office and remnant water race (implemented through the CMP) which will assist visitors to the site understand the history of the old Broughton Creek settlement, relevant to both the Pulman Street Conservation Area and Constables Cottage. Thirdly, whilst the property is currently in good condition, funds generated through the commercial use will contribute to the maintenance of the property to ensure its ongoing conservation. The Capital Works and Maintenance Costs Report prepared by MBQS provides a very detailed assessment of the costs associated with this development proposal, and which separately identifies costs associated with its maintenance, identifying costs in the short term (1 year), medium term (2 to 4 years) and recurrent costs both on an annual and biennial basis. The works identified in the MBQS align with conservation measures outlined in the Conservation Management Plan. The MBQS identifies the following costs for maintenance associated with the property: · Short term - $154, 800; · Medium term - $62,000; · Recurring annual - $161, 900; · Recurring biennial - $24,700. Navin Officer consider that the costings outlined by MBQS are a realistic assessment of the maintenance costs associated with properties such as Mananga Homestead. Finally, the proposal enhances the heritage significance of the site by enabling the property to be seen by the public (being visitors and guests of functions) who would otherwise be excluded from this private property. The Statement of Heritage Impact prepared by Navin Officer has considered the assessment of MBQS and advises that these works contribute to the conservation of the heritage significance of the subject site. The use of the property as a function centre will clearly facilitate the conservation of the heritage significance of Mananga Homestead in many ways, thereby satisfying the provisions of subclause (a).
|
|
(b) the proposed development is in accordance with a heritage management document that has been approved by the consent authority, and |
For the purposes of the Shoalhaven LEP 2014, a heritage management document is defined as: (a) a heritage conservation management plan, or (b) a heritage impact statement, or (c) any other document that provides guidelines for the ongoing management and conservation of a heritage item, Aboriginal object, Aboriginal place of heritage significance or heritage conservation area. The proposal is accompanied by a SHI prepared by Navin Officer and a CMP to further establish the relative significance of the various elements of the property and outline agreed heritage conservation policies to guide its future management.
|
|
(c) the consent to the proposed development would require that all necessary conservation work identified in the heritage management document is carried out, and |
The recommendations of the SHI and CMP can be included as conditions of consent.
|
|
(d) the proposed development would not adversely affect the heritage significance of the heritage item, including its setting, or the heritage significance of the Aboriginal place of heritage significance, and |
This has been assessed by Navin Officer and which concludes that the proposal does not adversely affect the heritage significance of the subject site. Furthermore, the assessment of Navin Officer has concluded that the proposal will not significantly adversely affect the heritage significance of other identified heritage times, including the Berry District Landscape Conservation Area, Pulman Street Conservation Area, or Constable's Cottage.
|
|
(e) the proposed development would not have any significant adverse effect on the amenity of the surrounding area. |
The proposal has been subject of a number of separate expert assessment including: · Environmental Noise Impact Assessment prepared by Harwood Acoustics; · Traffic and Parking Impact Assessment prepared by McLaren Traffic Engineering; and · Statement of Heritage Impact prepared by Navin Officer. All of these assessments conclude that the proposal does not result in significant adverse impacts. In addition, the proposal has been assessed in the Statement of Environmental Effects prepared by our firm which also concludes that the proposal does not adversely affect the amenity of the locality.
|
Based upon the analysis, assessment, and conclusions of the SOHI, the SOHI makes the following recommendations in relation to the works and use of the site (Refer to page 43 of the SOHI – D21/184997):
“1. The proposed further works: The proposed works as detailed in this report are considered to have minimal heritage impacts on Mananga and no negative heritage impacts on neighbouring heritage items and are therefore recommended for approval as they will complete and compliment the works already approved as part of the adaptive reuse of these structures.
2. The change of use to include use as a function centre: The proposed variation of use to include wedding receptions, and similar, is not considered to be detrimental to the heritage values. The property has been periodically exposed to large numbers of visitors through the annual open garden program. While use of the cowsheds and silo as a function centre will involve more wear and tear on the structures, this can be managed through regular maintenance in line with the policies in the CMP. The change of use has the benefit of providing a more resilient income stream to ensure the long-term management of the property.
3. Long term management of the heritage values of Mananga: It is recommended that the CMP which has recently been prepared for the property is formerly adopted to guide the future management of the property. It establishes the relative significance of the various elements of the property and sets out agreed heritage conservation policies and strategies to guide its future management. The Capital Works and Maintenance Cost Report (Mitchell Brandtman 2021) provided information that has been integrated into the cyclical maintenance schedule of the CMP.
4. Heritage Interpretation: The CMP provides policies to guide the interpretation for the property. The owner already has ideas for interpretation of the remnant water race and the former Berry post office.
5. Unanticipated archaeological finds: Although the archaeological potential around the cowsheds and silo has been assessed as low, it is always possible that unexpected archaeological material may be encountered on historic properties during ground disturbance works. It is important to note that archaeological deposits of either Aboriginal or historical settler origin are protected by legislation in NSW. Therefore, it is recommended that the unanticipated finds protocols included as Appendix 3 in this report are adopted and are included in contractor’s contracts.
Provided these recommendations are followed, then landscape values associated with the Mananga - Berry Estate Manager's Farm Complex, and the properties inherent value to the broader local area, are not considered to be at risk. In particular, the rural/agricultural setting of the structures are maintained and are readily interpretable within the landscape. Indeed, the retention of the structures and their re-purposing is desirable and will ensure their future maintenance and active interpretation”.
Council’s Assessment
Clause 5.10 - Heritage Conservation
As the site contains a heritage item, cl. 5.10 Heritage conservation applies to the development. The objectives of cl 5.10 of SLEP 2014, ‘Heritage Conservation’ at sub-cl (1)(a)-(d), are:
(a) to conserve the environmental heritage of Shoalhaven,
(b) to conserve the heritage significance of heritage items and heritage conservation areas, including associated fabric, settings and views,
(c) to conserve archaeological sites,
(d) to conserve Aboriginal objects and Aboriginal places of heritage significance.
Council as the consent authority must, before granting consent in respect of a heritage items and heritage conservation areas, consider the effect of the proposed development on the heritage significance of the item and the area.
Clause 5.10(4) - Effect of the proposed development on heritage significance
Clause 5.10(4) sets out the matters that the consent authority must consider - specifically "the effect of the proposed development on the heritage significance of the item or area concerned". Council must form the opinion that the impact of the proposed development on the heritage significance of the item is acceptable.
The heritage impacts of the development on the item and the surrounding items of heritage significance, including the Constables Cottage and Pulman Conservation Area, has been reviewed by an external consultant - Dr Peter Kabaila of Black Mountain Designs as part of the assessment of the application (the Heritage Review is provided as Attachment 3).
The outcomes of the Heritage Review indicate that the only specific suggestion of adverse effect is the position of proposed car park spaces 4-11. The Heritage Review does not otherwise suggest that this particular development will adversely affect the significance of the heritage item, however, it does observe that previous developments have cumulatively affected that significance.
It is not considered that the proposed works and use will be sufficiently detrimental to any adjoining heritage item or conservation area to warrant refusal of the application pursuant to s4.15(1)(b) of the EP&A Act.
Clause 5.10(5) - Heritage assessment
Clause 5.10(5) may require the preparation of a heritage management document that assesses the extent to which the carrying out of development that would affect the heritage significance of the heritage item or heritage conservation area concerned, in relation to development:
(a) on land on which a heritage item is located, or
(b) on land that is within a heritage conservation area, or
(c) on land that is within the vicinity of land referred to in paragraph (a) or (b),
The development application is supported by Mananga Homestead-Function Centre (Former Cowsheds and Silo) Statement of Heritage Impact (SoHI) prepared by Navin Officer dated April 2021, Project No. 210048 (D21/184997) and the other heritage and legal documents listed previously. These documents satisfactorily address clause 5.10(5) and have been reviewed by an external Heritage Consultant engaged by Council - Heritage Review (D21/222540).
Clause 5.10(10) - Conservation incentives
In accordance with sub-clause (10) of cl. 5.10, the consent authority has a discretionary power to grant consent to development for any purpose of a building that is a heritage item or of the land on which such a building is erected, or for any purpose on an Aboriginal place of heritage significance, even though development for that purpose would otherwise not be allowed by this Plan if the consent authority is satisfied that the application meets sub-cl. (a) – (e).
The five requirements are conjunctive and jurisdictional and so the proposed development, for a use otherwise prohibited under SLEP 2014, must meet each of the five requirements to be capable of being granted consent under the clause.
“(a) the conservation of the heritage item or Aboriginal place of heritage significance is facilitated by the granting of consent, and
(b) the proposed development is in accordance with a heritage management document that has been approved by the consent authority, and
(c) the consent to the proposed development would require that all necessary conservation work identified in the heritage management document is carried out, and
(d) the proposed development would not adversely affect the heritage significance of the heritage item, including its setting, or the heritage significance of the Aboriginal place of heritage significance, and
(e) the proposed development would not have any significant adverse effect on the amenity of the surrounding area.”
Furthermore, the development alone must satisfy the jurisdictional requirements alone to satisfy Council of the requirements under sub-cl. (a) – (e), Council cannot look to impose a condition that would otherwise, in the view of Council, enable the requirement to be satisfied. In this regard, it is important to note that conditions cannot be used to satisfy a requirement under clause 5.10(10).
In Council’s consideration of the application of clause 5.10(10) Council has considered the supporting information submitted by the applicant, the heritage consultant engaged by Council and independent legal advice.
The focus of the heritage incentive clause is on expanding the uses to which a building (or an Aboriginal place) identified as a heritage item, or the land on which the building is erected, can be put to, in order to facilitate the conservation of the building (or the Aboriginal place) - Howe Architects Pty Ltd v Ku-ring-gai Council [2021] NSWLEC 1233 at [37].
a) the conservation of the heritage item or Aboriginal place of heritage significance is facilitated by the granting of consent, and
The first step in consideration of cl. 5.10(10) is to first identify what is the heritage item and what is its significance. It is considered that the identification of the heritage item and its significance has been appropriately detailed through the applicant’s supporting information.
The term ‘conservation’ is not defined in the Dictionary to SLEP 2014 and therefore it is appropriate to consider the definition of ‘conservation’ as defined by the Burra Charter, 2013. Article 8 of the Burra Charter (2013) provides as follows:
“Conservation requires the retention of an appropriate setting, this includes retention of the visual and sensory setting, as well as the retention of spiritual and other cultural relationships that contribute to the cultural significance of the place.
New construction, demolition, intrusions or other changes which would adversely affect the setting or relationships are not appropriate.”
Likewise, the term ‘facilitated’ is not defined in the Dictionary to SLEP 2014. Reasonably construed, it is not the purpose of the clause to enable reliance upon works of a de minimis nature (Parramatta City Council v Hale (1982) 47 LGRA 319 at p. 335 per Street CJ).
In relation to the interpretation of the meaning of ‘facilitate conservation’, the Court found in David Fox v North Sydney Council [2016] NSWLEC 1366 at [47]:
“Facilitating conservation requires a higher threshold than just ensuring the proposal does not adversely impact on the identified heritage significance of an item. In order to facilitate the conservation of the heritage item, the proposal must assist in retaining its cultural significance, such as by revealing and interpreting the heritage significance of the item.”
From the case law, it is generally held that the need to carry out minor maintenance works which is an ordinary incident of property ownership is not within the scope and purpose of conservation work within the meaning of cl 5.10(10) and would not ‘facilitate’ the conservation of the heritage item.
The Heritage Review (D21/224818) suggests that the Development Application entails very little conservation of the heritage item. In particular, it identifies that seven (7) of the items in the Capital Works & Maintenance Cost Report could be seen as conservation works, with the remaining thirty (30) items being works for “maintaining the property at its current, highly renovated, standard”. There is a suggestion that interpretive works could be key to “heritage conservation”, given the highly renovated status of the item and that any detail of heritage interpretation is missing from the heritage documentation.
Based upon Council review of the application and the outcomes of the Heritage Review it is questionable whether the proposed development does in fact facilitate conservation of the heritage item.
Council is therefore not satisfied that the DA meets the criterion in sub-cl. 5.10(10)(a) of the SLEP 2014 notwithstanding the cost to carry out the proposed works.
b) the proposed development is in accordance with a heritage management document that has been approved by the consent authority, and
The applicant has provided the following heritage documentation in satisfaction of this sub-clause:
· Mananga Homestead-Function Centre (Former Cowsheds and Silo) Statement of Heritage Impact (SoHI) prepared by Navin Officer dated April 2021, Project No. 210048 (D21/184997);
· Capital Works & Maintenance Cost Report prepared by Mitchell Brandtman dated 25 January 2021 (Project Ref No. 28644) (D21/184959);
· Mananga, Berry Estate Manager’s Farm Complex (Mananga Homestead) Conservation Management Plan (CMP) prepared by Navin Officer dated April 2021 (Project no. 210049) (D21/185437)
Clause 5.10 refers separately to a heritage management document “that assesses the extent to which the carrying out of the proposed development would affect the heritage significance of the heritage item” and a heritage conservation management plan. In requiring that the development is in accordance with a “heritage management document that has been approved”, the clause has no clear pathway for “approval” of either of those documents.
The wording of this clause would require that a heritage management document be firstly approved by Council prior to the grant of consent under this sub-cl. Council has not approved a heritage management document relating to the development. Furthermore, the above three documents (if considered as a single document forming a heritage management document) are not in a form and containing relevant conservation works to satisfy sub-clause. 5.10(10)(a) of the SLEP 2014. Council could not approve these documents in their current form and conditions could not be imposed to rectify any deficiency or inadequacy in these documents.
It follows that Council is not satisfied that the DA meets the criterion in sub-cl. 5.10(10)(b) in that the Heritage Management Document could not be approved in its current form.
c) the consent to the proposed development would require that all necessary conservation work identified in the heritage management document is carried out, and
A Capital Works & Maintenance Cost Report and Conservation Management Plan have been submitted as part of the application.
Council must be satisfied that development consent will, by reference to these documents, satisfy Council that all necessary conservation work will be carried out, in that the policies are adequately tied to actions, priorities and timing.
The Heritage Review indicates that the Development Application does not include all necessary conservation works to an extent that would allow Council to be satisfied of this criterion. The Heritage Review maintains that:
· the Capital Works & Maintenance Cost Report is not a schedule of necessary conservation work;
· the heritage landscape plan does not describe works which go towards the heritage item and its conservation;
· there is a need for details of the interpretive works and a timeframe for those works;
· redesign and rebuilding of the carport and its link is necessary; and
· there is a need for a low hedge or stone wall at the northern edge of the house driveway if the additional car parking spaces are to be provided to service the development.
Council is not satisfied that the Development Application meets the criterion in sub-clause. 5.10(10)(c) of the SLEP 2014.
d) the proposed development would not adversely affect the heritage significance of the heritage item, including its setting, or the heritage significance of the Aboriginal place of heritage significance, and
The applicant’s Statement of Heritage Impact (D21/184997) and Conservation Management Plan (D21/185437) both indicate that the Development Application will not adversely affect the significance of the heritage item.
The only specific suggestion of adverse effect in the Heritage Review is the position of proposed car park spaces 4-11 (refer to Figure 6). Were car parking spaces 4 -11 to be required to be formalised there would likely be an impact on the heritage item and Council could not be satisfied that the Development Application meets the criterion in subclause 5.10(10)(d) of the SLEP 2014. However, the applicant has not proposed to formalise these car parking spaces and does not seek to utilise these as part of the application.
The Heritage Review does not otherwise suggest that this particular development will adversely affect the significance of the heritage item, however, it does observe that previous developments have cumulatively affected that significance.
It is important to note that a condition could not be imposed to delete car parking spaces 4-11 from the plans in order to satisfy this sub-clause. Granted that a condition cannot be imposed to delete these car parking spaces the inclusion of these spaces, on the account of the Heritage Review, will result in an adverse impact. Were the parking spaces to be removed by the applicant prior to determination it is considered that the development would not have an adverse effect on the heritage significance of the heritage item, including its setting. However, the removal of the spaces raises another issue which is discussed later in this report, and that is car parking.
Council is not satisfied that the Development Application meets the criterion in sub-cl. 5.10(10)(d) of the SLEP 2014. The proposed development as currently proposed includes car parking spaces 4-11 which are considered to have an adverse impact on the heritage significance of the heritage item, including its setting.
e) the proposed development would not have any significant adverse effect on the amenity of the surrounding area.
As stated by the Court in Fox v North Sydney Council [2020] NSWLEC 1056 at [43]:
“Under cl 5.10(10)(e), a consent authority needs to, in a sense, turn away from heritage factors and be satisfied of a further factor before the incentivising provisions of the clause are triggered. This is that “the proposed development would not have any significant adverse effect on the amenity of the surrounding area”
The term ‘amenity’ is not defined in the Dictionary to SLEP 2014; however, the concept was considered by the Court in the case of New Century Developments Pty Limited v Baulkham Hills Shire Council [2003] NSWLEC 154 at [53]
“The amenity of the locality is encompassed by the consideration of environmental impacts on both the natural and built environments, and social and economic impacts in the locality required by s 79C(1)(b) of the EP&A Act. The concept of “amenity” is wide and flexible (Broad v Brisbane City Council & Anor (1986) 59 LGRA 296), transcending the merely physical content (Perry Properties Pty Ltd v Ashfield Council (No. 2) (2001) 113 LGERA 301 at 317 per Bignold J).”
The physical works to the site are minor and will not impact the significance of the heritage item or the surrounding items of heritage significance (except for the car parking as mentioned above). Furthermore, it is not likely that there will be any significant visual impacts associated with the development. The visual issues raised as part of the Heritage Review point to previous developments (such as the carport/garage) rather than the “proposed development”. In this regard, it is not anticipated that the proposal will have any significant adverse impact on the built environment.
It is not anticipated that the proposal will have any significant adverse social or economic impact on the locality.
In relation to the potential noise impacts or impacts on the natural environment associated with the development, however, it is noted later in this report that the development does not provide sufficient assessment of the noise impacts to justify that the impacts will be reasonable and not result in a significant adverse impact. The Acoustic Review completed by Day Design suggests that:
a. the liquor and gaming noise criteria should apply which are more stringent. However, it is not suggested that this would then result in a significant amenity impact.
b. Noise impacts are not relevant to the Transport for NSW property, as the dwelling there is derelict and there is no imminent residential use of the land. Accordingly, it is not an affected receptor. This approach is taken by the applicant’s acoustic assessment and supported by the Memorandum. It is however contrary to the position taken by Transport for NSW.
c. Contrary to the amended noise impact assessment, the calculated noise level at receptor 1 should be 43 dBA. However, this only affects amenity from 10 pm with regard to outside guests. A restriction on the use of the outdoor space after 10 pm is proposed.
Given that the DA does not provide sufficient information to satisfy Council of the potential noise impacts it would not be open to Council to conclude that the development has satisfied this requirement. Furthermore, Council cannot impose a condition to require satisfaction of this clause where it is unclear as to the development’s satisfaction of the sub-clause.
Council is not satisfied that the Development Application meets the criterion in sub-cl. 5.10(10)(e) of the SLEP 2014.
Conclusion
As previously stated, the relevant assessment under sub-cl. 5.10(10) requires Council to be satisfied with each of the five (5) requirements (i.e. they are conjunctive) and so the proposed development, must meet each of the five (5) requirements to be capable of being granted consent under the clause.
The proposed development has been assessed and established not to satisfy sub-clauses. (a)-(c) and (e). Council, therefore, cannot approve the DA in accordance with cl. 5.10 of SLEP 2014.
Noise Impacts
The proposal is the use of the buildings on the site for a function centre for a maximum of 120 guests with amplified music. Receptions will be held within the shed building and music will only be played within the shed building. Guests may access the paved courtyard and lawn area to the north and east of the building during functions.
The main sources of noise from any proposed functions will include amplified music, guest noise and motor vehicle movements.
In order to assess the potential for any significant impact on surrounding neighbours, the DA is supported by a noise impact assessment and response to submissions relating to noise impacts and veracity of noise assessment:
· Noise Impact Assessment – Response to Submission prepared by Harwood Acoustics dated 2 February 2021 (D21/45140);
· Environmental Noise Impact Assessment (ENIA) prepared by Harwood Acoustic dated 7 April 2021 (D21/207955).
The noise impacts associated with the development application have been reviewed by Council’s Environmental Health Officers and by an external consultant – Stephen Gauld of Day Design Pty Ltd.
The relevant test of the impact associated with noise and amenity is reflected under cl 5.10(10) of SLEP 2014. Sub-clause. 5.10(10(e) requires Council to be satisfied that the development would not have any significant adverse effect on the amenity of the surrounding area.
Applicant’s Submission
Sensitive Receptors
The closest residences to the site are 12 Homestead Lane, Berry to the northeast, 185 Queen Street to the south-west and 1 Pulman Street further to the south-west (refer to Figure 5 below). Consideration is also given in this assessment to the Bangalee Motel, although this is a commercial receptor and not a residential receptor. The derelict property opposite the subject site (191 to 195 Queen Street), were not considered at this stage to be a potentially affected residential receptor.

Figure 5 - Figure 1 extracted from the applicant's ENIA. R1 – 12 Homestead Lane (Circa 150 metres), R2 – 185 Queen Street (Circa 180 metres) R3 – 1 Pulman Street (circa 245 metres) R4 – 180 Queen Street (circa 180 metres) Bangalee Motel – Commercial Receptor
Assessment Methodology
The applicant has adopted the noise assessment methodology from the EPA’s Noise Guide for Local Government 2013, to assess the potential for any significant impact on surrounding neighbours. Acceptable noise limits are derived from the EPA’s Noise Guide criteria at the nearest residences to the site. These are 51 dBA Leq, 15 minutes during the day period (7 am to 6 pm), 45 dBA Leq, 15 minutes during the evening period (7 pm to 10 pm) and 38 dBA Leq, 15 minutes during the early night-time period between the hours of 10 pm and 12 midnight.
These noise limits are based on measured background noise levels in the vicinity of the nearest neighbours to the site. Consideration was also given to the potential for sleep disturbance as well as on-road traffic noise.
The applicant has considered the potential noise from any proposed functions, including; amplified music, guest noise and motor vehicle movements.
Recommendations
The applicant’s ENIA has recommended management and operational requirements to reduce the level of noise emission to within acceptable limits as received at all receptors. These include limiting the level emitted from the playing of amplified music at various times and establishing a Noise Management Plan. The recommendations of the ENIA are extracted and summarised below:
· Maximum allowable amplified music level and restriction on amplified music:
o 88 dBA Leq, 15 minutes; and
o cease all amplified music at 10.30 pm;
· Building openings:
o Day time (7 am to 6 pm) - no restriction and no limitation on the use of the courtyard or southern deck by guests.
o Evening time and early night time (6 pm to 12 am)
§ amplified music is restricted to within the building;
§ Openings in the southern or northern facade of the building should not exceed 2m2; and
§ No restriction on building opening where there is no amplified music.
· Operational/management requirements;
o An electronic noise limiting device may be installed inside the building with a warning that the maximum noise level is close to being breached.
o All amplified music should be controlled through an in-house sound system that is directed through the noise limiting device.
o a sound level meter may be purchased from an electronics store so that the owner or property manager may ‘spot check’ for noise compliance during or prior to functions.
o There should be no function activity at the site after midnight on any day.
Providing these recommendations are implemented and maintained, the acceptable noise limits set by the EPA and required by Shoalhaven City Council can be met at all receptor locations.
The proposal can be controlled to ensure there is no significant impact on neighbouring receptors in accordance with the acoustical requirements of Clause 5.10(10)(e) of SLEP 2014 can be satisfied.
Council’s Assessment
Council’s Environmental Health Officers have reviewed the applicant’s ENIA and supporting information and have concluded in their referral (D21/48725) in relation to the assessment, recommendations and conclusions of the ENIA, that:
“The additional acoustic assessment prepared by Harwood Acoustics has addressed the further information requested to some extent, however, it has not given any consideration to the TfNSW property directly across the road at 191-195 Queen Street which according to Councils GIS is approximately 80m. (Refer map below). This distance is less than half that which has been considered for the other nearby receivers (150-180m) and would therefore require a considerable acoustic re-assessment of the proposed function venue to assess the potential noise impact upon this rural/residential property.”
Council cannot determine the application until such time as the following additional information is provided:
1. Additional information (acoustic assessment) should be submitted addressing the potential noise impact upon the Bangalee Hotel at 180 Queen Street and the existing residence at 191-195 Queen Street. These two residential locations were not considered as part of the ENIA.
Consideration could also be given to some of the residents in Pulman Street, especially those located to the North.
2. Further information on how the in-house sound system can cater for two pre-set maximum allowable amplified noise levels (86dBA and 91dBA) and remain secure from being accessible to others is requested. Achieving this provision is critical if this proposal is to operate in a manner that would not have a significant adverse impact upon other residential receivers.
Subsequent to the comments and recommendations being received by Council’s Environmental Health Officers, Council engaged an external specialist noise consultant – Stephen Gauld of Day Design Pty Ltd to review the applicant’s ENIA and the noise conclusions drawn in the Memorandum of Advice provided by T Robertson SC.
The Acoustic Review (Attachment 4) concludes that:
· The ENIA relies on standard assessment criteria, based on EPA’s Noise Guide for Local Government 2013. Granted that the facility will operate in the same way as a licensed facility (albeit that guests will be responsible for providing alcohol, food and entertainment and as such the owners will not require a liquor licence), the more stringent Liquor and Gaming Noise Criteria should apply as the facility will operate more in line with a licensed facility with the service of alcohol being the responsibility of the catering staff and not the function venue.
· Noise impacts are not relevant to the Transport for NSW property, as the dwelling there is derelict and there is no imminent residential use of the land. Accordingly, it is not an affected receptor.
· Separate noise predictions have been made for different aspects of the proposal (eg patrons & music, mechanical plant, traffic), which is not correct unless a cumulative noise level is also calculated, which has not been shown. Nevertheless, the dominant noise will be from the music inside the building and from guests outdoors, with other aspects of the proposal adding little to the cumulative noise level.
· Concerns have also been raised in relation to data presented in Table 10 of the ENIA. For a sound power level (SWL) of 95 dBA (Section 4.1.2) for guests outdoors, and a distance of 150m to 12 Homestead Lane, the calculated noise level at 12 Homestead Lane should be 43 dBA, not 38 dBA. This higher level is acceptable until 10 pm, but not after 10 pm (see Table 10). Note that no assessment has been provided for guests outside after 10 pm.
· There is also no assessment of the noise emission for the end of the function as guests farewell the wedding couple and perhaps mingle outside. I note the main outdoor area directly faces the residence at 12 Homestead Lane.
Conclusion
The submitted ENIA has been reviewed by Council’s EHOs. Furthermore, an external specialist noise consultant – Stephen Gauld of Day Design Pty Ltd (Attachment 4) has review the applicant’s ENIA and the noise conclusions drawn in the Memorandum of Advice provided by T Robertson SC.
In conclusion, the information before Council is not satisfactory to enable a definitive determination as to whether the use of the site will have a significant adverse impact on the surrounding area. Additional assessment of the application against the more stringent Liquor and Gaming Noise Criteria should apply as the facility will operate more in line with a licensed facility with the service of alcohol the responsibility of the catering staff and not the function venue. Furthermore, an assessment of the impacts of guests outside after 10 pm would be required.
While the Acoustic Review recommends the implementation of a number of conditions to ameliorate noise it is unclear if this will be acceptable. Further, the amelioration measures, should form part of the application to properly resolve sub-clause (e).
Car Parking and Traffic
The car parking requirements and traffic impacts of the development have been considered as part of the assessment of the development application. In support of the applicant’s proposal the applicant has submitted the following reports:
· Traffic and Parking Impact Assessment (TPI) prepared by McLaren Traffic Engineering dated 30 March 2021 (D21/184960);
· Letter of Response to Council Comments for The Events & Wedding Functions Facility At 8 Homestead Lane, Berry prepared by McLaren Traffic Engineering (Reference: 210019.02FE) dated 30 March 2021 (D21/184966); and
· Statement of Environmental Effects prepared by Cowman Stoddart Pty Ltd dated 4 May 2021 (Ref No. 18/19) (D21/184961).
Access
Four (4) separate access points are provided to the site along the Homestead Lane and Queen Street frontage. The Mananga Homestead may be accessed via two access points located toward the northern extent of the site off Homestead Lane. The tourist accommodation is serviced by separate ingress and egress driveways. The ingress point being on Homestead Lane near the Queen Street intersection and the egress point located to the south of the same intersection on Queen Street.
No change to the access points is proposed as part of the application.
Car Parking
In accordance with Chapter G21: Car Parking and Traffic of Shoalhaven Development Control Plan 2014 (SDCP 2014), car parking for a function centre is required to be provided at a rate of 1 space per 6.5m² of public dining area.
Car parking details are provided as follows:
· The floor area of the function centre is 155m2 (110m2 dining room and 45m2 dance floor).
· A total of 23.8 (24) off-street car parking spaces are required.
· Guests (other than those accommodated on-site) will be transported via two (2) x 12-seat minibuses from their local off-site accommodation to the function centre.
· A total of ten (10) staff will be required during functions.
· A total of twelve (12) car parking spaces are proposed to the south of the Mananga Homestead. Ten (10) of the nominated car parking spaces are proposed for use by staff. A total of two (2) car parking spaces will be available for the use of function guests.
· An additional seven (7) car parking spaces (including one (1) accessible space) are approved and support the existing tourist accommodation (DA19/2134). Five (5) of the car parking spaces proposed (including one (1) accessible spaces) are required to service the existing development.
An extract of the applicant’s site plan with details of the car parking arrangements is provided in Figure 6 below:

Figure 6 - Extract of Site Plan with further details of proposed parking arrangements. Council has marked-up aspects of the plan to highlight the proposed parking arrangements
Applicant’s Submission
The applicant’s TPI (D21/184960) provides an assessment of the following traffic and car parking issues associated with the Development Application:
· The existing traffic and parking conditions, including:
o The road hierarchy.
o The existing traffic management
o The existing traffic and parking environment
o The future road and infrastructure upgrades
· Parking assessment, including:
o A parking justification for use by minibus
o Disabled parking
o Bicycle and motorcycle parking
o Servicing and loading
o Car parking design and compliance
The applicant’s TPI (D21/184960) makes the following conclusions on page 18 of the Report as follows:
“In view of the foregoing, the subject proposal at 8 Homestead Lane, Berry for a function facility is fully supportable in terms of its traffic and parking impacts with due regard to traffic flow efficiency and road safety considerations. The following outcomes of this report are relevant to note:
• The proposed development requires 24 car parking spaces based upon Council’s DCP. The proposed plans detail a combined total of 19 car parking spaces, resulting in a parking shortfall of five (5) spaces from Council’s DCP requirement when considering the tourist accommodation being occupied by guests attending the function.
• Sufficient room is provided for 10 informal spaces dedicated primarily to staff, adjacent to the Mananga Homestead, meeting the function centres staff parking demand. Carpooling between staff will be promoted to reduce the staff car parking demand with any available parking spaces used by guests who do not comply with the Plan of Management and advertised requirements.
• All visitors not staying on-site will be transported to and from their accommodation within Berry using two (2) private 12-seater Minibuses (Toyota HiAce Commuter, Mercedes-Benz Sprinter Transfer Minibus or similar), which can carry 11 passengers before and after each event. A plan of management shall be developed to communicate to guests that no-parking is available on-site for guests and that they shall use the minibus transport service to get to and from the function facility.
• It is expected that the proposed development will operate with no change to waste collection compared to the existing operation of the site. Waste generated from functions will be removed from the site by staff after the conclusion of the function.
• The site is expected to generate a worst-case peak of 39 (29 IN, 10 OUT) vehicle trips in the one-hour period before a function on either a Saturday or Sunday. The impacts of the traffic generation have been modelled using SIDRA INTERSECTION 8.0, indicating that there will be no detrimental impact to the performance of the intersections as a result of the generated traffic.
• The existing car park layout (associated with the tourist accommodation) meets the dimension requirements of both AS2890.1:2004, AS4299:1995 and AS2890.6:2009. Informal staff parking, during functions will be provided on the gravel/grass area, adjacent to the Mananga Homestead.
• The exit driveway exceeds the sight line requirements for an 80km/h road design and is located within a superior location compared to Homestead Lane.
• In accordance with Clause 5.10(10)(e) of the Shoalhaven LEP 2014, from a traffic and parking perspective, the proposed development will not have any significant adverse effect on the amenity of the surrounding area.”
Council’s Assessment
The car parking requirements and traffic impacts of the development have been reviewed by Council Development Engineer and City Services.
The car parking does not comply with Chapter G21: Car Parking and Traffic of SDCP 2014. The shortfall in car parking and the design of the additional proposed car parking to the south of Mananga Homestead are not supported for the following reasons:
· The development is required to provide a total of 24 spaces for the use of staff and guests associated with the function centre. The applicant has nominated 20 spaces to the south of the Mananga Homestead (refer to Figure 6 above). Twelve of the car parking spaces highlighted green are proposed to be constructed to an all-weather standard.
Car parking numbered 4 – 11 are to be retained as grass and are not supported by Council’s development engineers as any car parking supporting the function venue are required to be constructed to an all-weather standard. In accordance with the applicant’s TPI (D21/184966) (refer to page 2):
“It has been advised by the client that an additional ten (10) informal overflow parking spaces are available within the employee parking area as identified on the updated plans provided in Annexure C. These parking spaces will cater for any patrons who do not follow the clear directions of the Plan of Management, and instead drive to the site. Their existence will not be advertised, and their use will be at the discretion of the operator.”
Ten (10) of the 12 car parking spaces are not designed to be open and accessible to the public and will be informal overflow parking spaces are available within the employee parking area. This is a shortfall of 12 spaces or 50% of the required car parking.
· Notwithstanding the above numerical shortfall, Section 5.2.3 of Chapter G21 allows Council to take into consideration the shared or co-use of on-site car parking facilities following the completion and submission of a parking impact and needs study by an independent suitably qualified professional. Any discounting that may be allowable for multi-purpose trips within a mixed-use development will have a maximum discount of 25%.
As noted previously, an additional seven (7) car parking spaces (including one (1) accessible space) are approved and support the existing tourist accommodation (DA19/2134). Five (5) of the car parking spaces proposed (including one (1) accessible spaces) are required to service the existing development.
Taking into account the existing use (tourist cabins) and function centre a total of 29 car parking spaces are required to service these two uses.
Granted the tourist use and function centre are to be used concurrently and will not be independently utilised the development should, at a minimum, be required to provide the total number of car parking spaces required for the function centre (24 car parking spaces). The development provides a total of 19 car parking spaces for use by the two uses. This amounts to a 5-car parking space shortfall (17%) in the total number of car parking spaces required.
The application of a full 25% reduction in the required car parking under Section 5.2.3, does not reflect the likely demand for car parking on the site with all tourist car parking likely to be utilised by the bride and groom and the bridal party and no less than ten of the car parking spaces to the south of the Mananga Homestead required for use by staff. This results in only three car parking spaces available for guests or associated function guests (i.e. photographers, band/DJ, wedding MC and planners etc).
· Section 5.2.6 Conservation Incentives of Chapter G21 provides a discretionary provision to allow Council to consider a reduction in the total number of car parking spaces required If a development proposal involves the retention and enhancement of an item of environmental heritage, as identified in SLEP 2014, if it is felt that this parking would reduce the significance of the item.
As detailed earlier in the assessment of the application against cl. 5.10(10), Council is not satisfied that the DA meets the criterion in subclause 5.10(10)(a) of the SLEP 2014 notwithstanding the cost to carry out the proposed works. It follows that a reduction in the total car parking required is not warranted or recommended.
· The applicant's justification for a reduction in the car parking rate relies upon the continued use of bus pick-up and drop-off associated with events. Granted that the management of the site may change in the future and patron transport to the venue will likely also change, the reduction in the required car parking relies heavily upon the ongoing proper management of the site and likely monitoring of the car parking by surrounding residents. A reduction in the required car parking on-site is not a desirable planning outcome and should not be supported. Given the placement of buildings, access points, heritage impacts and topography, the site has constraints concerning the placement of car parking.
· The construction or use of car parking spaces 4-11 is not supported.
The location and any formalisation of these car parking spaces will have an impact on the heritage significance of the item and would be contrary to clause 5.10(10)(d) which requires that: “the proposed development would not adversely affect the heritage significance of the heritage item, including its setting.” This position is supported by the outcomes of the Heritage Review completed by Dr Peter Kabaila of Black Mountain Designs (Refer to Attachment 3).
· The twelve (12) car parking spaces to the south of Mananga Homestead and access to these spaces are not currently designed in compliance with AS2890.1:2004. The aisle dimensions, offsets from trees and the width of the driveway access to these spaces do not currently comply with AS2890.1:2004.
Furthermore, no swept path details have been provided to demonstrate that the overflow parking provided to the south of Mananga Homestead will be compliant with an AS 99th percentile vehicle.
· The development does not provide a dedicated accessible car parking space and an associated compliant path of travel for that space to the function centre. It is noted that an accessible parking space is provided to service the tourist cabin.
In accordance with G21, Acceptable Solution A2.2, Where access for people with a disability is expected, a minimum of 1 accessible space is required and thereafter one additional space per 100 spaces or part thereof.
The function centre is classified as a Class 9b Public Assembly building and is required to provide 1 accessible car parking space (Section D3.5 The proposal is to consist of 1 car parking space complying with AS1428).
The applicant’s TPI (D21/184960) (Section 3.3) indicates that:
“The proposed development requires the provision of one (1) disabled car parking spaces. One (1) disabled space is associated with the existing tourist accommodation that is provided on-site which will also cater for the disabled parking requirements of the function centre. This disabled parking space has been provided in accordance with AS2890.6:2009.”
An accessible car parking space is required to be provided for each use (tourist cabins and function centre) the sharing of the space does not take into account the fact that a person with a disability may be staying in the cabins and therefore there would be no accessible space provided for use by a guest not staying on-site or a worker associated with the function venue.
· In accordance with Section 4.15(3A) of the EP&A Act, Council is to be flexible in applying those provisions and allow reasonable alternative solutions that achieve the objects of those standards for dealing with that aspect of the development. The applicant’s proposal is not considered to be a reasonable solution that would achieve the objects of the standard.
It is not considered that the proposed alternate solution meets objectives (i) and (iii) under Section 4 of Chapter G21, Objectives (i) and (iii) state as follows:
i. “Ensure that adequate off-street parking is provided in conjunction with development throughout the City, including any overflow parking.
iii. Ensure that car parking areas are visually attractive, functional, operate efficiently, are safe and meet the needs of users.”
· The shortfall in car parking is likely to result in on-street car parking within the Homestead Lane and Queen Street Road reserve. The reliance on on-street car parking to service the development is not recommended and does not reflect the desire for each development to cater sufficiently for its own car parking on the development site.
· Support for the variation is likely to result in an undesirable precedent. The requirement for the provision of car parking to be provided at a rate of one space per 6.5m2, has been consistently applied to other permanent functioning venues in rural and urban localities.
Community Concerns
The notification of the application resulted in significant public interest and the receipt of 552 submissions.
There have been a number of submissions made by members of the community with expertise in heritage, architecture and acoustic impacts which raise salient points of concern. The concerns raised are summarised in the table below and response to each matter identified.
|
Submission |
Response |
|
Impact on the heritage significance of the Mananga farm complex and the broader heritage context, including the Pulman Street Heritage Conservation Area will be significant and the application should be refused. |
The development in its current form (which excludes the formalisation of car parking spaces 4-11) would not adversely affect the heritage significance of the heritage item, including its setting. The Heritage Review prepared Dr Peter Kabaila does not otherwise suggest that this particular development will adversely affect the significance of the heritage item, however, it does observe that previous developments have cumulatively affected that significance. |
|
Clause 5.10(10) has not been satisfied, there is no necessity for the proposed use to facilitate the ongoing management of the heritage item |
Council does not have the jurisdiction to grant consent pursuant to cl. 5.10(10) given that Council is not satisfied with respect to all of the relevant tests in sub-cl. (a) to (e). As a result, the proposed development is prohibited, and the development application must be refused. |
|
The conservation works proposed do no facilitate the conservation of the item and are largely associated with the upgrading of the site for the function use and |
It is noted that de minimis conservation works and ordinary maintenance works will not be sufficient to show that the conservation of the heritage item will be “facilitated by” the granting of development consent. The Heritage Review suggests that the Development Application entails very little conservation of the heritage item. In particular, it identifies that seven (7) of the items in the Capital Works & Maintenance Cost Report could be seen as conservation works, with the remaining thirty (30) items being simply works for “maintaining the property at its current, highly renovated, standard”. There is a suggestion that interpretive works could be key to “heritage conservation”, given the highly renovated status of the item and that any detail of heritage interpretation is missing from the heritage documentation. |
|
The heritage management and conservation documents lodged with the application fail to provide the required assessment and conservation incentive works to satisfy cl. 5.10(4) and (10). |
The Heritage Review indicates that the Development Application does not include all necessary conservation works to an extent that would allow Council to be satisfied with this criterion. The Heritage Review argues that: a. the Capital Works & Maintenance Cost Report is not a schedule of necessary conservation work; b. the heritage landscape plan does not describe works that go towards the heritage item and its conservation; c. there is a need for details of the interpretive works and a timeframe for those works; d. redesign and rebuilding of the carport and its link is necessary; and e. there is a need for a low hedge or stone wall at the northern edge of the house driveway associated with the overflow car parking highlighted in green in Figure 6. |
|
The existing approved use of the site, in particular the five tourist units, are sufficient to enable management of the heritage significance of the site. |
Council cannot limit the lodgement of development applications and must assess every application on its merits. Clause 5.10(10) does not require an assessment of the current uses on the site or the ability for these uses to contribute to ongoing maintenance of the heritage item and any conservation management works. |
|
The noise impacts will result in a significant adverse impact on adjoining property owners (including those identified by Transport for NSW in their submissions). The noise impacts associated with the proposed use have not been appropriately measured and considered by the submitted Environmental Noise Impact Assessment prepared by Harwood Acoustic and additional testing and consideration of additional management arrangements are required. |
Council engaged an external specialist noise consultant – Stephen Gauld of Day Design Pty Ltd to review the applicant’s ENIA and the noise conclusions drawn in the Memorandum of Advice provided by T Robertson SC. It is considered that additional information is required to be provided to justify the impacts of the development on the adjoining receptors and an assessment against the more stringent Liquor and Gaming Noise Criteria should apply as the facility will operate more in line with a licensed facility with the service of alcohol the responsibility of the catering staff and not the function venue. |
|
Amenity impacts associated with the operation of the function venue, including patron behaviour and any light spill from the site to neighbouring properties, has not been considered and as the potential to result in significant adverse impact. |
Potential impacts associated with patron behaviour and light spill is not considered to be significant. Furthermore, the behaviour of patrons can likely be managed through a plan of management for the overall use of the site. |
|
Insufficient on-site car parking to service the development and the potential for the overflow parking on the local roads surrounding the site. |
An assessment of the car parking in accordance with Chapter G21 of SDCP 2014 details that the development does not provide sufficient car parking and that the request to vary the requirement for car parking through the use of patron bus service is not supported. The use of a mini-bus is considered a reasonable suggestion however it needs to be in conjunction with appropriate and adequate car parking. For reasons detailed earlier in this report, the car parking is deficient. |
|
Additional car parking on the site to accommodate patron parking is likely to have an adverse impact on the heritage significance of the heritage item. |
The Heritage Review completed by Dr Peter Kabaila provides support to the removal of spaces 4-11 (refer to Figure 6). The additional spaces highlighted green in Figure 6 are not considered to have an impact on the heritage significance of the item if formalised to an all-weather standard and provided with a low height hedge. |
|
Traffic impacts on the local road network from unregulated car parking in the surrounding road reserve and traffic on the local road network. |
Overflow car parking may occur within Homestead Lane. Although a condition could be imposed to require all car parking on the development site, the enforcement and management of this requirement without signposting (i.e. No Stopping”) would be difficult to manage. |
|
The cumulative impact of this development and the proposed inground swimming pool (DA20/2353) should be considered when assessing the potential impacts on the heritage significance of the heritage item.
|
The only specific suggestion of adverse effect in the Heritage Review is the position of proposed car park spaces 4-11. The Heritage Review does not otherwise suggest that this particular development will adversely affect the significance of the heritage item, however, it does observe that previous developments have cumulatively affected that significance. |
|
The prior use of the site for functions should not set a precedent to justify the current use of the site. |
There was a claim by the owner that the site had been historically used as a function venue for a significant number of years prior to the current owners taking management of the site. It is noted that no prior consent for the use of the site as a function centre was ever granted and therefore Council does not consider that any alleged prior use of the site would justify the current proposed use and has not been taken into account in the assessment of the application. |
|
The comparison of the subject site with Terrara House should be rejected |
Council’s assessment of the development application has been carried out on the merits of the application before Council. The assessment has not sort to compare this application with other approved function centres in the LGA. |
|
The applicant has failed to address any of the issues that a function centre at Mananga would cause in terms of the Significant Adverse Effect on the amenity of the surrounding area. In particular, its impact on the "quality of life" of the neighbouring local residents due to the unavoidable noise, traffic and associated parking issues associated with operating a Function Centre in close proximity to the Pulman Street Heritage Conservation Area. |
Council’s assessment of the impacts of the development taking into account amenity impacts (as required under clause 5.10(10(e)) does not indicate that there will be a “significant” level of impact on the amenity of the surrounding area.
|
|
A "confidential" Councillor briefing document was prepared by Mr & Mrs Quinn and provided to Councillors in January 2021. While this document has to date been protected from public scrutiny, we note that Council has ruled that it be released on the basis "...that the information was not received in a confidential context include: The information was provided voluntarily." |
Council’s assessment has not included an assessment of or reliance upon any statement in the document referred to as the “confidential Councillor briefing” document. |
|
Potential adverse impacts on Aboriginal cultural heritage have not been addressed through the development application. The Jerrinja LALC has raised concern in relation to the consultation with the local Aboriginal Community, potential impacts of the development on a significant site, misrepresentations made by the Navin Officer Statement of Heritage Impact and potential for the development to impact on cultural artefacts. |
The development application involves minor works to the associated outbuilding (“cowshed”) and potential works to formalise the car parking identified to the south of the Mananga Homestead (highlighted green in Figure 6). The works proposed were not identified within the Navin Officer Heritage Report as potentially impacting on any Aboriginal place of heritage significance. It is important to note that the site is not currently identified under Schedule 5 of SLEP 2014 as an Aboriginal place of heritage significance. Furthermore, an appropriate condition could be recommended that: if an Aboriginal object (including evidence of habitation or remains) is discovered during the course of the work: All excavation or disturbance of the area must stop immediately The Office of Environment, Energy and Science must be advised of the discovery in accordance with section 89A of the National Parks and Wildlife Act 1974. |
A number of the submissions (53) were lodged by members of the community in support of the application. The submissions noted that the development application should be supported for the following reasons:
· The site is located in close proximity to the Berry Township and can be accessed by patrons and guests of the existing tourist cabins.
· The application will support other business in Berry.
· The development is reflective of the existing development on the site and its rural and heritage context.
· The location is unlikely to result in amenity impacts on the surrounding land uses.
There were also a significant number of submissions lodged which went to the character of the owner’s and did not relate to substantive planning matters.
Council has considered the reasons for support of the development application and given equal weight to the valid planning reasons to support the application.
Planning Assessment
The Development Application has been assessed under s4.15 of the Environmental Planning and Assessment Act 1979. Please refer to Attachment 1.
Policy Implications
There are no policy implications as a result of the development as proposed.
Consultation and Community Engagement:
The Development Application was notified on three (3) occasions throughout the assessment period, the relevant notification periods were:
· 24 November – 10 December 2020;
· 9 – 25 February 2021; and
· 12 – 26 May 2021.
552 public submissions were received in relation to Council’s notification of the development. the majority of the submissions were in objection to the development.
· First notification – 142 submissions;
· Second notification – 152 submissions; and
· Third notification – 258 submissions.
The notification was for a period of 14 days on each occasion
The notification of the application resulted in significant public interest. It is noted that submissions that did not go towards the application (character references for example) or raise substantive planning matters relating to the development application were not considered in the assessment but were counted in the figures of submissions provided above.
The key issues raised as a result of the notification have been identified earlier in this report and Council’s consideration of the issues raised identified.
Financial Implications:
There are potential cost implications for Council in the event of a refusal of the application. Such costs would be associated with defending any appeal in the Land and Environment Court, should the applicant utilise appeal rights afforded under the Environmental Planning and Assessment Act 1979 (EP&A Act).
Legal Implications
According to section 8.2 of the EP&A Act, a decision of the Council may be subject to a review by the applicant in the event of approval or refusal.
Alternatively, an applicant may also appeal to the Court against the determination according to section 8.9 of the EP&A Act.
Summary and Conclusion
This Report and the attached s. 4.15 Assessment Report (Attachment 1) provides an assessment of an application to complete alterations and additions to an existing building for use as a function centre in accordance with the heritage incentive provisions under cl 5.10(10) of SLEP 2014.
The proposal has been assessed against all relevant environmental planning instruments and SDCP 2014. The proposed development has been assessed and established not to satisfy Clause 5.10(10) of SLEP 2014. Accordingly, as the proposed use is prohibited in the RU1 Primary Production zone under SLEP 2014, Council cannot approve the Development Application.
The application is recommended for refusal in accordance with the attached determination document (Attachment 2).
|
|
Development & Environment Committee – Tuesday 13 July 2021 Page 0 |
DE21.78 DA20/1621 – 260 Mount Hay Road (Private), Broughton Vale – Lot 2 DP 4498
DA. No: DA20/1621/4
HPERM Ref: D21/252358
Department: Development Services
Approver: Phil Costello, Director - City Development
Attachments: 1. Planning Report - 260 Mount Hay Rd (Priv) Broughton Vale - Lot 2 DP 4498 (under separate cover) ⇨
2. Draft - Determination - 260 Mount Hay Rd (Priv) Broughton Vale - Lot 2 DP 4498 ⇩
3. Legal Advice - Glamping/Primitive Camping (Confidential - under separate cover)
4. Plan - Existing access features and proposed upgrades - 260 Mount Hay Road Broughton Vale - Lot 2 DP 4498 ⇩
Description of Development: Primitive camping grounds comprising six (6) tent sites and a communal camp kitchen building
Owner: WL Houghton
Applicant: Anthony Houghton of Mt Hay Pty Ltd c/o SET Consultants Pty Ltd
Notification Dates: 29 July 2020 to 13 August 2020
No. of Submissions: 158 in objection
Purpose / Reason for consideration by Council
On 1 September 2020, it was resolved by the Development & Environment Committee that this Development Application (DA) be called in to Council for determination due to public interest and concern (MIN20.603).
To assist with characterisation and assessment, legal advice was obtained.
There is however a public interest consideration against disclosure of this legal advice as disclosure of the information could potentially prejudice any legal proceedings. Accordingly, the advice is provided as a confidential attachment.
Options
1. Refuse the development application (DA) in accordance with the recommendation of this report.
Implications: The development is unable to proceed as applied for and a section (s) 8.2A review may be sought by the applicant or an appeal with the Land and Environment Court of NSW (LEC) is possible.
2. Approve the application.
Implications: Council would need to determine the grounds on which the application is approved, having regard to section 4.15(1) considerations.
3. Alternative recommendation.
Implications: Council will need to specify an alternative recommendation and advise staff accordingly.
Location Map

Figure 1 – Location Map – Site Context

Figure 2 – Location Map indicating the development area (approx.)
Background
Proposed Development
The DA seeks approval for “primitive camping grounds catering for a total of 12 guests, consisting of six (6) tent sites each provided with individual amenities.”
‘Primitive camping ground’ is not a defined land use term under Shoalhaven Local Environmental Plan 2014 (SLEP 2014) or relevant environmental planning instruments under the Environmental Planning and Assessment Act 1979 (EP&A Act). The proposed use however seeks to meet the definition of “camping ground” under SLEP 2014 (provided below) and accordingly the subject DA is being assessed for this purpose.
camping ground means an area of land that has access to communal amenities and on which campervans or tents, annexes or other similar portable and lightweight temporary shelters are, or are to be, installed, erected or placed for short term use, but does not include a caravan park.
The tent sites are proposed to be located on the north western portion of the subject site (refer to Figures 1 and 2).
Each of the tent sites is to be provided with permanent amenities and a timber platform for the tents (refer Figure 4). These platforms also include ensuites and possible privacy screens with an outdoor bath placed on the deck. These items are considered to be permanent fixtures. The plans note that the drawings are only “an indication of the layout however placement of items will vary from site to site for privacy, cooling etc”. The plans also specify that the deck maximum size is 70sqm, while the maximum bathroom size will be 8sqm.
The submitted plans demonstrate a possible tent which could be provided to the tent site (refer to Figure 4). The applicant has indicated in the submitted Statement of Environmental Effects (SEE) that “the tent sites provide flexibility for tents such as a bubble tent, tiny home, or could be provided without accommodation on site for clients to bring their own.”
The applicant has also submitted an Operational Plan of Management (POM) with this application, which sets out the management procedures for the safe and effective management of the proposed camping grounds.
It is noted that the grounds are to be staffed and managed by existing personnel who live at the subject site.

Figure 3 – Extract of the Site Plan

Figure 4 – Extract of the Floor & Elevation Plan for the Tent Site and Amenities Structure
a) Communal camp kitchen building, to be used as a bush fire refuge
The proposed communal camp kitchen is to consist of a kitchen, dining area, outside deck, games room, accessible bathroom, and store (refer to Figure 5). The camp kitchen is to be located centrally to the proposed development area. The proposed bathroom has been designed with a secondary function as a refuge building in the event of a bush fire where evacuation of the site is not feasible.

Figure 4 – Extract of the Floor Plan for the Camp Kitchen
b) Access driveway and parking
The subject site is accessed by a Right of Way known as Mount Hay (private) Road (refer Figure 6). The site and several other allotments to the north of this site benefit from a Right of Way that burdens Lot 102 and Lot 103 DP 786955 which are located to the south, with Lot 102 adjoining at the southern boundary of the subject site. Mount Hay (private) Road comprises sections of Crown road reserve and Rights of Way through Lots 102 and 103.
The Right of Way that extends to the west from Mount Hay (private) Road is proposed to be used to access the camp site, with a 3m wide gravel track to be extended to the proposed camp kitchen (refer to Figure 6). The applicant has indicated in the submitted Statement of Environmental Effects that “the track location is currently used by maintenance vehicles to access the site.”
There are also items/works proposed within Mount Hay (private) Road as outlined within the submitted report by McLaren Traffic Engineering and shown at Attachment 4. These include passing bays, traffic signs and tree trimming, which the applicant has advised are capable of being located within the Right of Way.
In relation to parking, each tent site is to be provided with one (1) vehicle parking space. A total of seven (7) onsite parking spaces are proposed and these are to be provided adjacent to the camp kitchen.

It is considered that this development has the potential to impact on the apportionment identified in condition 55 of the Order and this issue warrants exploration. Note, Attachment 4 (reproduced at Figure 7) showing the extent of additional works proposed with the application and described earlier in this report including “passing bays, traffic signs and tree trimming, which the applicant has advised are capable of being located within the Right of Way.”
As indicated in supporting documentation, the development would generate 18 daily vehicle movements. It is noted that the applicant considers that the additional traffic generated by the development will not significantly impact on the existing road/s which provide access to the site and surrounding properties. Further to this, the additional traffic, along with the existing traffic generated by the existing tourist facility is not considered to generate traffic in excess of what the existing access road (with improvements) is capable of supporting.
As indicated in the advisory note above if the traffic generation on Mount Hay (private) Road is to increase (as proposed) as a result of this development, the registered proprietor of the subject site needs to apply to Council to release, vary or modify the terms of the restriction.
This matter has not been addressed by the applicant and no request has been made, presumably on the .basis that the development will not have a significant impact on the roads.
Figure
6 – Extract of the Site Plan showing the location of the proposed access
track and onsite parking

Figure 7 – Existing access features and proposed upgrades to Mount Hay (private) Road (See larger copy at Attachment 4)
c) Onsite effluent disposal
The proposed development requires onsite effluent disposal, as reticulated sewer is not available to the subject site (refer Figure 8). The submitted report by Harris Environmental Consulting recommends the following:
· Installation of a minimum 3,000L septic tank (4500L preferable), fitted with baffles to minimise turbulent mixing of wastewater in the septic tank;
· Installation of 600L RELN pumpwell (or similar) for each structure to pump wastewater via a 40mm reticulated line to the proposed septic tank;
· Installation of 192sqm of soil absorption trenches, installed as three (3) x 3.2m wide by 20m long trenches to dispose of treated wastewater from the septic tank; and
· Reservation of 192sqm of land for the reserve effluent disposal site, for future expansion or replacement of the existing effluent disposal area.
Figure 8 –
Extract of the Wastewater Management Plan
Subject Land
The development site is Lot 2 DP 4498 (260 Mount Hay Road (Private), Broughton Vale). Refer to Figure 1.
Site & Context
The development site:
§ Contains an existing tourist and visitor accommodation facility known as the Mt Hay Retreat. There are also a number of ancillary structures and dams on the site. There is scattered vegetation throughout the site, however, the area to be developed as part of this application is cleared.
§ Is zoned E3 Environmental Management. The items/works proposed within Mount Hay (private) Road is land zoned RU1 Primary Production and RU2 Rural Landscape.
§ Is 47.30ha in area.
§ Is identified as being partially bush fire prone land.
§ Is located on Mount Hay (private) Road, which intersects through the site.
§ Adjoins land zoned E3 Environmental Management, RU1 Primary Production and RU2 Rural Landscape (Figure 9).

Figure 9 – Zoning Extract
History
The following provides details on post-lodgement actions for context:
§ This application was lodged on 26 June 2020.
§ As a result of detailed assessment of the application, additional information was requested from the applicant on seven (7) occasions – 3 July 2020, 5 September 2020, 22 September 2020, 2 November 2020, 17 December 2020, 13 January 2021 and 4 February 2021. The main issues related to the following:
o Characterisation of the proposed development as “camping grounds”. The structures did not appear to be temporary or portable and lightweight.
o Ability to comply with the requirements of the Local Government (Manufactured Home Estates, Caravan Parks, Camping Grounds and Moveable Dwellings) Regulation 2005.
o The bush fire assessment report submitted at lodgement incorrectly assessed the proposed development against the requirements of Planning for Bush Fire Protection 2006 instead of Planning for Bush Fire Protection 2019. Further to this, inadequate information was subsequently provided for NSW Rural Fire Service (RFS) to complete their assessment.
o The items/works proposed within Mount Hay (private) Road as outlined within the submitted report by McLaren Traffic Engineering. It was also relayed to the applicant on 4 February 2021 that it appears that works may be proposed on adjoining land in which case they were requested to provide evidence of owners consent and legal ability to undertake the required works.
§ Councillors called in the application due to public interest and concern on 1 September 2020 (MIN20.603).
§ On 14 July 2020, 23 October 2020, 28 October 2020, 23 November 2020, 17 December 2020 and 25 March 2021, the applicant submitted additional information, which was subsequently referred to the relevant sections of Council and external agencies where necessary for comment.
The applicant addressed the matters raised for consideration. However, in relation to the matter of owners consent for items/works proposed within Mount Hay (private) Road (see Attachment 4 and Figure 7), the applicant responded as follows in email dated 25 March 2021:
“…Mount Hay is a private road consisting of parts within the Crown road reserve, and parts within the Right of Way is variable in width being mostly 10m wide. The proposed passing bays, traffic signs and tree trimming are capable of being located within the Right of Way. All required consent and approvals will be obtained and in place before any work takes place along the private road. It is anticipated this be reflected in conditions of consent.”
Issues
Categorisation of land use
The proposal involves the temporary erection of tents (or the like) on permanent timber deck structures, with private ensuite bathrooms and with access to communal amenities.
Camping ground is defined under the Dictionary of SLEP 2014 as:
Camping Ground means an area of land that has access to communal amenities and on which campervans or tents, annexes or other similar portable and lightweight temporary shelters are, or are to be, installed, erected or placed for short term use, but does not include a caravan park. (emphasis added)
Land is defined under the EP&A Act (Section 1.4) as:
“land includes—
(a) the sea or an arm of the sea,
(b) a bay, inlet, lagoon, lake or body of water, whether inland or not and whether tidal or non-tidal, and
(c) a river, stream or watercourse, whether tidal or non-tidal, and
(d) a building erected on the land.” (emphasis added)
Building is defined under the EP&A Act (Section 1.4) as:
“building includes part of a building, and also includes any structure or part of a structure (including any temporary structure or part of a temporary structure), but does not include a manufactured home, moveable dwelling or associated structure within the meaning of the Local Government Act 1993.” (emphasis added)
Accordingly, while the tents are to be erected on structures, these proposed structures are considered to be both:
- Defined as “land” for the purpose of the definition of “camping ground”; and
- Ancillary to the proposed use.
The definition of a “camping ground” when referring to “an area of land” includes the proposed structure and that by erecting tents on the structure does not cause the use to be contrary to the definition. The proposed timber structures themselves are considered to be ancillary and incidental to the use of the land for the purpose of a camping ground.

Figure 10 – Marked up elevation plan of proposed platforms and ensuite
The proposed platforms (highlighted in blue at Figure 10), however, also include the construction of private bathrooms (highlighted in brown) which are permanent fixed buildings. The tent structure (highlighted in red) would affix to these permanent components of the development.
While the platforms themselves may be an ancillary structure to a camping ground, the proposed private ensuite bathrooms are permanently fixtured, and not “portable and lightweight”. Being permanent private bathrooms, which are additional to the provision of communal bathrooms provided in the camp kitchen building, these are not considered incidental to the use as a camping ground. While the definition of a camping ground does not prevent or prohibit the provision of private facilities, it is considered the permanency of the ensuite bathrooms undermines the ability of the development to be properly characterised as development for the purpose of a “camping ground” as defined in SLEP 2014.
Any ancillary or incidental structure associated with the erection of a tent, that is not a “communal amenity”, should also be “lightweight and portable” in nature, including any ancillary private ensuite or bathroom which any tent would privately utilise. The proposed development as a whole therefore is not considered to be consistent with the definition of ‘camping ground’.
This forms a reason for refusal of the application.
It is further noted that the proposal could also be characterised as ‘tourist and visitor accommodation’; however camping ground is still considered the best characterisation as the applicant has used this terminology within the submitted application, and forms the basis for the subsequent assessment of parking, access and requirements of the development under Shoalhaven Development Control Plan (SDCP) 2014. Further to this, the application has not been sought for this purpose and council is limited in its ability to assess the application as has been proposed by an applicant.
The application as a tourist and visitor accommodation has not been considered / assessed by the applicant in the submitted documentation, and accordingly insufficient information is available to demonstrate the suitability of the proposal within the zone.
Concerns raised in public submissions.
Submissions from 158 objectors were received by Council.
The matters raised are considered in the assessment of submissions below.
|
Summary of Public Submissions |
|
|
Objection Raised |
Comment |
|
Land use and permissibility
The definition of a camping ground means an area of land on which tents or similar portable and lightweight temporary shelters are placed.
However, the DA states —
§ Each tent site has a permanent base, with timber boardwalk, ensuite amenities & luxury bath § Permanent facilities capable of supporting tent structures such as; a bubble tent, tiny home § Each tent site is provided with an amenities structure for private use.
Based on the proposed description of development, it is unclear as to whether the structures will be portable, lightweight and/or temporary. In effect, they may be erected on a permanent basis.
Further to this, SLEP 2014 Aims include: (e) to minimise the risk of harm to the community through the appropriate management of development and land use. The proposal is inconsistent with the above aim and increases the risk of harm to the local community through inappropriate development and land use.
|
§ The subject development has been presented to Council as “proposed primitive camping grounds consisting of six (6) tent sites and amenities, and a communal camp kitchen”.
§ It is noted that there are inconsistencies in the submitted documentation in relation to the proposed use. Including: o The submitted traffic report refers to that proposed as “tourist cabins”. o The applicant has also indicated in the submitted Statement of Environmental Effects that “the tent sites provide flexibility for tents such as a bubble tent, tiny home, or could be provided without accommodation on site for clients to bring their own”.
Tourist cabins are not consistent with the ‘camping ground’ definition, and “tiny homes” may be considered as caravans and therefore also would not be consistent with the proposed camping grounds use.
In this regard however, no details have been provided with the application supporting either of these uses. The submitted plans have only demonstrated a possible tent which could be provided to each tent site.
Accordingly, Council has based its assessment on the documentation provided on the DA form and that shown on the submitted plans as a primitive camping ground, or ‘camping ground’ as defined under SLEP 2014.
§ The proposal as a camping ground is a permitted use within the relevant land use zones with the consent of Council.
§ Further to this, as per the SLEP 2014 Aims, it is considered that the proposed development and land use can potentially be appropriately managed to reduce risk of harm to the local community.
|
|
Incorrect Characterisation
In reference to Local Government (Manufactured Home Estates, Caravan Parks, Camping Grounds, Moveable Dwellings) Regulation 2005 (Part 3, Division 3) and classifying the development as a “primitive camping ground” the applicant is aiming to avoid the requirements of Subdivisions 1 to 8. These subdivisions specify critical requirements for campgrounds including public safety, facilities for people with disabilities and prohibiting the use of the campground for any other commercial purpose (including a function centre).
The nature and scale of the proposed development appears to be well outside the definition of a “primitive camping ground”.
The NSW Department of Planning Guide on a “primitive camping ground” (PCGs) is also noted:
§ PCGs are lower key than conventional camping grounds and are not required to have, for example, sealed roads, hot water or laundries. § A PCG is generally remote from urban areas with only a limited range of facilities However, the proposed PCG site at Mount Hay is – o accessed by a sealed road and has access to hot water o adjacent to an existing tourist facility with up to 14 guests and three other dwellings o according to the website "just a few minutes away from the heart of exclusive Berry village" o has individual amenities structures for private use, a luxury bath and access to a dining facility • has permanent structures that cannot be removed when the camp site is unoccupied
|
Primitive camping ground § As detailed earlier in this report, the proposal is best defined under SLEP 2014 as a ‘camping ground’. ‘Primitive camping grounds’ are not a defined land use term under SLEP 2014.
§ The Local Government (Manufactured Home Estates, Caravan Parks, Camping Grounds and Moveable Dwellings) Regulation 2005 definition of a primitive camping ground is not relevant for the purpose of characterisation of the use under the EP&A Act and the subject application. It is considered appropriate for future section 68 approvals and the requirements under the Local Government Act 1993 and associated Regulations.
§ While it is inferred that the comment on the Department of Planning Guide relates to Planning Circular PS06-001, issued on 10 January 2006, this circular is irrelevant for the assessment of this DA, being related to the Local Government (Manufactured Home Estates, Caravan Parks, Camping Grounds and Moveable Dwellings) Regulation 2005, which would be further assessed under a future section 68 application.
§ The designation of camp sites is in a formal manner with the timber structures delineating the location of tents and allowing for the management and mitigating of the impact of surrounding areas of the site. This is not considered to be a reason for refusal in that the land use is appropriately defined as a camping ground which is a permissible use within the zone. Further categorisation as a “primitive campground” under the Local Government Act, is not a land use consideration for the purposes of this EP&A Act development assessment.
Camping ground
§ As detailed earlier in this report, the proposed permanent platform and ensuite are not considered to be consistent with the definition of a camping ground, which forms a reason for refusal.
A camping ground, as defined earlier in this report, means “an area of land that has access to communal amenities and on which campervans or tents, annexes or other similar portable and lightweight temporary shelters are, or are to be, installed, erected or placed for short term use, but does not include a caravan park. (emphasis added)”
|
|
Ancillary use
The land uses which are either permissible, with or without consent, or prohibited, are set out in the land use clause for the E3 zoning in the Land Use Table in the LEP. The permissible use of "tourist and visitor accommodation" was previously approved. However, the disproportionate size of the camp kitchen suggests it cannot in truth be described as ancillary either to the owners or the visitors to the site but is in essence of the size more likely to be used for functions which is not permissible. |
§ Council cannot consider a proposed use other than what has been sought under the subject application. Speculation on possible or potential future uses based on the size of the camp kitchen cannot form part of the consideration of the application.
|
|
Inconsistency with E3 zone objectives
There is issue raised in relation to the E3 zone objectives in relation to the prospective visual impact of the camp kitchen, and the parking of caravans and the like on the ridgeline.
Consideration to the objectives needs to be proper, genuine and realistic. The intrusive nature of the proposal seems to be contrary to the objectives of the E3 zone, and consequentially leaves open the opinion that the objectives are not, and cannot be met.
|
§ The SLEP, clause 2.3(2) states that the consent authority must have regard to the zone objectives.
§ It is considered that the proposal as a camping ground is not inconsistent with the relevant objectives. Camping grounds are a permissible use which are permissible due to their minimal effects on the environment. As detailed earlier in this report however, it is not considered the proposal adequately meets the definition of ‘camping ground’ and accordingly is recommended for refusal.
|
|
Future non-compliant use
With this scale of development there is potential of the proposed buildings to be repurposed for other commercial purposes that are prohibited in this zoning (e.g. function centres).
|
§ Council can only consider that proposed as part of this application.
§ Should the development application be determined by way of approval, any consent (if issued) would be limited to camping and therefore no approval would be given or implied for anything else.
|
|
Undesirable precedent
Approval of this application will set a precedent for further inappropriate tourist development that does not comply with Council’s requirements.
|
§ Any proposed development the subject of a DA is to be assessed against the relevant provisions of section 4.15(1), EP&A Act 1979 and relates to the subject development site only.
§ Whether or not other developments of a similar nature will follow is unknown and is dependent on a number of factors including the intentions of individual owners, individual characteristics of the development and unique attributes of the site.
§ Council needs to be satisfied that the site is suitable for each development. If a development has been approved, it does not necessarily stand that a similar development will be approved nearby as mentioned above, the unique attributes of each site and development must be assessed having regard to the planning framework at the time.
|
|
Out of character
The scale of the proposed development is at odds with its secluded rural setting.
|
§ The design of the development is not considered out of character in this locality. Camping is typically a low key activity. While the associated private ensuite bathroom building are not considered to be consistent with the definition of camping ground, they are not however out of character or ‘at odds’ with the rural character given their low scale nature.
§ The issue of character goes to matters such as height bulk and scale. Often scale is used to reference size.
§ See paragraphs 26 – 29) Project Venture Developments Pty Ltd v Pittwater Council [2005] NSWLEC 191. This established what is called a planning principle in the LEC. The principle assists in assessing character by posing a series of questions. Including are the impacts consistent with the impacts that may be expected under the planning controls and are there controls in place intended to maintain the character.
|
|
Disproportionate size of camp kitchen
The proposed 220sqm building (similar to a function centre) is described in the application as a “communal camp kitchen” for a maximum of 12 campers.
The proposed footprint of the camp kitchen is an unrealistic 16,351m x 10,320m with a height of 5.176m. To put the size into perspective, and apart from the exceptionally high building, a 6 x 12m marquee will seat 80 guests on round tables, and a 6 x 21m marquee will seat 140 guests on round tables. Arguably therefore, the size of the proposed camp kitchen is disproportionate to accommodating 12 guests, and it can only be surmised that the applicant has a secondary purpose to use this building to hold functions.
|
§ The requirements of SEPP 21 are not prescriptive with regard to the size of ancillary structures and facilities to a campground.
§ It is considered that “necessary” community facilities and services are proposed for the camping grounds as part of this application.
§ As mentioned earlier, a consent authority, i.e., Council can only assess what is put to it in an application. It cannot foreshadow any wrongdoing and/or alternative future development etc. If another use is proposed, a further DA would be potentially required. In the event of a compliance issue, there are separate provisions in legislation that deal with breaches, unlawful development etc.
|
|
Tent structures
Each tent structure has an excessively large floor area of 75sqm. A 25sqm tent site would comply with the legislation.
These structures are also permanent and not temporary.
|
§ Addressed above.
§ The permanency of the ancillary elements of the ensuite bathroom and platform is not considered in keeping with the definition of camping ground. Being an ancillary use it is considered these should also be ‘portable and light weight’ in accordance with the definition of camping ground. |
|
Access and Traffic
§ Mount Hay (private) Road is a 3km steep, single lane, winding access road. It has two (2) right hand bends and a hairpin bend on its steepest section. There are unsafe crests and hidden drainage culverts. § Passing bays specified as conditions of consent in a past DA are not adequately maintained. § The submitted bush fire assessment report is out of date. The road does not meet current RFS requirements – e.g., the width of the road narrows considerably through the steepest section to around only 2m. § The RFS has informed the road’s property owners that in a significant fire event they would be unable to respond past Bong Bong Road, due to safety concerns for their staff and equipment. § Three (3) times in the past six (6) months the bridge access to the road was severely flooded and impassable for hours, requiring a major clearing exercise. Emergency access would be impossible. § Road usage is considered by the road’s residents to already be at capacity.
|
§ As detailed earlier in this report, Council’s Development Engineer raised no objections to the submitted report by McLaren Traffic Engineering and the accompanying plan detailing improvement works, subject to recommended conditions of consent (dated 27/05/2021). Should the application be determined by approval, then these conditions would be included.
§ Again, as detailed earlier in this report, it is considered that this development has the potential to impact on the apportionment identified in condition 55 of the LEC Order and this issue warrants exploration. Note Figure 5 showing the extent of additional works proposed with the application and described earlier in this report including “passing bays, traffic signs and tree trimming, which the applicant has advised are capable of being located within the Right of Way.”
§ As indicated in supporting documentation, the development would generate 18 daily vehicle movements. It is noted that the applicant considers that the additional traffic generated by the development will not significantly impact on the existing road/s which provide access to the site and surrounding properties. Further to this, the additional traffic, along with the existing traffic generated by the existing tourist facility is not considered to generate traffic in excess of what the existing access road is capable of supporting.
§ As indicated in the advisory note relating to condition 55 if the traffic generation on Mount Hay (private) Road is to increase (as proposed) as a result of this development, the registered proprietor of the subject site needs to apply to Council to release, vary or modify the terms of the restriction.
§ This matter has not been addressed by the applicant and no request has been made, presumably on the basis that the application concludes that there no significant impact.
§ In relation to bush fire, General Terms of Approval and a Bush Fire Safety Authority were issued by NSW Rural Fire Service (dated 19/05/2021).
It is noted that certification would be required prior to the issue of a Construction Certificate from a traffic engineer for the access road from Bong Bong Road to the refuge building (camp kitchen) to demonstrate that the existing road and proposed roadworks comply with Planning for Bush Fire Protection 2019. A suitably qualified person would need to provide a certificate of completion that all required work has been satisfactorily achieved, prior to the issue of an Occupation Certificate.
§ In relation to flooding, no flood assessment report has been submitted as the subject site is not identified as being flood prone.
§ However, it is noted that Mount Hay (private) Road does contain a small portion of flood affected land in close proximity to Bong Bong Road.
§ The applicant has contended that the subject site is deemed to have reliable access during 1% AEP flood events.
§ It is noted that the proposed development is located on a flood free portion of the site, however, access to the site is restricted in the event of a flood. A flood evacuation plan is to be prepared for this development subject to conditions of consent being imposed should the application be determined by approval.
§ It is important to note, the road is a private concern and the traffic on that road is managed or controlled largely by the types of development that adjoin / access it. Most properties are rural residential with the exception of the Houghton’s property which has tourist and visitor accommodation component. The development has historically caused concern with neighbours with respect to traffic and road maintenance issues.
§ In the LEC, a condition was imposed on the development (for the dwelling and tourist cabins) apportioning maintenance costs to address the concerns about the upkeep of the road. The apportionment specifies a percentage which was based on the development at the time. Since then, an additional cabin was approved which was considered to be capable of being absorbed into the regime. However, this development intensifies the development and will add an additional six (6) ‘camp sites’ and therefore additional traffic movements, being 18 daily vehicle movements.
|
|
Noise and lighting impacts
The location of this property on the ridgeline would mean that noise and lighting from the development would have an adverse impact on more than just the neighbouring properties.
|
§ Ongoing management of noise and lighting could be subject to a condition of any consent granted. Should the application be determined by approval, then this condition would be included.
§ If there is concern about antisocial behaviour, this is a matter for the Police.
|
|
Bush fire risk
There are concerns with bush fire risk and the submitted assessment report and its accuracy.
|
§ It is considered bushfire risks have been adequately addressed. General Terms of Approval and a Bush Fire Safety Authority were issued by NSW RFS (dated 19/05/2021).
|
|
Owner’s consent
The only vehicular access the subject site is via Mount Hay (private) Road comprising an easement/Right of Way over Lot 103 DP 786955.
Applying the terms of Clause 49 of the EP&A Regulation 2000, the application requires the consent of Thoroughbred Property Holdings Pty Ltd for an intensification of use of the Right of Way/existing easement. That consent has not been obtained.
|
§ It is agreed that no evidence has been provided that this application has been made with the consent of all relevant landowners, noting the items/works proposed within Mount Hay (private) Road as outlined within the submitted report by McLaren Traffic Engineering are located on land not under the ownership of the applicant or the owner of the subject site, WL Houghton.
|
|
Previous conditions of development consent
Conditions of consent granted to the applicant in the former approval should be reflected in any subsequent consent to achieve the same planning objectives, of protecting the road and its users, and from increased usage caused by increase traffic to the applicant's property.
In addition, under condition 46 of the original development consent, the applicant was required to provide minimum standard cattle fencing between cattle grids 2 and 3. However the applicant unilaterally decided there was a dispute as to what comprised "minimum standard cattle fencing", and unequivocally refused to comply with that condition. Council nonetheless provided an Occupation Certificate in the absence of the applicant fulfilling that condition.
Cattle currently graze over that portion of Lot 103, and the applicant should be required to construct the minimum cattle fence as contemplated in the original application for a tourist facility.
|
§ Whilst there may be compliance issues, Council cannot take these alleged breaches into account in the assessment of this application. There are separate compliance provisions in the legislation and Council policy and procedures to deal with breaches. |
Clause 49(1) of the EP&A Regulation 2000 - Owners consent.
Clause 49(1) (b) of the Environmental Planning and Assessment Regulation 2000 indicates that a DA may be made by the owner of the land to which the development application relates, or by any other person, with the consent of the owner of that land.
This application has been made by a person other than the owner of the subject land, being Mr Anthony Houghton of Mt Hay Pty Ltd c/o SET Consultants Pty Ltd.
No evidence has been provided that this has been made with the consent of all relevant landowners, noting the items/works proposed within Mount Hay (private) Road as outlined within the submitted report by McLaren Traffic Engineering.
Given that the application makes reference to works in the road reserve, consent is required. (Stokes v Waverley Council (No. 2) [2019] NSWLEC 1137 & 174 and [2020] NSWLEC 1224)
As detailed earlier in this report, the subject site is accessed by a Right of Way known as Mount Hay (private) Road. The site and several other allotments to the north of this site benefit from a Right of Way that burdens Lot 102 and Lot 103 DP 786955 which are located to the south, with Lot 102 adjoining at the southern boundary of the subject site. Mount Hay (private) Road comprises sections of Crown road reserve and Rights of Way through Lots 102 and 103 which do not align with Crown road reserve. It remains a private road.
The applicant has indicated in email advice dated 25/03/2021 that “all required consent and approvals will be obtained and in place before any work takes place along the private road”.
Owner’s consent must be provided by the time a consent authority determines whether to grant development consent.
Planning Assessment
The DA has been assessed under s4.15(1) of the Environmental Planning and Assessment Act 1979. Please refer to Attachment 1.
Consultation and Community Engagement:
Notification was undertaken in accordance with Council’s Community Consultation Policy with letters being sent within a 200m buffer of the site, during the period 29 July 2020 to 13 August 2020.
158 public submissions were received in relation to Council’s notification of the development, all objecting to the development.
Key issues raised as a result of the notification have been listed and addressed above.
The assessment of the application considered the matters raised in the submissions and concluded that the application should not be supported.
Financial Implications:
There are potential cost implications for Council in the event of a refusal of the application. Such costs would be associated with defending an appeal in the Land and Environment Court of NSW.
Legal Implications
A section 8.2 review or an appeal with the Land and Environment Court are possible if the application is refused.
Summary and Conclusion
The proposed development is generally compliant with the provisions of SLEP 2014 and is broadly consistent with the SDCP 2014.
This application has been subjected to detailed analysis of the main issues identified in this report, being the access and traffic, characterisation of the development, and owner’s consent.
These issues have also been investigated and addressed by the applicant.
However, the application is not currently considered capable of support, given the proposed ensuite bathroom buildings result in the proposal not meeting the definition of camping ground, that no evidence has been provided that this application has been made with the consent of all relevant landowners (noting the items/works proposed within Mount Hay (private) Road), and the considerable public interest and concern evident in the submissions received. Further, there is an issue with the apportionment of maintenance which also warrants consideration.
Accordingly, a negative conclusion has been reached and recommendation made. Attachment 2 contains the draft determination notice and the reasons for the refusal.
|
|
Development & Environment Committee – Tuesday 13 July 2021 Page 0 |
DE21.79 DA21/1333 – 23 Parker Crescent Berry – Lot 331 DP 1226462
DA. No: DA21/1333
HPERM Ref: D21/245046
Department: Development Services
Approver: Phil Costello, Director - City Development
Attachments: 1. Planning Report - 23 Parker Cr Berry - Lot 331 DP 1226462 (under separate cover) ⇨
2. DRAFT Determination - Refusal - 23 Parker Cr Berry - Lot 331 DP 1226462 ⇩
3. Clause 4.6 Request to Vary Development Standard prepared by the Applicant - 23 Parker Cres Berry - Lot 331 DP 1226462 ⇩
Description of Development: Multi-Unit Housing and Strata Subdivision
Owner: Comsult Pty Ltd
Applicant: Hotondo South Coast Pty Ltd
Notification Dates: 12 May 2021 to 28 May 2021
No. of Submissions: 45 in objection
Nil in support
Purpose / Reason for consideration by Council
The Development Application (DA) was called in due to the significant public interest at Council’s Strategy and Asset’s Committee meeting on 18 May 2021 (MIN21.297).
|
Recommendation (Item to be determined under delegated authority) That Development Application DA21/1333 to construct a multi dwelling housing development comprising three (3) two-storey dwellings, and Strata title subdivision, at Lot 311 DP 1226462, 23 Parker Crescent, Berry be determined by way of refusal, for the reasons contained in the Notice of Determination, Attachment 2 of this report.
|
Options
1. Refuse the Development Application (DA) in accordance with the recommendation.
Implications: The development is unable to proceed as applied for and a section (s) 8.2A review may be sought by the applicant or an appeal with the Land and Environment Court of NSW (LEC) is possible in the event of a refusal of the application.
2. Approve the application.
Implications: Council would need to determine the grounds on which the application can be approved, having regard to section 4.15(1) considerations.
3. Alternative recommendation.
Implications: Council will need to specify an alternative recommendation and advise staff accordingly.
Location Map
Figure 1 – Site Location
Background
Proposed Development
The units within the development are described as follows:
· Unit One: is free-standing facing Parker Crescent, and includes:
· Ground floor: two (2) bedrooms, double garage, rumpus with ground floor alfresco and laundry.
· First floor: two (2) bedrooms including the main bedroom with walk-in-robe and ensuite; open plan kitchen, living and dining with gas fireplace; bathroom; powder room; upper-level balconies to the street, and west and eastern boundaries.
· Unit Two: is attached to Unit Three, and includes:
· Ground floor: double garage; laundry; two (2) bedrooms; rumpus; study; bathroom; and ground floor alfresco area.
· First floor: two (2) bedrooms including the main with walk-in-robe and ensuite and balcony; open plan kitchen with walk-in pantry, living and dining with gas fireplace; powder room; and upper-level balconies to the west and eastern boundaries.
· Unit Three: is attached to Unit Two and is generally a mirror-reverse design of Unit Two consisting of a similar layout and description.
Access to and from the site will be by a single driveway off Parker Crescent, with one (1) visitor parking space towards the rear of the site.
The proposal includes Strata Subdivision which will result in three (3) Strata Lots comprised of:
· Lot 1 – Unit 1, balconies, and courtyard = 338.0m2
· Lot 2 – Unit 2, balconies, and courtyard = 266.0m2
· Lot 3 – Unit 3, balconies, and courtyard = 483.0m2
The remaining lot area will be classed as ‘common property’ including all retaining walls and driveways.

Subject Land
The subject site is situated at 23 Parker Crescent, Berry, legally described as Lot 331 DP 1226462.
Site & Context
· The site has an 18.61m frontage to Parker Crescent with a total site area of 1,015.00m2.
· The site is currently vacant and cleared of all vegetation. The site slopes down from the street with a fall of just over 5m or 1:0.1.
· The site has legal and practical access to Parker Crescent.
· The site is zoned R1 General Residential under the SLEP 2014.
· The are no known site constraints over the site.
· The subject site is located within ‘Stage 3’ of Huntingdale Estate, Berry. The surrounding character is comprised of existing residential development, predominately single dwellings.

Figure 3 – Subject Site
History
The application was lodged on 01 April 2021.
As a result of the initial vetting of the assessment, additional information was requested from the applicant on 12 April 2021, including:
· Site analysis plan in accordance with Chapter G1 of Shoalhaven Development Control Plan 2014 (SDCP 2014);
· Landscape Plan in accordance with Chapter G3 of SDCP 2014;
· Civil design plans to indicate all cut and fill works proposed;
· Amended site plans to provide one (1) visitor parking space as required under Chapter G21 of SDCP 2014;
· Amended elevation and section plans which indicate natural and finished floor levels and the maximum height of the dwellings;
· Amended Strata plan;
· Amended Statement of Environmental Effects (SEE) to address:
· State Environmental Planning Policy No 55—Remediation of Land (SEPP55);
· SDCP 2014:
§ Chapter G13: Medium Density and Other Residential Development including any variations; and
Chapter N3: Berry Residential Subdivision.
The applicant submitted additional information on 16 April 2021, which was subsequently referred to the relevant sections of Council and external agencies for comment.
The application was notified to adjoining landowners between 12 May 2021 to 28 May 2021. In response, 45 submissions by way of objection were received.
As a result of a detailed assessment of the application, further additional information was requested from the applicant on 07 June 2021, including:
· A clause 4.6 variation under Shoalhaven Local Environmental Plan 2014 (SLEP 2014) to address the exceedance to the maximum height control under clause 4.3 ‘Height of buildings’;
· Amended floor plans to provide one (1) accessible unit as required under Chapter G13 of SDCP 2014;
· Revised shadow diagrams to indicate the location of neighbouring properties;
· A revised landscape plan to address the requirements of Chapter G3: Landscaping Design Guidelines;
· Revised SEE to address:
· 88b restrictions applying to the site;
· DCP Chapter G3: Chapter G3 Landscaping Design Guidelines;
· Variations to DCP Chapter G13 – the proposed development includes numerous deviations from the DCP which have not been addressed. A variation statement is required for each of the following deviations:
§ A3.1: Building envelopes
§ A4.1: Height
§ A5.4: Setbacks
§ P17: Private Open Space.
The applicant submitted additional information on the 17 June 2021.
Issues
Exceedance of the maximum height of buildings under SLEP 2014.
The subject site has a maximum permitted building height of 8.5m as per sub-clause 2 (Height of Buildings Map), under clause 4.3 Height of buildings of SLEP 2014 (refer to Figure 4 below).
Unit 3 exceeds the maximum permissible height by 0.19m or 2.2%, for a total building height of 8.69m. The extent of the variation is depicted in Figure 5 below.

Figure 4 – Extract from the Height of Buildings Map from SLEP 2014. The subject site is identified as wholly within land mapped I2 - 8.5 maximum building height.
The application seeks a variation to clause 4.3 in accordance with clause 4.6, SLEP 2014.

Figure 5 – South-east Elevation showing height exceedance.
Clause 4.6 (Exceptions to development standards) of SLEP 2014
Development consent may, subject to clause 4.6, be granted for development even though the development would contravene a development standard imposed by this or any other environmental planning instrument. The height control is not a prohibition. It can be exceeded subject to a written request and for the relevant ‘tests’ to be passed. These tests are well established and documented by the Land and Environment Court.
The applicant has submitted a written request to justify the contravention of the height of buildings development standard pursuant to the requirements of clause 4.6 of SLEP 2014 (Attachment 3). Refer to Attachment 1 for the detailed request made by the applicant and Council’s assessment.
The following provides Council’s review (summary) of the request for a height variation in relation to the requirements of clause 4.6. Refer to the attached assessment report (Attachment 2) for additional detail.
Council is required to consider subclauses (3), (4) and (5) of Clause 4.6. Clause 4.6(3)-(5) are extracted from SLEP 2014 below:
(3) Development consent must not be granted for development that contravenes a development standard unless the consent authority has considered a written request from the applicant that seeks to justify the contravention of the development standard by demonstrating—
(a) that compliance with the development standard is unreasonable or unnecessary in the circumstances of the case, and
(b) that there are sufficient environmental planning grounds to justify contravening the development standard.
(4) Development consent must not be granted for development that contravenes a development standard unless—
(a) the consent authority is satisfied that—
(i) the applicant’s written request has adequately addressed the matters required to be demonstrated by subclause (3), and
(ii) the proposed development will be in the public interest because it is consistent with the objectives of the particular standard and the objectives for development within the zone in which the development is proposed to be carried out, and
(b) the concurrence of the Planning Secretary has been obtained.
(5) In deciding whether to grant concurrence, the Planning Secretary must consider—
(a) whether contravention of the development standard raises any matter of significance for State or regional environmental planning, and
(b) the public benefit of maintaining the development standard, and
(c) any other matters required to be taken into consideration by the Planning Secretary before granting concurrence.
Clause 4.6(3)(a) – Compliance with the Development Standard is Unreasonable or Unnecessary in the Circumstances of the Case
It is considered that the applicant has not satisfactorily demonstrated that compliance with the development standard is unreasonable or unnecessary.
The applicant’s written request includes the following justification for the development standard being unreasonable or unnecessary in the circumstances:
Strict compliance is not necessary in this case as the proposed development is the best outcome for the site under current zoning, will not result in a loss of amenity to neighbouring properties, and the proposed layout makes best use of the site.
The applicant’s argument in relation to clause 4.6(3)(a) do not go toward demonstrating that the development standard is unreasonable or unnecessary in the circumstances of the case. It may be reasoned that the applicant’s justification goes toward providing planning grounds for the support of design, but there is no justification to demonstrate that compliance is either unreasonable or unnecessary.
Clause 4.6(3)(b) – Are there Sufficient Environmental Planning Grounds to Justify Contravening the Development Standard?
The consent authority must form the positive opinion that the applicant’s written request has adequately addressed those matters required to be demonstrated by clause 4.6(3)(b).
In this regard, the proposed portion of the development that contravenes the development standard is not justified on environmental planning grounds as the written submission by the applicant has not provided suitable justification for the proposed variance to be supported.
In this regard, the applicant states:
“The development standard to be varied under this application is the maximum building height requirement of 8.5m. The proposed design is two storey and will result in a maximum building height of 8.69m. This is a 2.21% variation on the standard but is not inconsistent with the objectives of either Clause 4.6 or the objectives of the R1 zone.
The site is zoned to facilitate housing. The objectives of the R1 zone are:
· To provide for the housing needs of the community.
The proposed development is multi dwelling housing which is a permitted use within the R1 zone and will provide housing acceptable for the residential zoning. CONSISTENT
· To provide for a variety of housing types and densities.
The proposal will provide additional housing types for future residents and only residential land uses are proposed. CONSISTENT
· To enable other land uses that provide facilities or services to meet the day to day needs of residents.
The proposed multi dwelling housing will not interfere with other land uses and will help increase the demand for facilities or services associated with the general residential zone. CONSISTENT
· To identify land suitable for future urban expansion.
The proposed development is located in a newly created estate within proximity to the Berry town centre in an area having been previously earmarked for urban expansion. CONSISTENT
As above, the proposed development is in accordance with the aims and objectives of the land use zone. Further, the objectives of Clause 4.3 Height of Buildings are:
(a) to ensure that buildings are compatible with the height, bulk, and scale of the existing and desired future character of a locality,
The site is located in a new residential area that supports a mix of free-standing dwellings, units, and dual occupancies. There is also a mix of single and two storey dwellings. The building height proposed with this application does not contravene this objective and is considered in keeping with the character of the area. CONSISTENT
(b) to minimise visual impact, disruption of views, loss of privacy and loss of solar access to existing development,
The proposed development is of an appropriate building height when viewed from the street and will not have a disproportionate visual impact or disrupt significant views. Further, it is not expected to decrease the privacy or solar access of adjoining properties. Therefore, the proposed development will fit within the character of the area and contribute positively toward the existing built form in the immediate vicinity. CONSISTENT
(c) to ensure that the height of buildings on or in the vicinity of a heritage item or within a heritage conservation area respect heritage significance.
There are no heritage items or heritage conservation areas within the vicinity of the development or surrounding estate and therefore the proposal will not affect heritage significance. CONSISTENT
The proposed development is in keeping with the character of the surrounding area and other new developments. Further, the proposed variation will not result in a detrimental impact to the environment, the amenity of the area or the public realm, it is considered that strict compliance is unreasonable”.
The applicant has only stated that they believe the proposed development is “consistent” with each of the environmental planning grounds, however, have not provided evidence as to “how” the proposed development meets these grounds to justify contravening the development standard. It is therefore considered that the applicant’s clause 4.6 variation report has not adequately provided justification that there are sufficient environmental planning grounds to justify contravening the development standard.
Clause 4.6(4)(a)(ii) – Will the Proposed Development be in the Public Interest Because it is Consistent with the Objectives of the Particular Standard and Objectives for Development within the Zone in Which the Development is Proposed to be Carried Out?
Clause 4.6(4)(a)(ii) states that development consent must not be granted for development that contravenes a development standard unless the proposed development will be in the public interest because it is consistent with the objectives of the particular standard and the objectives for development within the zone in which the development is proposed to be carried out.
An assessment of the objectives of the zone and development standard is provided below. As detailed further below, the proposed departure from the development standard is not considered to be in the public interest as while the proposal is consistent with the objectives of the R1 General Residential zone by its inherent nature of being a residential development, the proposal is inconsistent with the applicable development standard.
Zone Objectives
Pursuant to the provisions of the SLEP 2014, the land is zoned R1 General Residential. The objectives of this zone are as follows:
- To provide for the housing needs of the community.
- To provide for a variety of housing types and densities.
- To enable other land uses that provide facilities or services to meet the day to day needs of residents.
- To identify land suitable for future urban expansion.
The proposed development is consistent with the objectives of the R1 zone, being a permissible use, which provides for additional housing of a permissible housing type, in an existing urban expansion area.
Development Standard Objectives
Pursuant to the provisions of the SLEP 2014, the development standard proposed to be varied is clause 4.3 Height of buildings.
The objectives of this standard are as follows:
i. to ensure that buildings are compatible with the height, bulk, and scale of the existing and desired future character of a locality,
ii. to minimise visual impact, disruption of views, loss of privacy and loss of solar access to existing development,
iii. to ensure that the height of buildings on or in the vicinity of a heritage item or within a heritage conservation area respect heritage significance.
The proposal does not comply with the development standard objectives in the following ways:
- The proposed dwellings are not considered to be compatible with the height, bulk, and scale of the existing and desired future character of a locality The three units are each 4-bedroom two-storey dwellings which extend for a length of 31.35m down the 49.20m long block (see Figure 6). With a setback of only 10m to the rear boundary, the overall built form is far closer than the established rear setback of neighbouring properties as shown in Figures 7 & 8);
- The proposed development will result in a loss of shared views from adjoining sites with the rear Unit 3 sitting directly within the view outlook of both 21 and 25 Parker Crescent;
- The proposed development will result in a loss of privacy to neighbouring properties as a result of overlooking. The positioning of the main living areas on the first floor with adjoining private open space (balconies) will mean occupants have direct view opportunities to the neighbouring rear yards. This is only achieved as a result of the extended length of the development down the lot and the overall height of the buildings (refer Figure 9); and
- As a result of the elongated built form down the length of the lot, the proposed development will result in a loss of solar access to existing neighbouring properties. This is further exacerbated as a result of the two-storey design not responding to the sloping site and/or the breaking up of the massing of the building through reducing upper-level floor plates (refer Figure 10). In this regard, attention is drawn to the 3pm shadow diagram which demonstrates that modified design would not be as extreme.
No compelling argument has been provided by the applicant as to the how the proposed development meets the objectives of clause 4.3 and how the buildings are compatible with the height, bulk, and scale of the existing and desired future character of a locality. Most importantly the existing and desired future building heights of development within the Estate is to remain below the 8.5m height into the future.
Clause 4.6(4)(a)(ii) asks ‘Will the proposed development be in the public interest because it is consistent with the objectives of the particular standard and objectives for development within the zone in which the development is proposed to be carried out?’.
The proposal meets the objectives of the R1 General Residential zone in the sense that it literally provides for an additional residential development within a residential zone. However, it is fundamental that development also meets the associated built form objectives and standards in relation to the development type (in this case multi dwelling housing), to ensure it is consistent with the character of the environment in which it is situated. This underpins the site suitability/unsuitability of the development, and without meeting both sets of objectives, approval of the development cannot be considered to be in the public interest.
The development does not meet the objectives of the particular development standard of maximum building height as while the numerical standard being varied is minimal; the privacy, overshadowing and visual impacts caused by the design and overall bulk of the development are incompatible with the established character of the area and result in unacceptable impacts on neighbours.
The requirements of Clause 4.6(4)(a)(ii) ask if the proposed development is in the public interest because the development is consistent with the objectives of the particular standard and the zone, despite the noncompliance with the particular development standard. Accordingly, the proposed development is not considered to be in the public interest and does not meet Clause 4.6(4)(a)(ii).

Figure 6 – 3D image of proposed development submitted by the applicant looking south-west.

Figure 7 – Marketing drone image of subject site in its context looking northeast up Parker Crescent towards Hitchcock’s Lane (Source: realestate.com.au, dated July 2020)

Figure 8 – Marketing drone image of subject site in
its context looking north
(Source: realestate.com.au, dated July 2020)

Figure 9 – Excerpt of submitted site plan indicating potential overlooking of the development to neighbouring properties.

Figure 10 – Submitted shadow diagrams.
Clause 4.6 (4)(b) – Concurrence of the Secretary has been obtained.
Council may assume concurrence if it were of the view to support the variation.
Clause 4.6(5)(a) – Would Non-Compliance Raise any Matter of Significance for State or Regional Planning?
The contravention does not raise any matters of significance having regard to State or regional environmental planning. It does not have implications for any State Environmental Planning Policies in the locality or impacts which are considered of a State or regional scale.
Clause 4.6(5)(b) – Is There a Public Benefit of Maintaining the Planning Control Standard?
In the judgement of Ex Gratia P/L v Dungog Council [2015] (NSWLEC 148), Commissioner Brown of the NSW LEC outlined that the question that needs to be answered in relation to the application of clause 4.6(5)(b) is “whether the public advantages of the proposed development outweigh the public disadvantages of the proposed development”.
The applicant is to demonstrate that there will be better planning outcomes achieved through variation to the development standard as opposed to strict compliance with the development standard or amending the application to reduce the extent of the variation.
In this regard, it is considered that strict compliance with the development standard would result in a better outcome. The extent of the departure from the height control, whilst numerically small does not relate to a design that demonstrates considered design having regard to the established character within the area as detailed in the assessment against Clause 4.6(a)(ii).
The departure from the development standard is the result of inadequate regard to the site context and the applicable planning controls relating to the site and the proposed land use. It is further noted that due to the circumstances of the site situated within the Estate, the contravention is likely to set an undesirable precedent for a departure of this development standard in the locality.
There appears to be no reason or specific site characteristic as to why a development could not be designed to comply with the height control.
Summary and conclusion with regard to clause 4.6
In considering a clause 4.6 variation, clause 4.6(4) states development consent must not be granted for development that contravenes a development standard unless—
i. the applicant’s written request has adequately addressed the matters required to be demonstrated by subclause (3), and
ii. the proposed development will be in the public interest because it is consistent with the objectives of the particular standard and the objectives for development within the zone in which the development is proposed to be carried out, and
The applicant’s written request is inadequate in addressing these requirements as the written submission provided by the applicant is not considered to satisfy the requirements of clause 4.6(3) and the proposed development is not considered to be in the public interest.
Chapter G13: Medium Density and other Residential Development of Shoalhaven Development Control Plan 2014.
Notwithstanding that the application is considered to be non-compliant with cl.4.3 of SLEP 2014, it is prudent to consider the proposed development against the provisions of Chapter G13 of SDCP 2014.
A consideration of the proposed development against Chapter G13 reveals that the proposed development is not consistent with the following provisions:
1. Minimum Lot Size; Density; and Building Envelope, Heights, and Setbacks
The proposed development is not consistent with the following performance criteria:
A1.4 The development site for multi dwelling housing, multi dwelling housing (terraces) or a manor house must be of an appropriate size and dimension.
P2 The bulk and scale of new development, particularly on the perimeter of the development site, or where that locality or development site has heritage significance and/or distinctive character, is:
§ Compatible, consistent, and sympathetic to the bulk and scale of existing development in the locality.
§ Sympathetic with the streetscape and complements the existing and desired future character of the area.
P3.1 The bulk and scale of development is compatible with the existing or desired future character of the area and minimises adverse amenity impacts on neighbours, the streetscape and public domain.
P3.2 Development enables view sharing with neighbours and the public domain.
P4 The height of development:
§ Is compatible with the existing or desired future character of the area.
§ Minimises adverse amenity impacts associated with overlooking and overshadowing of adjoining properties.
§ Relates to the landform, with minimal cut and fill.
P5.1 The front setback is generally consistent with adjoining development and does not undermine the integrity of the prevailing building lines.
P5.2 The location and siting of the building complements the existing setbacks in proximity to the site, foreshore (if applicable) and the streetscape.
P5.3 The proposed development is setback and of a scale that is relative to the street reserve width, in such a way to ensure pedestrians do not feel buildings are overbearing.
With regard to the front setback control under P5, the applicant provided a variation statement stating the following:
“A variation is requested to the development standard, as the upper-level balcony encroaches the required front setback by 0.18m. This encroachment is considered minor in this case as the proposed balcony primarily addressed the street and will not affect the privacy or solar access of adjacent properties. However, a reduction to the size of the upper-level balcony will result in a decrease to the amenity of future residents and is not considered a desirable outcome for the development”.
A variation has not been submitted in relation to the other controls.
The proposal is inconsistent with these controls for the following reasons:
· The site is 1,015m2 with the rear 230m2 (approximate) unable to be built upon due to asset protection zones and easements, the useable site area is reduced to approximately 785m2. Given the minimum lot size for a detached dual occupancy (2 dwellings) is 700m2 and multi-dwelling housing is 900m2, 785m2 of usable site area is not considered suitable for three (3) dwellings, as demonstrated by the numerous variations to Council’s DCP.
· The proposed development is inconsistent with the surrounding character and bulk and scale of the existing development. Surrounding development comprises of single dwellings on individual allotments that generally sit within the front portion of the site with substantial rear yards. The introduction of multi-dwelling housing on a single allotment will be “out of character” for the area.
· The minimum front setback is required under P5.4 to be 4.5m to verandahs and 5.5m to the dwelling for the ground floor and an additional 1.0m to the upper floor. The proposal has a setback of 5.2 to the verandah and 6.62m to the dwelling of Unit 1. This requires a variation of 0.18m to the upper-level verandah, a variation of 3.3%.
· While the variation statement with regard to the front setback is noted, however due to non-compliance with the height and front setbacks, the proposed dwelling is not located within the permissible building envelope.
· The extent of the proposed development footprint far exceeds that of any established development within the Estate. The two-storey elevation sits forward of the building line of all other dwellings in the street and extends 31.35m down the length of the block and provides little architectural relief to break up the overall dominance and scale of the development within an otherwise low-density environment.
· The proposal requires a variation of 0.18m to the upper-level verandah, a variance of 3.3%. The front setback is inconsistent with adjoining development as it is approximately 1m closer to the frontage than the average street setback (refer Figure 12). Furthermore, due to its location on the corner bend of Parker Crescent, the adjoining property to the south-east is setback 9.967m from the shared boundary frontage, meaning the proposed development appears to sit some 4.65m in front of the adjoining south-east property, in addition to siting 0.73m in front of the residence to the north-west of the site.
· The site’s location at the corner bend of Parker Crescent, makes the site and any development a dominant and visible feature within the Estate (refer Figure 11). The noncompliance of the front setback controls will contribute to the dominance of the development and undermine the integrity of prevailing building lines (refer Figure 6).

Figure 11 – Marketing drone image of subject site
in its context looking south
(Source: realestate.com.au, dated July 2020)

Figure 12 – Existing front setbacks of adjoining sites
2. Local Character and Context
The proposed development is not consistent with the following performance criteria:
P7 The scale and appearance of new development is compatible with, and sympathetic to, existing and future desired:
§ Development in the locality; and
§ Amenity and character of the locality;
Particularly where the development site or its surrounds has some heritage significance or distinctive character.
P8 Existing views from the private or public domain (including heritage or familiar dominant landmarks that are recognised and valued by the community) are not substantially or unreasonably affected where it is possible to design for the sharing of views.
The proposal is inconsistent with these controls for the following reasons:
· As outlined earlier in the report, the proposed development is not considered sympathetic or compatible with the existing or desired character and amenity of the locality.
· The subject site is not located within a Heritage Conservation Area however it is within close proximity to the Berry Conservation Area and numerous heritage items of both Local and State significance. The proposed development is located on a prominent ridge line on the southern approach to Berry along the Princes Highway. The visual significance of the subject site requires any proposed development to reinforce the historic character of Berry and maintain the existing and desired future character for the area.
· The current design of the development is considered out of character in this locality. The proposed front building setback variation in conjunction with the uncharacteristic rear setbacks, is drastically different to the character of other development within the Estate. Unlike surrounding development within the Estate, the design does not respond to the site topography and when contributes to the overall mass of the proposed built form. Although the Estate is still undergoing further development, and the subject planning controls will establish the character of the area, residential amenity both within and adjoining the site would not be maintained. Having regard to the Planning Principle established in Veloshin v Randwick Council [2007] NSWLEC 428 the proposal is inconsistent with the emerging character of the area which is single conventional low-density development.
3. Section 5.3.1 Building Separation and Visual/Acoustic Privacy
The proposed development is not consistent with the following performance criteria or acceptable solution:
P14.2 Direct overlooking of main internal living areas and private open space of other dwellings and adjoining properties is minimised by building layout, location and design of windows, balconies, screening devices, landscaping, or other effective means.
The proposal is inconsistent with these controls as the location of private open space on the upper levels, especially of proposed Units 2 and 3, and elevation of the site, will lead to direct overlooking of private open space of the property to the north – 25 Parker Crescent, and to the south – 21 Parker Crescent (refer Figure 8 earlier). It is noted the finished floor levels of the first floor sit up to 4m above the natural ground level of adjoining properties, allowing for direct view lines over fences or screening.
The floorplans of the units show the upper levels to contain the day to day living spaces of the dwellings. Including kitchen, dining, and living spaces.
Further, the orientation and layout of the proposal is to maximise its views at the expense of view sharing with the neighbours and of privacy for the neighbours. This is demonstrated on the submitted Site Plan which depicts the proposed first floor alfresco areas to be situated to the rear of the adjoining dwelling at 25 Parker Crescent, to the north of the site (see Figure 8) which currently enjoys southeast views to Coolangatta Mountain but will be reduced by the proposed height and footprint of the proposed development.
4. Section 5.3.2 Solar and Daylight Access
The proposed development is not consistent with the performance criteria or acceptable solution:
P16 Dwellings are sited and designed to maximise solar access to living areas and private open space; and
A16.1 Dwellings are to be:
· Oriented to make appropriate use of solar energy by maximising solar access to north-facing windows.
· Sited and designed to ensure that the energy efficiency of existing dwellings on adjoining lots is not unreasonably reduced.
· Designed to locate living areas and private open space on the northern side of the development and nonhabitable areas to the south and west of dwellings.
The proposal is inconsistent with these controls. Suitable shadow diagrams were requested to be provided by the applicant which were to clearly show the neighbouring developments. The submitted shadow diagrams received in additional information dated 15 June 2021 do not adequately identify the adjoining sites as requested.
As suitable shadow diagrams have not been provided it is difficult to assess the extent of impact on adjoining properties and compliance with this development control. It is identified however that the overall two-storey length of the development and it is elongated positioning down the lot, exacerbates the overshadowing impacts on neighbouring properties.
While the plans fail to show detail on the neighbouring properties to enable an appropriate detailed assessment of the impacts of the proposal (as required by Schedule 1), it can be seen from the basic level of information provided that the impacts of the development are exacerbated by the height, bulk, and scale of the development.
5. Section 5.3.3 Private Open Space (POS)
The proposed development is not consistent with the performance criteria or acceptable solution, which states:
A17.1 A minimum area of private open space shall be provided for each dwelling in accordance with Table 5.
A17.3 Where the private open space of a dwelling is provided at the ground level, it shall:
· Include a defined hardstand area (e.g., concrete, paving, decking) of usable space which:
- Is setback at least 1.2m from an external boundary.
- Has a minimum dimension of 5m x 4m, of which 50% shall be covered to provide protection from the elements.
· Have a minimum dimension of 2m for all other areas.
· Have a gradient no steeper than 1:20.
· Be adequately screened to provide privacy to residents.
The identified POS on the plans does not meet the minimum requirements to be classed as POS in accordance with the standards identified in the DCP. This results in Unit 1 (16.4% reduction) and Unit 2 (23.9% reduction) not meeting the required minimum POS. Furthermore, the ground floor POS does not include a 5m x 4m (20m2) hardstand area as required, for any of the proposed dwellings. The applicant states that there is no variation and therefore has not provided comment for the variance.
The current design, layout and site restrictions do not allow for the private open space to comply with the minimum requirements and demonstrate an overdevelopment of the site.
Open space is required for residential amenity for future occupants. Noting that these are 4-bedroom dwellings, it is highly likely that they will be occupied by households of more than 2 people or families. In this regard, the provision of useable well orientated outdoor open spaces for recreation purposes is important for amenity reasons.
6. Section 5.3.4 Storage and Laundry Facilities
The proposed development is not consistent with the performance criteria or acceptable solution, which states:
P18.1 External clothes drying facilities are provided for each dwelling; and
P20.1 Adequate, well-designed storage areas are provided for each dwelling.
The proposal is inconsistent with this control as no external clothes drying has been identified and it is considered a suitable location can be provided. No variation has been submitted in relation to P18.1 external clothes drying facilities. Conditions could be imposed requiring clothes drying areas however the room available is small and would require wall mounted devices excepting for the rear unit which ‘appears’ to have a good yard area effectively as a result of being impinged by easements on title. This yard however is assigned to the Strata community in the submitted Strata plan.
Proposed Units 2 and 3 do not meet the minimum encouraged storage. The applicant has provided a variation statement towards the reduced storage facilities:
“A variation is requested in this instance as the proposed design shall support ample storage in bedrooms, laundry, garage, and study to comply with this control”.
Due to significant other variances, specifically solar and daylight access, which have compounding impacts on the development, the proposed development cannot suitably accommodate these facilities. The proposed development is relatively large. All units all contain 4-bedrooms which are likely to be occupied by families and/or greater than average household sizes (also a reason to ensure adequate open space). For a dwelling of this size, satisfactory storage is essential to ensure adequate amenity for households and ensure developments are liveable and fit for purpose.
7. Section 5.5.3 Waste Management
The proposed development is not consistent with the performance criteria or acceptable solution, which states:
A31.1 For each dwelling in a development, the kerbside frontage required for waste collection is at least 1m per bin, 0.5m separation between bins and 1m behind each bin.
The development is not compliant with this control as the proposed development would require a minimum street frontage of 8.5m to adequately provide for safe kerbside collection. The site can only provide a kerbside frontage of approximately 7m. It is noted the same control does not apply to single dwelling development, and the site would be able to cater for the waste requirements of a dual occupancy development. By not having ample frontage available, bins may be placed in front of neighbouring properties. The issue with this is that uncollected bins and placement in front of other properties can be a source of complaint and ‘amenity’ for neighbours.
The applicant has not identified this as an issue and as such has not provided any comment.
Due to the limited street frontage and the number of existing driveways on the bend, the ability of the site to cater for the appropriate, safe placement and collection of waste bins is not considered suitable.
Due to the significant number of DCP variances, which are explained in further detail the attached s. 4.15 Assessment Report (Attachment 1), the proposed development is considered to be an unsuitable development over the subject site. While a variation request was submitted for the front setback (under P5 & A5.4), and storage requirements (under P20 & A20.1), no acceptable performance solutions were submitted to support the variations. No other variation requests were submitted to support the numerous other issues as outlined in this report.
It is further noted that two (2) separate requests for information have been issued to the applicant requesting the application address the abovementioned noncompliance’s and/or to provide a revised design that is constant with Council’s controls. Despite this however, the applicant has not amended the proposal to provide a compliant development or provide a full claim against the performance solutions.
Access
A single driveway has been provided off Parker Crescent. The proposed development is located on a 90° bend along where the street is quite narrow (as per Figure 11 below). The location of the proposed driveway access is considered suitable in relation to the street and verge placement, however, Council’s Development Engineer raised concerns with entry and exit into the garage for Unit 1 (Figure 12 below).
Chapter 21: Car Parking and Traffic of SDCP 2014 outlines both in the objectives of the chapter and in the performance criteria and acceptable solutions that vehicles are to enter and leave a site in forward direction (refer s.4(vi), s5.4, and s5.6).
The location and design of Unit 1 however requires vehicles to exit the driveway in reverse, having adverse road safety impacts, particularly given the location of the driveway on 90° bend along where the street is quite narrow. Whilst Parker Crescent is unlikely to carry large traffic volumes, the manoeuvre is unnecessary and could be addressed by an alternative design.
Council’s Development Engineer has provided the following:
“The garage for Unit 1 should be re-oriented to the south, towards the common driveway to facilitate forward ingress and egress. The current arrangement would encourage vehicles to reverse out, which is not supported given the ample opportunity to comply with DCP G21 by rotating the garage”.

Figure 13 – Location of proposed driveway in relation to existing adjacent driveways.

Figure 12 – Unit 1 garage as per the submitted plans.
Deposited Plan and 88B Instrument:
The subject site is burdened by a number of Restrictions on the Use of Land created pursuant to Section 88B of the Conveyancing Act 1919 in relation to Deposited Plan No. DP122646.
· Restriction as to user numbered 3(b) states that “No dwelling shall be designed in such a manner that they will detract from and not be compatible with the existing bulk and scale of the housing stock within Berry township”.
Comment: The proposed development is not considered to be designed in a “manner compatible with the existing bulk and scale of the housing stock within Berry township”.
· Restriction as to user numbered 3(e) limits floor area of a building constructed on lots ranging from 650m2 through to lots larger than 1000m2.
Comment: It is noted that a site with a total allotment size of 1,015.0m2 allows for a total floor area of 35% or 355.25m2. The total floor area across all three (3) dwellings is 740m2 which exceeds the maximum permissible floor area.
Due to significant DCP variances specifically in relation to building envelope, height, and setbacks; solar access; private open space; the proposed development is considered to be an overdevelopment of the site.
· Restriction as to user numbered 5(a) states that “Not more than one main building may be erected or be permitted to remain on any lot burdened and that main building must not be used for any purpose other than a single residential dwelling, but this restriction does not prevent the erection and use of a building or buildings on any lot burdened strictly in accordance with the conditions of the Shoalhaven Local Environmental Plan 2014.”
Comment: The terms of restriction limit the permissible number of dwellings on a single site to one (1) dwelling only. However, The SLEP 2014 permits the multi dwelling development within the zone and as such the proposed development is considered permissible.
Furthermore, cl. 1.9A Suspension of covenants, agreements, and instruments under SLEP 2014 enables development on land in any zone to be carried out in accordance with this Plan or with a consent granted under the Act, any agreement, covenant, or other similar instruments that restricts the carrying out of that development does not apply to the extent necessary to serve that purpose.
The relevant restriction was not a covenant imposed by the Council or that the Council requires to be imposed and therefore, council may set the restriction aside if they are approving a lawful development. However, as indicated by the assessment of character earlier this report, all other dwellings within the Estate have complied with the restriction. This has firmly set the established character of the area, and while the provisions of cl. 1.9A mean the terms of the covenant do not apply to the assessment of a DA under the SLEP 2014, this has created a dominant character in the area of single residential dwellings, which is a consideration in the assessment of the development.
Development for the purpose of “multi dwelling housing” is however permissible in the R1 General Residential zone via the SLEP 2014.
· Restriction as to user numbered 5(m) and (n) relate to fencing design and construction on a burdened lot. Relevantly, no fence on site is to be 1.8m high or more and constructed of timber.
Comment: There is no front fencing proposed as part of the development. The side fencing to the north-west is an existing 1.8m high timer fencing. There is currently no fence along the rear or side south-east. The proposal seeks to install 1.8m high Colourbond fencing to the unfenced boundaries and between the proposed dwellings.
While the proposal states that the existing timber fencing along the north-west boundary is to remain, this boundary has significant cut of up to 1.6m. No detail is provided regarding how the fence will remain, and to address the amenity impacts from a 1.6m retaining wall with 1.8m fence on top, resulting in a 3.4m high barrier when viewed from the finished outdoor levels of Unit 3. This does not comply with the restriction, and notably will have a detrimental amenity impact on the indoor living spaces on the ground floor of Unit 3.
The existing materials within Huntingdale Estate are timber fencing as per the Restriction as to User numbered 4(n). The proposed fencing does not comply however Conditions of Consent can require timber fencing in accordance with the restriction on fencing design and construction.
As previously stated, Clause 1.9A(1) suspends the application of a covenant for developments that are to be carried out in accordance with the LEP (including the subject DA). However, Clause 1.9A(2)(a) preserves the applicability of a covenant that is either ‘imposed by the Council’, or ‘that the Council requires to be imposed’.
Granted that the above restrictions were imposed by the developer and not ‘imposed by Council’ Council may set these restrictions aside if approving a lawful development.
Notwithstanding, that clause 1.9A provides the legislative authority to ignore the aforementioned covenants that the development would appear to be inconsistent with, Council does not consider that the setting aside of the restrictions is necessary to serve the purpose of enabling development on land in any zone to be carried out in accordance with this Plan.
Planning Assessment
The Development Application has been assessed under s4.15(1) of the Environmental Planning and Assessment Act 1979. Please refer to Attachment 1.
Policy Implications
There are no policy implications as a result of the development as proposed.
Consultation and Community Engagement:
Notification was undertaken in accordance with Council’s Community Consultation Policy with letters being sent to landholders within a 100m buffer of the site, during the period 12 to 28 May 2021.
Forty-five (45) public submissions were received in relation to Council’s notification of the development. They were all objections to the proposed development.
Key issues raised as a result of the notification include but were not limited to matters listed below.
· Overdevelopment of the site;
· Proposed Strata Subdivision is not permissible;
· Contrary to 88b restrictions;
· Privacy and overshadowing;
· Traffic and safety;
· Height and building lines;
· Compatibility with the surrounding area; and
· Landscaping, including fencing and cut and fill.
The assessment of the application considered the matters raised in the submissions (as prescribed by s4.15(d) and concluded on balance having regard to all the heads of consideration (section 4.15 Evaluation), that the application should be refused. A detailed analysis can be found in the attached s. 4.15 Assessment Report (Attachment 1).
Financial Implications:
There are potential cost implications for Council in the event of a refusal of the application. Such costs would be associated with defending any appeal in the Land and Environment Court, should the applicant utilise appeal rights afforded under the Environmental Planning and Assessment Act 1979 (EP&A Act).
Legal Implications
According to section 8.2 of the EP&A Act, a decision of the Council may be subject of a review by the applicant in the event of approval or refusal. If such a review is ultimately pursued, the matter would be put (again) to Council for consideration.
Alternatively, an applicant may also appeal to the Court against the determination according to section 8.9 of the EP&A Act.
Summary and Conclusion
This Report and the attached s. 4.15 Assessment Report (Attachment 1) provides an assessment of a proposal to construct a Multi Dwelling Housing development consisting of three (3) dwellings, and Strata Title Subdivision on the land identified as 23 Parker Crescent, Berry legally described as Lot 311 DP 1226462.
The proposed development has been assessed against all relevant environmental planning instruments.
The proposed development has a significant number of departures from both the Shoalhaven Local Environmental Plan 2014 and the Shoalhaven Development Control Plan 2014, which are not supported.
The applicant has been provided with an opportunity to submit an amended compliant design that better responds to the site and Council’s controls; however, an amended proposal has not been provided. Further, the submitted clause 4.6 variation is inadequate in addressing the requirements of SLEP 2014 to vary a development standard and accordingly the proposed height variation cannot be supported.
The application is recommended for refusal in accordance with the attached Notice of Determination document (Attachment 2).
|
|
Development & Environment Committee – Tuesday 13 July 2021 Page 0 |
DE21.80 DA21/1370 – 3 Cumberland Ave South Nowra – Lot 2 DP 260264
DA. No: DA21/1370
HPERM Ref: D21/248840
Department: Development Services
Approver: Phil Costello, Director - City Development
Attachments: 1. Determination - Refusal - 3 Cumberland Av South Nowra - Lot 2 DP 260264 ⇩
2. Planning Report - 3 Cumberland Av South Nowra - Lot 2 DP 260264 (under separate cover) ⇨
3. Plans - Overall Site Plan - 3 Cumberland Av South Nowra - Lot 2 DP 260264 ⇩
4. Plans - Engineering Schedule -3 Cumberland Av South Nowra - Lot 2 DP 260264 ⇩
Description of Development: Alterations and Additions to existing Industrial Development
Owner: Provadon Pty Ltd
Applicant: Damien Radburn
Notification Dates: Not able to be carried out – further details provided in report below.
No. of Submissions: As above – not able to be carried out.
Purpose / Reason for consideration by Council
Council Resolved on 7 April 2020 (MIN20.240) with respect to COVID-19 Response, that:
“The delegation to the CEO be rescinded to determine a development application by refusal until the end of COVID 19 crisis.
The refusal of a development application must only be by Council/Committee resolution.”
This report recommends refusal of the above Development Application and is therefore prepared for consideration by the Development & Environment Committee in accordance with the 7 April 2020 Resolution of Council.
Options
1. Refuse the Development Application (DA) in accordance with the recommendation.
2. Approve the application.
Implications: Council would have to provide the grounds to support the proposal, that is, provide reasons to support the development, having regard to section 4.15 considerations. Should Council resolve to approve the DA with a suite of conditions which would be required to be drafted for reconsideration by the Development & Environment Committee. Under some circumstances, third parties (i.e., objectors) can seek a judicial review of Council’s decision in the NSW Land and Environment Court.
3. Alternative recommendation.
Implications: Council will need to specify an alternative recommendation and advise staff accordingly.
Location Map
Figure 1 – Location Map
Background
Proposed Development
The subject development application seeks approval for “alterations and additions to an existing industrial development”.
The submitted Statement of Environmental Effects (SEE) describes the proposed works as: “Build an attached Steel Colourbond shed to match existing shed already constructed. Floor to be of concrete construction”.
Based on the information submitted with the application it is unclear whether the shed is an extension of the existing shed, a standalone structure abutting the existing shed, or an extension to the existing shed. Plans submitted to date (refer Attachments 3 and 4) depict the proposed development as being an extension to the existing industrial shed; however, the engineering plans depict a standalone shed. The following outlines Council’s present understanding of the development:
· The proposal seeks consent for a 307.2m² (24m long 12.8m wide) extension to the existing industrial building.
· The proposed extension would be located on the western rear elevation of the existing building with a setback of 19.0m to the western rear boundary.
· The extension would be constructed with corrugated steel with a pre-painted finish (‘slate grey’).
Subject Land
The subject site is situated at 3 Cumberland Av, South Nowra, legally described as Lot 2 DP 260264.
Site & Context
The development site:
· Has a total site area of 4,782m2.
· Has a 45m frontage to Cumberland Ave which forms the primary frontage to the east.
· Contains structures including a single storey masonry building, approximately 18m x 5m which sits centrally on the lot and setback approximately 14m from Cumberland Ave and an industrial building approximately 12m x 42m with a height of 5m, providing a covered storage area.
· Is located within Zone IN1 General Industrial (refer Figure 2 below).
· is identified as bushfire prone land (buffer zone).

Figure 2 – Zoning Map
History
|
Date |
Comment |
|
16 April 2021 |
Application Lodged |
|
23 April 2021 |
Additional Information Requested (a.k.a Request for Information (RFI)) – given twenty-one (21) days to respond. Information required: 1. Owner’s consent. The submitted owner’s consent would appear to be signed by a single director. If the owner of the property is a company, the application must either: a) be signed by two directors or a director and a company secretary; b) be signed by an authorised person of the company. The authorised person must demonstrate authority to lodge the development application by providing either minutes of a board meeting resolving to provide such authorisation to that person or by way of a letter signed by two directors or a director and a company secretary providing such authorisation; c) be signed by a sole director in the case of sole director companies; and d) the nature of their position of authority must be stated on the form (e.g. director, sole director, or company secretary). 2. A stormwater concept plans, prepared in accordance with Chapter G2 Sustainable Stormwater Management and Erosion/Sediment Control of Shoalhaven Development control Plan 2014. 3. Amended site plans to provide the following details in accordance with Schedule 1 of the Environmental Planning and Assessment Regulation 2000: a) All existing structures and use of structures on the subject site and adjoining site. b) Setbacks of the proposed building addition to all boundaries c) The storage of materials on the site. d) All car parking spaces existing and proposed on the site. 4. Amended floor plans to provide the following details: a) floor plans of the existing building showing the extent of the changes or connection of the proposed building to the existing building. b) the fitout and use of the building addition. c) FFL (Finished Floor Level) of the existing and proposed building. 5. Amended elevations and sections to provide the following details: a) All elevations are to be provided with relevant cardinal directions i.e. southern and northern elevations (front, left and right are not appropriate) b) All elevations and sections are to be provided with FFL (Finished Floor Level), FGL (Finished Ground Level), NGL (Natural Ground Level)and finished ridge heights. 6. A swept path plan to be included to demonstrate the movement of the largest vehicle servicing the site, to and from the service doors. This is required to ensure that the location of the proposed roller door access points are provided with sufficient area to enable the largest vehicle to access these areas without conflicting with the existing storage areas. 7. An amended statement of environmental effects to be prepared to address the following matters: a) Clarification of the existing use and extension of that use to the new building. this would include consideration of the broader use of the site. It does not appear that the site has prior approval for the use of the external areas of the site for the storage of industrial goods and material. It would appear that the site is currently being used for the storage of materials external to the building. Clarification is required as to the current approval for the use of these areas for the storage of materials. b) Assessment of the development against the following provisions of the Shoalhaven Development Control Plan 2014: i. Chapter G20: Industrial Development ii. Chapter G21: Traffic and Car Parking |
|
As sufficient information has been provided by the applicant no notification or referrals have been undertaken. |
|
|
19 May 2021 |
As no information or contact was made by the applicant in response to the 23 April 2021 letter, an ‘Intent to Refuse’ letter was issued and the applicant given seven (7) days to respond. |
|
25 May 2021 |
Staff left a message with receptionist for applicant to call Council to discuss application and the required additional information. |
|
09 June 2021 |
The Applicant contacted Council and advised the additional information was still 4-6 weeks away. The assessing officer advised the applicant to withdraw the application and relodge once all the information required had been prepared and that they would receive a 100% refund (of applicable fees). The applicant refused to withdraw, and was accordingly advised that the matter would need to be finalised and would be reported to Council for refusal. |
Issues
1. Inadequate Documentation and Plans – Non-Compliance with Provisions of the Environmental Planning and Assessment (EP&A) Regulation 2000
The Development Application (DA21/1370) was lodged with Shoalhaven City Council on 16 April 2021. As part of Council’s initial vetting of the application, key issues were identified with the application (as identified in the “history” summary above) and additional information (RFI) was requested on 23 April 2021 to enable the application to progress to a full assessment.
Discussion
Given no response was received to Council’s request for further information, the development is non-compliant with the following mandatory requirements of the EP&A Regulation 2000:
· Clause 49 – Persons who can make Development Applications.
As land owners consent was not provided, Council cannot be satisfied that the appropriate owner’s consent for the land has been provided in accordance with the requirements of clause 49 of the EP&A Regulation 2000.
· Clause 77 – Notice of Development Applications
As adequate plans capable of being notified in accordance with the requirements of Council’s Community Consultation Policy were not provided, the development was unable to be notified within the surrounding locality per the requirements of clause 77 of the EP&A Regulation 2000. Noting the submitted plans fail to adequately show the relationship of the proposed extension with the existing warehouse development.
· Schedule 1 – Forms
As neither an adequate site plan nor adequate sketch plans depicting the development were provided, the development is non-compliant with the provisions of Schedule 1 of the EP&A Regulation 2000.
2. Non-Compliance with provisions of the Shoalhaven Development Control Plan 2014
As a response to Council’s RFI was not received clarifying any of the matters raised (refer Report above), the following non-compliances with the Acceptable Solutions and Performance Criteria of provisions within various Chapters of the Shoalhaven Development Control Plan (SDCP) 2014 were identified:
· The proposal is not compliant with the following provisions of Chapter G1 – Site Analysis, Sustainable Design and Building Materials of the SDCP 2014:
o Acceptable Solution A1.1 – A1.3 / P1.1-P1.4 – Site Plan / Site Analysis.
· The proposal is not compliant with the following provisions of Chapter G2 – Sustainable Stormwater Management and Erosion/Sediment Control of the SDCP 2014:
o Acceptable Solution A2.1 / P2 – Stormwater Drainage.
· The proposal is not compliant with the following provisions of Chapter G20 – Industrial Development of the SDCP 2014:
o Acceptable Solution A3.2 / P3 – Drainage Plan.
· The proposal is not compliant with the following provisions of Chapter G21 – Car Parking and Traffic of the SDCP 2014:
o Section 5.1 – Car Parking Schedule; and
o Acceptable Solutions A12.1 and A12.2 / P12 – Manoeuvrability.
Discussion
The following details the reasons for the non-compliance with the relevant Acceptable Solutions and Performance Criteria of the SDCP 2014 as described above. The absence of sufficient detail and information pertaining to the proposed development has meant a full assessment against Council’s controls has been unable to be undertaken. Despite Council officers following up with the applicant to obtain this information, the updated documentation has not been forthcoming, and the application cannot be held in abeyance indefinitely.
Chapter G1 – Site Analysis, Sustainable Design, & Building Materials – Acceptable Solutions A1.1 to A.3 / Performance Criteria P1.1–P1.4
A1.1 A site analysis plan is provided with a development application that shows the following, as appropriate:
· Constraints (including but not limited to):
- Location of services such as power, sewer, water and drainage lines.
- Existing trees and vegetation within and adjacent to the land being developed.
- Natural hazards which are likely to impact upon the development such as bush fire prone land, coastal hazard areas or flood prone land.
· Opportunities (including but not limited to):
- Views from the site.
- Solar access.
- Existing mature trees and vegetation.
· Context information for the site and adjoining/ adjacent development (inc. but not limited to):
- Height and use of buildings.
- Front setbacks.
- Driveways.
- Boundary treatments (including retaining walls).
- Easements.
- Stormwater management.
The Site Plan / Site Analysis Plan provided insufficient information which also resulted in non-compliance with Schedule 1 of the EP&A Regulation 2000. In particular, the submitted Plan did not satisfactorily provide details including the height of the existing and proposed building, location and design of driveways (swept paths), or stormwater management.
A1.2 For development other than for a single dwelling house and associated structures, a development application must detail, as appropriate:
· Topographical features such as slope, existing natural trees and vegetation and opportunities for the creation of views and vistas.
· Opportunities to orientate buildings and private open spaces having regard to solar access, winds and views.
· The character of the surrounding development, particularly to setbacks and subdivision layout.
· The likely impact on surrounding development, particularly with regard to overshadowing, privacy and obstruction of views.
· The extent to which driveways and/or parking areas are likely to dominate the appearance of the development.
· The visibility, width and design speed of proposed roads and/or driveways.
· Bush fire, flooding and drainage constraints, easements for services and extent of contaminated land.
· The character of any adjacent public land/reserves, particularly the location of mature trees in relation to the proposed development.
The Site Plan / Site Analysis Plan provided insufficient information which also resulted in non-compliance with Schedule 1 of the EP&A Regulation 2000. In particular, the submitted Plan did not satisfactorily provide details including the likely impact on surrounding development (no buildings on surrounding properties were referenced), slope of the land and any required earthworks, and suitability of the driveway area for the likely vehicle types.
A1.3 The proposed site layout responds to and implements the findings of the site analysis plan prepared in accordance with A1.1 and A1.2.
Having regard for the deficiencies to the submitted Site Plan / Site Analysis Plan, Council cannot clarify if the proposed layout adequately responds to its findings.
Performance Criteria P1.1 to 1.4 of Chapter G1 states the following:
P1.1 The characteristics of the site and its surrounds have been adequately considered through preparation of a thorough site analysis plan.
P1.2 The site analysis informs the site design and layout.
P1.3 The site layout integrates with the surrounding environment through:
· Adequate pedestrian, cycle and vehicle links to street and open space networks.
· Buildings that face and address streets and the public domain.
· Buildings, streetscape and landscape design that relates to the site topography and to the surrounding neighbourhood character.
P1.4 The site layout enhances personal safety and minimises potential for crime and vandalism.
Chapter 1 – Introduction, Clause 11 of the SDCP 2014 requires that a ‘Variation Statement’ be prepared which justifies any non-compliance with the acceptable solution.
The applicant failed to submit a Variation Statement as required by Chapter 1, therefore justification has not been provided demonstrating that the development can meet the performance criteria. Council is unable to undertake a full and proper analysis of the development against the DCP controls as required by s4.15(1)(a)(iii) of the EP&A Act 1979 and Council should not grant consent to a development where compliance with neither the acceptable solution nor performance criteria has been demonstrated by the applicant.
Chapter G2 – Sustainable Stormwater Management & Erosion and Sediment Control – Acceptable Solution A2.1 / Performance Criteria P2
A2.1 Roof water is to be collected by gutter and downpipe systems, or other equivalent means, and conveyed to an approved discharge point in accordance with the requirements of Part 3.1.2 of the Building Code of Australia and AS 3500.3. This could be:
a) A gutter or table drain in a road reserve, or
b) A stormwater easement or easement to drain water, or
c) A charged line system where (a) and (b) above are not available and the development site will have no more than two dwellings. Where a charged line system is proposed, the following must be included with the development application:
· Acknowledgement from adjoining property owners indicating a refusal to grant a drainage easement. The acknowledgement must indicate that a reasonable amount of compensation has been offered for the proposed drainage easement and that the advantages of creating as easement were explained.
· Demonstrate a minimum of 1.8m of fall between the roof gutters and the front boundary of the site.
· Demonstrate fall from the front boundary to the kerb line.
· Detailed design, inclusive of site plan and longitudinal section including all calculations, levels and further details of pits, gutters and maintenance facilities as required
d) A disposal/absorption trench, where (a), (b) or (c) above are not available, and soil conditions are suitable, or
e) A water tank/on-site detention system with an overflow connected to a disposal method in (a), (b), (c) or (d), above.
As part of the RFI sent to the applicant, Council requested a Stormwater Concept Plan to identify how runoff from the additional 307.2m² of impervious area (24m x 12.8m extension) would be captured and disposed. This is considered appropriate given the considerable extent of additional roofed area being proposed.
Given no response to Council’s request was received, the applicant has not satisfactorily nominated the method of stormwater disposal from the site.
Performance Criteria P2 of Chapter G2 states the following:
Stormwater is appropriately accommodated in the design including:
· Stormwater from roofed areas is collected, stored and/ or conveyed to appropriate discharge points or disposal areas.
· Paved/impervious areas associated with buildings and driveways are graded and drained to prevent the discharge of surface water onto adjoining land.
· Permeable areas are utilised to reduce stormwater runoff.
Chapter 1 – Introduction, Clause 11 of the SDCP 2014 requires that a ‘Variation Statement’ be prepared which justifies any non-compliance with the acceptable solution.
The applicant failed to submit a Variation Statement as required by Chapter 1, therefore justification has not been provided demonstrating that the development can meet the performance criteria. Council is unable to grant consent to a development where compliance with neither the acceptable solution nor performance criteria has been demonstrated by the applicant.
Chapter G20 – Industrial Development – Acceptable Solution A3.2 / Performance Criteria P3
A3.2 A drainage plan is submitted with the development application.
Despite Council’s RFI requiring the submission of the drainage plan / stormwater concept plan, no response was received. The applicant has therefore not adequately demonstrated that runoff from the additional 307.2m² of roof space can be appropriately managed using existing facilities.
Performance Criteria P3 of Chapter G20 states the following:
P3 Adjoining sites are not to be negatively impacted by the proposed development and drainage works.
Chapter 1 – Introduction, Clause 11 of the SDCP 2014 requires that a ‘Variation Statement’ be prepared which justifies any non-compliance with the acceptable solution.
The applicant failed to submit a Variation Statement as required by Chapter 1, therefore justification has not been provided demonstrating that the development can meet the performance criteria. Council is unable to grant consent to a development where compliance with neither the acceptable solution nor performance criteria has been demonstrated by the applicant.
Chapter G21 – Car Parking & Traffic – Section 5.1 – Car Parking Schedule
The proposal has not satisfactorily demonstrated that provision is capable of being made for car parking spaces to be provided, as required in accordance with Section 5.1 – Car Parking Schedule of Chapter G21 of the SDCP 2014. In particular, the following is noted:
· The applicant has not demonstrated on the submitted Site Plan, the location where any additional parking spaces are capable of being provided (also noting that external areas of the site in the vicinity of the proposed building appear to be used for the storage of materials).
· The applicant has not demonstrated on the submitted Site Plan, the location where any existing parking spaces are provided.
· The applicant has not provided an assessment against Chapter G21 in their submitted Statement of Environmental Effects Report, which discusses car parking or the likely future car parking rate for the development.
Chapter G21 – Car Parking & Traffic – Acceptable Solution A12.1 and A12.2 / Performance Criteria P2
A12.1 The minimum turning paths in Table 2 are achieved.
A12.2 Turning paths for vehicles will be based upon the largest vehicles likely to utilise the premises.
It is noted that the extended building to be constructed in the western rear part of the site would reduce the hardstand area available on the site for manoeuvring of vehicles. As such, Council requested swept paths be provided as part of the RFI, demonstrating that the largest vehicle requiring access to the site, is capable of achieving that access. Council were in particular concerned with access to the roller doors which appear to be located in the western rear elevation with a rear setback of only 19m.
However no response was received, and as such, the requested swept paths demonstrating manoeuvrability were not provided.
Performance Criteria P12 of Chapter G21 states the following:
P12 Adequate space is provided for the manoeuvring of vehicles, particularly rigid and articulated heavy vehicles.
Chapter 1 – Introduction, Clause 11 of the SDCP 2014 requires that a “Variation Statement” be prepared which justifies any non-compliance with the acceptable solution.
The applicant failed to submit a Variation Statement as required by Chapter 1, therefore justification has not been provided demonstrating that the development can meet the performance criteria. Council is unable to grant consent to a development where compliance with neither the acceptable solution nor performance criteria has been demonstrated by the applicant.
Planning Assessment
The DA has been assessed under s4.15(1) of the Environmental Planning and Assessment Act 1979. Please refer to Attachment 1.
Consultation and Community Engagement:
As insufficient information has been provided by the applicant no notification has been undertaken. In accordance with Council Policy the application was required to be notified for a minimum of fourteen (14) days to property owners within a 100m radius.
Financial Implications:
There are potential cost implications for Council in the event of a refusal of the application. Such costs would be associated with defending any appeal in the Land and Environment Court, should the applicant utilise appeal rights afforded under the Environmental Planning and Assessment Act 1979 (EP&A Act).
Legal Implications
According to section 8.2 of the EP&A Act, a decision of the Council may be subject of a review by the applicant in the event of approval or refusal. If such a review is ultimately pursued (if the recommendation is not adopted), the matter would be put (again) to Council for consideration.
Alternatively, an applicant may also appeal to the Court against the determination according to section 8.9 of the EP&A Act.
Summary and Conclusion
This Report and the attached s4.15 Assessment Report (Attachment 2) provide an assessment of a proposal for “alterations and additions to an existing industrial development” on land described as Lot 2 DP 260264, No. 3 Cumberland Av South Nowra.
The application has been submitted with inadequate information to enable a full and proper assessment of the application and its impacts per the requirements of section 4.15 of the EP&A Act. Accordingly, several non-compliances with the documentation requirements of Council’s DCP were identified, in addition to failure to supply Council with mandatory details specified in the EP&A Regulation 2000. Council staff have liaised with the applicant during the assessment period; however the additional information has not been forthcoming.
Having regard to the assessment and lack of detail submitted with the application, the proposal is not considered capable of support and is recommended for refusal for the reasons at Attachment 1.
|
|
Development & Environment Committee – Tuesday 13 July 2021 Page 0 |
DE21.81 DA20/2322 – 12-16 The Wool Road & 5 Burton Street, Vincentia – Lots 1779 & 1780 DP 26434, Lot 5 DP 539867 & Lot 1 DP 615796
DA. No: DA20/2322/4
HPERM Ref: D21/245916
Department: Development Services
Approver: Phil Costello, Director - City Development
Attachments: 1. Planning Report - 12 -16 The Wool Rd, Vincentia (under separate cover) ⇨
2. Draft - Determination - 12-16 The Wool Rd, Vincentia (under separate cover) ⇨
Description of Development: Demolition of Existing Structures and Construction of Hotel Accommodation with Ancillary Bar / Bistro and Function Centre
Owner: Error! Unknown document property name.
Applicant: Error! Unknown document property name. c/o PDC Lawyers & Town Planners
Notification Dates: 23 December 2020 to 20 January 2021
No. of Submissions: 45 in objection
Two (2) in support
Purpose / Reason for consideration by Council
On 19 January 2021, it was resolved by the Strategy and Assets Committee that this DA be called in to Council for determination in response to considerable public concern.
Options
1. Approve the development application (DA) in accordance with the recommendation of this report.
Implications: This would allow the applicant to pursue construction of the development.
2. Refuse the application.
Implications: Council would need to determine the grounds on which the application is refused, having regard to section 4.15(1) considerations.
3. Alternative recommendation.
Implications: Council will need to specify an alternative recommendation and advise staff accordingly.
Figure 1 – Location Map
Background
Proposed Development
The DA seeks approval for the demolition of existing structures and construction of hotel accommodation with ancillary bar / bistro and function centre.
The proposed hotel is situated entirely over Lots 1779 & 1780 DP 26434 and Lot 5 DP 539867 fronting The Wool Road, and over a portion of Lot 1 DP 615796.
The submitted Statement of Environmental Effects (dated 4 June 2021) provides the following detail with regard to the development description:
· Lot Consolidation & Demolition:
“The subject site will be created by subdividing Lot 1 DP 615796 and consolidating all lots within the subject site (refer to Figure 4)
It is proposed for all structures and vegetation within the subject site boundaries to be removed” (shown at Figure 2)
· Hotel accommodation, ancillary bistro/bar and function centre:
“Construction of a three and four storey hotel (Figure 5) containing:
· Basement floor:
o 45 standard car spaces
o Three accessible car spaces
o Two stacked staff parking spaces
o One service/courier vehicle space
o Store and service rooms
· Ground floor:
o Bar and Bistro with 165m2 floor area
o Function Room with 156m2 floor area
o Service areas, bin storage, circulation spaces etc
o Lobby/Reception and office
o Eleven studio hotel rooms
· First Floor:
o Twenty-one studio hotel rooms with balconies
· Second Floor (fourteen rooms):
o Four studio hotel room
o Three interconnecting rooms (capable of being used either as two-bedroom interconnecting units or separately as one studio and one one-bedroom unit)
o Three one-bedroom hotel room
o One two storey, five-bedroom penthouse with rooftop garden and balcony. This room spans the second and third floors.
The bar / bistro and function centre are provided as ancillary to the hotel accommodation. The bar / bistro will be open seven days with breakfast for guests only and lunch/dinner open to the public.
The function centre will operate on an as-booked basis and is available for use by hotel guests and the general public. The function centre has an anticipated maximum capacity of 50-60 people, though it is noted that this is highly variable in light of Government mandated social distancing rules.
The hotel component will employ five staff (2 front desk/admin, 1 general duties and 2 cleaners). There will be staff presence 24 hours a day, however staffing ratios will be higher during normal business hours and drop to one staff member overnight”.
The following was further clarified in the submitted cover letter with additional information response (dated 16 April 2021):
“…It is anticipated breakfast will be available from 6am, Lunch from 11am – 3pm and Dinner from 5pm – 10pm. (in relation to the bar / bistro).
…Function times will depend on individual bookings, though it is anticipated that bookings will occur between 9am and 12am / midnight.
The bar / bistro will employ approximately five staff (3 chef / cook staff and 2 waiters / waitresses). The function centre will also employ approximately five staff (3 chef / cook staff and 2 waiters / waitresses).”
· Vehicular access and parking:
“Vehicular access to the site will be from the car park to the south and includes a port-cochere check-in / drop off bay and basement parking for 51 vehicles (including staff and loading / service bay). The 51 basement parking spaces accommodate all hotel visitors and staff. Additional parking for use by short term users of the site (bistro / bar and function centre) is accommodated within the existing car park. A traffic and parking assessment is provided in this regard”.
The proposal proposes a total of 83 parking spaces for the development, including a basement level carpark comprising 51 parking spaces within the footprint of the proposed building for all hotel visitors and staff, and at least 32 parking spaces are to be provided within the existing shopping centre parking area on Lot 1 DP 615796 for the associated bar / bistro and function centre.
“A service bay is provided on the basement floor near the lifts for use by smaller daily service vehicles. It is anticipated that given the size of the hotel development the daily service vehicles will be the size of a large van. The largest vehicle expected to be required for service of the site generally is likely to be a small rigid vehicle for bin servicing. This vehicle will not actually enter the site as a suitable loading bay is provided within the existing car park area to the east of the port-cochere. Swept path diagrams are provided in the traffic and parking assessment”.
· Landscaping:
“Landscaping includes private courtyards for several ground floor studio units, a swimming pool at The Wool Road frontage, dense boundary landscaping and a number of rooftop gardens, as indicated on the submitted plans. Additional landscaping will be provided within the existing car park between the entry and exit points for the proposed hotel.”

Figure 2 – Demolition Plan

Figure 3 – Site Plan
Figure 4 – Boundary Adjustment Plan
|
|
|
|
|
|
|
|
Figure 5 – Elevations
Subject Land
The development site comprises Lots 1779 & 1780 DP 26434, Lot 5 DP 539867 & Lot 1 DP 615796 (12-16 The Wool Road & 5 Burton Street, Vincentia). Refer to Figure 1.
Site & Context
The development site:
· Is located on the southern side of The Wool Road, immediately west of the entrance to the carpark associated with the Vincentia Village shops.
· Consists of:
o The three (3) lots fronting The Wool Road (12-16 The Wool Road), each contain a single dwelling house and ancillary structures.
o The remaining part of the site contains part of the carpark and a small section of land between the northern edge of the carpark and the southern boundary of the three (3) lots fronting The Wool Road (5 Burton Street).
· Includes 12-16 The Wool Road which are zoned R1 General Residential while 5 Burton Street is zoned B2 Local Centre. Refer to Figure 6.
· Has existing access to The Wool Road, which is identified as a “local” heritage item – Item No. 218, Colonial road—remnants (former Wool Road).
· Adjoins land comprising the carpark to the east and south associated with the Vincentia Village shops to the southeast (being zoned B2 Local Centre), and low-density residential development to the north and west (being zoned R1 General Residential).

Figure 6 – Zoning Extract
History
The following provides details on post-lodgement actions for context:
· This application was lodged on 8 December 2020.
· As a result of detailed assessment of the application, additional information was requested from the applicant on five (5) occasions – 10 December 2020, 23 December 2020, 22 January 2021, 25 March 2021 and 20 May 2021. The main issues related to the following:
o The development as submitted included clause 4.6 written request in relation to a contravention to the building height limit under Shoalhaven Local Environmental Plan 2014 (SLEP 2014).
It was considered that the request did not provide sufficient comprehensive assessment as required against the provisions of clause 4.6 Exceptions to development standards, SLEP 2014 in order to justify why the contravention to the stated development standard should be considered by Council. The request did not include environmental planning grounds as to why exceedance is necessary, along with the unique characteristics and circumstances. The request along with the submitted plans did not clarify the extent of contravention to the height of building limit across the subject site, noting the site is affected by both an 8.5m and 11m limitation.
o The submitted Traffic and Parking Impact Assessment Report.
Council was not supportive of the proposal to entirely rely on existing parking within the Vincentia Shopping Village carpark and surrounding areas.
o The submitted stormwater drainage design. Council required the design to demonstrate extension and connection to the underground stormwater system in The Wool Road.
o Endeavour Energy’s objection to the application
· Councillors called in the application in response to considerable public concern on 19 January 2021 (MIN21.15).
· A (digital) Resident Briefing Meeting (RBM) was held on 16 March 2021. Seventeen (17) residents attended. All objectors were sent a digital invitation to attend.
· The concerns raised from the RBM for the applicant’s consideration included the following:
o The removal of the existing (substantial) gum trees and the inclusion of additional significant trees as part of the proposed landscaping.
o Environmental management issues such as waste, power and water management and consideration of alternatives, including wastewater collection and recycling, solar power and composting etc. to address climate change. These are considered to be common practices in many hotel/resort, club and shopping mall developments.
o Confirmation of the operating hours of the bar/bistro and function centre.
o Confirmation of the total number of staff to be employed for the development, including the bar/bistro and function centre.
o Confirmation as to the intended use of the penthouse, whether for personal use or as part of the hotel accommodation.
· On 23 February 2021, 2 March 2021, 23 April 2021, 5 May 2021 and 7 June 2021, the applicant submitted additional information via the Planning Portal; this included a response to Council’s request for information, and addressed the matters raised at the RBM. This information was subsequently referred to the relevant sections of Council and external agencies where necessary.
The applicant addressed the matters raised for consideration, by:
o Including a basement level carpark comprising 51 parking spaces within the footprint of the proposed building for all hotel visitors and staff. At least 32 parking spaces are however still to be provided within Lot 1 DP 615796, within close proximity to the development, for the associated bar/bistro and function centre.
(It is noted that the application as originally lodged relied entirely on existing parking within the shopping centre carpark.)
o Proposing to connect stormwater to the existing infrastructure in The Wool Road.
o Proposing to reflect the requirements of Endeavour Energy in the design, and
o Amending the design of the proposed development to reduce the maximum height of the building to comply with the height limits under SLEP 2014.
(It is noted that the application as originally lodged proposed the building as much as 2.1m above the 8.5m and 11m height limits.)
Issues
Concerns raised in public submissions.
Submissions from 45 objectors were received by Council.
The matters raised are considered in the assessment of submissions below.
|
Summary of Public Submissions |
|
|
Objection Raised |
Comment |
|
Inconsistency with zone objectives
The area is zoned R1 General Residential under SLEP 2014. The objectives of this zone are to provide housing and facilities and services for residents etc. not hotels accommodation and bar for tourists.
None of the zone objectives are met by this proposal.
Vincentia is a low-density residential area. Although it is agreed that Vincentia is a highly sought-after tourist location, there is objection to the statement that there is a “paucity of existing commercial accommodation developments”. That is not appropriate in a low-density residential area. Huskisson is the appropriate location for high rise commercial accommodation developments, not Vincentia.
|
§ The site is zoned R1 General Residential and B2 Local Centre under SLEP 2014. The proposal is best characterised as tourist and visitor accommodation (hotel or motel accommodation) and is permitted within both the subject R1 and B2 zones with the consent of Council.
In short, the use is a permissible use in the zones. Having regard to the zone objectives, an important consideration is the compatibility of the use with adjoining development.
§ The SLEP, clause 2.3(2) states that the consent authority must have regard to the zone objectives.
§ The objectives of the R1 General Residential zone are: § “To provide for the housing needs of the community. § To provide for a variety of housing types and densities. § To enable other land uses that provide facilities or services to meet the day to day needs of residents. § To identify land suitable for future urban expansion”.
§ The objectives of the B2 Local Centre zone are: § “To provide a range of retail, business, entertainment and community uses that serve the needs of people who live in, work in and visit the local area. § To encourage employment opportunities in accessible locations. § To maximise public transport patronage and encourage walking and cycling”.
§ The objectives of the R1 zone relate to the dominant use or intention of that zone. However importantly the zone permits a range of uses that are not residential including but not limited to a hotel, place of public worship (e.g. church), community facilities and more.
§ It is considered that the proposal is not inconsistent / incompatible with the relevant objectives having regard to the range of uses permitted within the zone.
§ The proposed bar/bistro and function room on the ground floor are proposed to be ancillary to the “hotel or motel accommodation” land use. That is, it is a component of the dominant purpose of the “hotel or motel accommodation” and is subservient to that dominant purpose.
|
|
Non-compliance with building height limit
The proposal does not comply with the building height restriction of 8.5m along The Wool Road, being almost 12m in height.
It is appropriate to approve developments in Vincentia that are in keeping with the existing buildings. The scale, bulk and usage of that proposed is inconsistent with the low-density residential nature of the area. An 8.5m height limit has been widely agreed as sufficient for The Wool Road. Taking a piece of land from 5 Burton Street which has a height limit of 11m (by removing trees and car parking spaces from the Vincentia Village Shopping Centre) to enable a building on The Wool Road go to almost 12 (11.955) metres, is not meeting the spirit/intent of planning rules nor the objectives of the standard. It is completely inappropriate.
The original and revised proposed elevations show the majority of roof is above the LEP maximum height blanket. The applicant has proposed ~10% across the majority of the building (not including the terrace, roof landscaping and glass balustrade which would make it well more than 10%). The elements that protrude above the height limit will impact on views and noise.
The applicant indicates that the application demonstrates how the objectives of the height limit control are met despite non-compliance with the numerical standard but does not demonstrate it at all. The applicant does not meet any of the five (5) tests of 'unreasonable' or 'unnecessary'. There is no merit to justify this variation under Clause 4.6. The building is not compatible with the height, bulk or scale of existing buildings. The surrounding buildings are low density residential (2 storey separate dwellings not a 4-storey bulky building). It is not compatible with the height, bulk or scale of future buildings of the future character of the area given the R1 zoning. The three (3) lots fronting The Wool Road are mapped as having a maximum building height of 8.5m. While there may be no public benefit in a boxy hotel, there is no public benefit in the proposal which does not meet requirements. Just because the proposal is not 'box shaped' does not make it compatible with surrounds. There is no guarantee a box shaped proposal would be approved either.
|
§ While the proposal as originally lodged exceeded the maximum height controls under SLEP 2014, through the assessment process the design of the hotel was amended. The height of the building now complies with the maximum height limits of 8.5m and 11m required under the SLEP 2014.
§ It is considered that the objectives of this (height) clause are now satisfied.
§ The draft consent at Attachment 1 includes a recommended condition requiring a survey certificate during works to ensure compliance with the maximum height control is complied with if approval is granted.
|
|
Traffic and parking
There is concern is the extra traffic movement which will be generated in and out of the complex, in and out of the carpark, and in the nearby streets, including traffic travelling through the roundabout joining Elizabeth Drive and Wool Road which is already very heavily congested in holiday times.
The narrow entries and turning areas also cause significant congestion within the carparks themselves. This proposal (with all its contingent deliveries, services and trades, waste removal, guest arrivals and departures) will exacerbate the traffic and congestion in this area.
The heavier traffic movement will also add further risk to the safety of pedestrians, especially school children who walk along The Wool Road and Elizabeth Drive. It is already hazardous for pedestrians along this route especially when trying to cross the driveway entrance into the Vincentia Village Shopping Centre carpark. More traffic will only make things worse.
The submitted plans imply that the car parking spaces that are nearest to the entrance to the shops which are required by the many elderly residents will not be available if the development is approved in this form. It also remains a concern that traffic flow into the proposed hotel will be maximised in peak periods when the flow into the shopping centre is also at its heaviest.
The submitted Traffic and Parking Impact Assessment Report is flawed. The survey was undertaken on 23-24 October 2020, which would not be a true reflection of the parking problems which occur in the holiday times. A more appropriate time would be to undertake this survey in the busiest time when the most tourists are visiting the area.
If this development is approved it must provide for improved traffic management on The Wool Road and the nearby roundabout on Elizabeth Drive, and address safety risks for pedestrians and cyclists on the shared path along the side of The Wool Road.
|
§ Council’s Development Engineer raised no objections subject to recommended conditions of consent (dated 22/03/2021). Should the application be determined by approval, then these conditions would be included.
§ While Council raised concern with the development as originally submitted, plans have been revised along with a revised Traffic and Parking Impact Assessment Report.
§ The design now provides for a basement parking level with 51 spaces. This is considered a significant improvement for the development from the previous proposal (no parking on site). The basement parking layout complies with AS2890.1 and manoeuvring has been demonstrated with swept paths being detailed / provided.
§ The basement carpark meets the DCP parking requirements for the hotel accommodation and staff component, however excess parking demand generated by the restaurant and function centre (32 spaces per the DCP rates including a 25% reduction for co-use) is not catered for within the development site and rely on the shopping centre carpark.
§ The most recent approval for the Vincentia Shopping Village (DA16/1748) carpark, identified the parking area contained a surplus of 34 car parking spaces to that required by the DCP. The current proposal will result in a reduction of 6 parking spaces, resulting in a surplus of 28 parking spaces.
As indicated in the submitted Traffic Report:
The proposed development includes works within the car parking area, resulting in a net decrease of six (6) car parking spaces to facilitate the turning bulb and drop off area. The changes to the existing car parking area result in the shopping centre carpark having a net surplus of 28 spaces under future conditions. It is reasonable for the proposal to rely on the oversupply of parking in the adjoining car park for restaurant users and for function centre users, particularly considering these uses involve short term parking that will peak in demand at times that do not coincide with the adjacent shopping centre. Considering the parking requirements of the restaurant and the function centre under the DCP of 32 spaces and the approved surplus of 28 spaces, the resultant car parking provision results in a shortfall of four (4) spaces from Council’s DCP requirements which can be easily accommodated in the shopping centre car park.
§ The use of the shopping centre carpark for patrons of the restaurant and function room is considered to be a more appropriate use than hotel guests, given the more short-term nature of parking and the fact that it will be less likely for vehicles to be left overnight. The Report also details that the peak times for restaurant and function use would generally not coincide for peak times at the shopping centre.
§ An easement for parking will still be required over parking spaces that are required for the use of the development, to ensure the parking needs are met in perpetuity in the event that the hotel is sold off separately to the shopping centre.
§ The Report also includes analysis of intersection treatments required at the carpark entrance off The Wool Road. Based on the traffic data, Austroads suggests a channelised right-turn (CHR) or auxiliary left-turn (AUL) treatment is necessary. The Report refers to alternative published research that provides a lower burden on brownfields sites to provide such intersection treatments, resulting in a requirement of a basic right-turn (BAR) or basic left-turn (BAL) treatment. The existing situation complies as a BAR/BAL treatment according to the Report, and measurements off aerial photos suggest this is generally correct. However, Austroads is considered the industry standard document and referred to by Council’s DCP and Engineering Design Specifications, and given the triggers within that document are exceeded, warrants for provision of a CHR treatment are met and would therefore be ‘conditioned’ should the application be determined by approval.
§ It is noted that the Report states the development will be serviced by a vehicle no larger than a small rigid vehicle (SRV), including waste collection by contractors. Many waste collection vehicles are closer to medium rigid vehicle (MRV) dimensions, and it may prove restrictive to limit servicing to an SRV. It is also noted that the waste storage area is now further from the service bay compared to the previous design, and some of the paths between the loading bay and waste room appear quite constrained, and it would be difficult to wheel a 1100L bin through (such as past the raised concrete surrounds around the columns near the turning circle).
§ The applicant was requested to reconsider the service bay/waste room arrangement to improve the ease of waste collection and allow for vehicles larger than an SRV to service the development. They were advised that if they wish to proceed on the basis of only using an SRV, conditions of consent would be imposed should the application be determined by approval to limit vehicles to this size. If this is the case, they were requested to provide evidence from a waste contractor that they can service the site with an SRV sized vehicle.
§ The applicant confirmed in advice dated 16/04/2021 that the proposed design has considered the likely size of service vehicles and allowance for an SRV has been made. They are agreeable to a condition of consent being imposed.
|
|
Insufficient onsite car parking spaces
The proposal does not provide the 83 car parking spaces required by Shoalhaven Development Control Plan 2014.
It is not believed that the proposed onsite parking will be sufficient for users and staff of the proposed development during peak periods. Many visitors to the Vincentia region come to enjoy aquatic activities within Jervis Bay and therefore bring boats, trailers and rooftop kayaks which will not be accommodated within the onsite parking.
Using ~30 carparks from the Vincentia Village Shopping Centre and still being short four (4) spaces is not acceptable.
Coles is the main attractor to the Vincentia Village Shopping Centre area and the proposed development is removing car parking spaces from immediately in front of the entrance to Coles where people with limited mobility need parking spaces. While there are parking spaces further away that is not practical for people with limited mobility.
With climate change such a prominent issue it is important they provide bicycle parking facilities.
Another suggestion is that an extension of the proposed covered car parking for the existing Coles car parking area could supply defined areas for extra parking, boat storage and then secured parking for the hotel.
|
§ Council’s Development Engineer raised no objections subject to recommended conditions of consent (dated 22 March 2021). Should the application be determined by approval, then these conditions would be included.
§ As addressed above, the proposed onsite parking arrangements are considered acceptable, noting that the application now proposes a basement level carpark comprising 51 parking spaces within the footprint of the proposed building for all hotel visitors and staff and at least 32 parking spaces are to be provided within close proximity to the development, for the associated bar/bistro and function centre.
§ Observing that the restaurant and function components are more likely to be used in the evening, it is not unreasonable to accept that the adjoining shopping centre car park could be used for this purpose. To ensure that this relationship between the car spaces and the proposed hotel is however retained, it is recommended that an appropriate ‘restriction / easement’ be placed on title ensuring that, if the shopping centre or hotel are sold separately, it is clear that the car park is available for hotel purposes.
§ Bicycle parking has not been proposed as part of the basement carpark design. The DCP does not provide a parking rate for this type of development.
§ Having regard to historic approvals and the floor area of development at the Shopping Centre, the applicant has also submitted the following:
“Reference is made to the most recent approval document related to the Vincentia Shopping Village, Development Consent from Shoalhaven City Council (DA16/1748) dated 24 August 2016 in relation to “Proposed alteration to driveway entrance to Stockland Vincentia Shopping Centre car park, alterations to layout of car park and alterations to tenancy”. This approval allowed for the alterations and additions to the existing car park, resulting in a net increase of + 34 car parking spaces under future conditions.
Further, reference is made to the Traffic Report of Colston Budd Rogers & Kafes Pty Ltd dated June 2016 (Ref: 10146) for the Vincentia Shopping Village as part of DA16/1748. This report assesses a scale of 3,758m2 GLA for the centre (being 3847m2 GLA minus a reduction of 89m2 GLA associated with the proposal). The report states the net increase of + 34 car parking spaces associated with the shopping centre upon approval of DA16/1748, without any increase in car parking demand”.
While the proposal involves a reduction of 6 parking spaces from the existing shopping centre car park, the resulting 28 car spaces which are surplus to the shopping centre needs are considered suitable to meet the parking needs of the proposed hotel and ancillary uses.
|
|
Tourist bus parking – future demand
It is not improbable that a hotel of this scale will be promoted to or attract tour operators. The applicant has not described how the parking of coaches, minibuses etc. will be accommodated. Similarly, there is no description on where hotel guests arriving by coach, minibus will alight from these vehicles.
|
§ Council’s Development Engineer raised no objections to the proposed parking arrangements.
§ The parking of coaches and minibuses etc. has not been proposed.
§ It is noted that there is no requirement under the DCP for this. There is considered to be suitable area within the street for parking of these vehicles and for the set down and pick up of passengers.
|
|
Detrimental impact on adjoining residential amenity
The proposal would have a detrimental impact on adjoining residential amenity and the amenity of a large section of Vincentia due to: - increased traffic (the traffic survey taken in October i.e. outside peak season and during COVID-19 is not sufficient); - overshadowing, - noise from the bar, function centre and rooftop penthouse; - light pollution; and - drunken behaviour from patrons of the bar/function centre.
|
Traffic impacts:
§ As already mentioned, the revised Traffic and Parking Impact Assessment Report was assessed and determined to be acceptable.
§ In this regard, Council’s Development Engineer raised no objections in relation to the matter of increased traffic subject to recommended conditions of consent (dated 22/03/2021). Should the application be determined by approval, then these conditions would be included.
§ The hotel includes guest rooms for overnight accommodation. It is in the interest of management to ensure that the hotel is operated in a manner to provide guest amenity and that of neighbouring developments. In the event of anti-social behaviour, this is a police matter (see further below).
Overshadowing:
§ Overshadowing has been adequately addressed with no unreasonable overshadowing occurring. The site faces a road and there is a car park to the south. The proposed building design is now compliant with the LEP and DCP requirements, particularly noting the (now) reduced height. The impacts of ‘shade’ can be seen below on 21 June at 9am, noon and 3pm (Winter and the shortest day of the year).
Noise impacts:
§ A condition is recommended on the draft consent to manage noise and lighting of the development if approval is granted.
Antisocial behaviour:
§ If there is concern about antisocial behaviour, this is a matter for the Police. Should the application be determined by approval, then conditions would be included to address Police recommendations in advice (dated 2 March 2021).
§ The proposal is a permissible use within the zoning and Liquor & Gaming licencing restrictions will apply to any future liquor licence for the hotel and associated bar/ restaurant and function centre.
§ Given that the proposal includes guest accommodation, it is considered that it is in the interest of hotel management to ensure a properly run establishment to ensure the amenity of guests and residents alike.
|
|
Out of character
The proposal does not retain the elements of the neighbourhood character i.e. low-density residential suburbia, generally characterised by one and two-storey detached dwellings; and as such does not reinforce local identity or sense of place. It is this relaxed, family character that makes Vincentia so desirable and enjoyable in contrast to the overdeveloped and crowded Huskisson.
The building form is also entirely unsuitable for a seaside village. It is massive and brooding and in effect a huge concrete pour with solid balcony balustrades and absolutely no lightness of form that invokes a seaside character. Sadly, if it proceeds in its current form, even if ultimately complying it sets an urban tone that the community will have to live with.
|
§ The design of the development is not considered out of character in this locality.
§ The design of a building must have regard to the purpose of the building. It would be unusual to have a hotel with numerous rooms and associated facilities to be contained in a domestic scale building. To this extent, a larger building is not unreasonable however it is the design relationship between the building and neighbouring development that needs careful consideration.
§ It is noted that “compatible” does not encourage “sameness” in built form, but rather requires a development fits within its urban context. It is considered that the design of the development achieves this.
§ Further to this, for a new development to be “compatible”, building height, setbacks and landscaping are key. Where there are significant differences in height, compatibility can be achieved by a gradual change as opposed to an abrupt change (see paragraphs 26 – 29) Project Venture Developments Pty Ltd v Pittwater Council [2005] NSWLEC 191. The extent of the height differences also depends on the consistency of height in the streetscape.
§ The development is compliant with the relevant requirements of SLEP 2014 (i.e. maximum height) and SDCP 2014, noting that the DCP is silent in relation to the built form or design of “hotel or motel accommodation”, with no specific setback or floor space ratio controls applying. It is noted that the building is proposed to be set back at least 4m from the nearest residential neighbour.
§ As detailed earlier in this report, Chapter G18: Streetscape Design for Town and Village Centres of SDCP 2014 is applicable to this development type and all required streetscape works for the development are to be provided in accordance with the Streetscape Technical Manual as required by this chapter. Crime Prevention Through Environmental Design (CPTED) principles are also to be considered in the provision of these works.
|
|
Undesirable precedent
The proposal would set a severely negative and undesirable precedent for building height and car space and noise levels, etc. in future developments. It is important to set the right precedent because this is the start of the re-development of the Vincentia Shops given that this developer owns adjoining properties and other developers may have/acquire adjoining properties.
|
§ Any proposed development the subject of a DA is to be assessed against the relevant provisions of section 4.15(1), EP&A Act 1979 and relates to the subject development site only.
§ Whether or not other developments of a similar nature will follow is unknown and is dependent on a number of factors including the intentions of individual owners.
§ Each DA is assessed having regard to its particular characteristics, the site attributes and what the relevant planning controls may be.
§ The development is a permissible use, complies with the applicable development standards.
Council needs to be satisfied that the site is suitable for the development. In this regard, it is considered the subject is suitable for the proposed development.
|
|
No additional tourist accommodation required
The proposal is not required in order to add to the choice to tourist accommodation at Jervis Bay. In addition to hotels/motels/apartments already in existence at Huskisson, a number of other hotels are being built at Huskisson: Moona Moona Creek, the site of the former Holy Trinity Family Church; and Owen Street.
|
§ While section 4.15 of the EP&A Act requires an assessment of economic impacts of a development, Council must be careful not to weigh into commercial and private business decisions. Council must determine that a development will not be broadly adverse, having regard to matters such as jobs, the viability of a commercial area etc. Business competition and the success of a business are not matters for Council’s section 4.15 assessment.
§ The Shoalhaven is a major tourist destination attracting numerous visitors. A counter view to the objection could be that this type of accommodation will provide another dimension and type of accommodation to the caravan and camping facilities, existing motels and AirBnBs in the locality.
§ The references to potential other developments is noted, these are proposals that are yet to become formal development applications.
§ The success of a business or otherwise and competition between providers is not something that Council typically involves itself in. These are largely private business decisions which Council has no role to play.
§ A development consent, if issued is valid for a period of 5 years. |
|
Economic impact
The proposal is unlikely to bring economic benefits to the Shoalhaven. It is suggested that its type of construction will require the skills of tradespeople from Sydney, rather than the Shoalhaven. After construction, the number of ongoing jobs will be few, seasonal and low skilled (the good jobs of management, chefs, accounting, legal will likely be provided by people from/in Sydney). The low-skilled seasonal workers may not even be locals (who need a regular income), but foreign working holidaymakers or students seeking holiday jobs, assuming they can find and afford accommodation at peak time of the year.
|
§ Section 4.15 of the EP&A Act requires an assessment of economic impacts of a development. See comments above.
§ In this regard it is considered that there will be no adverse economic impacts warranting refusal of the application. In reaching this conclusion regard has been given to impacts there will be within the locality. There will be short term economic benefits in construction work and hospitality work in the longer term.
|
|
Impact from excavation for basement carpark
There is concern resulting from the revised plan and the impact of an excavation at depth to accommodate parking onsite.
It is also important to be aware that Vincentia ground is rock. Drainage has been a problem for many in the area and there is concern about how the water will escape and where it will be piped to especially from the basement carpark.
|
§ Council’s Development Engineer raised no objections subject to recommended conditions of consent (dated 22 March 2021). Should the application be determined by approval, then these conditions would be included.
§ A dilapidation report will address concerns regarding impact on adjoining land.
§ The full engineering design will also need to address details at Construction Certificate stage. If rock is encountered or there are additional expenses as a result of unexpected finds, these are matters that the engineering experts will need to resolve having regard to the approval in place, if issued.
|
|
Stormwater discharge
There is concern with the impact on stormwater discharge and the consequences any more stormwater added to existing volumes, in particular, if it is discharged into Jervis Bay and the southern section of Collingwood Beach. Current stormwater discharge is causing safety problems and loss of sand from the southern end of Collingwood Beach.
Further to this, The Wool Road system is clearly already inadequate. There are enormous quantities that flow from this area under properties into Garlies Close and Argyle Street and cause localised flooding. This area's stormwater capacity is barely adequate and specific provision should be required.
|
§ Council’s Development Engineer raised no objections subject to recommended conditions of consent (dated 22/03/2021). Should the application be determined by approval, then these conditions would be included.
§ The stormwater drainage design meets the requirements of the DCP. It is noted that the DRAINS modelling provided indicates that the post-development flow leaving the site has now been reduced below 55L/s through changes to the OSD system. This is acceptable.
|
|
Sewage treatment inadequacies
It is note that Council has claimed there is adequate capacity in the sewage treatment at Vincentia.
This does not overcome the fact that from 1953 to about 10 years ago there had never been an algal bloom in Jervis Bay affecting the whole bay. In the last 10 years there have been two (2). The main cause is inadequacy in sewage treatment and may be contributed to by stormwater runoff.
No development of this size should be approved in this area, where sewage will be treated at Vincentia, until there is an open ocean outfall from the sewage treatment works.
|
§ Council’s Shoalhaven Water raised no objections with regard to sewage treatment capacity and have recommended conditions within their provided Notice (dated 22 December 2020).
|
|
Endeavour Energy
The Endeavour Energy referral response states:
"in this instance as shown in the following extracts of the Ground Floor Plan and Google Maps Street View, the proposed location of the infinity pool and deck area / Lounges in proximity of the pole and overhead power lines is not supported by Endeavour Energy and represents a risk will encourage people who are wet with bare feet to congregate and/or spend time within the proximity of the electrical infrastructure and if there is a fault it could result in voltages being transferred to the pool area. Please refer to the below point 'Earthing'.
The pad mount substation requires a minimum easement of 2.75 x 5.5 metres and the low voltage and 11 kV high voltage.... ...the proposed location of the hotel accommodation in proximity of the pad mount substation is likely to require the use of fire rated construction or the erection of a fire screen /wall.
…Due to the foregoing Endeavour Energy objects to the Development Application.”
|
§ No objections raised by Endeavour Energy subject to recommendations and comments in latest advice dated 23 March 2021.
§ Noting the recommendations and comments, Council suggested a condition of any consent granted requiring documentary evidence be provided by Endeavour Energy prior to the issue of a Construction Certificate, confirming that satisfactory arrangements have been made for the connection of electricity and the design requirements for fire rating construction and the pad mount substation. Should the application be determined by approval, then this condition would be included.
§ Endeavour Energy confirmed that conditioning this matter in the Council’s notice of determination/consent as suggested is satisfactory.
|
|
Removal of trees
The proposal to remove the remnant existing mature eucalyptus trees from the Vincentia Village Shopping Centre carpark is inappropriate under Chapter G4: Tree and Vegetation Management, SDCP 2014.
The two (2) mature brittle gums are of high significance as noted in the Arboricultural Impact Assessment Report (trees labelled ‘1’ and ‘2’). For this reason, the applicant should consider redesigning the hotel to accommodate the two (2) gums in their landscaped gardens. The trees are beautiful, they are in good condition with no defects, they take a long time to grow to such a spectacular height, and they have a life expectancy of 15-40 years. They provide habitat for native birds and animals and promote health and wellbeing for residents and visitors. The Report has used 'potential for limb shedding' as reason for removal of these 2 x mature Brittle Gums. However, those trees have been in the Vincentia Village Shopping Centre carpark for years and the area has been used by the public for decades. If they really were considered unsafe, they should have been removed years ago. This is just an excuse to remove them to develop the site.
Similarly, the tree labelled '4' is one (1) x Red Bloodwood with 15-40 years life expectancy in average condition and assessed as medium significance. The justification for moving this tree is that a defect will make it hazardous 'in future years'. It should not be removed until it presents a hazard.
Australian Standards 4970-2009, Protection of trees on development sites, was established to provide appropriate guidelines to ensure the long-term viability and stability of trees to be retained on development sites. Instead of removing these three (3) significant local native mature trees for the development (in addition to 8 others >5rn tall), the development should be modified to accommodate these three (3) trees as a minimum, based on the tree protection zone and structural root zone required for tree stability as outlined in AS 4970-2009. These trees are visually prominent and visible from a considerable distance. They make a positive contribution to the local amenity and are valued by residents and visitors who shop at the Vincentia Village Shopping Centre and are expected to live for another 15-40 years.
|
§ The provisions of Chapter G4 have been considered and no objections are raised from assessment with the submitted Arboricultural Impact Assessment Report.
§ As indicated in the submitted Report:
“On the 8th of October 2020, gummifera assessed 11 trees within the development site. Three trees were located outside the southern boundary of 12-16 The Wool Road within a garden bed between the boundary fence and the Vincentia Shopping Village carpark whist the remaining 8 trees were located within the boundaries of 12-16 The Wool Road. Five of the 11 trees were native to the area whilst the remaining 6 trees were non-native species. Due to the locations of each tree in relation to the proposed development application it is recommended that all 11 trees will require complete removal as they are either within the construction footprint or are too close to the construction zone to preserve their structural integrity.”
§ Although all trees are proposed to be removed from the site, the landscaping design will be required to replace these with trees that are native to the region in appropriate locations.
§ The submitted design proposes substantial landscaping, comprising a number of trees, including Old man banksia, Water Gum, and Lilly Pilly (Riberry) and shrubs, particularly to The Wool Road frontage. The plan notes 12 trees of heights between 3m and 7m to be planted which are considered to adequately offset the removal of the existing trees onsite in the context of the proposed, permissible development.
|
|
Noise impact
The noise from the operation is likely to be significant and a detriment to neighbourhood amenity, yet no acoustic reports have been provided with this proposal.
The 2 storey, 5-bedroom penthouse with rooftop garden and balcony will generate noise that impacts on homes a long distance from the hotel, due to the expansive outdoor entertaining areas at the extraordinary proposed height. A 5-bedroom penthouse is unusual for a hotel development and is likely to become a party venue. Will this be used by the hotel or is it luxury accommodation for the developer?
Vincentia is a family oriented residential area with a village atmosphere and does not need a public bar which comes with antisocial behaviour.
|
§ Ongoing management of noise could be subject to a condition of any consent granted. Should the application be determined by approval?
§ The applicant clarified in advice dated 16/04/2021 that the penthouse forms part of the hotel accommodation. In this regard the noise impacts of this space can be managed by the hotel operators and conditions of the consent as recommended.
§ As guests will be occupying hotel rooms, guests will be seeking a level of amenity which will warrant the hotel to be managed to ensure all occupants are all catered for.
§ It is further noted that the proposal is a permissible use within the R1 and B2 zoning in which it is located.
|
|
Disruption during demolition and building
This proposal will result in a period of disruption for residents, visitors and local businesses during demolition and construction. If this proposal is approved, Council should hold any construction approval until after the Burton Street redevelopment is completed and access to local businesses has returned to normal. Council should also stipulate that demolition and construction should occur outside peak holiday periods.
|
§ Council is unable to condition the delay or timing of construction to be contingent on other projects unrelated to the development or where there may be potential development of other sites.
§ Council can however require a construction management plan to ensure that the impacts are properly managed, and the local businesses and residents are not inconvenienced (e.g. access to properties is maintained). Council also generally stipulates hours of construction in its consents. However, it should be noted that the State can specify or legislate to allow extended construction hours such as it has done with the COVID initiatives.
|
|
Lack of notification about this application
A development of this scale in a residential suburb has a wide impact on the community. It is both surprising and disappointing that this development application was not formally notified to all Vincentia residents. Many may be unaware of the application and have missed out on the opportunity to consider the application and submit their views.
|
§ The DA was notified in accordance with Council’s Community Consultation Policy for Development Applications, being advertised in the local paper, notified to affected owners within a buffer of 200m and relevant Community Consultation bodies.
§ As detailed earlier in this report, a Resident Briefing Meeting was also held.
§ All DAs are available for viewing on DA Tracking. The DA has been digitally viewable since lodgement. |
|
Devaluation of Property
Adjoining land will decrease in value as a result of this development.
|
§ Potential loss of property value is not a consideration under section 4.15 of EP&A Act 1979.
§ A Commissioner of the Court stated: “I pay no regard to the fears about loss of property values as, consistent with the position long taken in the Court, this is not a relevant planning consideration” (Alphatex Australia v The Hills Shire Council (No 2) [2009]).
§ Neighbouring properties are also zoned R1 General Residential and B2 Local Centre and have the same permissible and arguably ‘higher’ uses as the subject site.
|
Planning Assessment
The DA has been assessed under s4.15(1) of the Environmental Planning and Assessment Act 1979. Please refer to Attachment 1.
Consultation and Community Engagement:
Notification was undertaken in accordance with Council’s Community Consultation Policy with letters being sent within a 200m buffer of the site and advertised in the local paper, during the period 23 December 2020 to 20 January 2021.
Forty-seven (47) public submissions were received in relation to Council’s notification of the development. Forty-five (45) of these were in objection to the development.
Key issues raised as a result of the notification have been listed and discussed above.
As detailed earlier in this report, a Resident Briefing Meeting (RBM) was held on 16 March 2021. The concerns raised from this meeting (as mentioned earlier in this report) for the applicant’s consideration included the following:
· The removal of the existing gum trees and the inclusion of additional significant trees as part of the proposed landscaping.
· Environmental management issues such as waste, power and water management and consideration of alternatives, including wastewater collection and recycling, solar power and composting etc. to address climate change. These are considered to be common practices in many hotel/resort, club and shopping mall developments.
· Confirmation of the operating hours of the bar/bistro and function centre.
· Confirmation of the total number of staff to be employed for the development, including the bar/bistro and function centre.
· Confirmation as to the intended use of the penthouse, whether for personal use or as part of the hotel accommodation.
The assessment of the application considered the matters raised in the submissions and concluded that the application is capable of support with no reason warranting refusal.
Financial Implications:
There are potential cost implications for Council in the event of a refusal of the application. Such costs would be associated with defending an appeal in the Land and Environment Court of NSW.
Legal Implications
A section 8.2 review or an appeal with the Land and Environment Court are possible if the application is refused.
Summary and Conclusion
The proposed development is compliant with the provisions of SLEP 2014 and is broadly consistent with the SDCP 2014.
This application has been subjected to detailed analysis of the main issues identified in this report, being the scale/height of the development, inconsistency with character and zone objectives, traffic impacts, onsite car parking, stormwater discharge, and tree removal.
While Council raised concern with the development as originally lodged, specifically in relation to building height and parking, these were resolved during and in the assessment of the application including the submission of amended plans by the applicant.
The proposed built form is a modern architectural design style suitable for a hotel style (tourist) accommodation. It is a permissible use which is compliant with the development standards under SLEP 2014.
Further to this, Council is satisfied that the proposal as amended meets the relevant development standards and objectives under SLEP 2014 and SDCP 2014 applying to the site and any potential impacts can be adequately addressed via conditions of consent relating to the construction and operations of the development.
The application is considered capable of support as there are no substantive planning reasons to warrant refusal. Accordingly, it is recommended it is approved subject to the recommended conditions of consent as per Attachment 2.
|
|
Development & Environment Committee – Tuesday 13 July 2021 Page 0 |
DE21.82 DA19/1102 & DA21/1304 - 252 Princes Highway Ulladulla – Lot 1 DP 784732
DA. No: DA19/1102/4
HPERM Ref: D21/153385
Department: Development Services
Approver: Phil Costello, Director - City Development
Attachments: 1. Planning Report (DA19/1102) - 252 Princes Highway Ulladulla - lot 1 DP 784732 (under separate cover) ⇨
2. Planning Report (DA21/1304) - 252 Princes Highway Ulladulla - Lot 1 DP 784732 (under separate cover) ⇨
3. Recommended Conditions (DA19/1102) - 252 Princes Highway Ulladulla - Lot 1 DP 784732 (under separate cover) ⇨
4. Recommended Conditions (DA21/1304) - 252 Princes Highway Ulladulla - Lot 1 DP 784732 (under separate cover)
Description of Development: Demolish existing buildings and construct a Manufactured Home Estate (MHE) comprising (49) dwelling sites and associated infrastructure including new roundabout to the intersection of Princes Highway and Pitman Ave and associated civil infrastructure.
Owner: Ocean Point Assets Pty Ltd
Applicant: Ocean Point Assets Pty Ltd C- / SET Consultants Pty Ltd
Notification Dates: 28/08/2019 to 27/09/2019 and 9/09/2020 to 9/10/2020
No. of Submissions:
DA19/1102 - 109 inside notification periods including 1 petition in objection (196) total.
DA21/1304 – 83 inside notification period including 1 petition in objection (99) total.
Purpose / Reason for consideration by Council
Council resolved on 26 November 2019 (MIN19.852) to call in the application due to public interest.
There are two development applications (DAs) subject of this report. They are identical, excepting that the latter one being DA21/1304 was not lodged as integrated development. This is explained in further detail in the body of the report.
|
That: 1. Development Application DA19/1102 to demolish existing buildings and construct a manufactured home estate comprising (49) dwelling sites and associated infrastructure including new roundabout to the intersection of Princes Highway and Pitman Ave and associated civil infrastructure at Lot 1 DP 784732, 252 Princes Highway Ulladulla be approved subject to the recommended conditions of consent contained in (Attachment 3) of this report. 2. That Development Application DA21/1304 to demolish existing buildings and construct a manufactured home estate comprising (49) dwelling sites and associated infrastructure including new roundabout to the intersection of Princes Highway and Pitman Ave and associated civil infrastructure at Lot 1 DP 784732, 252 Princes Highway Ulladulla be approved subject to the recommended deferred commencement conditions of consent contained in (Attachment 4) of this report.
|
Options
1. Approve Development Application DA19/1102 as recommended as this application includes a Bush Fire Safety Authority (BFSA) issued by the Rural Fire Service (RFS). Approve identical Development Application DA21/1304 as a deferred commencement consent as this application was not lodged as Integrated Development with the RFS and therefore does not have a Bush fire Safety Authority.
Implications: This would allow the applicant to proceed with the proposal.
2. Refuse both Development Applications.
Implications: The applicant has indicated an intention to lodge an appeal with the NSW Land and Environment Court in the event that Council’s decision is to refuse the applications.
3. Alternative recommendation.
Implications: Council will need to specify an alternative recommendation and advise staff accordingly.
Location Map

Figure 1 – Extract of the subject site in the local context
Background
Dual Applications DA19/1102 & DA21/1304
This report addresses two separate, identical development applications lodged by the applicant for the same proposal. The initial application DA19/1102 was lodged in May 2019 as Integrated Development with the RFS that provided for a 60 day deemed refusal trigger enabling an Appeal to the Land & Environment Court in accord with s8.11 of the Environmental Planning and Assessment Act 1979 (EPA Act).
Due to the time period involved in resolving the intersection roundabout upgrade design for Pitman Ave and the Princes Highway with Transport for NSW (TfNSW) (formerly the Roads and Maritime Services (RMS)), the deemed refusal period subsequently lapsed. This means that the applicant is prevented from lodging an appeal for DA19/1102 until such time as Council determines this application.
The second application DA21/1304 was lodged with the NSW Planning Portal on 25 March 2021 as a non-Integrated Development application with the RFS to secure a shorter deemed refusal period enabling an appeal after 40 days from lodgement.
Under this referral path, the RFS can only issue recommended conditions and no Bush Fire Safety Authority (BFSA).
The applicant is potentially at some risk (lot noting a BFSA has been issued for an identical application) concerning the issue of a BFSA under s100(B)(3) Rural Fires Act 1997 (which would have to occur, after obtaining development consent).
In the event that Council were to approve DA21/1304, a Deferred Commencement condition would be the appropriate mechanism to address this matter given that the RFS has previously issued a BFSA for the identical development under DA19/1102.
Post lodgement
(DA19/1102) - Key dates are as follows:
· 5 February 2019, Integrated DA was lodged with Council.
· 30 May 2019, Council requested additional information in relation to accessible parking, location and design of community building, section (s)82 variation to the LG Regulations for lightweight structure, acoustic report, map of intended dwelling types, parking details, whether any dwellings would be 2 storey, landscaping and recreation design, passing bay requirements for internal roads, waste storage area, asbestos report for demolition of existing buildings, services plans.
· 28 August 2019, application was notified to surrounding residents and an advertisement placed in the Milton Ulladulla Times Newspaper.
· 2 September 2019, Council staff presented to the Ulladulla Community Forum.
· 30 September 2019, Council’s Development and Environment Committee (DEC) resolved (MIN19.625) that an investigation into historical correspondence in respect of the Pitman Ave & Princes Highway intersection treatment be prepared and submitted to Transport for NSW (TfNSW) (the former Roads and Maritime Services (RMS) to build their understanding of the communities’ desires for safe and passable intersection with the highway.
· 12 September 2019, TfNSW requested further information in relation to intersection modelling.
· 26 November 2019, (MIN19.852) the application was called in for determination.
· 6 April 2020, Council requested additional information in relation to civil design, stormwater design.
· 7 April 2020, Rural Fire Service (RFS) issued General Terms of Approval (GTA) in error based on erroneous material contained within the SEE and bushfire report.
· 26 May 2020, TfNSW requested more information on proposed intersection and removal of the manufactured home estate (MHE) infrastructure from SP2 zoned land and acknowledged receipt of historical traffic issues information in accord with Resolution DE 19.93.
· 5 August 2020, the applicants revised the design to move the internal waste storage area to the western side of the park and submitted revised landscape and civil design plans that moved physical development out of the SP2 zoned portion of the site as this land is set aside for future land acquisition by TfNSW.
· 10 June 2020, applicant’s traffic consultants met with TfNSW to resolve highway intersection upgrade requirements for the proposal.
· 21 July 2020, applicant’s traffic consultants provided concept roundabout sketch and commentary to TfNSW for consideration.
· 13 August 2020, TfNSW requested more information on the concept roundabout design works.
· 20 August 2020, applicant’s traffic consultants provided updated concept roundabout design and responses to a request for information (RFI) made by TfNSW on 13/08/2020.
· 9 September 2020, application was re-notified to surrounding residents and, in the Milton Ulladulla, Times newspaper.
· 21 January 2021, applicants submitted updated Statement of Environmental Effects (SEE), Bushfire Reports and revised Princes Highway / Pitman Ave Roundabout Design Report and advised council that their client have instructed SET Consultants to lodge a separate development application, for the same development with the intention to lodge a deemed refusal Appeal after waiting the required time for the new application in the event that DA19/1102 is not determined by way of approval at that date.
· 8 February 2021, Council requested RFS review the bushfire assessment upon receipt of revised SEE & Bushfire reports.
· 15 March 2021, TfNSW issued approval conditions for the construction of a roundabout intersection of the Princes Highway and Pitman Ave.
· 1 April 2021, RFS issued corrected General Terms of Approval based on updated SEE and Bushfire Report.
· 4 May 2021, application referred back to RFS for a review of conditions under Planning for Bushfire 2019 standard.
· 26 May 2021, RFS provided revised GTA and Bush Fire Safety Authority.
· 31 May 2021, SET provided response to request for additional information addressing – management of the MHE, demographics of expected tenants, tenancy model, confirmation not seeking affordable housing and parking.
(DA21/1304) - Key dates are as follows
· 25 March 2021, Non-Integrated DA (PAN-64368) lodged through the NSW Planning Portal for an identical application over the same parcel of land. The applicants indicated that the second application was lodged to enable a 40 day deemed refusal period as the deemed refusal window for DA19/1102 had already lapsed.
· 31 March 2021, application referred to RFS as non-integrated development in accord with applicant’s request.
· 31 March 2021, application referred to Endeavour Energy, Transport for NSW, Shoalhaven Water, Development Engineer, Environmental Health Officer, Building Surveyor.
· 14 April 2021, application was notified to surrounding residents and, in the Milton Ulladulla, Times Newspaper. Notification to close 28 April 2021.
· 14 April 2021, RFS provided recommended conditions of consent.
· 14 April 2021, TfNSW issued approval conditions for the construction of a roundabout upgrade and associated infrastructure to the intersection of the Princes Highway and Pitman Ave.
· 20 April 2021, Shoalhaven Water requested an application for a Certificate of Compliance via the NSW Planning Portal.
· 4 May 2021, application referred back to RFS for a review of conditions under Planning for Bushfire 2019 standard.
· 26 May 2021, RFS provided revised recommended conditions of consent.
· 31 May 2021, SET provided response to request for additional information addressing – management of the MHE, demographics of expected tenants, tenancy model, confirmation not seeking affordable housing and parking.
Site History and Previous Approvals
BA80/0700 dwelling additions approved
BA73/0206 fibro garage approved
Proposed Development
Demolition of existing buildings and construction a MHE comprising 49 dwelling sites incorporating 17 x 2 bed manufactured homes and 32 x 3 bed manufactured homes, a community building, BBQ area, outdoor recreation facilities and associated infrastructure, roundabout and associated infrastructure to the intersection of Princes Highway and Pitman Ave.
Figure 2 – Site plan of the proposed development.

Figure 3 – Landscape Plan of proposed development.

Figure 4 – Manufactured home dwelling typology layout plan.

Figure 5 - Typical 3 bed Manufactured Home layout

Figure 6 - Typical 2 bed Manufactured Home layout

Figure 7 – Visual of typical dwelling type

Figure 8 – Concept Community Centre floor plan

Figure 9 – Princes Highway / Pitman Ave Upgrade Concept Design
Subject Land
The subject site is located approx. 1.7 km south of the Ulladulla Town Centre on the north-east corner of the Princes Highway and Pitman Ave. The subject site is described and legally identified as Lot 1 DP 784732 – 252 Princes Highway Ulladulla.
The subject site is an irregular shaped lot with a frontage of 98m to the Princes Highway and 183m to Pitman Ave. The site falls gently from the eastern boundary (23.5m AHD) to the Princes Highway (13-14.5m AHD).
Site & Context
An existing dwelling and associated structures occupy the north-west corner of the subject site with the remainder of the land used for equine grazing. The site is burdened by an existing sewer main that transects the western end adjacent the Princes Highway and SP2 zoned strip of land for Arterial Road Widening.

Figure 10 – site identified by yellow border with sewer main indicated by broken blue line & SP2 Zoned land indicated west of solid blue line.
Surrounding development is as follows:
· North – Place of public worship – Highway Church.
· West – South Ulladulla industrial land, Princes Highway and Racecourse Creek.
· East and South – low density residential comprising a mix of 1 & 2 storey dwellings.

Figure 11 - Pitman Ave Looking west from 22 Pitman Ave. Site approximated by red border.

Figure 12 - Princes Highway northbound approx. 20m south of intersection with Pitman Ave
Zoning
Currently, (DA19/1102) the land is zoned SP3 Tourist and SP2 Infrastructure under the SLEP 2014. Initially the development covered both zones until TfNSW objected to the SP2 land being burdened by development as this narrow strip of land is identified for future road works. DA19/1102 was subsequently revised by moving all of the physical development from the SP2 zone.
DA21/1304 was only lodged over SP3 zoned land.

Figure 13 – Extract of the Shoalhaven Local Environmental plan 2014 Land Use Zoning Map with the subject site with blue border.
The proposal is best characterised as an innominate use (having regard to the provisions in the SLEP 2014). While an MHE is not a nominated permitted use within the SP3 zone, caravan parks are permitted use with consent in the zone. This is relevant as there is a State Policy that applies to this type of development which is the enabling mechanism. This is detailed further below.
The objectives of the SP3 zone are:
· To provide for a variety of tourist-oriented development and related uses.
· To enable compatible residential and recreational uses.
A third objective in effect at lodgement of DA19/1102 was removed from the current version of the SLEP 2014 on 27 September 2019:
· To provide for dwelling houses that form an integral part of tourist-oriented development.
Comment
Permissibility for a MHE at the subject site is enabled by the application of clause 6(6) of SEPP 36 —Manufactured Home Estates (SEPP 36) that allows the development of a MHE on any land on which development for the purposes of a caravan park may be carried out.
MHEs provide both permanent accommodation and enable short term rental accommodation in accord with clause 7.13 of the SLEP2014 without the need for further consent.
The development proposes 49 dwellings that may be used for permanent residential accommodation and / or may be used for short term rental accommodation with ancillary recreational facilities in the form of bowling green, outdoor gym, BBQ area, garden and walking paths.
Issues
Traffic and Parking impacts on the local road network
The following roads are impacted by the proposed development:
· Princes Highway
· Pitman Ave
· South Pacific Crescent
· Brill Crescent
· Martin Ave
· Augenaut Ave
The application proposes the following access and upgrades to the local road network:
· Construct a new roundabout at the intersection of Princes Highway and Pitman Ave with associated splitter islands, path upgrades and pedestrian refuges. The roundabout has been designed to cater for the 25m B-double and 19m AV design service vehicles as required.
· Construct pedestrian pathway for the full frontage of the subject site with connection to highway upgrade works including bus stops.
· Vehicle access to site from Princes Highway via roundabout to Pitman Ave entry/exit.
The site has a single entry / exit driveway to Pitman Ave with a ring road layout with one internal crossroad. Internal road widths and turning circles can accommodate manoeuvring by medium rigid vehicle (MRV) in and out of the development.
State Environmental Planning Policy (Infrastructure) 2007 (ISEPP)
The subject site has frontage to Princes Highway, being a classified road.
Accordingly, clause 101 of ISEPP applies and reads as follows:
101 Development with frontage to classified road
(1) The objectives of this clause are—
(a) to ensure that new development does not compromise the effective and ongoing operation and function of classified roads, and
(b) to prevent or reduce the potential impact of traffic noise and vehicle emission on development adjacent to classified roads.
(2) The consent authority must not grant consent to development on land that has a frontage to a classified road unless it is satisfied that—
(a) where practicable and safe, vehicular access to the land is provided by a road other than the classified road, and
(b) the safety, efficiency and ongoing operation of the classified road will not be adversely affected by the development as a result of—
(i) the design of the vehicular access to the land, or
(ii) the emission of smoke or dust from the development, or
(iii) the nature, volume or frequency of vehicles using the classified road to gain access to the land, and
(c) the development is of a type that is not sensitive to traffic noise or vehicle emissions, or is appropriately located and designed, or includes measures, to ameliorate potential traffic noise or vehicle emissions within the site of the development arising from the adjacent classified road.
Under subclause 101(2) the consent authority must not grant consent to development on land that has a frontage to a classified road unless it is satisfied that the subsequent considerations have been met by the proposal.
The three (3) preconditions in subclause 101(2) are collective. Therefore, any one of the preconditions in subclause 101(2) about which Council is not satisfied could prevent the issue of consent:
· Subclause 101(2)(a) (‘where practicable and safe, vehicular access to the land is provided by a road other than the classified road’), is relevant because the site has frontage to Pitman Ave (unclassified at this location) and Princes Highway (regional classified road at this location).
The applicant has submitted concept plans (refer to Figures 2 & 9) for an upgraded roundabout intersection treatment at the junction of Pitman Ave and the Princes Highway that has been accepted by TfNSW and Council’s traffic engineers as providing a practicable and safe, vehicular access to the land that can be provided by a road (Pitman Ave) other than the classified road.
In accord with the test of practicability established by the case of Modern Motels Pty Ltd v Fairfield City Council [2013] NSWLEC 138, the desired outcome is for access to the land to be via the unclassified local road – Pitman Ave, which will ensure that the development does not compromise the effective and ongoing operation and function of the classified road (Princes Highway).
· Subclause 101(2)(b) (the safety, efficiency and ongoing operation of the classified road will not be adversely affected by the development) is relevant due to the proposed highway intersection upgrade design for a roundabout with Pitman Ave and associated pedestrian paths, refuges and bus shelter upgrades.
A Traffic Impact Assessment (TIA) prepared by Bitzios Consulting concluded that:
o The Princes Highway / Pitman Avenue intersection operates within acceptable performance limits in the peak with or without the proposed development at the year 2020. However, with development traffic, the intersection does not operate within acceptable performance limits in the AM peak at the year 2020.
o The Princes Highway / Pitman Avenue intersection is expected to operate significantly outside acceptable performance limits by the year 2030 with or without the proposed development and would fail to operate within acceptable performance limits by the year 2021 without the proposed development.
o The proposed roundabout generally operates within acceptable performance limits at the year 2030 with or without the proposed development. It is also noted that development generated trips have a minimal impact on intersection operations.
o The roundabout treatment has been designed to accommodate up to a 23m B-Double for north/south highway traffic movement and up to 19m articulated vehicle (AV) for the Pitman Ave leg.
o The proposed roundabout is expected to act as a traffic calming device for northbound traffic entering Ulladulla and provide significant safety benefits at the Princes Highway / Pitman Avenue intersection. The proposed roundabout is therefore considered an appropriate upgrade, mitigating short and long-term intersection safety and operational issues.
It is clear that the introduction of the proposed roundabout treatment at the intersection of the Princes Highway and Pitman Ave with associated pedestrian crossings and pathways will improve the safety, efficiency and ongoing operation of the classified road (Princes Highway).
· Subclause 2(c) (the development is appropriately located and designed, or includes measures, to ameliorate potential traffic noise or vehicle emissions within the site of the development arising from the adjacent classified road) applies to the development as it proposes residential use in proximity to a classified road.
A Traffic Noise Intrusion Assessment prepared by Harwood Acoustics was submitted with the application. The report includes recommendations which are incorporated in the draft conditions to ensure the development will not be impacted by noise generated by the surrounding uses if approved.
Car Parking
Car parking for the development is required to be provided in accordance with the requirements of the Local Government (Manufactured Home Estates, Caravan Parks, Camping Grounds and Moveable Dwellings) Regulation 2005 which require:
Parking Rate:
· 1 parking space per MHE dwelling site retained within each site or provided elsewhere in the estate derived from cl 45 of the regs.
· Visitor Parking - 12 spaces for a manufactured home estate containing more than 35 sites but not more than 70 sites derived from Cl 23 of the regs.
Residential parking demand for 49 site MHE:
· Residents - 49 MHE dwelling sites x 1 space per site = 49 spaces
· Visitors - 12 spaces for a manufactured home estate containing more than 35 sites but not more than 70 sites
Total number of parking spaces required = 61 spaces required
Total number of parking spaces proposed = 49 resident spaces + 15 visitor = 64 spaces
The development is therefore compliant.
Planning Assessment
The DA has been assessed under s4.15(1) of the Environmental Planning and Assessment Act 1979. Please refer to (Attachments 1 & 2).
Policy Implications
Nil
Consultation and Community Engagement:
DA19/1102 - Notification
was undertaken in accordance with Council’s Community Consultation Policy
with letters being sent within a mapped buffer of the site and advertised in
the Milton Ulladulla Times Newspaper from 28 August to 27 September 2019 and
9 September 2020 to 9 October 2020.
One hundred and ninety-six (196) public submissions including (one) 1 petition were received in relation to Council’s notification of the development. They were all objections to the development. Eighty-seven (87) of the submissions were received outside of the notification period.
DA21/1304 - Notification was undertaken in accordance with Council’s Community Consultation Policy with letters being sent within a mapped buffer of the site and advertised in the Milton Ulladulla Times Newspaper from 14 to 28 April 2021.
Ninety-nine (99) public submissions including (one) 1 petition were received in relation to Council’s notification of the development. They were all objections to the development. Sixteen (16) of the submissions were received outside of notification period.
Key issues raised as a result of the notification are provided below.
Issue
An MHE is inconsistent with the zoning of the residential neighbourhood
Comment
As previously mentioned above, the SP3 Tourist Zoning of the subject site permits the development of an MHE with consent under SEPP 36.
The surrounding residential neighbourhood to the east and south has a different zoning, R2 low density residential which permits residential accommodation forms comprising single dwellings, dual occupancies and detached dwellings.
An MHE provides for single dwellings in a compressed form within the subject development that while different to the building form in the R2 zone is not considered to be incompatible.
Issue
Concerned that the proposed development is visually intrusive and aesthetically unappealing given the location at southern gateway to Ulladulla.
Comment
The site is located at the interface between a commercial SP3 tourist zone, low density R2 residential zone and IN2 light industrial zone. Existing development is an open paddock with a single dwelling and associated outbuildings. There is no kerb and gutter, or footpaths and stormwater is presently collected and drained along Pitman Ave via a deep open drain.

Figure 14 – Photo of current Princes Highway/Pitman Ave Intersection - Google Maps
The proposed design will provide a single storey built form contained within formalised perimeter fencing with landscaping, kerb and gutter, drainage, and pathways to pedestrian refuges that connect with a new roundabout treatment on the highway that will change the aesthetics of the southern gateway.
The concern may also stem from the relatively compact type of development and the relatively homogenous nature of the dwellings. However, a tidy landscaped development that is compliance with the SEPP should not result in an offensive development or landscape blight.
Issue
Concern the development not in keeping with existing residential area and will devalue the overall quiet feel of the neighbourhood and change the image of the area to a low-cost housing precinct.
Comment
The subject site is zoned for a commercial SP3 Tourist purpose that permits and potentially foreshadows a higher density footprint than the adjoining low-density residential precinct.
In Project Venture Developments v Pittwater Council [2005] NSWLEC 191 Senior Commissioner Dr John Roseth established Planning principle: compatibility in the urban environment.
There are many dictionary definitions of compatible. The most apposite meaning in an urban design context is capable of existing together in harmony. Compatibility is thus different from sameness. It is generally accepted that buildings can exist together in harmony without having the same density, scale or appearance, though as the difference in these attributes increases, harmony is harder to achieve. Where compatibility between a building and its surroundings is desirable, its two major aspects are physical impact and visual impact. In order to test whether a proposal is compatible with its context, two questions should be asked.
Are the proposal’s physical impacts on surrounding development acceptable? The physical impacts include constraints on the development potential of surrounding sites.
The existing character of Pitman Ave in the vicinity of the proposed development comprises 1 and 2 storey single dwellings.
There is no evidence that the proposed development will constrain development or result in any overlooking or overshadowing impacts. There is the potential for some light impact to the residential premises immediately adjacent to the entry driveway for the proposed facility when vehicles leave the site at night and a slight increase in road noise associated with additional traffic movements.
Is the proposal’s appearance in harmony with the buildings around it and the character of the street?
For a new development to be visually compatible with its context, it should contain, or at least respond to, the essential elements that make up the character of the surrounding urban environment. The most important contributor to urban character is the relationship of built form to surrounding space, a relationship that is created by building height, setbacks and landscaping.
Building Height - Existing built form for the surrounding estate ranges from 1-2 storey residential dwellings. Existing residential properties adjacent to the subject site comprises 8 single storey and 2 double storey dwellings. Refer to Figure 15. Pitman Ave contains 14 double storey and 11 single storey dwellings.
The proposed development is 1 storey in height, has significant external boundary setbacks and internal separation.

Figure 15 - Two (2) storey dwellings in pitman Ave represented by blue dot. Subject site identified by yellow border.
Front Setbacks - Setbacks for existing dwellings in Pitman Ave adjacent range from 4-13m from the front boundary.

Figure 16 - Variable setback represented by broken blue line.
The proposed development provides a setback of 10m for MHE dwelling sites from Pitman Ave. Cl 44 of the LG Regs requires a further setback of 1m to a road reserve providing a minimum setback of 11m to Pitman Ave for the built form. Front setback is considered compatible with surrounding built form.
Side Setbacks - Existing side setbacks in Pitman Ave are variable ranging from 1.8m to 8+m approximately.
Clause 47 of the Local Government (LG) Regulations requires a minimum side setback of 1m to the boundary of an adjoining dwelling site for an MHE development. This in effect provides a minimum separation of 2m between manufactured homes. When viewed from Pitman Ave looking north, the MHE proposal would present as (10 x 3 bed) and (2 x 2 bed) dwellings of uniform spacing (12 in total) with a detached community building on the SW corner.
In contrast, the streetscape looking south from Pitman Ave is broken up by South Pacific Crescent and presents as (7) dwellings between the highway and Brill Crescent.
It is acknowledged that side setbacks for the proposed development are uniformly smaller than the existing side setbacks of surrounding residential development. While the proposed development would appear denser in the local context, it is not considered to be incompatible or unreasonable having regard to the type of development it is.
Landscaping - The existing character of landscaping in Pitman Ave is informal with very few trees and occasional low set front fences (1.2m max) of variable design and materials.
The proposed development incorporates formal landscaping incorporating (3) different types of boundary fencing, perimeter plantings and street trees.

Figure 17 – Landscape Plan
Proposed fencing comprises:


Figure 18 -Fence Type 1 - Capped and lapped 1.8m high timber fence with indented landscape bays along north boundary with Highway Church.

Figure 19 - Fence Type 2 – Modular Wall – Estate Wall 2.2m High proposed along the highway frontage with return in Pitman Ave east of the proposed BBQ area.

Figure 20 - Fence Type 3 – Aluminium Slat Fence 1.2m high – note image above appears 1.8m high

Figure 21 - Pitman Ave Streetscape – Sectional Elevation of fence and landscaping
Landscaping and 1.2m high fencing facing Pitman Ave were proposed in response to existing context of low set fences and generally open front yards.
Neighbour submissions from surrounding residents suggest that the proposed MHE dwelling forms are not adequately screened from Pitman Ave by a 1.2m high slatted aluminium fence.
Comment - the proposed fencing height along the Pitman Ave frontage is appropriate and compatible with the existing context.
To address the visual screening concern, it is recommended that a suitable hedge planting is provided on the development side off the Pitman Ave boundary fence that is grown and maintained to a height of 2.0 m. This would effectively screen the development from the street and help minimise light spill from vehicle lights at night.
The development seeks to retain the existing eastern boundary fence without alteration. Neighbour submissions have identified the need to upgrade this boundary fence to minimise vehicle light spill / noise amenity impacts from the development to adjoining neighbours. It is recommended that a 1.8m high capped and lapped acoustic hard wood fence be provided along the entire eastern boundary of the site from the north east corner adjacent 17 Augenaut Ave to the front building alignment of 22 Pitman Ave.
The subject site is near industrial zoned land on the highway West and commercial land to the North. Proposed fencing typologies for those two frontages are considered to be appropriate for screening and sound attenuation. It is considered compatible with existing and future context.
Change Image of residential estate to Low-Cost Housing - The proposed development presents as a compact gated residential estate covering an area of 1.8 hectares (ha) at the entry to Pitman Ave compared to the 18.4 ha of R2 zoned residential land to the east and south of the subject site.
While submissions raised concern that the development would add to the strip of “ugly” MHEs in the vicinity, this assertion needs to be tested. There are no other MHEs located in the vicinity. There are however 4 caravan parks located within 1.1km south of the proposed MHE that incorporate manufactured homes for long term occupation.

Figure 22 – Proximity of subject site to existing Kings Point Caravan Park
Kings Point Retreat is the only caravan park development within view of the proposed MHE development. The other caravan parks are sufficiently remote and located out of sight around a bend in the highway. The Long Term (LT) portion of Kings Point Retreat is located approximately 500m south from the proposed MHE development and is partially screened from view by vegetation and a number of dwellings fronting the highway and is therefore considered that it does not add to a negative cumulative visual impact for the proposed development.

Figure 23 – Image of Manufactured Homes installed in the Long-Term portion of the kings Point Caravan Park viewed from Princes Highway facing north.
There is no evidence that the proposed MHE would change the image of the area to a low-cost housing precinct.
Land values – As detailed in a publication by Gadens lawyers, December 2013:
…..It will generally be a stretch to argue that a loss of value to a single neighbouring landowner is a proper matter for consideration. For example, at its simplest level, many neighbours argue that a new home next door to them will result in a loss of property value to them, and that is no doubt very often correct (for example, when it causes some view loss or loss of sunlight or additional privacy impacts). But the Courts typically refuse to consider such impacts, on the basis that some broader economic impacts are required ‘in the locality’ …..However in a more recent appeal a commissioner dismissed such arguments out of hand, simply saying “I pay no regard to the fears about loss of property values as, consistent with the position long taken in the Court, this is not a relevant planning consideration” (Alphatex Australia v the Hills Shire Council (No 2) [2009]……
In short, the impacts on land and property valuations is not a consideration under section 4.15 which prescribes the planning assessment of a DA.
Issue
Concerned that the density of the proposed development is not in keeping with the character of surrounding land use (over development of the site).
Comment
Proposed density is appropriate for the SP3 tourist zone of the subject site which is different to the R2 low density zone for surrounding residential land.
Issue
Concern with effective and efficient evacuation in extreme bushfire situations to the Princes Highway being made worse by the proposal.
Comment
The current access to the Princes Highway provides limited opportunity for residents to break into continuous traffic flows on the highway during normal and peak flow periods. The proposed roundabout would act to significantly improve access / safety to the highway both in normal flow and peak flow times including emergency events. It also requires northbound traffic on the highway to give way to Pitman Ave traffic.
Issue
Need for an Evacuation Management Plan.
Comment
This has been addressed by the RFS General terms of Approval (2019 DA) dated 26/05/2021. A condition is also recommended for the 2021 DA.
Issue
Princes Highway/Pitman Ave intersection concerns include:
· Existing safety and wait time particularly during peak holiday periods
· Additional traffic generated by the proposed development would exacerbate existing problems for access to and from the highway
· Lack of safe walking path for students walking to UHS or older residents who walk to the bus stop on the highway.
· Need for a commitment to a roundabout at the intersection of Princes Highway and Pitman Ave prior to any development consent being issued.
Comment
Referring to comments above, it is clear that the provision of the proposed roundabout will significantly reduce wait times/queuing distance during normal and peak flow/emergency events and includes formalised pathways and pedestrian refuges that improve pedestrian safety. The development provides a commitment to build the roundabout and associated infrastructure which is a requirement of TfNSW before occupation of the development can occur.
Issue
Concerned that there is inadequate parking for residents & visitors which will lead to an increase in on street parking.
Comment
Proposed parking for the manufactured home estate exceeds the State Government parking requirements under the Local Government Regulations for this form of development.
Recommended conditions (in the draft consent) require the installation of upright kerb and gutter, pedestrian path and formalised subsoil drainage behind the kerb along the full frontage of the development in Pitman Ave and Princes Highway. This required road upgrade would enable some formalised parallel parking along north side of Pitman Ave to occur when necessary.
Issue
Concern with odour/noise impacts from waste servicing located too close to existing dwellings at eastern end of the site.
Comment
The applicant revised the plans and moved the waste disposal area to the western end of the site away from adjoining residents. It is it acknowledged that the existing eastern dividing fence is not of a suitable standard to reduce vehicle noise to nearby residents. The landscape plan incorporates appropriate screening planning along this boundary that will adequately address light spill once established. In the interim period, it is reasonable for council to condition a requirement for the installation of a 1.8-metre-high hardwood capped and lapped acoustic fence along the full eastern boundary off the subject site.
Issue
Concern regarding potential light spill and vehicle noise amenity impact generated by car headlights leaving the development at night impacting general amenity, health and causing sleep disturbance at night.
Comment
This issue is of particular relevance to the existing residents living opposite the location of the proposed MHE access driveway. To minimise light spill, the applicants have agreed to provide for additional Street tree planting on both sides of Pitman Ave in the vicinity of their entry driveway.
After considering the submissions it is considered reasonable for council to condition the provision and maintenance of a 1.8m high screening hedge behind the Type 3 Fence proposed for Pitman Ave frontage.
Issue
Concerned that the proposed development does not comply or provide appropriate affordable housing.
While the applications Statement of Environmental Effects may promote affordability of dwellings in the proposed MHE, it is noted that neither application has not been lodged as affordable housing development under SEPP (Affordable Rental Housing) 2009.
Financial Implications:
There are potential cost implications for Council in the event of a refusal of the application.
Such costs would be associated with defending an appeal in the Land and Environment
Court of NSW.
Legal Implications
A section 8.2 review or an appeal with the Land and Environment Court are possible if the
application is refused.
Summary and Conclusion
The Report and the attached s. 4.15 Assessment Reports (Attachments 1 & 2) provide an assessment of the proposal to demolish existing buildings and construct a manufactured home estate (MHE) comprising 49 dwelling sites incorporating 17 x 2 bed manufactured homes and 32 x 3 bed manufactured homes, a community building, BBQ area, outdoor recreation facilities and associated infrastructure on land identified as 252 Princes Highway and roundabout and associated civil infrastructure to the intersection of Princes Highway and Pitman Ave Ulladulla under DA19/1102 & DA21/1304.
The proposed development has been assessed against all relevant environmental planning instruments. Both applications have received recommended conditions of consent from the RFS (Planning for Bushfire 2019) and TfNSW (roundabout upgrade intersection for Pitman Ave & Princes Highway) and Council engineers.
It is acknowledged that while both applications have received a significant number of objections from nearby residents and interested parties, the issues raised are considered to have been satisfactorily addressed by the submitted application and recommended conditions of consent.
The applications are recommended for approval in accordance with the attached Notices of determination document (Attachments 3 & 4).
|
|
Development & Environment Committee – Tuesday 13 July 2021 Page 0 |
DE21.83 DA20/2061 – 60 Macleay Street Narrawallee – Lot 145 DP718994
DA. No: DA20/2061/4
HPERM Ref: D21/245863
Department: Development Services
Approver: Phil Costello, Director - City Development
Attachments: 1. Planning Report S4.15 Assessment-60 Macleay St Narrawallee (under separate cover) ⇨
2. Draft Conditions - 60 Macleay St Narrawallee (under separate cover) ⇨
3. Site Analysis Plan (under separate cover) ⇨
4. Roof Plan (under separate cover) ⇨
5. Elevations (under separate cover) ⇨
6. Sections (under separate cover) ⇨
7. Colours & Finishes (under separate cover) ⇨
Description of Development: New two storey dwelling, carport, and swimming pool
Owner: Donna Hartwig
Applicant: Smyth & Smyth Pty Ltd
Notification Dates: 19 October 2020- 4 November 2020
No. of Submissions: 5 objections
Purpose / Reason for consideration by Council
At the Development & Environment Committee meeting of Council held on 6 April 2021 Council resolved to “call-in” the DA for determination.
Options1. Approve the development application (DA) in accordance with the recommendation of this report.
Implications: This would allow the applicant to proceed with the proposal and seek a construction certificate (CC)for development on the subject site.
2. Refuse the application.
Implications: Council would need to determine the grounds on which the application is refused, having regard to section 4.15 considerations. The applicant would be able to request a s8.2 Review and /or pursue an Appeal through the Land and Environment Court of NSW (LEC).
3. Alternative recommendation.
Implications: Council will need to specify an alternative recommendation and advise staff accordingly.
Location Map

Figure 1 – Location Map
Background
Proposed Development
The application seeks consent for a new two storey dwelling, carport, and swimming pools. The dwelling essentially comprises two detached buildings linked via a breezeway. The dwelling comprises nine (9) bedrooms, each with their own ensuite. One building contains the living areas and the main bedroom and the second building contains the remainder of the bedrooms.
Further details of the proposal are as follows:
Ground Floor
· Ground level to accommodate open-plan kitchen, meals and living area which open out to the deck areas on the northern and western elevations.
· Four bedrooms each with an ensuite & plunge pool.
· Detached laundry, plant, and storeroom.
· Carport, sauna & communal plunge pool.
· A green roof is proposed above laundry/store area and the breezeway.
First Floor
· Master suite, walk-in-robe, ensuite, study and balcony area.
· Four bedrooms each with an ensuite.
The application also proposes:
· Overall height of 7.45 metres.
· The dwelling would be composed of a mix of materials including metal cladding, glass, and brick.
· A one (1) metre rear setback is proposed to the shared southern boundary.
· The dwelling includes a double carport to be directly accessed off the existing right of way access handle.
· A swimming pool is proposed to the north-western corner of the dwelling.
· No vegetation removal is required.

Figure 2 Site Analysis Plan

Figure 3 – Site Detail

Figure 4 North & West Elevations

Figure 5 East & South Elevations

Figure 6 Section Plans
Subject Land
The site is accessed via an access handle which extends to the south. An existing driveway extends to the south along the access handle and is shared with properties known as No. 62 and 64 Macleay Street.
The lot is currently vacant, and mostly consists of vegetated land, with an area of cleared land located adjacent to the access handle which is nominated as the building envelope / site.
The land is zoned, Part R2 Low density Residential and E2 Environmental Conservation as shown in Figure 7 below.
![]()

Figure 7 – Zone Extract (SLEP 2014)
Immediate surrounding area
The site is in a predominantly residential area. There are two single storey dwellings which share the access handle with the subject site and there is a two-storey dwelling with frontage to Macleay Street located at the southern end of the access handle.
The surrounding built form is a mix of single and double storey dwellings.
Beyond the immediate surrounds are predominantly residential dwellings. Narrawallee Inlet is located to the immediate north and east of the site.
History
The following applications, listed as considered relevant to the current proposal, have previously been considered for the subject site:
|
DA number |
Description of Proposal |
Decision & Date of Decision |
Officer Comment |
|
DA00/3615 |
New dwelling and partial filling of land |
Approved 13/3/01 |
Consent has lapsed |
Issues
Concern raised in regard to the use of the dwelling as an alternative form of accommodation prohibited under the current zone.
The main area of contention is the intended use of the dwelling.
The large number of bedrooms each with their own ensuite and the multiple plunge pools proposed raises concerns that the intent is to use the development for tourist accommodation.
Applicant’s Submission
In regard to the matters raised above the applicant responded with the following:
· This application is proposing a two-storey dwelling house swimming pools, and landscaping. The application is not for a tourist facility, boarding house, or hotel/motel accommodation. Dwelling houses are listed as being permissible in the R2 zone. It is acknowledged that the proposed floor plan provides a unique design. The owner engaged Smyth & Smyth to design a dwelling house which will satisfy the needs of the owner (sic) and their family. A Statutory Declaration has been provided by the owner which confirms the following:
‘To confirm our current permanent place of residence is in Wagga Wagga NSW, and we intend to use this dwelling as a family holiday home initially and then retire here in the future. We engaged Architects Smyth and Smyth Pty Ltd to design a high-quality dwelling which will satisfy the needs of our family. We have a large extended family with older children who also have their own families, the proposed dwelling has been designed to reflect the needs of our family situation. The design allows for our family to come together while still maintaining the privacy and separation which we require. We confirm that the proposal is not for a tourist facility boarding house or hotel.’
Discussion
The main area of concern is the foreshadowed use of the building as tourist accommodation, as result of the multiple bedrooms and ensuites and multiple plunge pools. Hence in deciding whether a building is a dwelling, regard should be given to the intention of the owner to use the building as a dwelling, not just the potential capability of the building to be used as tourist and visitor accommodation (the group term is prohibited in the zone).
Pursuant to the Shoalhaven LEP 2014, a “dwelling” is defined as follows:
dwelling means a room or suite of rooms occupied or used or so constructed or adapted as to be capable of being occupied or used as a separate domicile.
The proposal is consistent with the definition, and the definition does not limit a dwelling by the number of bedroom and ensuites. The subject site is also identified as bushfire prone land and a tourist facility would be considered a special fire protection purpose under Planning for Bushfire Protection 2019 which requires a Bushfire Attack Level (BAL) that must not exceed BAL-29. The RFS have deemed that the proposed dwelling must be constructed to BAL Flame Zone hence a tourist facility would find it difficult to gain a consent with a Flame Zone rating.
At present, there is insufficient evidence that the building (as opposed to the ‘capability’ of the building) is to be utilised as tourist accommodation, nor any clear evidence that this is the intended future use.
In the assessment of an application, Council cannot foreshadow what might happen in the future, possible changes, or additional development. It can only assess what is before it and decide to conditionally approve or refuse, with reasons based on planning considerations such as impacts on amenity and the like.
Further, if an approval is forthcoming conditions cannot be imposed preventing further DAs or types of development, as these may be permissible (or prohibited) and the correct avenue to reach a conclusion on a development is via a planning assessment pursuant to section 4.15 of the Environmental Planning and Assessment Act 1979.
Conditions imposed to prevent future development or relying on a promise and capturing those in a condition of consent would not satisfy Newbury criteria in that “the conditions imposed must be for a planning purpose and not for any ulterior one, and …. they must fairly and reasonable relate to the development permitted. Also, they must not be so unreasonable that no reasonable planning authority could have imposed them.” (LEC of NSW, Judicial Newsletter, October 2020).
Having regard to Jonah Pt Limited v Pittwater Council [2006] NSWLEC 99 At paragraph 35, Justice Preston specifically noted:
“….it is irrelevant to enquire as to who is the current owner /operator or who might be the future owner / operator, or whether the present owner / operator has in the past acted or used the land unlawfully, or whether the future owner / operator is likely in the future to act or carry out any approved use unlawfully.”
Whilst this decision was in reference to a modification application, the principle still has relevance to the making of a development application.
The applicant has responded to the concerns regarding intended use by providing a statement of the anticipated use of the dwelling and also provided a signed statutory declaration confirming the same. The consent, if issued will be for a dwelling. No other approval will be given or implied for anything else other than a dwelling.
With regard to the design of the dwelling, the proposal is considered to provide a design that adequately responds to the surrounding neighbourhood character context given:
a) The height of the proposal is comparable to heights within the surrounding area.
b) The proposal provides a pitched roof form which is considered to appropriately reflect roof forms in the surrounding area.
c) Site coverage (relative to the size of the land) is minimal.
d) The height, massing and appearance of the building would not be incongruent to the existing residential character of the surrounding area whilst minimising impacts on remainder of the E2 Environmental Conservation land.
e) Visual interest is provided by setbacks and the articulation of the facades with a variety of materials and colours.
f) The proposal accords with strategic planning objectives to increase housing density and diversity in an established area with good access to services.
Short Term Rental Accommodation (STRA)
Despite the discussion above, this does not prevent the owner (or indeed other owners of dwellings) utilising the short-term rental accommodation provisions at clause 7.13 of the Shoalhaven LEP 2014 which states:
(1) The objective of this clause is to ensure that residential accommodation may be used as tourist and visitor accommodation for a short term without requiring development consent.
(2) Despite any other provision of this Plan, development consent is not required for the use of residential accommodation for the purposes of tourist and visitor accommodation (except backpackers accommodation or bed and breakfast accommodation) if the use is only short-term and does not interfere generally with the amenity of the neighbourhood in any way, including by noise or traffic generation.
It is noted that amendments have been made to SEPP (Affordable Rental Housing) 2009 and the Environment Planning & Assessment Regulation to introduce new policy framework for STRA that will commence on 1 November 2021.
Regardless, even if the owner were to utilise the STRA provisions the mandatory Code of Conduct which is part of the recently amended regulatory framework to manage short-term rental accommodation must be complied with.
Breaches of the code of conduct may result in the dwelling being registered on the Exclusion Register which lists guests and host who have been excluded from participating in the short-term rental accommodation industry. Again, however Council can only consider what is before it for assessment and that is a dwelling.
Planning Assessment
The DA has been assessed under s4.15(1) of the Environmental Planning and Assessment Act 1979. Please refer to Attachment 1.
Policy Implications
There are no specific policy implications that arise from this matter.
Consultation and Community Engagement:
Five (5) public submissions were received in relation to Council’s notification of the development. All five (5) were objections to the development. The notification was made in accordance with Council’s Community Consultation Policy with letters being sent within a 25m buffer of the site. The notification was for a 2-week period.
Key issues raised as a result of the notification are provided below.
Issue
The proposal is intended to be used as motel/tourist accommodation.
Comment
This has been addressed in the preceding sections of the report.
Issue
The building envelope is not large enough to accommodate a development of this size. This is apparent by the applicants request to vary the 88B.
Comment
A condition of consent will require a variation to the existing 88b to vary the building envelope to include the intrusions outside of the building envelope for the swimming pool and decking area.
Issue
The proposal is out of character and excessive in size and scale.
Comment
The proposed building is considered appropriate in this context. The proposed dwelling is contemporary in its design expression and references the traditional pitched roof character in the street. It will also utilise a blend of brickwork, timber cladding and metal roofing finishes commonly utilised in the immediate area, albeit in a modern interpretation of the older housing stock in the street. Further it is generally acceptable in terms of height, scale, and massing.
The proposal respects the preferred neighbourhood character of the area. This is achieved through conforming to the single and double storey building scale and form of the streetscape. The proposal aligns satisfactorily with the preferred character of the surrounding area and balances the need to protect the existing character with growth in housing.
Issue
Overshadowing of adjoining properties.
Comment
Additional overshadowing by the proposed development would not adversely impact upon the surrounding properties, including the adjacent dwelling to the immediate south. The shadow diagrams submitted with the application show that additional overshadowing caused by the proposal would not adversely impact the adjacent site and satisfies the standard in the DCP by providing a minimum of at least 3 hours of direct sunlight to at least 10m2 of private open space.
Issue
Inadequate car parking/lack of manoeuvring to allow vehicles to exit in a forward direction.
Comment
Council’s DCP requires that only 2 car spaces are required for dwellings with 3 or more bedrooms. Whilst the proposal satisfies the provision, the applicant has also submitted plans that allow for 3 additional car spaces along the eastern boundary. There is adequate room along this boundary for the provision of these car spaces and the area in front of the proposed building also allows for adequate manoeuvring to allow vehicles to turn around and exist the site in a forward direction.
Issue
The proposal will increase noise and impact on existing residential amenity.
Comment
Concerns have been raised regarding the potential noise generated from the dwelling after occupancy. Most of the outdoor living areas that could potentially generate noise amenity impact are located on the northern side of the proposed dwelling away from neighbouring premises with the exception of the larger plunge pool and sauna located between the dwelling and carport. Given that the use of this area could generate amenity noise impact to adjoining residents, it is recommended that a condition be imposed requiring a solid fence be installed along the southern boundary in proximity to these facilities.
Residential noise associated with a dwelling is considered normal and reasonable in an urban setting. Any future issues of amenity or anti-social behaviour, if they arise should be pursued as a civil matter or with the Police if of a serious nature as would be the case for any other dwelling / adverse social behaviour in a neighbourhood setting.
Issue
The proposal exceeds height limit.
Comment
Issue
Increased traffic utilising shared access driveway and potential traffic safety issues.
Comment
There may be more vehicles utilising the access driveway once the development is completed, however this is an expectation of urban development. It is not uncommon for households to have more than one or two vehicles, particularly if older children reside in the family home, or if it is a shared house.
Issue
Lack of separation between the proposal and existing dwelling to the immediate south.
Comment
A minimum 1 metre setback is proposed between the proposed dwelling and the boundary of the existing dwelling to the south. Chapter G12 of the Shoalhaven DCP 2014 requires a 7.5m front setback to the primary road frontage. The application is located on a battle-axe lot approximately 50 metres from the road frontage. The DCP is silent regarding a battle-axe lot and front setbacks hence if the proposal is assessed based on the current DCP requirement it satisfies the acceptable solution.
Further the lot is constrained by the dwelling envelope which can limit design options. In this instance it is considered that separation between the dwellings is considered satisfactory.
Financial Implications:
Not applicable
Legal Implications
Pursuant to section 8.2 of the Environmental Planning and Assessment act 1979 (EP&A Act) a decision of the Council may be subject of an application for review by the applicant in the event of an approval or refusal. Alternatively, an applicant for development consent who is dissatisfied with the determination of the application by the Council may appeal to the Court against the determination pursuant to section 8.7 of the EP&A Act.
Summary and Conclusion
The proposed development has been assessed in accordance with section 4.15 of the EP&A Act and is recommended for approval.
· The proposed use and development of part of the site for a dwelling is a use contemplated and permissible in a R2 Low Density Zone.
· Whilst concerns are raised in regard to the intended use of the development any approval issued, will be for a dwelling. No other use would be approved or implied by that consent.
· The proposal is consistent with the relevant environmental planning instruments and the Shoalhaven Development Control Plan 2014.
|
|
Development & Environment Committee – Tuesday 13 July 2021 Page 0 |
Local Government Amendment (governance & planning) act 2016
Chapter 3, Section 8A Guiding principles for councils
(1) Exercise of functions generally
The following general principles apply to the exercise of functions by councils:
(a) Councils should provide strong and effective representation, leadership, planning and decision-making.
(b) Councils should carry out functions in a way that provides the best possible value for residents and ratepayers.
(c) Councils should plan strategically, using the integrated planning and reporting framework, for the provision of effective and efficient services and regulation to meet the diverse needs of the local community.
(d) Councils should apply the integrated planning and reporting framework in carrying out their functions so as to achieve desired outcomes and continuous improvements.
(e) Councils should work co-operatively with other councils and the State government to achieve desired outcomes for the local community.
(f) Councils should manage lands and other assets so that current and future local community needs can be met in an affordable way.
(g) Councils should work with others to secure appropriate services for local community needs.
(h) Councils should act fairly, ethically and without bias in the interests of the local community.
(i) Councils should be responsible employers and provide a consultative and supportive working environment for staff.
(2) Decision-making
The following principles apply to decision-making by councils (subject to any other applicable law):
(a) Councils should recognise diverse local community needs and interests.
(b) Councils should consider social justice principles.
(c) Councils should consider the long term and cumulative effects of actions on future generations.
(d) Councils should consider the principles of ecologically sustainable development.
(e) Council decision-making should be transparent and decision-makers are to be accountable for decisions and omissions.
(3) Community participation
Councils should actively engage with their local communities, through the use of the integrated planning and reporting framework and other measures.
Chapter 3, Section 8B Principles of sound financial management
The following principles of sound financial management apply to councils:
(a) Council spending should be responsible and sustainable, aligning general revenue and expenses.
(b) Councils should invest in responsible and sustainable infrastructure for the benefit of the local community.
(c) Councils should have effective financial and asset management, including sound policies and processes for the following:
(i) performance management and reporting,
(ii) asset maintenance and enhancement,
(iii) funding decisions,
(iv) risk management practices.
(d) Councils should have regard to achieving intergenerational equity, including ensuring the following:
(i) policy decisions are made after considering their financial effects on future generations,
(ii) the current generation funds the cost of its services
Chapter 3, 8C Integrated planning and reporting principles that apply to councils
The following principles for strategic planning apply to the development of the integrated planning and reporting framework by councils:
(a) Councils should identify and prioritise key local community needs and aspirations and consider regional priorities.
(b) Councils should identify strategic goals to meet those needs and aspirations.
(c) Councils should develop activities, and prioritise actions, to work towards the strategic goals.
(d) Councils should ensure that the strategic goals and activities to work towards them may be achieved within council resources.
(e) Councils should regularly review and evaluate progress towards achieving strategic goals.
(f) Councils should maintain an integrated approach to planning, delivering, monitoring and reporting on strategic goals.
(g) Councils should collaborate with others to maximise achievement of strategic goals.
(h) Councils should manage risks to the local community or area or to the council effectively and proactively.
(i) Councils should make appropriate evidence-based adaptations to meet changing needs and circumstances.